Ons kantoor is lid van Baerz & Co Luxury Homes; een internationaal platform dat exclusieve woningmakelaars met elkaar verbindt. Neem contact op met ons secretariaat voor meer informatie over het landelijke aanbod, waarvan u hieronder een selectie kunt bekijken.

NUNSPEET
Groenelaantje 35 a - 8072 DC
Nederland

Edwin van Vilsteren profile image
Edwin van Vilsteren
NVM Register Makelaar/Taxateur RMT
€1.050.000 k.k.
Woonoppervlakte
207m2
Perceeloppervlakte
1720m2
Slaapkamers
5

Omschrijving

Boschhuis Nunspeet – Uw nieuwe thuis, klaar om te betrekken

Wonen in een voormalig sanatorium, midden in de Veluwse bossen.
Op de Veluwe, omringd door weelderig groen en oude bomen, staat het Boschhuis: een voormalig sanatorium uit 1925, recentelijk getransformeerd in zeven exclusieve bosvilla’s. De geliefde vooroorlogse bouwstijl, met zijn kenmerkende symmetrie, grote overstekken en monumentale gevels, is zorgvuldig behouden en gerestaureerd.

Historische grandeur, modern comfort
De bosvilla’s ademen nog altijd de sfeer van het verleden, met hoge plafonds, authentieke details en grote raampartijen die je het bos in al zijn pracht doen beleven. Tegelijkertijd zijn de villa’s volledig toekomstbestendig: gasloos, voorzien van vloerverwarming en -koeling via een eigen bodembron, HR++ glas en optimale isolatie. Het resultaat? Een energielabel A++, lage energielasten én met het comfort van hypermoderne verwarming.

Nieuwbouw garages en carports, geïnspireerd op het verleden
Elke villa wordt geleverd inclusief een nieuwe houten garage met dubbele carport, speciaal ontworpen in de stijl van de voormalige lighallen van het sanatorium. De garage biedt ruimte voor twee auto’s onder de carport, twee extra parkeerplaatsen, plus extra berging in de garage.

Ligging
Het Boschhuis ligt aan de rand van Nunspeet op de Veluwe. Een lommerrijk gebied met vele wandel- en fietsroutes, in de bossen op loopafstand van de Zandenplas en op fietsafstand van het levendige centrum van Nunspeet. Geniet van de rust en privacy op uw ruime kavel. Beleef de seizoenen, geniet van het gezang van de vogels.
Voorzieningen als scholen, winkels, horeca en medische zorg zijn op fietsafstand. De A28 of het NS-station zijn nabij om snel in bijvoorbeeld Zwolle of Amersfoort te komen.

Beperkt beschikbaar
Van de zeven unieke bosvilla’s zijn er reeds drie in de voorverkoop verkocht. De renovatie van de overige woningen is vrijwel afgerond en deze kunnen snel worden betrokken. Maak een afspraak voor een bezichtiging en ontdek hoe u kunt wonen in een historisch pand, midden in de natuur, met alle gemakken van nu.

Groenelaantje 35A
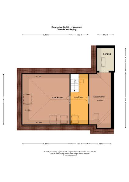
Deze ruim opgezette en lichte hoekwoning heeft een grote, hoge woonkamer met open keuken en een bijkeuken. Op de eerste verdieping bevinden zich een ‘master bedroom’ met een eigen badkamer en tevens twee slaapkamers en een tweede badkamer. Op de zolderetage zijn nog eens twee ruime slaapkamers ingericht.

Kenmerken:
- Woonoppervlak: 207m², ruim en licht, met vijf slaapkamers en twee badkamers.
- Oriëntatie: op het zuidwesten, met optimale zon inval en uitzicht op het bos. De tuin heeft ieder moment van de dag zon.
- Duurzaamheid: energielabel A++, gasloos, vloerverwarming/-koeling via bodembron.
- Parkeergelegenheid: nieuwe houten garage (circa 24m²), dubbele carport (circa 35m²) en nog twee extra parkeerplaatsen.
- Afwerking: casco-plus, zodat u de woning naar eigen smaak kunt inrichten.
- De woningen zitten niet in een Vereniging van Eigenaren. Wel zijn er enkele bepalingen van kracht om het karakter van het gebouw en de tuinen te waarborgen.

Boschhuis Nunspeet; een nieuw hoofdstuk, klaar om te beginnen? Bel voor een bezichtiging: 038 – 460 76 90.

Kenmerken

Overdracht
Vraagprijs
€ 1.050.000 k.k.
Status
beschikbaar
Aanvaarding
in overleg
Bouw
Soort woonhuis
Herenhuis
Soort bouw
hoekwoning
Bouwjaar
1925
Energieklasse
A++
Soort dak
samengesteld dak
Slaapkamers
5
Badkamers
2
Oppervlakten en inhoud
Woonoppervlakte
207 m2
Overige inpandige ruimte
0 m2
Externe bergruimte
25 m2
Inhoud
1000 m3
Perceeloppervlakte
1720 m2
faciliteiten
Mechanische ventilatie
Tv kabel
Aan bosrand
Aan rustige weg
Beschutte ligging
In bosrijke omgeving
Baerz & Co Property Brochure

Brochure

Video’s

Plattegronden

Edwin van Vilsteren Makelaars

Thorbeckegracht 21
8011 VM Zwolle

info@evvmakelaars.nl
038 460 7690

Informatie / bezichtigingsaanvraag

Edwin van Vilsteren profile image
Edwin van Vilsteren
NVM Register Makelaar/Taxateur RMT