Ons kantoor is lid van Baerz & Co Luxury Homes; een internationaal platform dat exclusieve woningmakelaars met elkaar verbindt. Neem contact op met ons secretariaat voor meer informatie over het landelijke aanbod, waarvan u hieronder een selectie kunt bekijken.

GALDER
Galderseweg 85 - 4855 AG
荷兰

Lennart van Oosterhout profile image
Lennart van Oosterhout
Real Estate Agent
€1,950,000 k.k.
居住面积
310m2
地块大小
25110m2
卧室
5

描述

这座位于 Galder 的独栋别墅坐落于毗邻 Markdal 自然保护区的广阔庄园上,土地面积高达 25,110 平方米。物业被原生态绿意和草地环绕,南临布雷达,营造出罕见的宁静私密氛围。主屋建筑面积 224 平方米,设有三间宽敞卧室与流畅衔接的起居空间。客厅呈 L 形布局,橡木地板铺陈其间,现代壁炉与法式门直通阳台,开阔景色尽收眼底。厨房与餐区相融,成为居家核心,混凝土台面岛台、Lacanche 燃气炉及双开花园门连接修整草坪与后方自然保护区。

多功能附属楼于 2022 年竣工,灵活拓展 200 平方米空间用途。两套自足式工作室,各 43 平方米,作为获许可的民宿客房运营,配备三层中空玻璃、铝合金门窗及地暖系统。宽敞车库、面向花园的整面玻璃墙及阁楼储藏空间,极大提升创意空间、家庭办公或进一步居住的多元可能。整个庄园环绕精致园林、广阔草坪、成熟绿篱及 Conference 梨树,确保居者享有隐秘与安定的自然体验。

全宅采用高效保温,配备先进供暖系统,主屋能源标签为 B,附属楼为 A+,保障出色节能表现。专属坐落、巧思建筑与附属楼和民宿工作室带来的独立自主,这座待售的 Galder 豪华别墅凝聚空间、光线与不间断自然联结,邀您体验格调非凡的生活节奏。

与Baerz一起探索Galder,您值得信赖的个人房产搜索和顾问

加尔德的房产买卖需要专业指导和严谨谈判。资深顾问帮助客户进入独家隐性市场,量身定制购房策略。处理文保、区域政策与跨境事务需兼具国际视野和本地资源。顶级顾问能令交易兼顾私密性、价值与未来灵活性。

特点

空调
所有权转让
要价
€ 1.950.000 k.k.
状态
beschikbaar
接受
in overleg
建筑
房屋类型
Villa
建筑类型
vrijstaande woning
建造时期
1936
能源评级
B
屋顶类型
zadeldak
卧室
5
浴室
3
表面积和体积
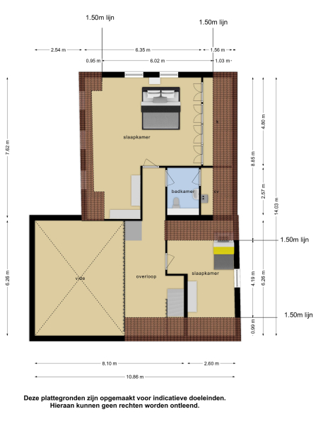
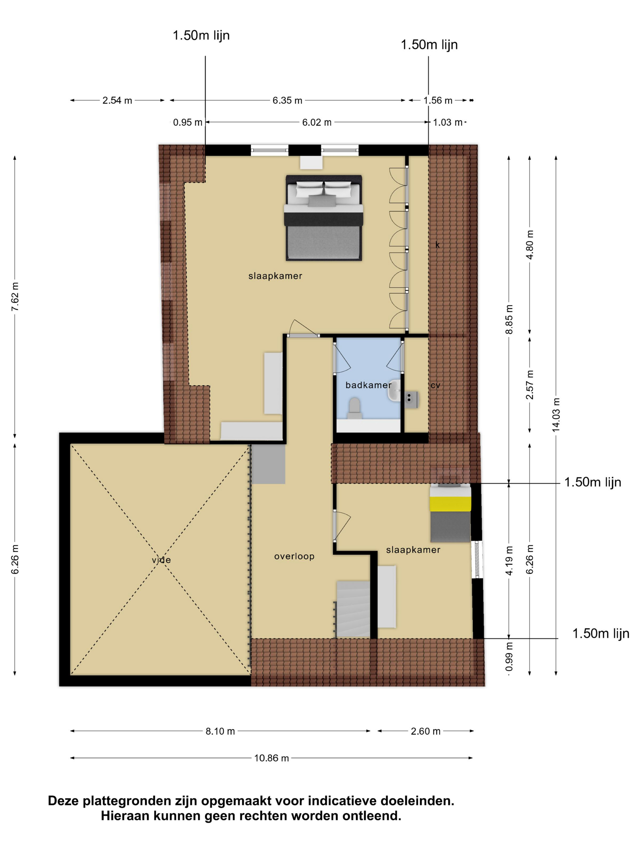
居住面积
310 m2
其他室内空间
0 m2
附属于建筑的外部空间
53 m2
外部储存空间
100 m2
体积(立方米)
931 m3
地块大小
25110 m2
设施
Tv kabel
Airconditioning
Aan rustige weg
Vrij uitzicht
Buiten bebouwde kom
Landelijk gelegen
Baerz & Co Property Brochure

宣传册

视频

Storimans en Partners

Ginnekenweg 161
4818 JD Breda

lvanoosterhout@storimansenpartners.nl
+31 76 522 60 90

www.storimansenpartners.nl

信息/查看请求

Lennart van Oosterhout profile image
Lennart van Oosterhout
Real Estate Agent

在购买豪华房产 Galder

加尔德以私密、匠心建筑与和谐生活方式著称,是荷兰最负盛名的乡村聚落之一。专业服务和高端社群吸引全球居民,成就持久价值。