Ons kantoor is lid van Baerz & Co Luxury Homes; een internationaal platform dat exclusieve woningmakelaars met elkaar verbindt. Neem contact op met ons secretariaat voor meer informatie over het landelijke aanbod, waarvan u hieronder een selectie kunt bekijken.

AMSTERDAM
Bundlaan 256 - 1031 KA
荷兰

Floor Neomagus profile image
Floor Neomagus
Real Estate Agent
€1,000,000 k.k.
生活区
137m2
地块大小
N/A
卧室
3

描述

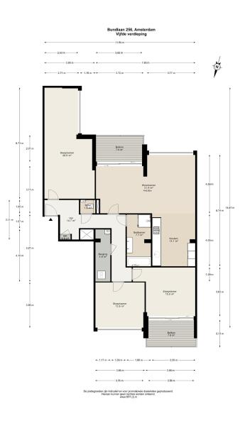
阿姆斯特丹公寓诠释了焕新后的阿姆斯特丹北区的当代生活方式,将低调奢华融于艾河之畔。这套137平方米的精装住宅位于2021年落成的知名公寓项目“The Grid”,拥有三间布局得体的卧室、通透明亮的起居空间以及卓越的A+++级能效标签。每个房间均享有大面积采光窗引入的自然光,地暖系统与现代热泵设备四季提供舒适体验。

开放式厨房与南向客厅无缝衔接,通向户外露台,实现空间与自然的互动。后方另设第二阳台,延伸生活场域,营造街区恬静节奏。宽敞卫浴配备浴缸、步入式淋浴及双台盆。全屋选用高品质地板,隔热保温细致到位,彰显对可持续细节的专注。

居民专享私人停车位、7平方米以上储藏空间,还可使用迎宾大堂、室内自行车库与收件室。The Grid项目地理位置优越,便利衔接交通,快速轮渡直达阿姆斯特丹中央车站,紧邻南北地铁线及A10环路。周边超市、学校、知名咖啡馆及文化场所(如EYE电影博物馆)一应俱全。这套在售阿姆斯特丹公寓兼具静谧栖居与都市参与双重属性,于城市最具活力的街区,尽享精致生活。

与 Baerz 一起探索 Amsterdam,您值得信赖的私人房产顾问和搜寻专家

驾驭阿姆斯特丹高端市场需深厚本地洞察、严密保密与谈判专业技巧。顶尖顾问可助您获取私密房源,梳理细致产权规定,并洞察那些罕见进入市场的隐藏机会。顾问团队严苛资产甄别与代表,提升协商地位、确保交易顺畅并全程保障您的隐私。

避免常见陷阱

国际买家经常浪费大量时间浏览重复、过时或误导性的在线房源,尤其是因为近 30% 的豪华物业根本不会公开上市。
卖方代理代表卖方的利益,而非您的利益;甚至仅仅对房产进行咨询,都可能导致中介在未经您同意的情况下将您登记为他们的“客户”。
通过 Baerz Property Finders & Advisors,您可以完全避免这些问题。
我们只代表您,提供独立建议、透明指导,并让您接触所有可售房源,包括私人及未上市的独家机会,这些往往不会被他人看到。

想知道如何获得您自己的私人房产顾问吗?联系我们,了解我们如何代表您的利益并为您打开整个市场。

特点

所有权转让
要价
€ 1.000.000 k.k.
状态
beschikbaar
接受
direct
建筑
房屋类型
Tussenverdieping
建筑类型
appartement
建筑时期
2021
能源评级
A+++
屋顶类型
plat dak
卧室
3
浴室
1
表面积和体积
生活区
137 m2
其他室内空间
0 m2
附属于建筑的外部空间
16 m2
外部储存空间
7 m2
体积(立方米)
443 m3
设施
Lift
Schuifpui
Balansventilatie
In woonwijk
Baerz & Co Property Brochure

宣传册

视频

户型图

Heeren Makelaars

Stadionweg 75
1077 SE Amsterdam

info@heerenmakelaars.nl
+31 204702255

www.heerenmakelaars.nl

信息/查看请求

Floor Neomagus profile image
Floor Neomagus
Real Estate Agent