Ons kantoor is lid van Baerz & Co Luxury Homes; een internationaal platform dat exclusieve woningmakelaars met elkaar verbindt. Neem contact op met ons secretariaat voor meer informatie over het landelijke aanbod, waarvan u hieronder een selectie kunt bekijken.

HAAREN
Nieuwe Erven 12 - 5076 NP
Нидерланды

Marleen de Bekker profile image
Marleen de Bekker
Real Estate Agent
€1,250,000 k.k.
Жилая площадь
184m2
Размер участка
918m2
Спальни
5

Описание

Этот семейный дом в Хаарене сочетает редкую приватность и просторное проживание на участке площадью 918 м² на окраине деревни. Жилая площадь дома составляет 184 м², все четыре спальни расположены на одном уровне, что идеально подходит для комфортного семейного быта. Продуманная планировка становится заметна уже в переходе из солнечной гостиной—с большими окнами и камином в центре—в современную открытую кухню с глянцевыми белыми фасадами, композитной столешницей, системой Quooker и двумя духовками. Просторная подсобка соединяет гараж и сад, значительно повышая повседневное удобство.

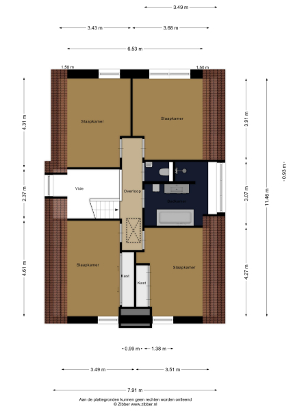
На верхнем этаже каждая спальня площадью около 15 м² становится уединённой зоной отдыха, а ванная комната оснащена душем с входом без порога, двойной раковиной, большой ванной, естественным освещением и тёплыми полами. Чердак вдоль всей длины дома позволяет хранить сезонные вещи без ограничений.

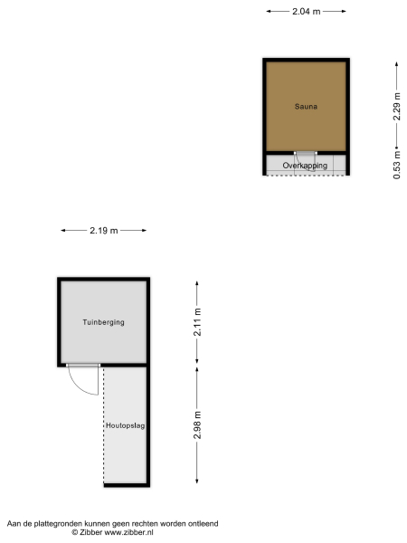
Внешнее пространство включает широкую солнечную террасу, крытое место с мансардой и отдельную сауну в уединении. Взрослые живые изгороди гарантируют приватность, а участок предоставляет достаточно места для игр и отдыха. Изолированный гараж 3,85 м на 6,30 м добавляет функциональности, а на подъездной дорожке можно разместить от четырёх до шести автомобилей. Восемнадцать солнечных панелей, полная теплоизоляция и класс энергоэффективности A+ обеспечивают долговременную экономичность.

Дом находится в тихом жилом районе Хаарена, рядом с кафе, ресторанами, велосипедными маршрутами, а также с обширным природным заповедником Кампина и национальным парком Лоонсе-эн-Дрюненсе-Дюйнен. Единство внутреннего и внешнего пространства, современные удобства и близость деревенской инфраструктуры делают эту недвижимость идеальным семейным убежищем в самом сердце Нидерландов.

Исследуйте Haaren вместе с Baerz — вашим надежным советником и личным поисковиком недвижимости

Изысканные клиенты ценят советников с глубоким знанием местного рынка, прочными связями с владельцами и опытами по международным сделкам. Многие лучшие объекты переходят из рук в руки приватно, необходимы специалисты, умеющие вести переговоры, проводить due diligence и предоставлять персонализированный сервис. Главная ценность консультанта — доступ к эксклюзивным предложениям и защита интересов клиента на всех этапах сделки.

Избегайте распространённых ошибок

Международные покупатели часто тратят ценное время на изучение дублирующихся, устаревших или вводящих в заблуждение онлайн-объявлений, особенно учитывая, что почти 30% объектов элитной недвижимости вообще не появляются на открытом рынке.
Агенты продавца представляют интересы продавца, а не ваши, и даже простой запрос о недвижимости может привести к тому, что агентство зарегистрирует вас как своего “клиента” без вашего согласия.
С Baerz Property Finders & Advisors вы полностью избегаете этих подводных камней.
Мы действуем исключительно в ваших интересах, предоставляя независимое представительство, прозрачные рекомендации и доступ ко всем доступным объектам, включая частные и вне-рыночные предложения, которых другие никогда не увидят.

Хотите узнать, как получить собственного персонального консультанта по недвижимости? Свяжитесь с нами, чтобы узнать, как мы можем представлять ваши интересы и открыть вам весь рынок.

Особенности

Солнечные панели
Передача права собственности
Запрашиваемая цена
€ 1.250.000 k.k.
Статус
onder bod
Принятие
in overleg
Строительство
Тип дома
Eengezinswoning
Тип здания
vrijstaande woning
Период строительства
2016
Энергетический рейтинг
A+
Тип крыши
zadeldak
Спальни
5
Ванные комнаты
1
Площадь и объем
Жилая площадь
184 m2
Другое внутреннее пространство
44 m2
Внешнее пространство, прикрепленное к зданию
36 m2
Внешнее складское помещение
9 m2
Объем в кубических метрах
844 m3
Размер участка
918 m2
Удобства
Mechanische ventilatie
Tv kabel
Rookkanaal
Schuifpui
Sauna
Glasvezel kabel
Zonnepanelen
Aan rustige weg
In woonwijk
Baerz & Co Property Brochure

Брошюра

Видео

Планы этажей

Finesse Makelaardij

Groenstraat 31
5062 NA Oisterwijk

info@finesse-makelaardij.nl
+31 655757171

www.finesse-makelaardij.nl

Информация / Запрос на просмотр

Marleen de Bekker profile image
Marleen de Bekker
Real Estate Agent