 
	        		 
								Op een landelijke locatie nabij de Maas staat dit rustieke landhuis met een dubbele garage met carport op een perceel van ruim 2.000 m². Rondom het huis liggen een gazon, volwassen bomen, meerdere terrassen en een onderhoudsvriendelijke tuin.
Bruto-inhoud: circa 1.090 m³
Gebruiksoppervlakte wonen: 328 m²
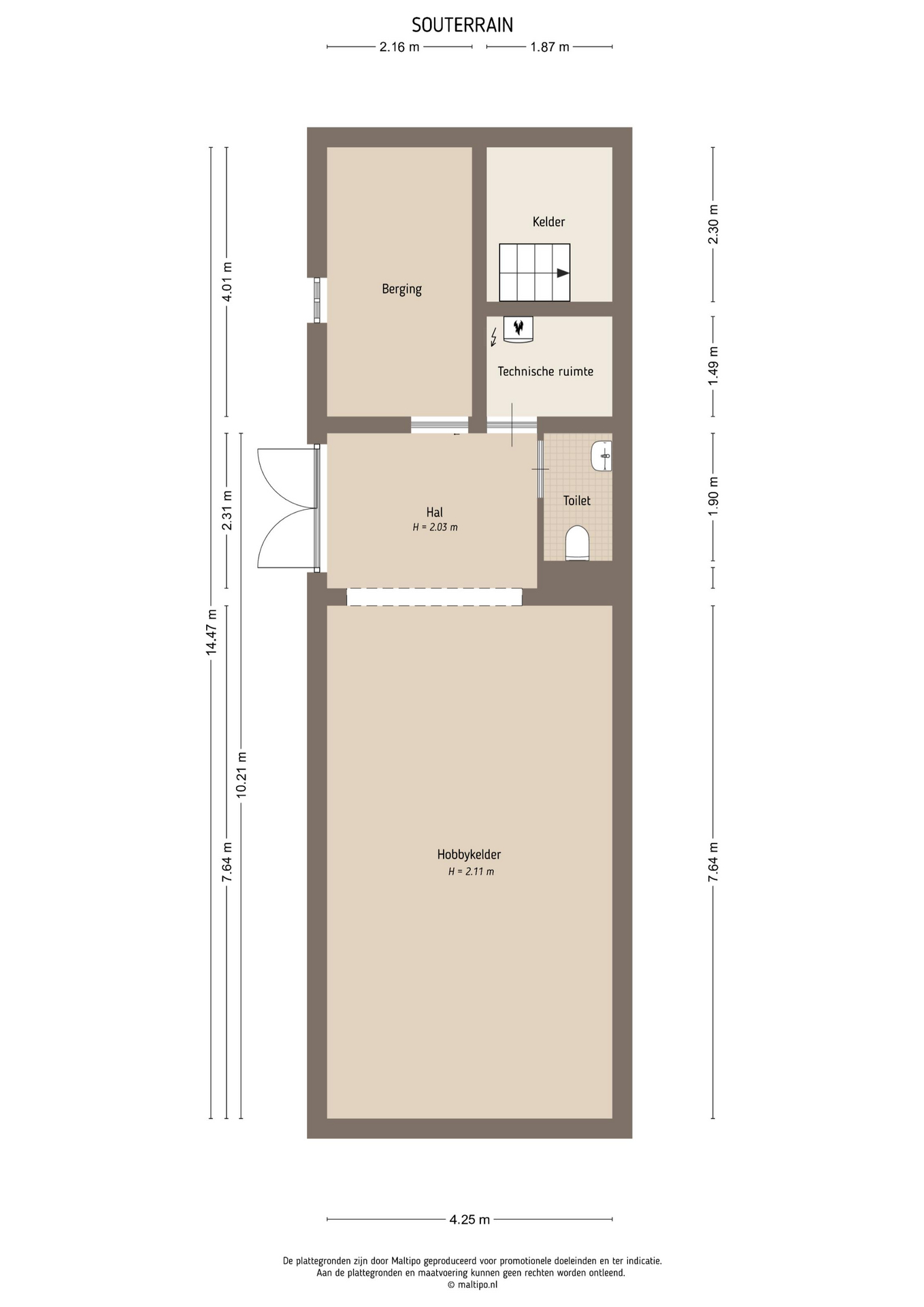
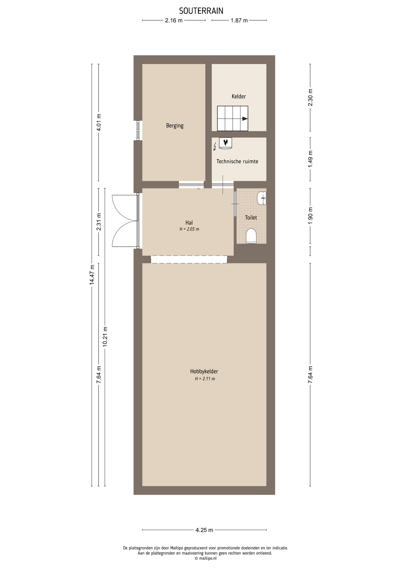
(waarvan 56 m² in het souterrain)
Perceeloppervlak: 2.060 m²
Bouwjaar: 1981
Tuingerichte leefruimte van 140 m² met brede vloerdelen, houtkachel en een compleet ingerichte keuken, portaal naar de gastenkamer met aangrenzende doucheruimte, toilet en werkkamer op de begane grond.
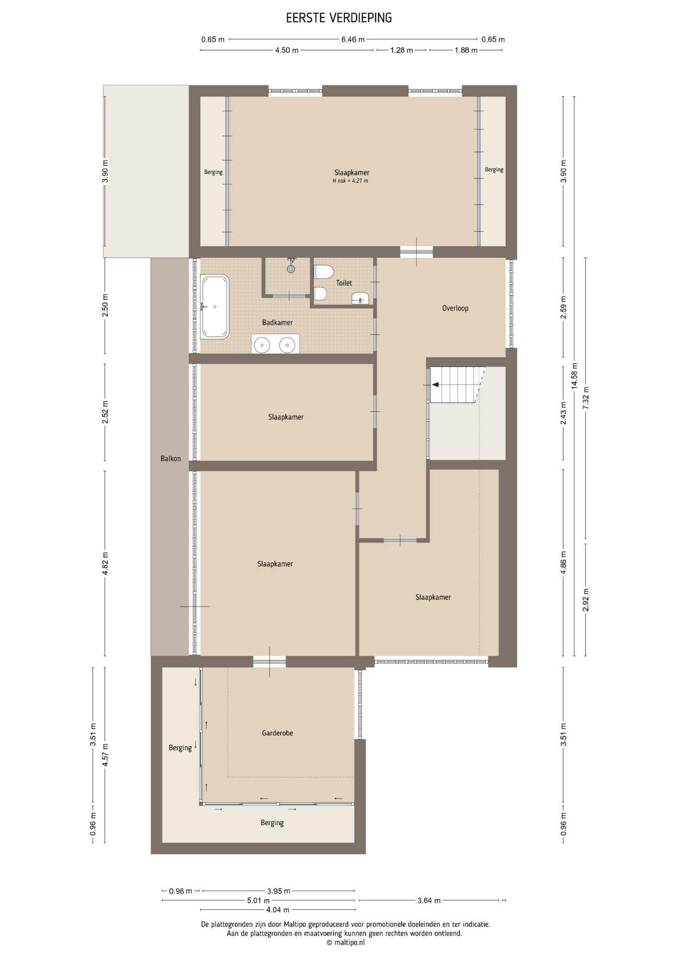
Overloop met toilet, vier slaapkamers, waarvan één met balkon en strijk- en kleedkamer, en een complete badkamer op de eerste verdieping.
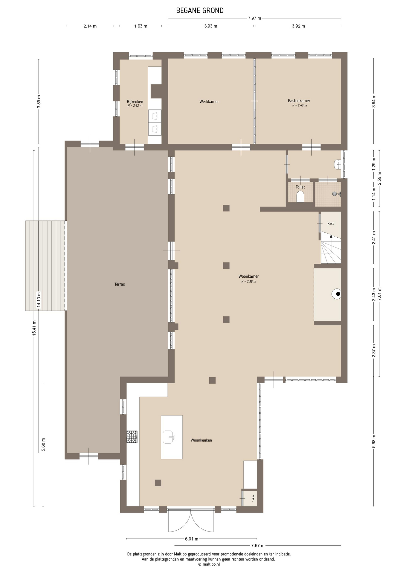
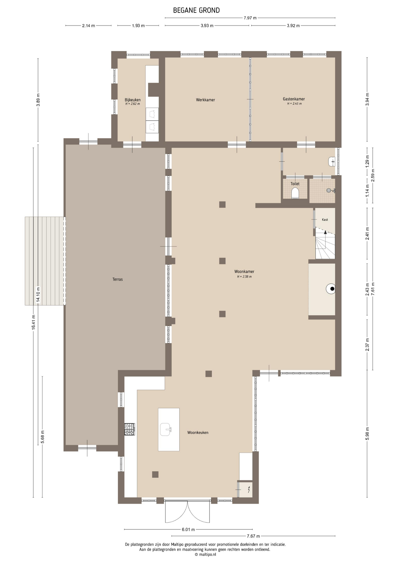
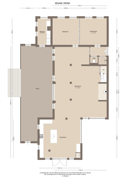
Indeling begane grond:
De entree bevindt zich aan de achterzijde, bij het verhoogd gelegen hardhouten terras.
Via de brede pui met roederamen komt men binnen in de imposante leefruimte, waar brede vloerdelen, een houtgestookte kachel en grote raampartijen een warme sfeer creëren.
De woonkeuken is eveneens licht en ruim, biedt plek aan een grote eettafel en is voorzien van een luxe, compleet uitgeruste keuken met hoogwaardige inbouwapparatuur. Vanuit hier is er toegang tot een tweede terras dat grenst aan de oprit.
Aan de voorzijde liggen twee multifunctionele kamers, visueel verbonden door een glaswand.
De ene ruimte fungeert momenteel als werkkamer; de andere is ideaal als gastenkamer dankzij de aangrenzende douche- en toiletruimte. In de werkkamer is een luik naar een kelder.
Indeling eerste verdieping:
Op de verdieping grenzen vier slaapkamers, een complete badkamer en een separate toiletruimte met urinoir aan de overloop.
De slaapkamer aan de oostzijde beslaat de volledige diepte van het huis en is voorzien van vaste kasten onder de kap. De ouderslaapkamer grenst aan een breed balkon en aan een kamer die nu in gebruik is als kleedkamer. Deze ruimte leent zich ook uitstekend als extra werkkamer of badkamer.
De overige twee slaapkamers zijn speels vormgegeven, met zichtbare kapconstructie en roederamen die een fraai uitzicht over de omgeving bieden. De badkamer is in dezelfde stijl afgewerkt als de slaapkamers en uitgerust met een ligbad, douchecabine en dubbele wastafel.
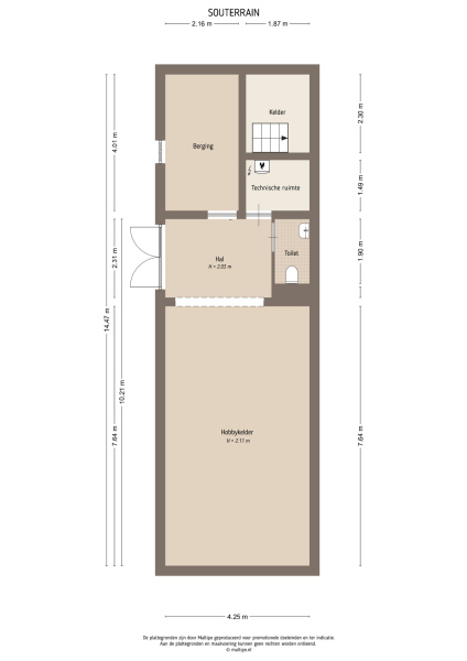
Indeling souterrain:
Onder het hele pand strekt zich een groot souterrain uit met een stahoogte van circa 2,10 meter. Deze ruimte is momenteel ingericht als sfeervol wijnlokaal waar proeverijen worden georganiseerd, maar kan uiteraard ook uitstekend dienstdoen als hobbyruimte, fitnessruimte of extra opslag.
Hier bevinden zich tevens een toiletruimte, een pantry en een berging met de opstelplaats van de cv-ketel. Het souterrain is bereikbaar via dubbele hardhouten deuren vanuit de tuin.
Bijzonderheden:
Dit landhuis combineert een sfeervolle landelijke uitstraling met uitstekend onderhoud en hedendaags wooncomfort. Overal is zichtbaar aandacht besteed aan hoogwaardige materialen en een verzorgde afwerking, wat het geheel een karaktervolle uitstraling geeft.
Links van de oprit staat een solide pannengedekt bijgebouw met een dubbele carport, een garage en een motor- en fietsenberging. De tuin is onderhoudsvriendelijk aangelegd met grote hardhouten terrassen, transparante RVS-balustrades, sierlijke hortensiaborders en een gazon met volwassen beplanting. Het talud langs de dijk is ingeplant met onder andere maagdenpalm en goudaardbei. Het dak van het bijgebouw leent zich door de oost/west-oriëntatie bij uitstek voor het plaatsen van zonnepanelen. Bij plaatsing van ten minste 4 zonnenpanelen, gaat het huidige energielabel C naar B. 
Het landhuis is volledig geïsoleerd en verkeert in zeer goede staat van onderhoud. De rieten kap is tien jaar geleden geheel vernieuwd. Op de begane grond zijn de spanten en balken in het zicht gelaten, wat zorgt voor een warme, landelijke sfeer. De verdieping is afgewerkt met kraaldelen en brede vloerdelen in alle vertrekken.
Dit is een ideaal object voor wie rustig en comfortabel wil wonen in een royaal dijkhuis op een bijzondere locatie nabij het water.
