Welkom op Park Zomerlust 71 – Exclusief en vrijstaand wonen aan het water, omringd door groen, rust en ruimte.
Zomerlust is een prachtig park gelegen aan de schilderachtige rivier de Kromme Mijdrecht. Een plek waar rust, ruimte en natuur samenkomen – en waar bewoners het hele jaar door genieten van het buitenleven. Hier woon je in een groene, waterrijke omgeving met volop comfort en vrijheid.
Natuurlijke omgeving en voorzieningen
Het park ligt midden in het Groene Hart en is omgeven door uitgestrekte polders, waterwegen en natuurgebieden zoals De Groene Jonker en de Nieuwkoopse Plassen. Perfect voor wandelen, fietsen, varen, vissen of vogelspotten. De Groene Jonker ligt direct aan het park en is een vogelrijk natuurreservaat met onder andere lepelaars, purperreigers en zwarte sterns – een waar paradijs voor natuurliefhebbers.
Dankzij een fietsbrug over de Kromme Mijdrecht is het nabijgelegen Mijdrecht snel en veilig bereikbaar, met winkels en andere voorzieningen binnen handbereik. Ook plaatsen als Nieuwkoop, Noorden en Zevenhoven liggen op korte afstand voor uw dagelijkse boodschappen en andere voorzieningen.
Recreatieve faciliteiten
Park Zomerlust biedt bewoners diverse recreatieve faciliteiten die het hele jaar door bijdragen aan het woongenot. Zo is er een ruime speelweide met speeltoestellen, een zwem- en visvijver, een jeu-de-boulesbaan en een privé aanlegsteiger aan de rivier (ligplaatsen op basis van beschikbaarheid).
Wonen in Park Zomerlust
Hoewel het park oorspronkelijk bedoeld was voor recreatief gebruik, wordt het inmiddels bijna volledig permanent bewoond. In oktober 2023 is de provincie akkoord gegaan met een permanente woonbestemming, en de gemeente werkt momenteel aan de bestemmingsplanwijziging.
De buurt is rustig en prettig, met een mooie mix van gezinnen, stellen en alleenstaanden. Een omgeving waar mensen elkaar groeten, kinderen veilig buiten kunnen spelen en je je snel thuis voelt.
Financiering
Het is goed om te weten dat de financiering van woningen met een recreatieve bestemming soms net iets anders verloopt dan bij reguliere woningen.
Gelukkig is financiering wél mogelijk – mits via een hypotheekadviseur die ervaring heeft met dit soort woningen.
We brengen je desgewenst graag vrijblijvend in contact met een gespecialiseerde adviseur.
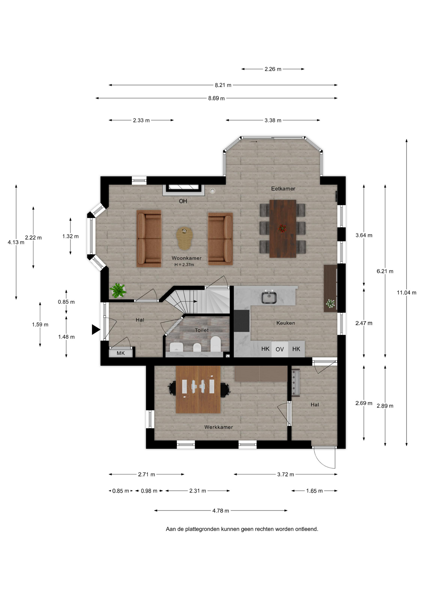
Een rondleiding door de woning:
Deze woning beschikt over twee eigen entrees, elk met een eigen functie en indeling – ideaal voor wie waarde hecht aan flexibiliteit en privacy.
De hoofdentree aan de voorzijde verwelkomt je via de verzorgde voortuin. Je komt binnen in een lichte hal, afgewerkt met een stijlvolle tegelvloer, strakke wanden en een handige opbergkast. Hier bevindt zich de uitgebreide meterkast (18 groepen, 4 aardlekschakelaars, krachtstroom en PV-aansluiting) én het ruime toilet met hangtoilet, urinoir, fonteintje, opbergmeubel, lichte wandtegels en mechanische ventilatie. Ook vind je hier de trap naar de eerste verdieping én de toegang tot de woonkamer, waar je direct binnenstapt in de gezellige zithoek met sfeervolle open haard.
De tweede entree aan de zijkant van de woning geeft toegang tot een aparte hal. Vanuit hier bereik je het kantoor – ideaal voor thuiswerken – en stap je direct binnen in de keuken en eethoek. Deze opzet biedt veel vrijheid en maakt het mogelijk om werk en privé gescheiden te houden of gasten via een andere ingang te ontvangen.
Woonkamer – Licht, warmte en sfeer
De woonkamer is heerlijk ruim en opvallend licht, met grote raampartijen, een zijraam, gezellige erker en een schuifpui (met hor) naar de tuin. Rond de sfeervolle houthaard is ruimte voor een royale zithoek. De PVC-vloer met vloerverwarming zorgt voor extra wooncomfort en een moderne uitstraling.
Keuken – Stijlvol en compleet
Koken doe je hier in stijl: de open keuken in U-opstelling is voorzien van hoogwaardige Siemens-apparatuur, waaronder een inductiekookplaat met warmhoudzone, stoomoven, combimagnetron, vaatwasser, afzuigkap (recirculatie), apothekerskast en Quooker. In de gezellige erker is volop plek voor een grote eettafel, met uitzicht op de tuin en het water.
Kantoorruimte – Thuiswerken in alle rust
Aan de achterzijde van de woning bevindt zich een ruime en lichte kantoorruimte met PVC-vloer en ramen rondom. Perfect voor thuiswerken, een praktijk aan huis of creatieve hobby’s. Deze ruimte is toegankelijk via de zijentree en dus ideaal voor zakelijk bezoek.
Souterrain – Volwaardig en veelzijdig
Via een vaste trap (in dezelfde stijl als de trap naar de bovenverdieping) bereik je het souterrain. Hier vind je een ruime wasruimte met tegelvloer, aansluitingen voor wasmachine/droger, een keukenblok én een vriezer. Verder is er een zitkamer met vloerbedekking en een royale slaapkamer met wastafel, radiator en raam. Deze verdieping biedt volop mogelijkheden voor gasten, tieners of als zelfstandige studio.
Eerste verdieping – Slaapcomfort met uitzicht
Op de bovenverdieping liggen twee royale slaapkamers.
De slaapkamer aan de voorzijde beslaat de volledige breedte van de woning en is voorzien van een elektrisch rolluik, horren, plisségordijnen en een kastenwand met schuifdeuren.
De master bedroom aan de achterzijde heeft airconditioning (2021), shutters, tv-aansluiting, een walk-in closet met maatwerkkasten én toegang tot een balkon met prachtig uitzicht over de tuin.
Badkamer – Compleet en verzorgd
De badkamer is licht en ruim en beschikt over een hangtoilet, bidet, dubbele wastafel in een groot meubel, föhn, douchecabine en raam met hor. Zowel natuurlijke als mechanische ventilatie zorgen voor een prettig binnenklimaat.
Tuin – Groen geluk aan het water
De prachtig aangelegde tuin biedt het ultieme buitengevoel: rust, groen en water komen hier op een unieke manier samen.
De tuin is volledig vernieuwd in 2017 en perfect onderhouden. Er is een verhoogd terras aan het water, aangelegd op een hardhouten vlonder. In 2021 is de walbeschoeiing vernieuwd over een lengte van 50 meter, met aansluitend een extra lage vlonder aan de waterkant – ideaal voor liefhebbers van buitenleven.
Luxe overkapping – Buiten genieten in elk seizoen
Op een stevig onderheid hardhouten vlonder is een stijlvolle lounge gebouwd, voorzien van glazen schuifdeuren, elektrische verwarming (thermostaat + tijdschakelaar) en stroomvoorziening. Hier geniet je – zomer én winter – van het buitenleven in alle comfort.
Parkeren – Veilig, ruim en toekomstbestendig
Parkeren doe je op eigen terrein, met ruimte voor meerdere auto’s, verlichting, camerabewaking en een laadpaal voor elektrische voertuigen. De toegang is voorbereid op een elektrisch hek, en een drainageslang zorgt voor goede afwatering. Naast de woning is er nog een extra parkeerplek voor twee auto’s.
Schuur – Veelzijdig en compleet
De ruime stenen schuur is onderheid, volledig geïsoleerd (spouwmuur), voorzien van aluminium kozijnen en een tegelvloer. Ideaal als werkruimte of opslag, met werkbank, gereedschapsladen, verlichting, en voldoende stopcontacten – perfect voor elektrische fietsen of kluswerk.
Duurzaam wonen – Klaar voor de toekomst
In 2021 zijn 20 zonnepanelen geplaatst, verdeeld over de woning en schuur, met micro-omvormers zodat elk paneel afzonderlijk gemonitord wordt. De installatie levert ca. 7.000 kWh per jaar op – goed voor een duurzame én voordelige energierekening.
De woning heeft energielabel A, is voorzien van vloerverwarming, een nieuwe cv-ketel (2023) en geschikt voor een warmtepomp. De elektrische installatie is recent vernieuwd en voldoet aan alle moderne eisen.
Belangrijkste kenmerken in het kort:
- Vrijstaande woning op ruime kavel, direct aan het water
- Volledig aangelegde tuin met verhoogd terras en walbeschoeiing
- Sfeervolle woonkamer met haard en grote raampartijen
- Luxe open keuken met Siemens apparatuur en Quooker
- Souterrain met slaapkamer, zitkamer, wasruimte en keukenblok
- Twee ruime slaapkamers boven, waarvan één met balkon en airco
- Werk-/kantoorruimte met veel licht
- Luxe overkapping met glazen schuifdeuren en elektrische verwarming
- Genoeg parkeerplek op eigen terrein + laadpaal
- 20 zonnepanelen met micro-omvormers (± 7.000 kWh/jaar)
- Financiering mogelijk via gespecialiseerde adviseurs, wij helpen je graag op weg.
- Servicekosten park: € 75,00 per maand
Benieuwd naar de mogelijkheden van deze unieke woning?
Neem snel contact op voor een bezichtiging en ontdek zelf wat Park Zomerlust 71 zo bijzonder maakt!
Deze informatie is door ons met de nodige zorgvuldigheid samengesteld. Er wordt door ons geen enkele aansprakelijkheid aanvaard voor enige onvolledigheid, onjuistheid of anderszins, dan wel de gevolgen daarvan. Deze verkoopinformatie mag niet worden beschouwd als een aanbieding of een offerte en wordt verstrekt onder voorbehoud van goedkeuring door de verkoper(s). Alle opgegeven maten en oppervlakten zijn indicatief. Er is slechts sprake van een overeenstemming op het moment, dat de door makelaar opgestelde koopovereenkomst door beide partijen is beoordeeld en ondertekend. Tot dat moment hebben beide partijen het recht om af te zien van een transactie, zonder enige kostenvergoeding etc. Er wordt gebruik gemaakt van de NVM-koopovereenkomst. In alle overeenkomsten bedraagt de waarborgsom/bankgarantie 10% van de koopsom.