Ons kantoor is lid van Baerz & Co Luxury Homes; een internationaal platform dat exclusieve woningmakelaars met elkaar verbindt. Neem contact op met ons secretariaat voor meer informatie over het landelijke aanbod, waarvan u hieronder een selectie kunt bekijken.

Villa te koop in VOORBURG

VOORBURG Koningin Wilhelminalaan 520 - 2274 BM Nederland


Sjoerd Bouma profile image
Sjoerd Bouma
Real Estate Agent
+31 6 55 78 20 36
info@beeuwkes.nl

Beeuwkes Makelaardij
Van Alkemadelaan 338
2597 AS Den Haag
NETHERLANDS
+31 703143000
www.beeuwkes.nl
info@beeuwkes.nl

Woonoppervlakte
257m2
Perceeloppervlakte
296m2
Slaapkamers
7

Omschrijving

Aan de populaire Koningin Wilhelminalaan gelegen royaal en stijlvol herenhuis uit 1920 met een woonoppervlakte van 285 m2 en een 1.5 m eindgevel met aan drie zijden tuin (perceel 296m2) waarvan de achtertuin op het Zuidwesten is gelegen. De woning ligt op 5 minuten van Voorburg Centrum maar ligt ook zeer gunstig t.o.v. het Centrum van Den Haag, Prinses Beatrixkwartier, de Theresiastraat en het CS en is uitstekend bereikbaar via het openbaar vervoer en de auto. Snelle toegang tot snelwegen met Rotterdam airport op ca. 15 minuten en Schiphol op 30 minuten.

Dit riante familiehuis huis heeft een heerlijke woonkeuken, 7 slaapkamers, 3 wc’s, 2 badkamers, een zonnige tuin met achterom en is zeker een bezichtiging waard!

Indeling: entree, vestibule met vaste kast, dubbele deuren met roedeverdeling met glas naar royale centrale hal met fraai ruim opgezet trappenhuis met bordessen. Modern wc met fonteintje, toegang tot de zitkamer aan de voorzijde over de volle breedte met ronde erker en grote haardpartij. Ruime eetkamer aan de achterzijde in open verbinding met de eveneens ruime moderne keuken met apparatuur waardoor er een gezellige grote woonkeuken is ontstaan, beide geven toegang tot de gehele dag zonnige achtertuin. Hoogte van de plafonds op de begane grond is 314 cm, de begane grond is grotendeels voorzien van eiken parket.

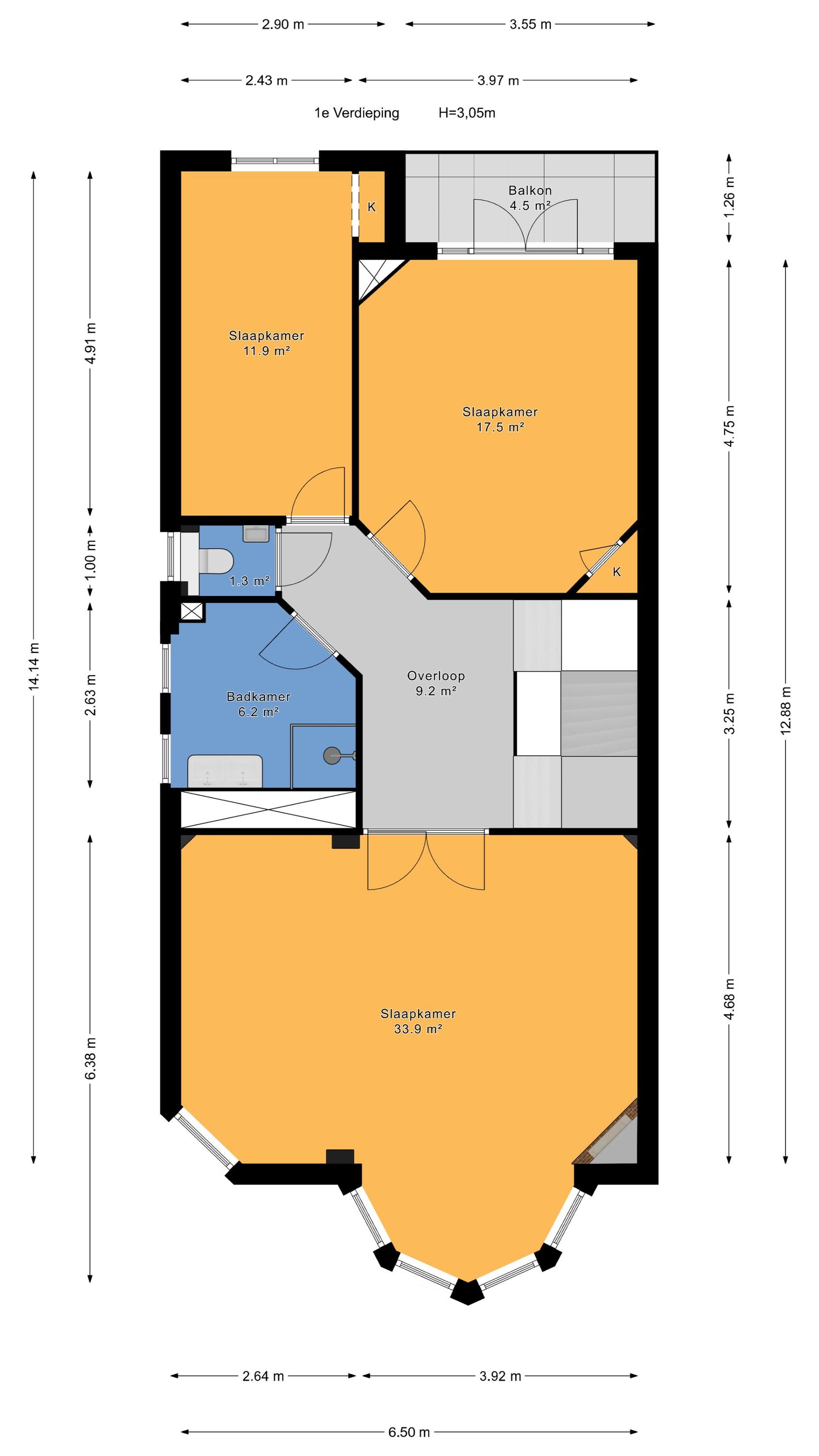
1e verdieping: royale centrale overloop, modern wc met fonteintje, slaapkamer aan de voorzijde over de volle breedte van de woning met ronde erker, twee ruime slaapkamers aan de achterzijde met aangrenzend balkon. De overloop geeft toegang aan een ruime moderne badkamer met daglicht, douche, wastafel met ombouw en designradiator.

2e verdieping: royale lichte overloop, modern wc met fonteintje, twee ruime slaapkamers aan de voorzijde, balkon. Grote slaapkamer achter met hoekkast, ruime zijkamer en een aparte ruime complete badkamer met inloopdouche, ligbad en wastafel met ombouwkasten. achterbalkon.

Kelder: vanuit de centrale hal is de kelder toegankelijk van ca. 35m2 met daglichttoetreding en een stahoogte van ca. 186 cm. Opstelplaats CV combiketel Nefit.

Nadere gegevens:
- Eigen grond, perceel 296m2
- Woonoppervlak ca. 256m2 exclusief kelder van 35m2
- Geheel voorzien van dubbele beglazing
- Buitenschilderwerk uitgevoerd in 2025
- Bouwkundige keuring volgt nog
- Ouderdom en milieu clausule worden opgenomen
- Oprit met plek voor een auto
- Buitenberging voor fietsen
- Oplevering in overleg

Kenmerken

Overdracht
Vraagprijs
€ 1.185.000 k.k.
Status
beschikbaar
Aanvaarding
in overleg
Bouw
Soort woonhuis
Eengezinswoning
Soort bouw
halfvrijstaande woning
Bouwjaar
1920
Energieklasse
D
Slaapkamers
7
Badkamers
2
Oppervlakten en inhoud
Woonoppervlakte
257 m2
Overige inpandige ruimte
35 m2
Gebouwgebonden buitenruimte
11 m2
Externe bergruimte
5 m2
Inhoud
1141 m3
Perceeloppervlakte
296 m2
faciliteiten
Aan rustige weg
In woonwijk
Baerz & Co Property Brochure

Brochure

Informatie / bezichtigingsaanvraag

Video's

Foto's