Ons kantoor is lid van Baerz & Co Luxury Homes; een internationaal platform dat exclusieve woningmakelaars met elkaar verbindt. Neem contact op met ons secretariaat voor meer informatie over het landelijke aanbod, waarvan u hieronder een selectie kunt bekijken.

VENLO
Negen-novemberweg 27 - 5916 LD
Nederland

Jeanette van Haaften profile image
Jeanette van Haaften
Real Estate Agent
€839.000 k.k.
Woonoppervlakte
227m2
Perceeloppervlakte
754m2
Slaapkamers
6

Omschrijving

Ruimte, comfort en duurzaamheid in één: levensloopbestendige woning met maar liefst 6 slaapkamers en energielabel A++!

In deze royale en toekomstbestendige woning geniet u van volop wooncomfort. Deze energiezuinige woning combineert een levensloopbestendige indeling met veel ruimte en rust. De hoofdslaapkamer en badkamer bevinden zich op de begane grond. Daarnaast vindt u op de eerste verdieping nog eens vijf ruime slaapkamers en een extra badkamer – perfect voor een groot gezin, gasten of het werken aan huis of uitoefenen van een hobby.

De woning is voorzien van een hybride warmtepomp, 16 zonnepanelen, uitstekende isolatie en een energielabel A++. De vloerverwarming op de begane grond functioneert tevens als koeling, wat bijdraagt aan een aangenaam binnenklimaat in elk seizoen. De ruime woonkamer, open keuken, bijkeuken en omheinde tuin maken het plaatje compleet.

De woning ligt in een mooie rustige woonwijk op de grens van Nederland en Duitsland, nabij de Groote Heide en prachtige bossen en op loopafstand van sportvelden. Binnen 10 minuten rijden bent u in het gezellige centrum van Venlo of heeft u de uitvalswegen naar Eindhoven of Duitsland bereikt.

Gelegen nabij natuur én met snelle aansluiting op uitvalswegen, biedt deze woning het beste van twee werelden: rust en bereikbaarheid. Een unieke kans voor wie comfortabel en duurzaam wil wonen met ruimte voor het hele gezin met een blik op de toekomst.
Kelder
Via de hal op de begane grond kunt u via een trap naar een kelder van ongeveer 20m² voor bijvoorbeeld het bewaren van uw wijn.
Begane grond
Bijna de gehele benedenverdieping is voorzien van energiezuinige vloerverwarming die ook kan koelen.

U kunt genieten van een ruime en lichte woonkamer van 62m² met een prachtig uitzicht op de mooi aangelegde tuin. De woonkamer is voorzien van een erker en een tv-hoek waar de fraaie architectuur mede door het dakvenster tot uitdrukking komt. Daarnaast is er een open haard aanwezig.

Vanuit de woonkamer loopt u via een schuifpui naar het royale- en deels overdekte terras en tuin. De ramen zijn voorzien van automatische zonwering.

Op de begane grond vindt u een ruime slaapkamer (levensloopbestendig) van ca. 16m² met volledige badkamer, een ruime keuken (11m²) en bijkeuken (7m²) met de witgoedaansluitingen.

De garage (ca. 21m²) kunt u bereiken via de bijkeuken. Deze is voorzien van verwarming, gootsteen en elektra. Een grote kantelpoort biedt toegang tot de ruime oprit voor 2 auto’s en door middel van een aparte loopdeur bereikt u de zij- en achtertuin.
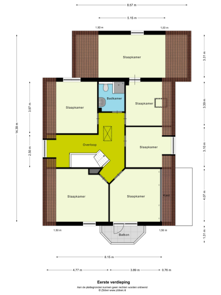
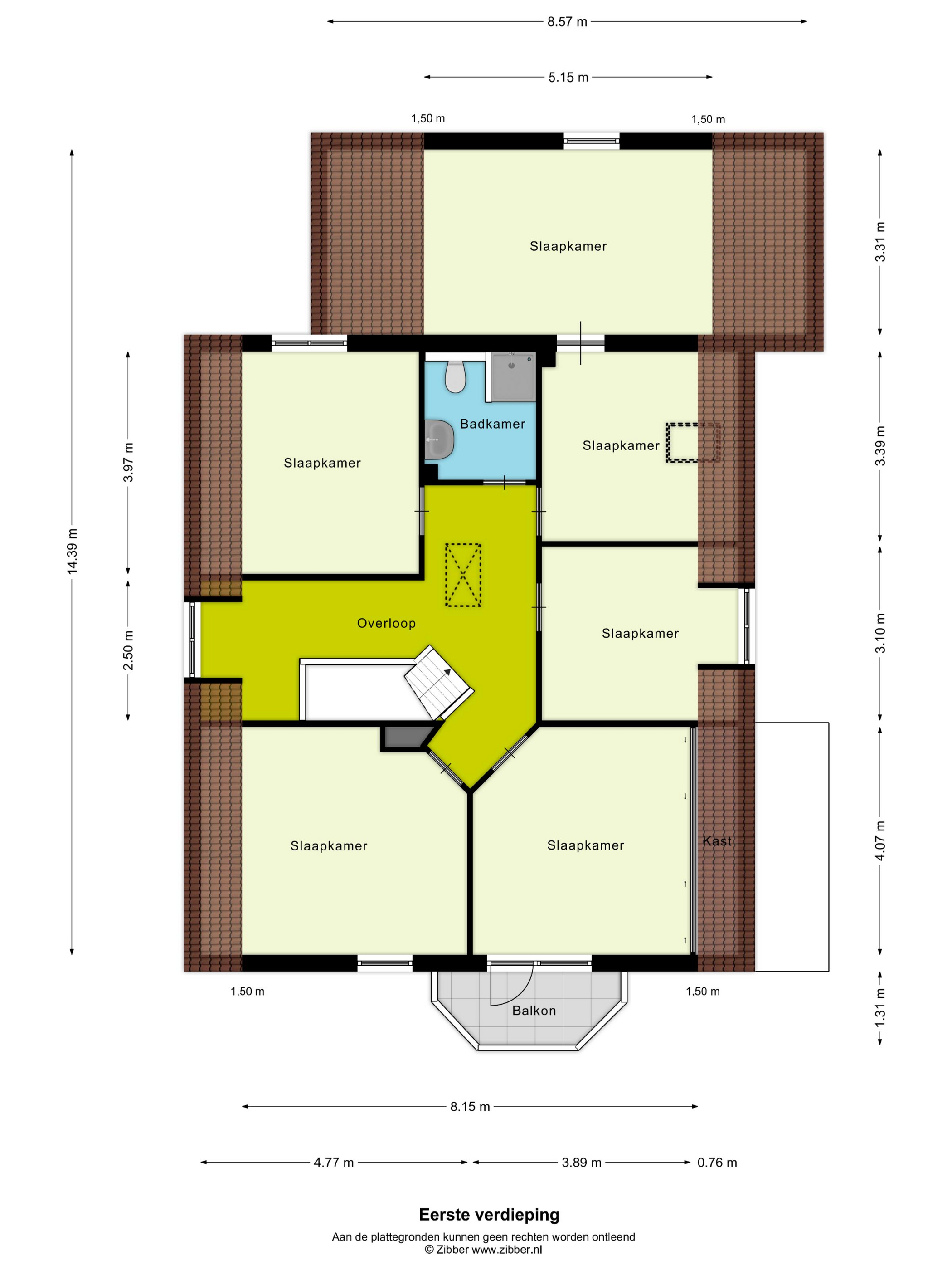
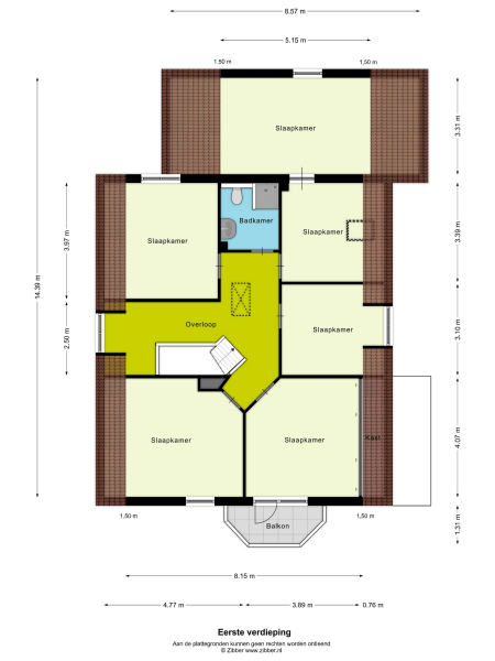
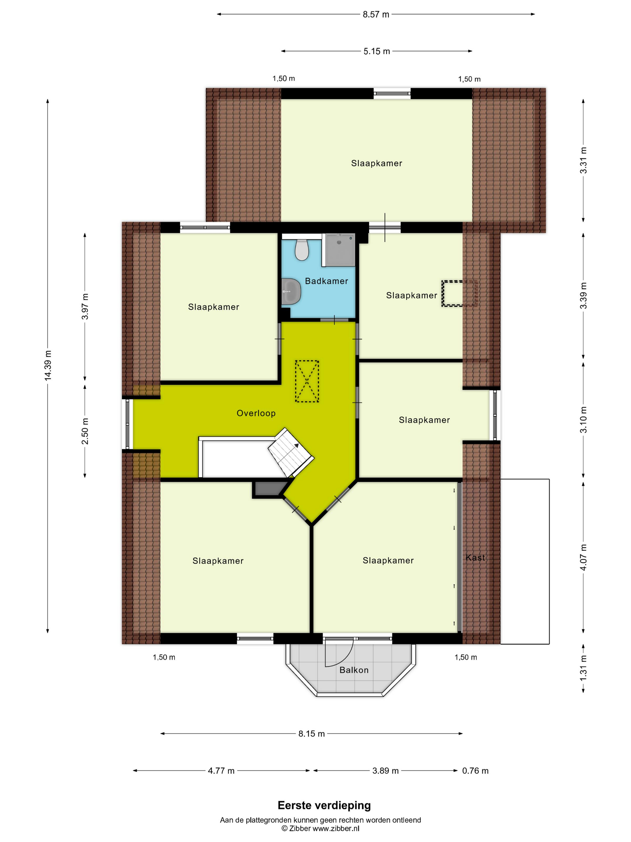
1ste verdieping
De royale overloop biedt toegang tot 5 ruime slaapkamers (ca. 10m², 15m², 16m², 16m² en 17m²) en een tweede badkamer (ca. 4m²).

Via een van de slaapkamers is een extra ruimte bereikbaar welke bijvoorbeeld kan worden omgebouwd tot een saunaruimte. Vanuit één slaapkamer is het balkon toegankelijk.
Zolder
Grote bergzolder met meerdere ruimtes bereikbaar vanuit de overloop van de 1ste verdieping door middel van een vlizotrap.
Tuin
De woning heeft een prachtig aangelegde achtertuin met zeer veel groen en privacy. U geniet hier onder andere van gazon, borders met beplanting en enkele bomen. Er zijn diverse zitplekken aanwezig om heerlijk rustig te kunnen vertoeven.
Bijzonderheden
- Bijna de gehele begane grond is voorzien van energiezuinige vloerverwarming die ook kan koelen.
- 16 zonnepanelen.
- 6 ruime slaapkamers
- 2 badkamers en 3 toiletten
- Parkeerplaats voor 2 auto’s
- Hardhouten kozijnen
- Mechanische afzuiging (toilet, twee badkamers en keuken)
- Volledig vernieuwde 3-fasen meterkast (2023)
- Recent uitgevoerd buitenschilderwerk
- Het voorschot voor energie bedraagt slechts € 160,- per maand.

Kenmerken

Zonnepanelen
Alarm system
Overdracht
Vraagprijs
€ 839.000 k.k.
Status
verkocht onder voorbehoud
Aanvaarding
in overleg
Bouw
Soort woonhuis
Landhuis
Soort bouw
vrijstaande woning
Bouwjaar
1989
Energieklasse
A++
Soort dak
zadeldak
Slaapkamers
6
Badkamers
2
Oppervlakten en inhoud
Woonoppervlakte
227 m2
Overige inpandige ruimte
70 m2
Gebouwgebonden buitenruimte
8 m2
Inhoud
1100 m3
Perceeloppervlakte
754 m2
faciliteiten
Mechanische ventilatie
Alarminstallatie
Tv kabel
Buitenzonwering
Schuifpui
Dakraam
Zonnepanelen
Aan bosrand
In woonwijk
Baerz & Co Property Brochure

Brochure

Video’s

Plattegronden

Bijzonder Wonen Makelaardij

Heilige Geeststraat, 11
5301CP Zaltbommel

info@bijzonderwonen.com
+31 41 868 00 50

www.bijzonderwonen.com

Informatie / bezichtigingsaanvraag

Jeanette van Haaften profile image
Jeanette van Haaften
Real Estate Agent

Een luxe woning kopen in Venlo

Venlo combineert traditie, modern comfort en internationale verbondenheid. De bruisende gemeenschap, het rijke culturele aanbod en maatwerk dienstverlening voldoen aan de wensen van internationale kopers en gezinnen die exclusiviteit zoeken.