Baerz & Co is een landelijk samenwerkingsverband van zorgvuldig geselecteerde boutique luxury makelaars. Samen vormen wij één netwerk, met één gedeeld aanbod. De woningen die u op onze website ziet, zijn afkomstig van alle aangesloten kantoren binnen Baerz & Co. Daardoor is niet ieder object rechtstreeks door ons kantoor in verkoop, maar door een gespecialiseerde collega binnen ons netwerk. Heeft u een woning gevonden die u aanspreekt en wilt u meer informatie? Dan brengen wij u graag persoonlijk in contact met de betreffende verkoopmakelaar, zodat u direct en zorgvuldig wordt begeleid.

THORN
Trippaardstraat 33 - 6017 AM
Nederland

Jeanette van Haaften profile image
Jeanette van Haaften
Real Estate Agent
€700.000 k.k.
Woonoppervlakte
232m2
Perceeloppervlakte
655m2
Slaapkamers
4

Omschrijving

JACK FRENKEN EXCLUSIEF

Het pittoreske witte stadje Thorn ademt cultuurhistorie. Wandelend langs de imposante Stiftskerk en de vele waardevolle panden in het oude centrum waant u zich in de Middeleeuwen. Thorn heeft zijn authentieke sfeer en historische charme weten te behouden, en wordt omringd door natuur en water – een perfecte plek voor iedereen die rust, schoonheid en karakter waardeert.

In het hart van dit historische centrum ligt deze prachtige woning, ideaal voor wie wonen wil combineren met B&B-mogelijkheden. Hier geniet u van alles wat Thorn te bieden heeft, binnen handbereik.

Indeling & Inrichting

Kelder:
Een koele provisiekelder, perfect voor uw wijncollectie of voorraad. Extra aansluiting aanwezig voor de wasmachine.

Begane grond:
De royale hal met schouw en meterkast geeft toegang tot de toiletruimte, een slaapkamer met aparte badkamer en de keuken. Vanuit de hal bereikt u ook de trap naar de eerste verdieping. De hal is tevens de voormalige zitkamer van de B&B. Deze ruimte kan dienst doen voor verschillende doeleinden.

De ruime en lichte woonkamer (± 56 m²) biedt optimaal tuincontact dankzij de grote raampartijen aan de zijkant en dubbele openslaande deuren aan de achterzijde. De woonkamer is verdeeld in een gezellige zithoek met open haard en een apart eetgedeelte, ideaal voor diners met familie en vrienden. De moderne vloertegels en strakke stucwanden geven de ruimte een tijdloze uitstraling.

De opkamer op de begane grond is multifunctioneel en ook vanuit de woonkamer bereikbaar. De houten plankenvloer geeft deze ruimte een warme uitstraling.

De royale woonkeuken (± 21 m²) is een droom voor iedere kookliefhebber. Deze luxe aanbouwkeuken in lichte tinten is volledig uitgerust met koelkast, 6-pits kookplaat, oven, magnetron, afzuigkap en vaatwasser. Hier geniet u met gemak van heerlijke maaltijden. De keukenvloer is afgewerkt met dezelfde fraaie tegels als in de woonkamer.

Verder bevindt zich op de begane grond nog een extra slaapkamer en een tweede badkamer, voorzien van douche en wastafel.

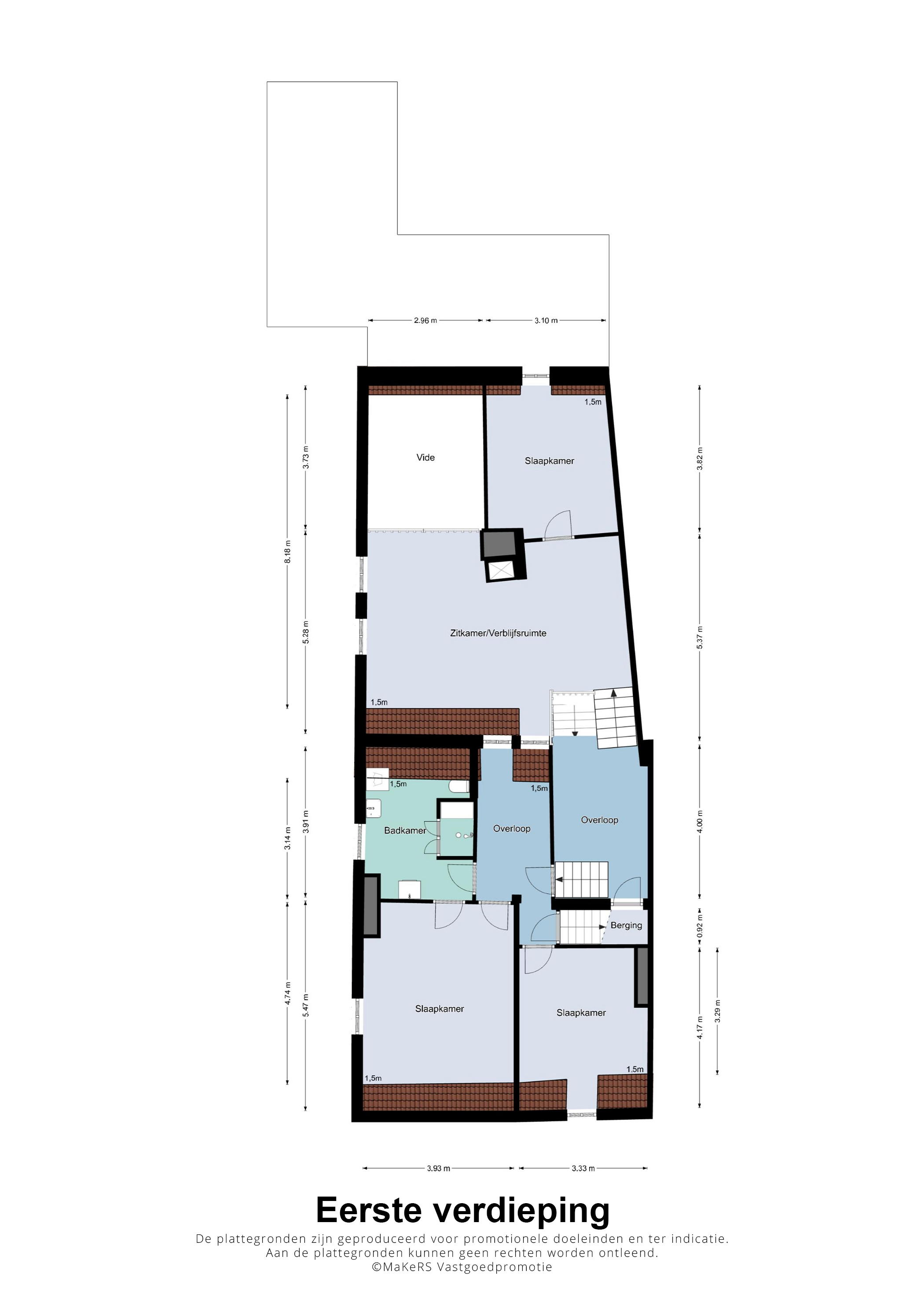
Eerste verdieping:
De eerste verdieping is via twee aparte trappen te bereiken, ideaal voor een B&B-indeling. Hier bevinden zich:

Drie slaapkamers (± 12,6, 21,6 en 11,4 m²)

Luxe, vrijwel geheel betegelde badkamer met wastafel, toilet en douchecabine, inclusief wasmachine-aansluiting.

Gezellige zitkamer/verblijfsruimte (± 34 m²) met plankenvloer en open haard, een heerlijke plek om te ontspannen.

Tweede verdieping:
Bereikbaar via een vaste trap, momenteel in gebruik als bergzolder. Hier bevinden zich tevens de cv-ketel en de boiler.

Buitengedeelte:
De tuin sluit naadloos aan bij de woning en biedt volop privacy, ondanks de centrale ligging in het historische centrum. De achtertuin is via een eigen achterom bereikbaar en ingericht met meerdere terrasjes – waarvan één overdekt – een gazon en sfeervolle borders.

Vrijstaande garage (± 22,7 m²):
Voorzien van openslaande deuren en praktische bergzolder, ideaal voor opslag of hobbyruimte.

Kenmerken

Overdracht
Vraagprijs
€ 700.000 k.k.
Status
beschikbaar
Aanvaarding
in overleg
Bouw
Soort woonhuis
Eengezinswoning
Soort bouw
halfvrijstaande woning
Bouwjaar
1700
Energieklasse
D
Soort dak
samengesteld dak
Slaapkamers
4
Badkamers
2
Oppervlakten en inhoud
Woonoppervlakte
232 m2
Overige inpandige ruimte
14 m2
Gebouwgebonden buitenruimte
20 m2
Externe bergruimte
17 m2
Inhoud
947 m3
Perceeloppervlakte
655 m2
faciliteiten
Aan rustige weg
In centrum
Baerz & Co Property Brochure

Brochure

Video’s

Plattegronden

Bijzonder Wonen Makelaardij

Heilige Geeststraat, 11
5301CP Zaltbommel

info@bijzonderwonen.com
+31 41 868 00 50

www.bijzonderwonen.com

Informatie / bezichtigingsaanvraag

Jeanette van Haaften profile image
Jeanette van Haaften
Real Estate Agent

Een luxe woning kopen in Thorn

Thorn biedt een unieke mix van erfgoed, cultuur en rust. De stijlvolle woningen, hechte gemeenschap en hoogwaardige voorzieningen maken het aantrekkelijk voor internationale kopers die waarde hechten aan discretie en verfijning.