Ons kantoor is lid van Baerz & Co Luxury Homes; een internationaal platform dat exclusieve woningmakelaars met elkaar verbindt. Neem contact op met ons secretariaat voor meer informatie over het landelijke aanbod, waarvan u hieronder een selectie kunt bekijken.

ROTTERDAM
Kralingseweg 438 - 3066 RD
Nederland

Jeanette van Haaften profile image
Jeanette van Haaften
Real Estate Agent
€1.500.000 k.k.
Woonoppervlakte
281m2
Perceeloppervlakte
985m2
Slaapkamers
4

Omschrijving

Een droomhuis! Gelegen op een historische en landelijke locatie, bereikbaar via een sfeervolle toegangsbrug, staat dit charmante vrijstaande woonhuis uit 1900 op een royaal perceel van bijna 1.000 m² eigen grond mét volop parkeergelegenheid.

Achter de klassieke gevel schuilt meer dan je op het eerste gezicht zou vermoeden. Wat deze woning echt bijzonder maakt, is het volledig gerenoveerde achterhuis: een voormalige schuur die in 2019 is getransformeerd tot een volwaardig onderdeel van het woonprogramma, ideaal als mantelzorgunit, zorgwoning, kantoor aan huis of gastenverblijf. Via doorgangen op zowel de begane grond als de eerste verdieping sluit deze prachtige ruimte naadloos aan op het voorhuis. Met een lichte leefkeuken beneden en een royale slaapkamer of werkkamer boven, biedt dit extra volume volop mogelijkheden voor comfortabel en flexibel wonen.

De fraai aangelegde en perfect onderhouden tuin rondom het huis straalt rust, gezelligheid en privacy uit. Dankzij de gunstige ligging geniet je hier de hele dag van de zon. De sfeer doet denken aan een mediterrane vakantiebestemming maar niets is minder waar, dit is Rotterdam! Een oase van rust, midden in de stad.

Het voorhuis ademt karakter en charme. Originele details, een royale en lichte woonkamer, een luxe keuken en meerdere ruime slaapkamers maken dit huis compleet. Bovendien is het volledig gasloos en voorzien van energielabel A en daarmee duurzaam én toekomstbestendig.

De ligging is zeer gunstig; het openbaar vervoer (metro naar het centrum van Rotterdam in ca. 10 minuten), winkels voor de dagelijkse boodschappen, het Kralingse Bos, het Prinsenpark en de uitvalswegen A16 en A20 zijn allemaal op korte afstand te vinden.

Indeling:
Begane grond:
Entree aan de zijkant van het huis, ruime hal met toiletruimte, garderobe en trapopgang, sfeervolle tussenkamer met glas-in-loodramen kastruimte en een deur naar de keuken, royale brede woonkamer met ramen aan drie zijden die voor veel licht zorgen, een fraaie houten vloer, hoge plafonds en een prachtig uitzicht, onder de zitkamer is tevens ook nog een (wijn)kelder met daglicht toetreding aanwezig. De glas-in-loodseparatie leidt eveneens naar de keuken, voorzien van een keukenblok en openslaande deuren naar de zijtuin en een deur naar de kelder. Vanuit deze keuken is er toegang tot de bijkeuken met wasruimte en warmtepomp installatie. Deze bijkeuken biedt op haar beurt toegang tot de prachtige zeer royale en tuingerichte woonkeuken in het achterhuis met trapopgang naar de verdieping, een eigen toilet, een vide, hoog plafond, grote raampartijen en openslaande deuren naar de tuin.

Eerste verdieping:
Bereikbaar vanuit zowel het voor- als het achterhuis.
Overloop voorhuis, 2 ruime slaapkamers aan weerszijde van de overloop, de royale hoofdslaapkamer aan de voorzijde is voorzien van een privé badkamer, uitgerust met een ligbad, royale inloopdouche, wastafel en toilet.
Overloop achterhuis met openslaande deuren en een vide. Ruime slaapkamer met toegang tot een tweede badkamer voorzien van de toilet, inloopdouche en een dubbele wastafel. Deze badkamer biedt ook toegang tot een slaapkamer in het voorhuis.

De indeling leent zich uitstekend voor een moderne kangoeroewoning: samenwonen met ouders of volwassen kinderen, mét behoud van eigen ruimte.

Tuin:
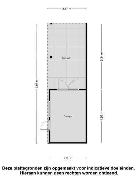
De voortuin is fraai aangelegd met hagen, grindpaden en diverse beplanting. Een zijtuin met oprijlaan biedt parkeergelegenheid op eigen terrein, een carport met een laadpaal en een ruime berging. De andere zijtuin en de achtertuin vormen samen een prachtig hoofdtuingedeelte. Achter in de tuin is een voedselbos aangelegd met fruitbomen, kruiden en zacht fruit. Deze tuin is onder architectuur aangelegd en biedt veel privacy en diverse zonnige zitplekken.

Bijzonderheden;
- bouwjaar 1900
- transformatie van schuur naar achterhuis 2019
- gebruiksoppervlakte wonen: ca. 281 m² (conform NEN2580)
- overige inpandige ruimte: ca. 32 m² (conform NEN2580) verdeeld over 2 kelders
- externe bergruimte: ca. 13 m²
- energielabel A
- centrale verwarming en warm water via warmtepomp, boiler en airco-units (2019)
- maar liefst 40 zonnepanelen
- elektrische laadpaal onder de carport
- twee badkamers waarvan één uit 2020
- volledig voorzien van HR++ glas (op enkele stalen stalraampjes en 3 glas in lood ramen na)
- gedeelde toegangsbrug
- geschikt voor kangoeroewonen / dubbele bewoning
- zelfstandige wooneenheid met eigen voorzieningen
- ideale mantelzorgwoning met eigen entree en woonprogramma
- gelegen op 985 m² eigen grond

Oplevering: In overleg, kan direct.

Voor aanvullende informatie over deze woning kunt u de eigen website (adres+huisnummer) bezoeken.

J.J. van Oosten Makelaardij is de NVM-makelaar van de verkoper. Wij adviseren u uw eigen NVM-makelaar in te schakelen om uw belangen te behartigen bij de aankoop van dit object.

Aan deze aanbiedingstekst kunnen geen rechten worden ontleend.

De gebruiksoppervlakte van de woning is opgemeten conform de branchebrede meetinstructie (BBMI). De BBMI is gebaseerd op de NEN2580. De BBMI is bedoeld om een meer eenduidige manier van meten toe te passen voor het geven van een indicatie van de gebruiksoppervlakte. De meetinstructie sluit verschillen in meetuitkomsten niet volledig uit, door bijvoorbeeld interpretatieverschillen, afrondingen of beperkingen bij het uitvoeren van de meting.

Kenmerken

Overdracht
Vraagprijs
€ 1.500.000 k.k.
Status
verkocht onder voorbehoud
Aanvaarding
in overleg
Bouw
Soort woonhuis
Villa
Soort bouw
vrijstaande woning
Bouwjaar
1900
Energieklasse
A
Soort dak
zadeldak
Slaapkamers
4
Badkamers
2
Oppervlakten en inhoud
Woonoppervlakte
281 m2
Overige inpandige ruimte
32 m2
Externe bergruimte
13 m2
Inhoud
1162 m3
Perceeloppervlakte
985 m2
faciliteiten
Aan rustige weg
In woonwijk
Baerz & Co Property Brochure

Brochure

Video’s

Plattegronden

Bijzonder Wonen Makelaardij

Heilige Geeststraat, 11
5301CP Zaltbommel

info@bijzonderwonen.com
+31 41 868 00 50

www.bijzonderwonen.com

Informatie / bezichtigingsaanvraag

Jeanette van Haaften profile image
Jeanette van Haaften
Real Estate Agent

Een luxe woning kopen in Rotterdam

Rotterdam biedt verfijnd stedelijk wonen voor een internationale doelgroep, met uitzonderlijke mogelijkheden op cultureel, zakelijk en maatschappelijk vlak. Inwoners profiteren van eersteklas service, kenmerkende woningen en een wereldwijd verbonden stedelijk leefklimaat.