Ons kantoor is lid van Baerz & Co Luxury Homes; een internationaal platform dat exclusieve woningmakelaars met elkaar verbindt. Neem contact op met ons secretariaat voor meer informatie over het landelijke aanbod, waarvan u hieronder een selectie kunt bekijken.

Villa te koop in ROTTERDAM

ROTTERDAM Hilleniussingel 25 - 3054 EX Nederland


Joris van Oosten profile image
Joris van Oosten
Real Estate Agent
+31 6 42 19 84 37
info@vanoostenmakelaardij.nl

J.J. Van Oosten Makelaardij BV
Straatweg 225
3054 AG Rotterdam
NETHERLANDS
+31 10 422 11 00
www.vanoostenmakelaardij.nl
info@vanoostenmakelaardij.nl

Woonoppervlakte
253m2
Perceeloppervlakte
220m2
Slaapkamers
5

Omschrijving

Wonen in een voormalig schoolgebouw in hartje Hillegersberg

Een verborgen parel in de historische dorpskern van Hillegersberg: de helft van een karakteristiek schoolgebouw (bouwjaar 1911/1928) op eigen grond. Met een woonoppervlak van ca. 253 m² biedt dit bijzondere pand volop ruimte en sfeer. Wat ooit een school was, is door een binnenhuisarchitect en bouwkundige slim getransformeerd tot een inspirerend woonhuis. De huidige bewoners, twee fotografen, hebben daarop voortgebouwd en het pand op geheel eigen wijze verder vormgegeven. Het resultaat: een uniek familiehuis met hoge plafonds, royale ramen, verrassende zichtlijnen en een creatieve, warme woonbeleving.

Indeling
Aan de voorzijde ligt een groene, besloten tuin waar u in de ochtend- en middagzon kunt genieten van rust en privacy. Via een poort is er toegang tot het aangrenzende schoolplein, dat door de bewoners gebruikt mag worden als speelplek voor kinderen of voor gezellige borrels en barbecues met vrienden.

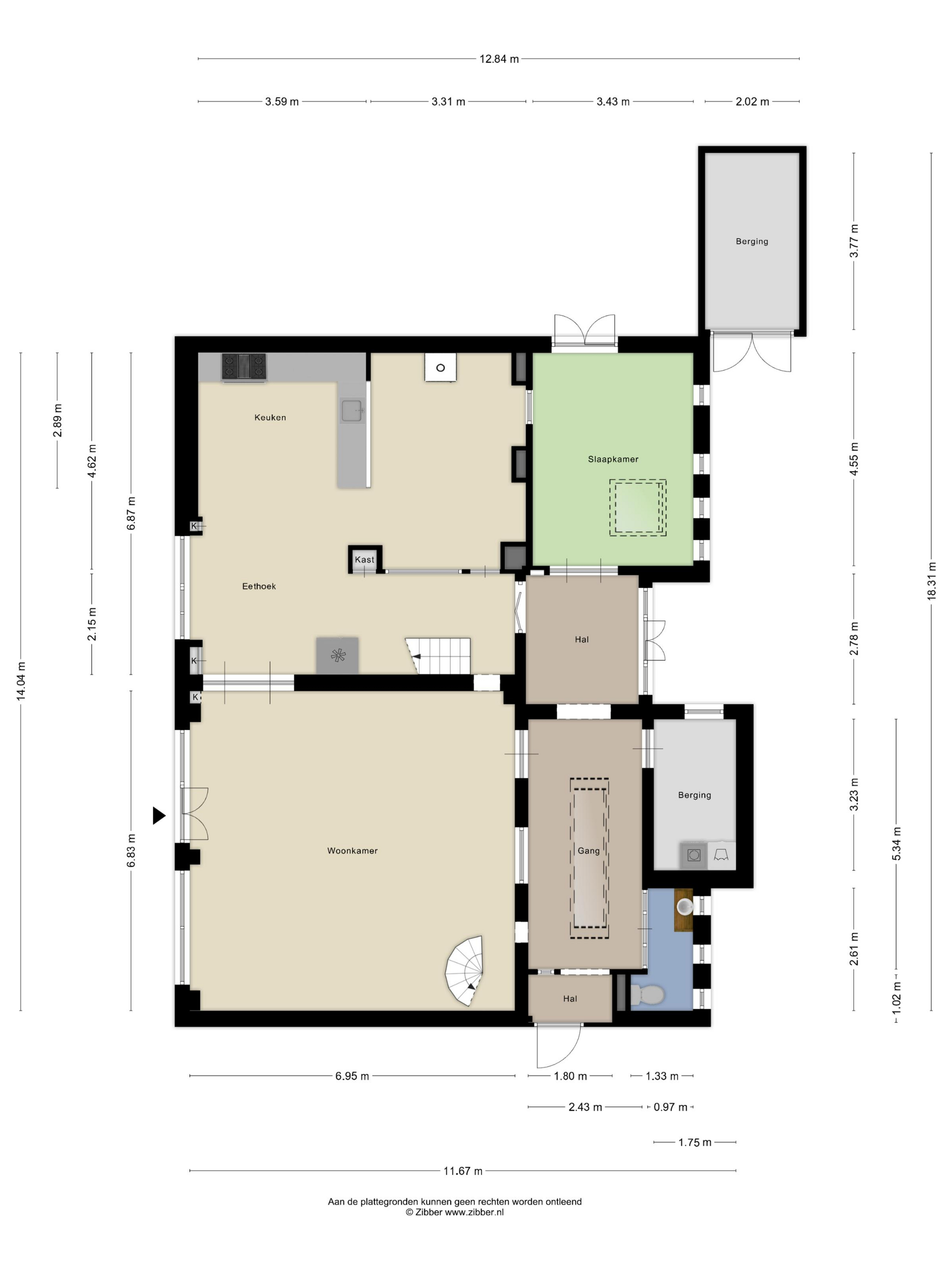
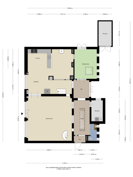
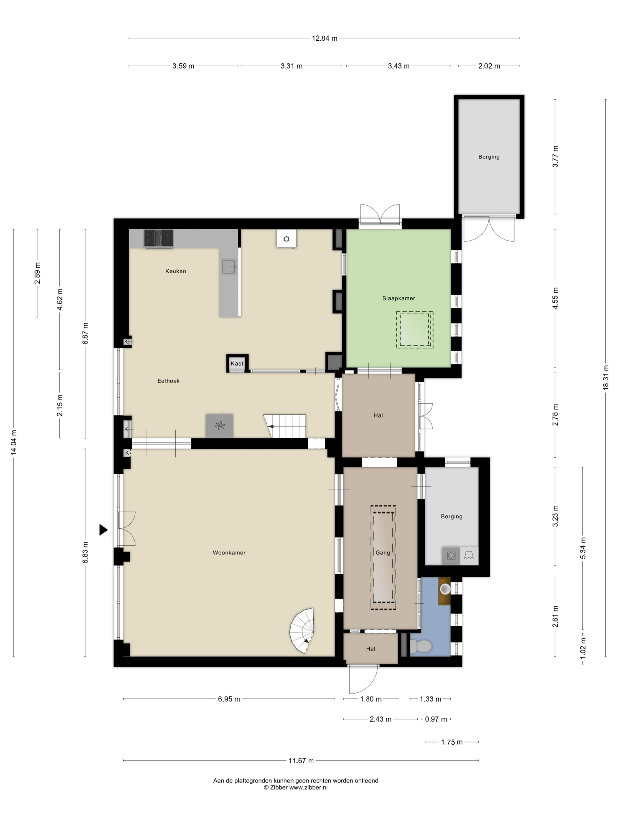
Binnen valt direct de woonkamer op: een indrukwekkende ruimte met hoogte, licht en karakteristieke details zoals hoge deuren en een opvallende wenteltrap. Aansluitend bevindt zich de leefkeuken, het hart van het huis, met een open haard, een knusse zithoek en volop ruimte om samen te koken en lang te tafelen.
Daarnaast is er een multifunctioneel atelier met veel licht en vloerverwarming, dat zich uitstekend leent als werkruimte, speelkamer of extra slaapkamer. Praktisch gemak vindt u in de ruime wasruimte en in de berging aan de achterzijde.

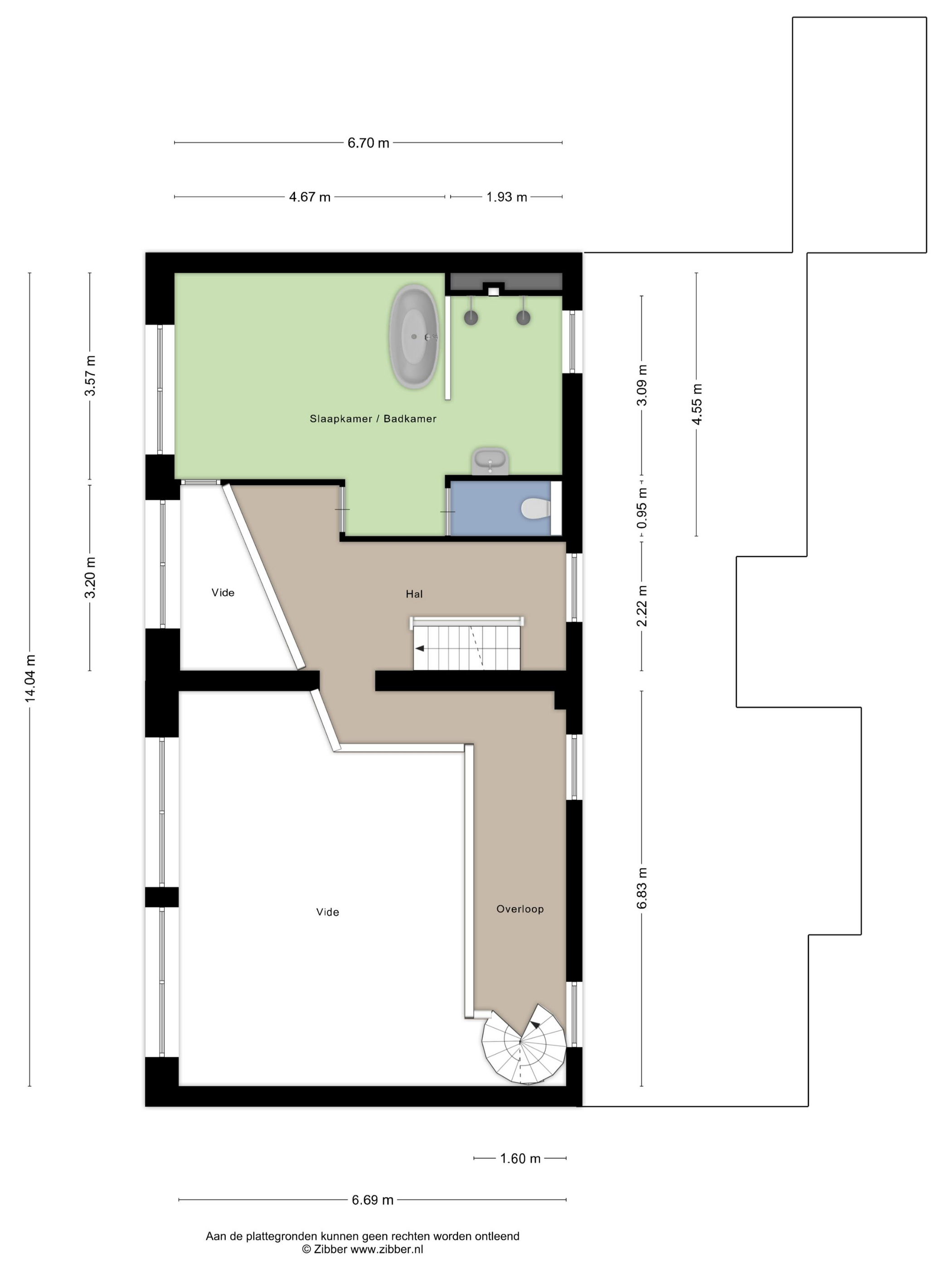
Op de eerste verdieping bevindt zich een royale slaapkamer met grote kasten, een apart toilet en een comfortabele badkamer met ligbad en dubbele douche.

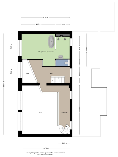
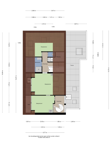
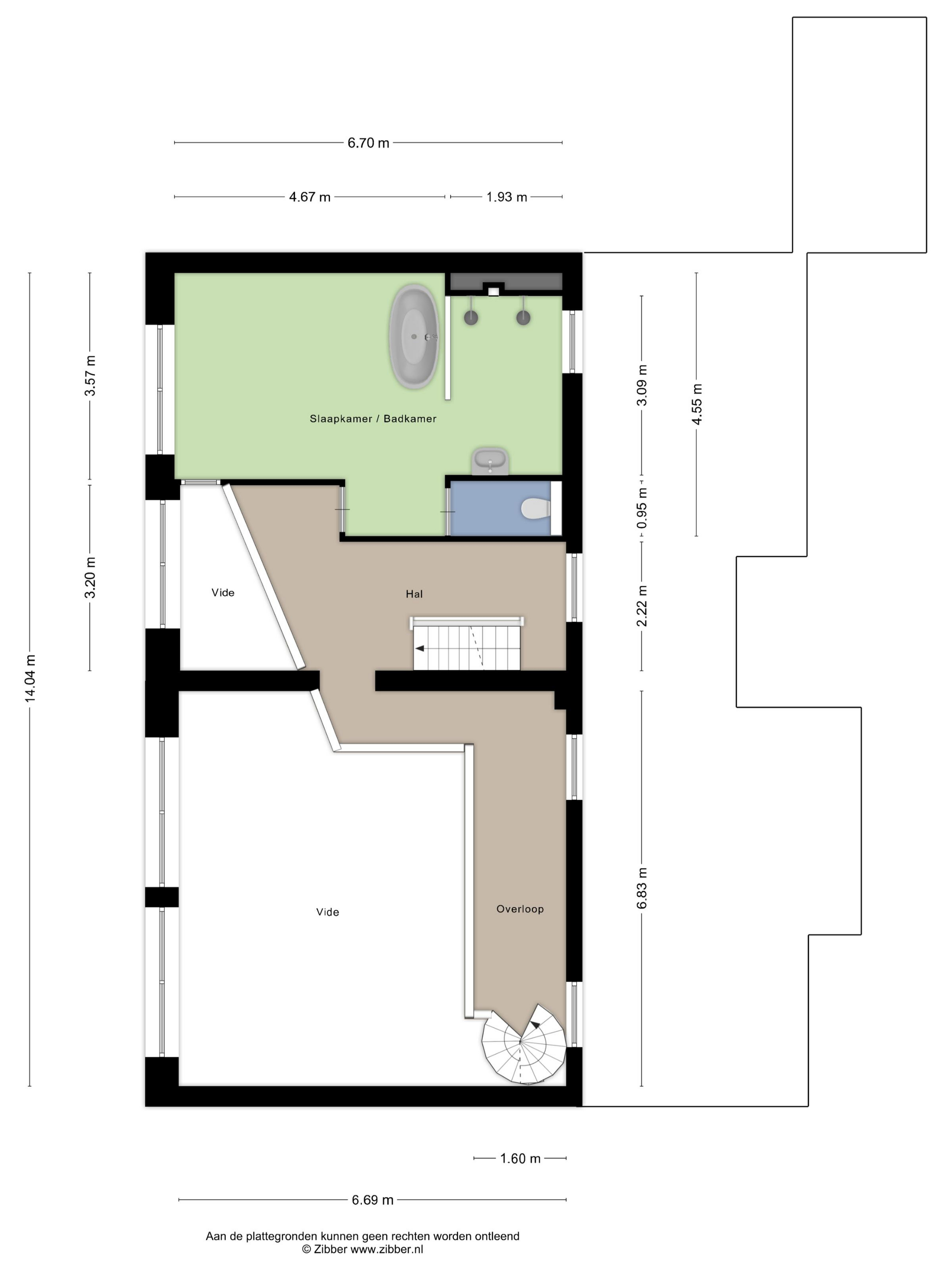
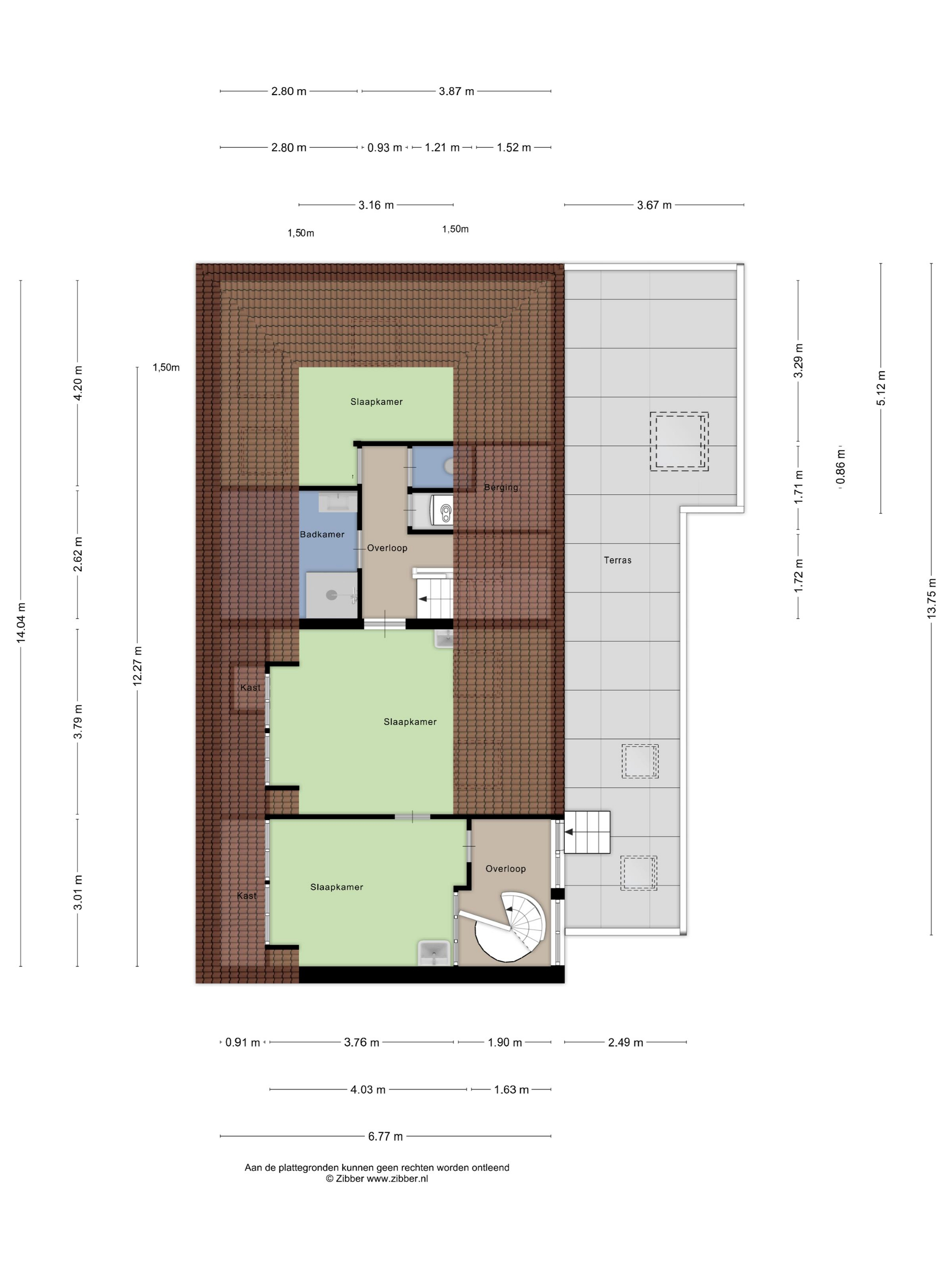
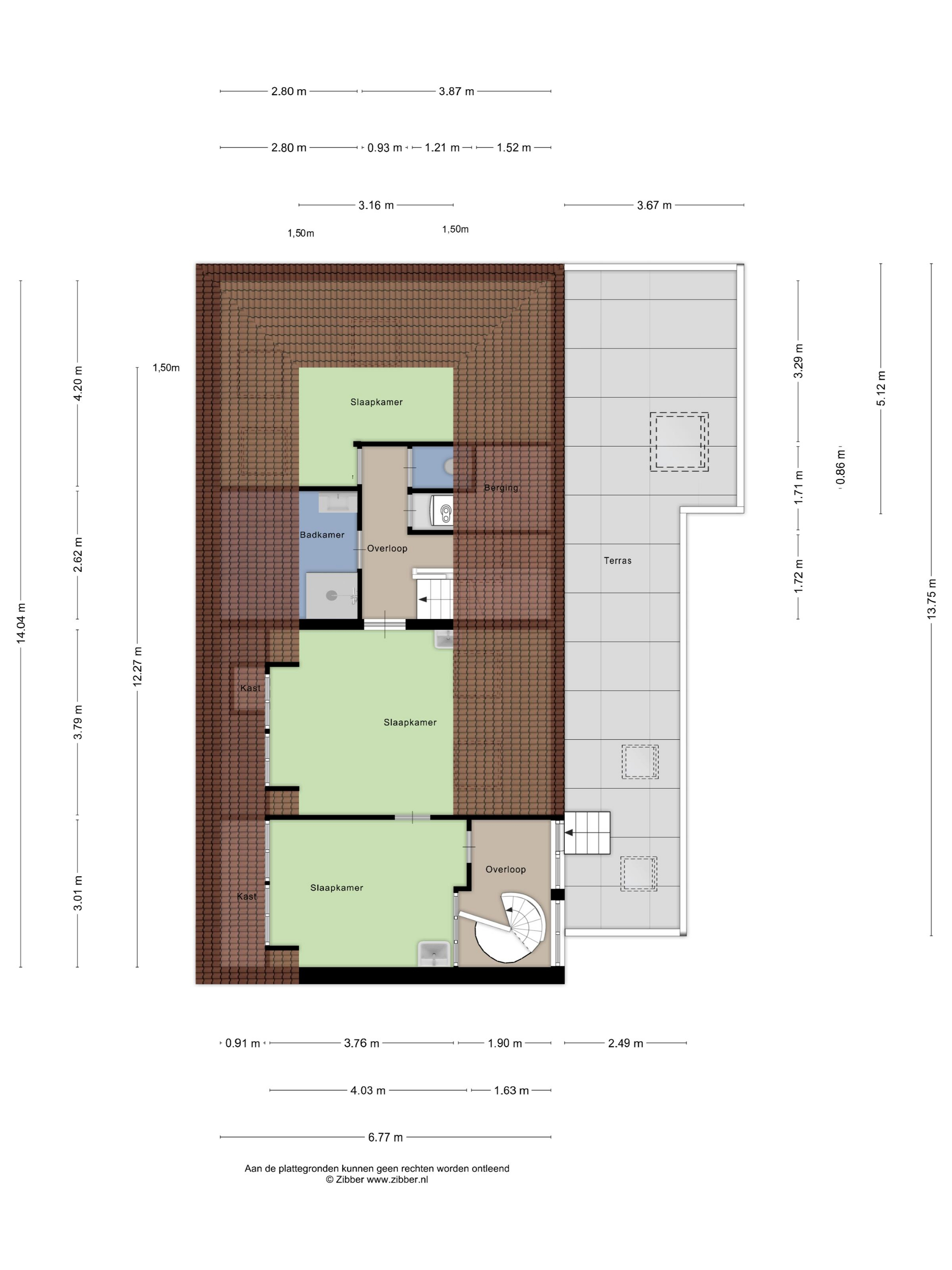
De tweede verdieping biedt drie slaapkamers, een tweede badkamer en nog een apart toilet; één van de kamers beschikt over airconditioning.

Tot slot is er een heerlijk dakterras aan de achterzijde, waar u vanaf de middag tot in de avond van de zon kunt genieten, een rustige plek midden in de stad.

Bijzonderheden
- Bouwjaar: 1911/1928
- Gelegen op ca 220 m² eigen grond
- Energielabel C
- Gebruiksoppervlakte wonen: ca. 253 m² (conform NEN2580)
- Gebouwgebonden buitenruimte: ca. 40 m² (conform NEN2580, dakterras)
- Geheel voorzien van hardhouten kozijnen
- Centrale verwarming en warm water via c.v.-combiketel
- In totaal 2 badkamers en 3 toiletten
- Multifunctioneel atelier/werkruimte op de begane grond
- Airconditioning aanwezig in één van de slaapkamers
- Toegang tot besloten schoolplein (alleen voor bewoners, geen spelende kinderen na 19.00 uur)
- Karakteristiek voormalig schoolgebouw met hoge plafonds en unieke indeling
- Ruime voortuin met veel privacy én zonnig dakterras aan de achterzijde

Oplevering in overleg.

Voor aanvullende informatie over deze woning kunt u de eigen website (adres+huisnummer) bezoeken.

J.J. van Oosten Makelaardij is de NVM-makelaar van de verkoper. Wij adviseren u uw eigen NVM-makelaar in te schakelen om uw belangen te behartigen bij de aankoop van dit object.

Aan deze aanbiedingstekst kunnen geen rechten worden ontleend.

De gebruiksoppervlakte van de woning is opgemeten conform de branchebrede meetinstructie (BBMI). De BBMI is gebaseerd op de NEN2580. De BBMI is bedoeld om een meer eenduidige manier van meten toe te passen voor het geven van een indicatie van de gebruiksoppervlakte. De meetinstructie sluit verschillen in meetuitkomsten niet volledig uit, door bijvoorbeeld interpretatieverschillen, afrondingen of beperkingen bij het uitvoeren van de meting.

Kenmerken

Overdracht
Vraagprijs
€ 1.075.000 k.k.
Status
beschikbaar
Aanvaarding
in overleg
Bouw
Soort woonhuis
Eengezinswoning
Soort bouw
geschakelde woning
Bouwjaar
1911
Energieklasse
C
Soort dak
schilddak
Slaapkamers
5
Badkamers
2
Oppervlakten en inhoud
Woonoppervlakte
253 m2
Overige inpandige ruimte
0 m2
Gebouwgebonden buitenruimte
40 m2
Externe bergruimte
6 m2
Inhoud
897 m3
Perceeloppervlakte
220 m2
faciliteiten
Mechanische ventilatie
Rookkanaal
Dakraam
Natuurlijke ventilatie
Aan rustige weg
In centrum
In woonwijk
Beschutte ligging
Baerz & Co Property Brochure

Brochure

Informatie / bezichtigingsaanvraag

Video's

Foto's

Plattegronden