Ons kantoor is lid van Baerz & Co Luxury Homes; een internationaal platform dat exclusieve woningmakelaars met elkaar verbindt. Neem contact op met ons secretariaat voor meer informatie over het landelijke aanbod, waarvan u hieronder een selectie kunt bekijken.

Herenhuis te koop in NIJMEGEN

NIJMEGEN Graadt van Roggenstraat 14 - 6522 AK Nederland


Freek van Camp profile image
Freek van Camp
Real Estate Agent
+31 6 55 70 03 60
f.van.camp@verbeek-makelaars.nl

Verbeek Makelaars
Mariaplein 6
6522 AV Nijmegen
NETHERLANDS
+31 24 22 00 111
www.verbeek-makelaars.nl
info@verbeek-makelaars.nl

Woonoppervlakte
256m2
Perceeloppervlakte
280m2
Slaapkamers
5

Omschrijving

Luxe en karaktervol herenhuis met energielabel A in Nijmegen-Oost!

Dit prachtige en luxe herenhuis is een woning die écht indruk maakt. De woning is compleet gerenoveerd in 2020, met behoud en restauratie van vele authentieke details zoals hoge plafonds met sierlijke ornamenten, en-suite deuren en glas-in-lood. Dit huis ademt sfeer en elegantie en is tegelijkertijd voorzien van modern wooncomfort. Met maar liefst vijf ruime slaapkamers, de mogelijkheid voor een zesde slaapkamer, twee badkamers, drie toiletten en een ruime kelder biedt deze woning alle ruimte die een gezin zich kan wensen. De statige dubbele voordeur, het brede balkon aan de voorzijde, de diepe en rustige achtertuin op het zuiden en de uitstekende staat van onderhoud geven dit huis een extra gevoel van grandeur en woonplezier. Dankzij de goede isolatie beschikt de woning over energielabel A en is het energiezuinig.

De ligging is minstens zo bijzonder. Aan de rand van het centrum, in de geliefde wijk Hunnerberg, woon je hier in een rustige en groene omgeving. Tegelijkertijd liggen de vele gezellige cafés en restaurants van Nijmegen-Oost én het stadscentrum op loopafstand. De diepe achtertuin op het zuiden is een groene en rustige plek waar je volop kunt genieten van de zon, terwijl de levendigheid van de stad letterlijk om de hoek ligt. Scholen, winkels en meerdere ziekenhuizen liggen op korte afstand, terwijl ook de natuur altijd dichtbij is met de Ooijpolder op loopafstand. De nabijheid van de N325 zorgt bovendien voor een snelle verbinding met de A15 en andere uitvalswegen. Kortom, een instapklare en unieke woning die de perfecte balans biedt tussen rust, ruimte, luxe en stadse levendigheid.

Indeling:

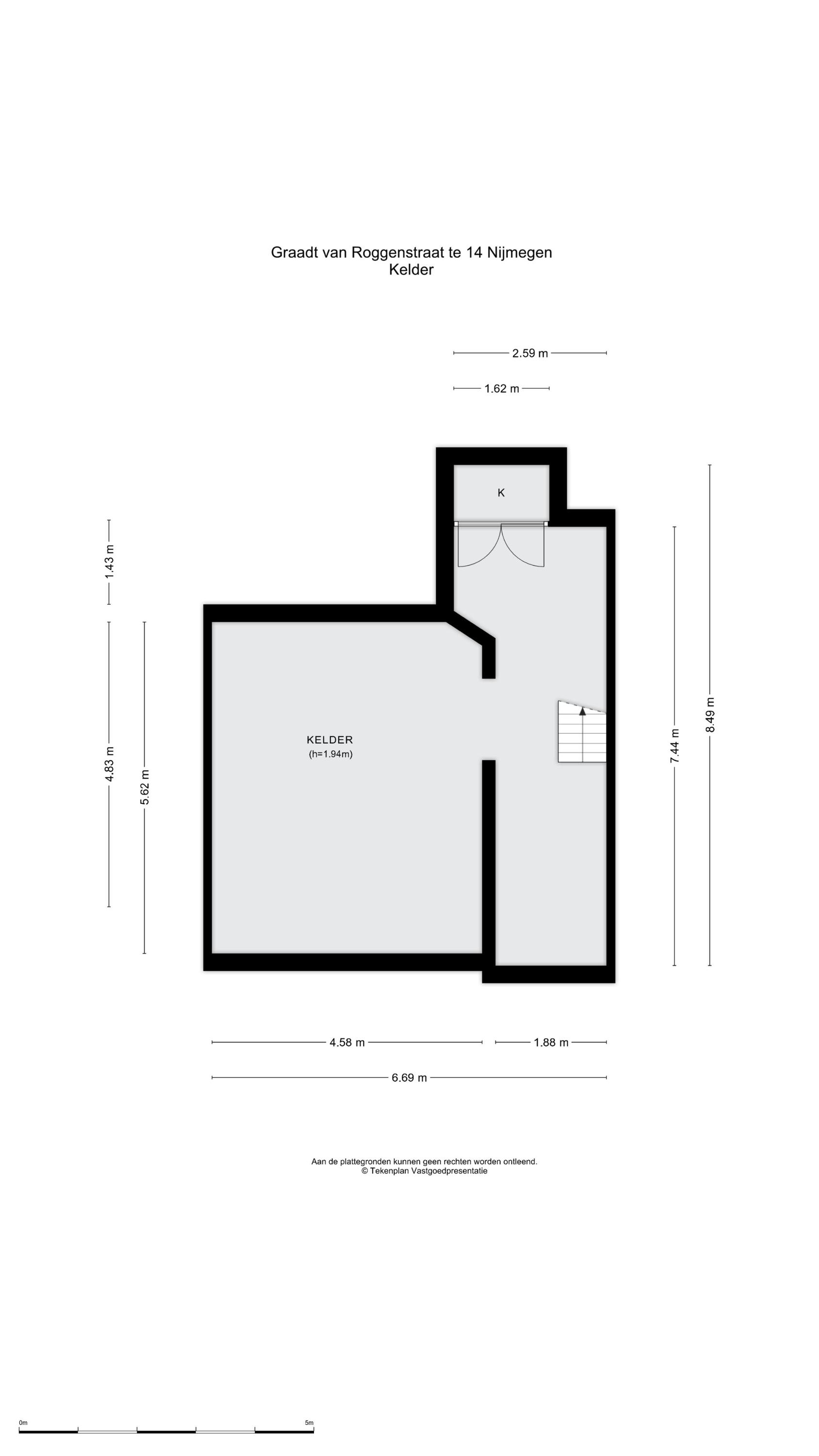
Kelder
De ruime kelder (ca. 44 m²) biedt veel bergruimte, is verdeeld in twee met elkaar verbonden ruimtes en heeft een vaste kast die nu als wijnkelder dient. De kelder is voorzien van verwarming en hier bevindt zich ook de waterontharder. Er is eerder een vergunning verkregen voor het bouwen van een keldertrap in de voortuin met aparte keldertoegang.

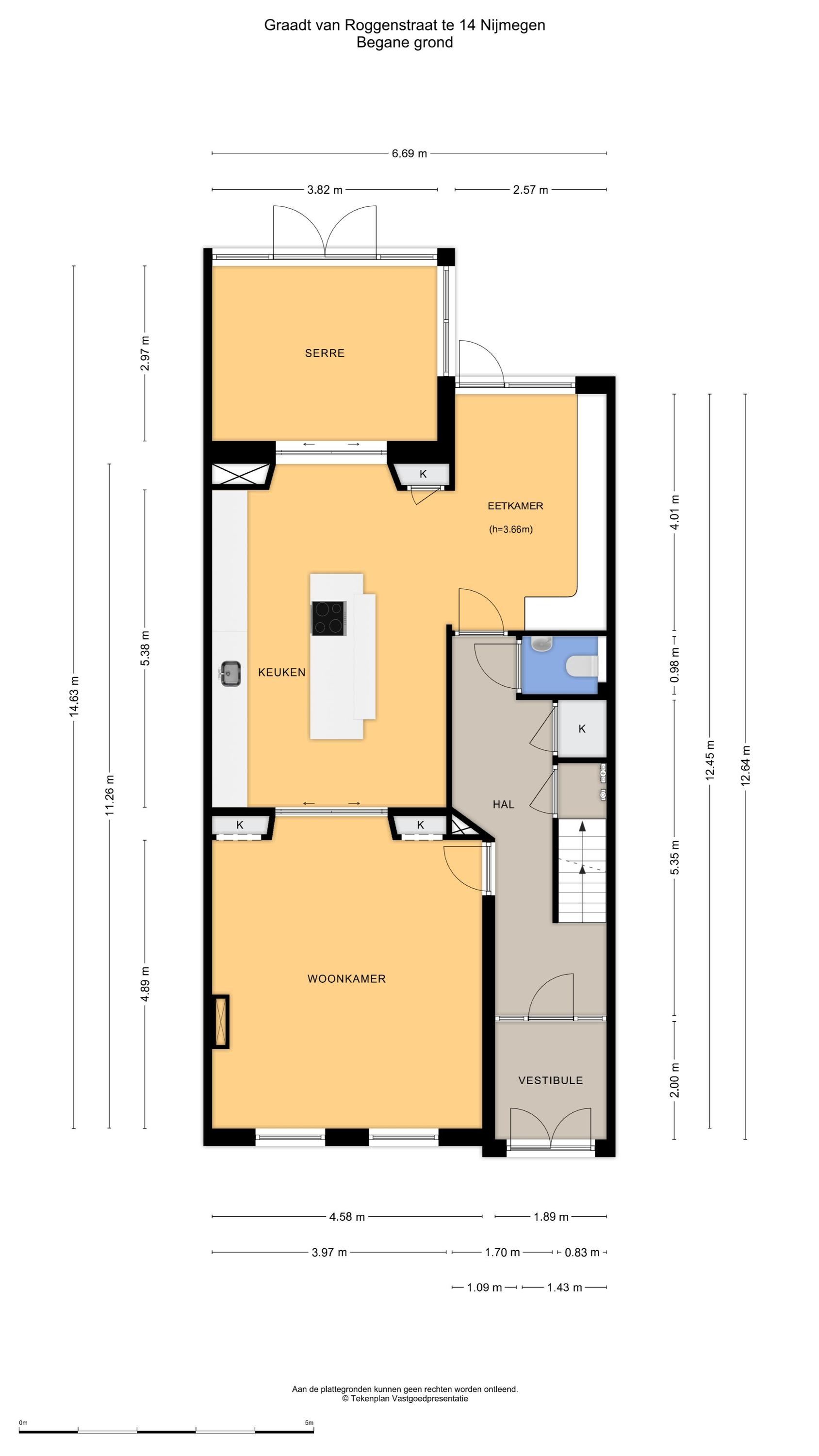
Begane grond
Via de statige dubbele voordeur is de vestibule bereikbaar, die leidt naar de hal met de trapopgang en toegang tot de kelder, het moderne toilet met fonteintje, de woonkamer aan de voorzijde en de eetkamer/keuken aan de achterzijde. De lichte woonkamer-en-suite heeft fraaie vaste kasten naast de en-suite deuren en een sfeervolle haard. De moderne open woonkeuken met kookeiland én bar is voorzien van luxe inbouwapparatuur (Neff), waaronder een wijnklimaatkast, Bora inductiekookplaat met ingebouwde afzuiging, twee ovens en een Quooker met kokend, gekoeld en bruiswater. Aangrenzend bevindt zich de eetkamer met een vaste bank die elegant in het interieur is verwerkt. Via de en-suite deuren bij de keuken is er toegang tot de ruime en lichte serre met openslaande deuren naar de zonnige achtertuin. Tevens is er nog een achterdeur bij de eetkamer. De woonkamer, eetkamer en keuken zijn voorzien van vloerverwarming.

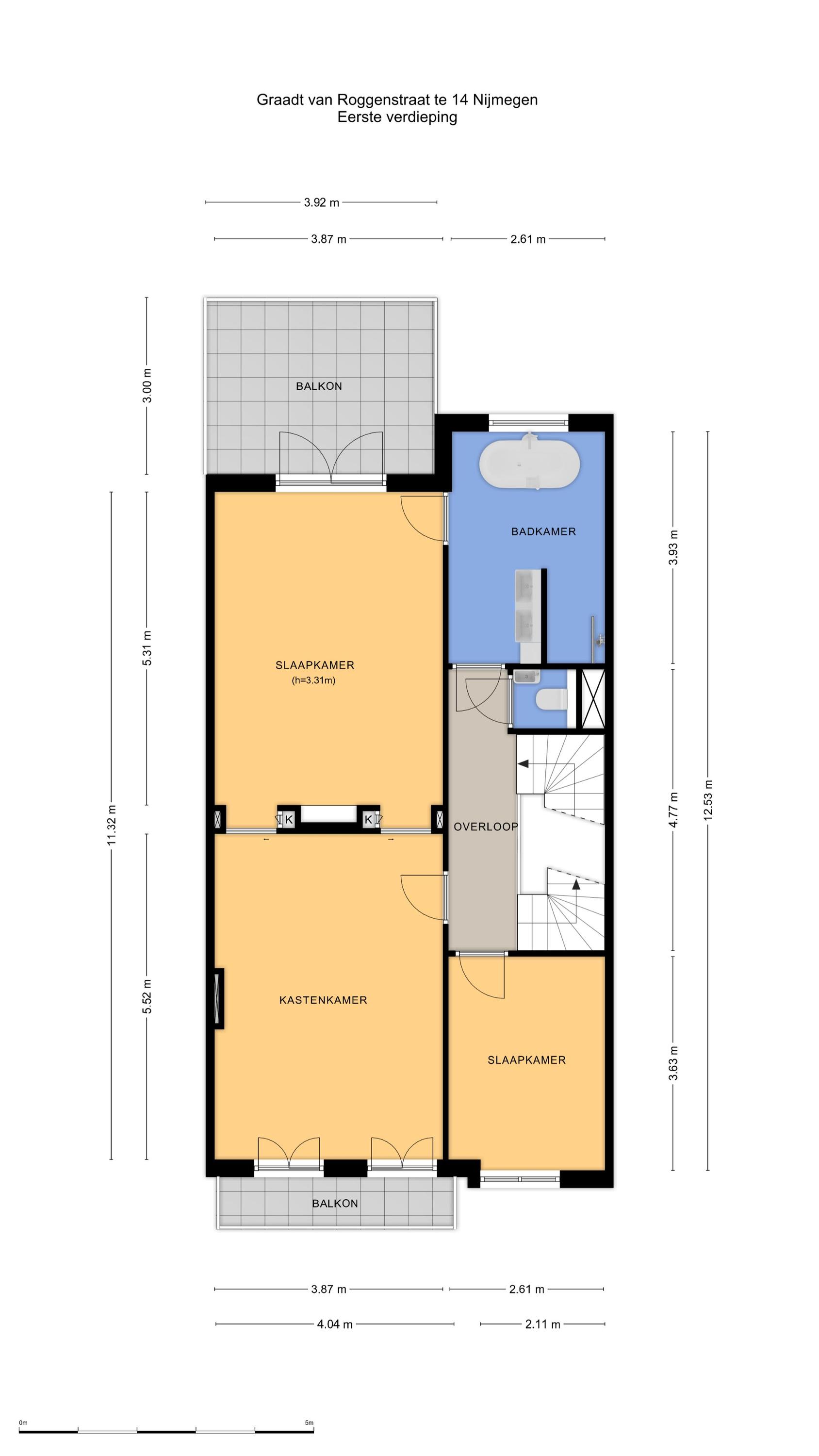
1e verdieping
Lichte overloop met vaste trap naar de bovenste verdieping. Op de eerste verdieping bevinden zich twee slaapkamers, een moderne badkamer en een separaat toilet met fonteintje. De masterbedroom heeft airconditioning en een riante walk-in closet, bereikbaar via twee schuifdeuren naast het bed. Aan de voorzijde ligt een breed balkon bij de walk-in closet en aan de achterzijde een ruim, zonnig dakterras bij de masterbedroom. Oorspronkelijk vormden de masterbedroom en walk-in closet twee aparte slaapkamers, deze indeling is weer eenvoudig terug te brengen. De tweede slaapkamer is ook voorzien van airconditioning. De luxe, moderne badkamer is zowel bereikbaar vanuit de masterbedroom als de overloop en beschikt over een vrijstaand ligbad, dubbele inloopdouche, dubbele wastafel in een badmeubel en vloerverwarming. Het toilet en de badkamer zijn voorzien van automatische mechanische ventilatie.

2e verdieping
Op de tweede verdieping bevindt zich een lichte overloop met daklicht, de tweede badkamer en een separaat toilet met fonteintje. Op de tweede verdieping bevinden zich drie ruime slaapkamers, elk voorzien van een wastafel en airconditioning. Één slaapkamer is tevens voorzien van ingebouwde (kleding)kasten. De moderne badkamer is uitgerust met een douche, wastafel, witgoedaansluitingen en vloerverwarming en is extra licht door het daklicht. Het toilet en de badkamer zijn voorzien van automatische mechanische ventilatie.

Tuin
De woning beschikt over een ruime voortuin en een verrassend ruime achtertuin, rustig en groen, op het zuiden gelegen en daardoor zonnig. Het grote grasveld maakt de tuin ideaal voor ontspanning, spel of tuinactiviteiten. Twee vaste kasten bieden praktische opbergruimte voor tuinspullen.

Bijzonderheden:
- Bouwjaar omstreeks 1896.
- De woning is geheel gerenoveerd in 2020. Denk hierbij aan volledige isolatie van het huis, vernieuwde en geïsoleerde daken, elektra, verwarming incl. ketel en het leidingwerk.
- Perceeloppervlak ca. 280 m².
- Woonoppervlak ca. 256 m².
- Overige inpandige ruimte (kelder) ca. 44 m².
- Gebouwgebonden buitenruimte ca. 15 m².
- Externe bergruimte ca. 2 m².
- Inhoud ca. 1.120 m³.
- De woning is volledig geïsoleerd.
- Energielabel A, geldig tot 18-05-2035.
- Voorbereidingen voor zonnepanelen en zonneboiler zijn al getroffen.
- De slaapkamers zijn voorzien van airconditioning die zowel kan verwarmen als koelen.
- Alle verdiepingen zijn voorzien van een houten parketvloer.
- De woning is in 2020 volledig verbouwd, met behoud van de oude details.
- Het dak is in 2021 vernieuwd, de meterkast in 2024.
- Het buiten schilderwerk en renovatie zijn uitgebreid gedaan aan het einde van de zomer van 2023.
- Er zijn bouwtekeningen beschikbaar van de, reeds vergunde, nog te bouwen keldertoegang, gemaakt door een architect.
- Stadsbeeldobject 19de-eeuwse stadsuitleg (beschermd stadsgezicht).
- In de koopakte wordt de ouderdomsclausule opgenomen.

Kenmerken

Overdracht
Vraagprijs
€ 1.375.000 k.k.
Status
beschikbaar
Aanvaarding
in overleg
Bouw
Soort woonhuis
Herenhuis
Soort bouw
tussenwoning
Bouwjaar
1896
Energieklasse
A
Soort dak
samengesteld dak
Slaapkamers
5
Badkamers
2
Oppervlakten en inhoud
Woonoppervlakte
256 m2
Overige inpandige ruimte
44 m2
Gebouwgebonden buitenruimte
15 m2
Externe bergruimte
2 m2
Inhoud
1120 m3
Perceeloppervlakte
280 m2
faciliteiten
Mechanische ventilatie
Tv kabel
Airconditioning
Glasvezel kabel
Domotica
Natuurlijke ventilatie
In woonwijk
Baerz & Co Property Brochure

Brochure

Informatie / bezichtigingsaanvraag

Video's

Foto's

Plattegronden