Baerz & Co is een landelijk samenwerkingsverband van zorgvuldig geselecteerde boutique luxury makelaars. Samen vormen wij één netwerk, met één gedeeld aanbod. De woningen die u op onze website ziet, zijn afkomstig van alle aangesloten kantoren binnen Baerz & Co. Daardoor is niet ieder object rechtstreeks door ons kantoor in verkoop, maar door een gespecialiseerde collega binnen ons netwerk. Heeft u een woning gevonden die u aanspreekt en wilt u meer informatie? Dan brengen wij u graag persoonlijk in contact met de betreffende verkoopmakelaar, zodat u direct en zorgvuldig wordt begeleid.

NEEDE
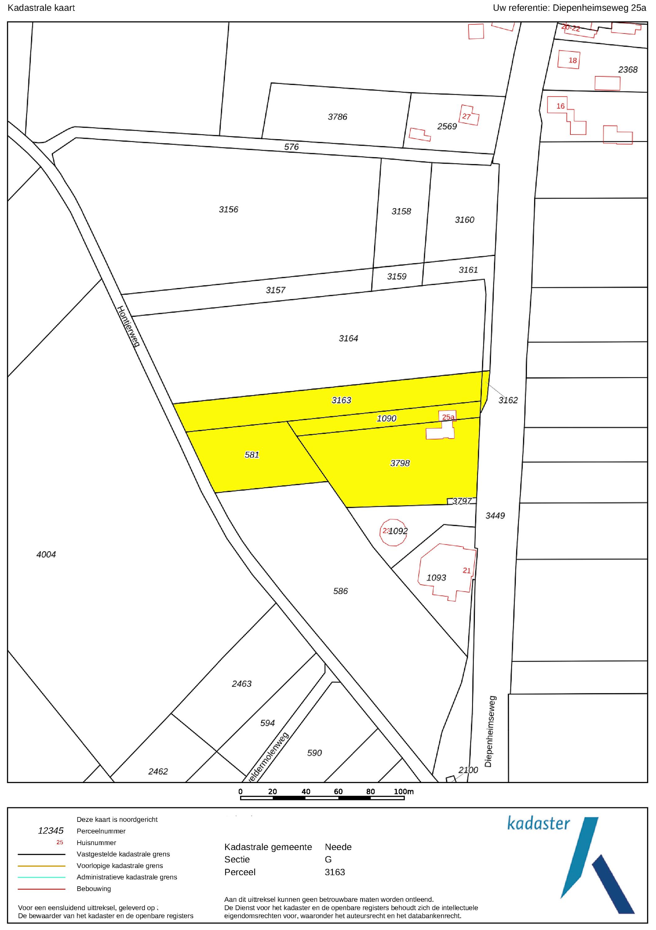
Diepenheimseweg 25 a - 7161 MH
Nederland

Jeanette van Haaften profile image
Jeanette van Haaften
Real Estate Agent
€1.495.000 k.k.
Woonoppervlakte
188m2
Perceeloppervlakte
11781m2
Slaapkamers
3

Omschrijving

Romantiek ten top, midden in de natuur - Markante villa op een ongekend mooie plek

Vogelaars en natuurliefhebbers, dít is ‘m, hoor! Boven op de Needse Berg staat deze markante villa; de dubbele kappen en de lichte gevels zijn niet te missen wanneer u Lochuizen passeert. Deze ruime villa, met een woonoppervlak van zo’n 188 m², biedt maar liefst drie slaapkamers, een ruime badkamer en is goeddeels onderkelderd. Ook qua duurzaamheid zit het wel snor met dit heerlijke huis; de isolatie is top-notch, dankzij de warmteterugwininstallatie en vloerverwarming wordt er efficiënt gestookt en de maandelijkse energienota is derhalve mild.

We durven met de hand op ons hart te beweren dat deze plek enig in haar soort is; 36m boven N.A.P. torent het huis boven haar omgeving uit. En dat is een prachtige plek om te staan, want het huis - gebroederlijk gezeten naast de Hollansche Molen - geeft u een onvergelijkbaar 360º-uitzicht dat als een levend schilderij van uur tot uur van karakter wisselt. Die panoramische vergezichten beleeft u hier gewoon vanuit de keuken, met een warme cappuccino in de hand en de verrekijker op de neus.

Klaprozen en korenbloemen
Hier belééft u het land, het weer en de seizoenen, maar bovenal beleeft u hier de natuur. De huidige bewoners hebben zich er met hart en ziel voor ingezet om van dit domein een waar Hof van Eden te maken, met oog voor biodiversiteit én esthetiek. De kleurige borders zijn een gedicht van kleur en vorm door de tuin heen. Aan de achterzijde van de tuin is een halve hectare ingezaaid met wilde bloemen, en dat is iets spectaculairs; rond mei en juni is het hier een zintuigelijk feest van geur en kleur, door de vele duizenden korenbloemen, kamilleknoppen en klaprozen.

Dat is niet alleen mooi om te zien, het levert ook daadwerkelijk iets op; inmiddels woont hier een hele kolonie patrijsjes heel gemoedelijk en scharrelen rond door de hele tuin. Maar ook allerhande tuinvogels – de puttertjes hangen graag met een groepje de pias uit – en weidevogels hebben hier een veilig heenkomen. De avondschemer, die haast filmisch is door de weidsheid van het land, verandert de bosrand in groen fluweel, nodigt de reeën uit om lekker te gaan grazen op de essen en wordt regelmatig bezocht door de witte wieven, die zich vanuit het bos over het land uitstrekken.

Tussen Neede en Diepenheim
Het huis staat in Lochuizen, tussen Neede en Diepenheim, op de Needse berg. Verhalen vertelt dit gebied te over, van de Reus van Bambergen die hier zijn zak met zand verloor en zo de Needse berg maakte, tot de woudolifant, de ‘koelen’ die ontstaan zijn door de leemwinning en de rol van deze berg gedurende WOII… Alles heeft ze gezien en onverzettelijk is ze gebleven.

Het centrum van Neede, met gezellige winkelstraten, de bakker, slager en groenteman, en uiteraard de horeca, ligt op steenworpafstand. Door het kleurrijke textielverleden van dit plaatsje, staan er verspreid door Neede bijzonder fraaie en markante villa’s, waardoor het bekende Rondje Neede, dat langs dorp en natuur gaat, een heerlijk tijdverdrijf is.
Op acht autominuten vanaf het centrum van Diepenheim – liefkozend ’t Stedeke genoemd -, een kunstenaarsdorp in Twente, omringd door schitterende kastelen en landgoederen. Diepenheim is prachtig; de natuur is indrukwekkend en het culturele aanbod hoogstaand. Jaarlijks worden er kunstroutes, open ateliers en diverse culturele bijeenkomsten georganiseerd. In het centrum is er een theater (Herberg De Pol), een museum, een goed gesorteerde buurtsuper en de slager die werkelijk uit de kunst is!
Op tien minuten afstand vindt u plaatsen als Lochem, Borculo, Groenlo, Diepenheim, Eibergen en Haaksbergen. De grote stad, in de vorm van bijvoorbeeld Enschede en Hengelo, liggen op een ideale 20 minuten afstand (de N18 ligt vlakbij). De Achterhoek is het land van melk en honing; er zijn lokaal veel winkeltjes waar groente, vlees en zuivel direct van de bron verkrijgbaar zijn. Kortom, het leven is hier goed.

Kom binnen
De villa is geheel gelijkvloers ingericht, drempelloos en met extra brede deurposten. In het gemoedelijke oosten komen we natuurlijk graag achterom binnen, maar voor de vorm entree aan de voorzijde van het huis, in de royale en zonnige hal. Op de vloer ligt een fraaie, lichte keramische tegel die uitstekend samenwerkt met vloerverwarming. De plinten zijn door de woning heen geïntegreerd met de wanden, dus stoffige randen hebben hier geen kans. De architect had als missie een open, licht en zonnig huis te creëren en daar is hij uitstekend in geslaagd.
Rechts de living, met aan de voorzijde een grote halfronde glazen erker en een grote gashaard, die met één druk op de knop zorgt voor warmte en ambiance.

De keuken is open, maar door de ligging in het programma, met uitzicht op de tuin en het historische essenlandschap, wel een heel eigen sfeer. De fronten zijn walnootkleurig en het granieten werkblad is oersterk. Alles is er, van alles wenselijke inbouwapparatuur zoals afwasmachine, koelvriescombinatie en combimagnetron tot een Miele koffieapparaat waarmee u in een handomdraai koffie, cappuccino, latte en thee tevoorschijn tovert.
Aan de achterzijde van de woning is een overdekt terras gemaakt, bij de openslaande deuren; een heerlijke plek om de dag te besluiten. Hier staat ook een grote vaste parasol, om ook op warme dagen optimaal te kunnen genieten van de tuin.
Links de slaapkamer aan de voorzijde, nu in gebruik als studeerkamer en fitnessruimte.

Aansluitend de bijkeuken, met de aansluitingen voor wasmachine en -droger, de pantry, de deur naar de oprit en de toegang tot de kelder.

De kelder met een drive-in garage en een grote werkruimte meet een oppervlak van 75 m² en leent zich uiteraard prima voor het parkeren van de auto, fiets en grasmaaier, maar doordat de ruimte geïsoleerd is, kan hier ook met gemak de bioscoop worden ingericht, de langgewenste man-cave gerealiseerd – compleet met biljarttafel en bar, of de wellness worden ingebouwd, met sauna, dompelbad en douche.

Na de bijkeuken de tweede slaapkamer, met een magnifiek uitzicht op de molen en het dorp.

De ouderslaapkamer bevindt zich op de kop aan de achterzijde en heeft een prachtig uitzicht op de tuin en de es. Naast de kamer een grote badkamer, compleet met WC, dubbele wastafels, een douche met zitje en een heerlijke whirlpool. Voor uw garderobe is er een ruime inloopkast.

Naar buiten
… want daar ligt een indrukwekkende 1.2ha op u te wachten. Aan de voorzijde wordt het perceel ontsloten door een elektrisch hek, waardoor u zo de garage inrijdt. Bovengrond parkeren kan ook, want de oprit heeft plek voor zeker acht auto’s. Tevens is er een laadpaal, dus u rijdt altijd met een volle batterij weg.
De tuin is ingedeeld met een siertuin aan de voorzijde en zijkant, aan de achterzijde van het huis is er een moestuin. De achterzijde van het perceel is bedekt met tapijt aan veldbloemen, met margrieten, kamille, ooievaarsbek, zonnebloemen, korenbloemen en klaprozen in alle kleuren. Achter de tuin loopt het fietspad waar mensen geregeld de tijd nemen om even letterlijk stil te staan bij het prachtige uitzicht.
Nog een pluspunt: door de hoogte zult u hier niet snel natte voeten krijgen.

Kansen
Zoekt u ruimte voor bijvoorbeeld bedrijvigheid bij huis? Of heeft u de wens een grote garage bij huis te hebben? Er is al een vergunning verleend voor de gemeente voor de realisatie van een bijgebouw van 150 m².

Kortom
Deze villa is een walhalla voor vogelspotters en natuurliefhebbers; het zijn plekken als deze die daadwerkelijk een verschil maken voor de lokale flora en fauna. Bent u nieuwsgierig geworden naar het sprookje op de Needse berg? We nemen u graag mee voor een bezoek.

Bouwjaar : 2004
Onderhoud : Uitstekend
Isolatie : Volledig geïsoleerd
Verwarming : De gehele begane grond behoudens de hoofdslaapkamer en kleedkamer zijn geheel voorzien van vloerverwarming, middels Nefit HR combi-ketel
Ligging : Nabij de Needse molen, op nagenoeg het hoogste punt van Neede
Parkeren : op eigen terrein (laadpaal aanwezig) alsmede in de inpandige ondergrondse parkeergarage (40 m²).
Extra kansen : Op het terrein bestaat er de mogelijkheid tot het realiseren van een nieuw bijgebouw van 150 m² met een hoogte van 7 meter.

Inhoud : 1.050 m³
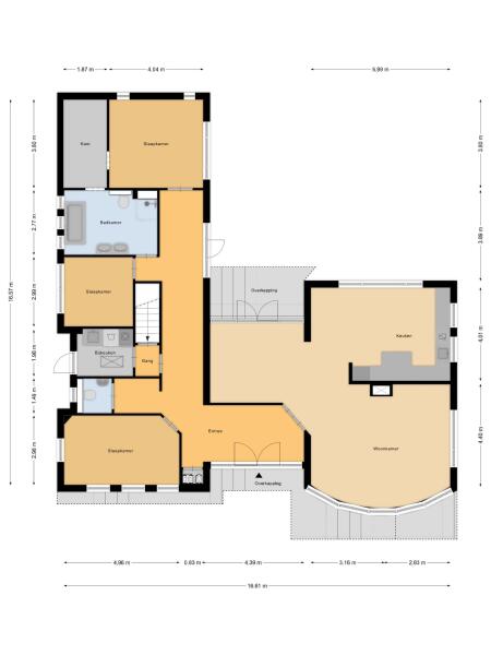
Woonoppervlakte : 188 m²
Overig inpandige ruimte : 95 m²
Gebouw gebonden buitenruimte : 27 m²
Perceeloppervlakte : 11.781 m²
Energielabel : Energieklasse A
Aanvaarding : In overleg

Deze woning wordt voorzien van een bouwtechnische keuring.

Kenmerken

Overdracht
Vraagprijs
€ 1.495.000 k.k.
Status
beschikbaar
Aanvaarding
in overleg
Bouw
Soort woonhuis
Landhuis
Soort bouw
vrijstaande woning
Bouwjaar
2004
Energieklasse
A
Soort dak
samengesteld dak
Slaapkamers
3
Badkamers
1
Oppervlakten en inhoud
Woonoppervlakte
188 m2
Overige inpandige ruimte
95 m2
Gebouwgebonden buitenruimte
27 m2
Inhoud
1050 m3
Perceeloppervlakte
11781 m2
faciliteiten
Mechanische ventilatie
Vrij uitzicht
Open ligging
Buiten bebouwde kom
Landelijk gelegen
Baerz & Co Property Brochure

Brochure

Video’s

360 Panorama’s

360°
360 Panorama - Diepenheimseweg 25 a
360°
360 Panorama - Diepenheimseweg 25 a
360°
360 Panorama - Diepenheimseweg 25 a
360°
360 Panorama - Diepenheimseweg 25 a

Plattegronden

Bijzonder Wonen Makelaardij

Heilige Geeststraat, 11
5301CP Zaltbommel

info@bijzonderwonen.com
+31 41 868 00 50

www.bijzonderwonen.com

Informatie / bezichtigingsaanvraag

Jeanette van Haaften profile image
Jeanette van Haaften
Real Estate Agent

Een luxe woning kopen in Neede

Neede trekt met haar rustige ligging, verfijnde woonaanbod en persoonlijke service een veeleisende internationale doelgroep. De balans van historie, privacy en cultuur maakt de regio geliefd bij kopers, eigenaars en adviseurs.