Baerz & Co is een landelijk samenwerkingsverband van zorgvuldig geselecteerde boutique luxury makelaars. Samen vormen wij één netwerk, met één gedeeld aanbod. De woningen die u op onze website ziet, zijn afkomstig van alle aangesloten kantoren binnen Baerz & Co. Daardoor is niet ieder object rechtstreeks door ons kantoor in verkoop, maar door een gespecialiseerde collega binnen ons netwerk. Heeft u een woning gevonden die u aanspreekt en wilt u meer informatie? Dan brengen wij u graag persoonlijk in contact met de betreffende verkoopmakelaar, zodat u direct en zorgvuldig wordt begeleid.

LISSE
Heereweg 304 - 2161 BV
Nederland

Jeanette van Haaften profile image
Jeanette van Haaften
Real Estate Agent
€1.695.000 k.k.
Woonoppervlakte
321m2
Perceeloppervlakte
610m2
Slaapkamers
4

Omschrijving

Dit zeer statige vrijstaande herenhuis (gemeentelijk monument) met inpandige grote garage en oprit voor 2 auto’s is geheel gerenoveerd met behoud van karakter. Kantoor of praktijk aan huis is mogelijk met eigen entree. Het ligt aan het meest geliefde stukje van de Heereweg, in het centrum van het dorp en is in 2018 zeer luxe verbouwd. De monumentale beukenbomen maken het gehele plaatje compleet. Het sfeervolle Vierkant met de vele terrassen, basisscholen en winkels zijn op loopafstand bereikbaar.

· Bouwjaar 1898 · Perceeloppervlakte: 610m² · Woonoppervlakte 321m², Overige inpandige ruimte 62m²
· Inhoud: 1.349m³

Begane grond:
Fraai portaal waarin de markant hoge voordeur, imposant lange hal met de gerestaureerde authentieke granitovloer, garderobe en toiletruimte en een deur naar de tuin. Links van de hal een zeer royale woon-/leefkeuken met luxe keukeninrichting in mat wit uitgevoerd, prachtig kook-/ en spoeleiland met houten eetbar en alle inbouwapparatuur o.a. een fraaie wijnkoeling. Ook een gezellige gashaard en de grote achterpui met veel glas en openslaande deuren naar de tuin ontbreken niet. Rechts van de hal is er een tv-/zitkamer met een gashaard en dubbele deuren die toegang geven tot de opkamer. Deze opkamer met een grote op maat gemaakte kastenwand is zeer geschikt als speel-/of werkkamer en heeft een trap naar de grote droge kelder met stahoogte. In het voormalige cellencomplex is een prachtige werkkamer gecreëerd, een bergkamer, een technische ruimte en is er één cel in originele staat behouden gebleven. De inpandig bereikbare garage is groot en o.a. voorzien van een elektrische segment deur met loopdeur en een vaste trap naar ruime bergzolder.

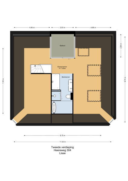
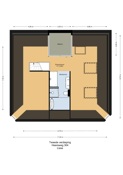
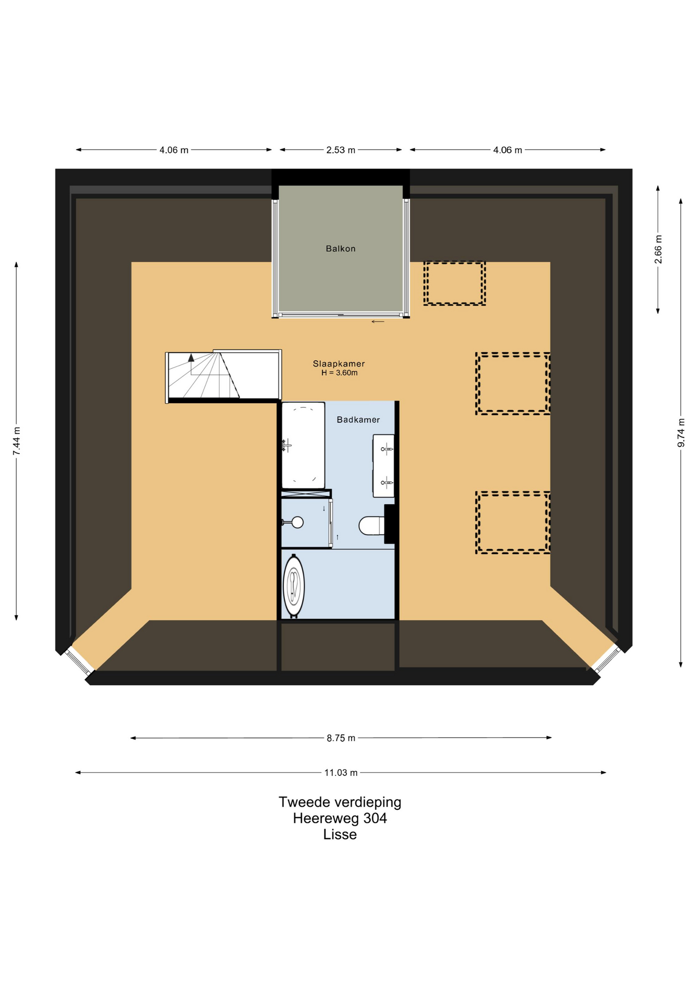
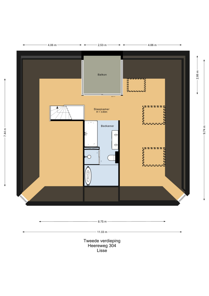
1e Etage:
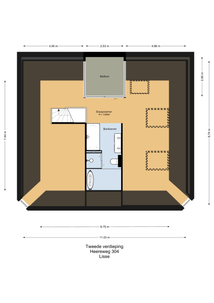
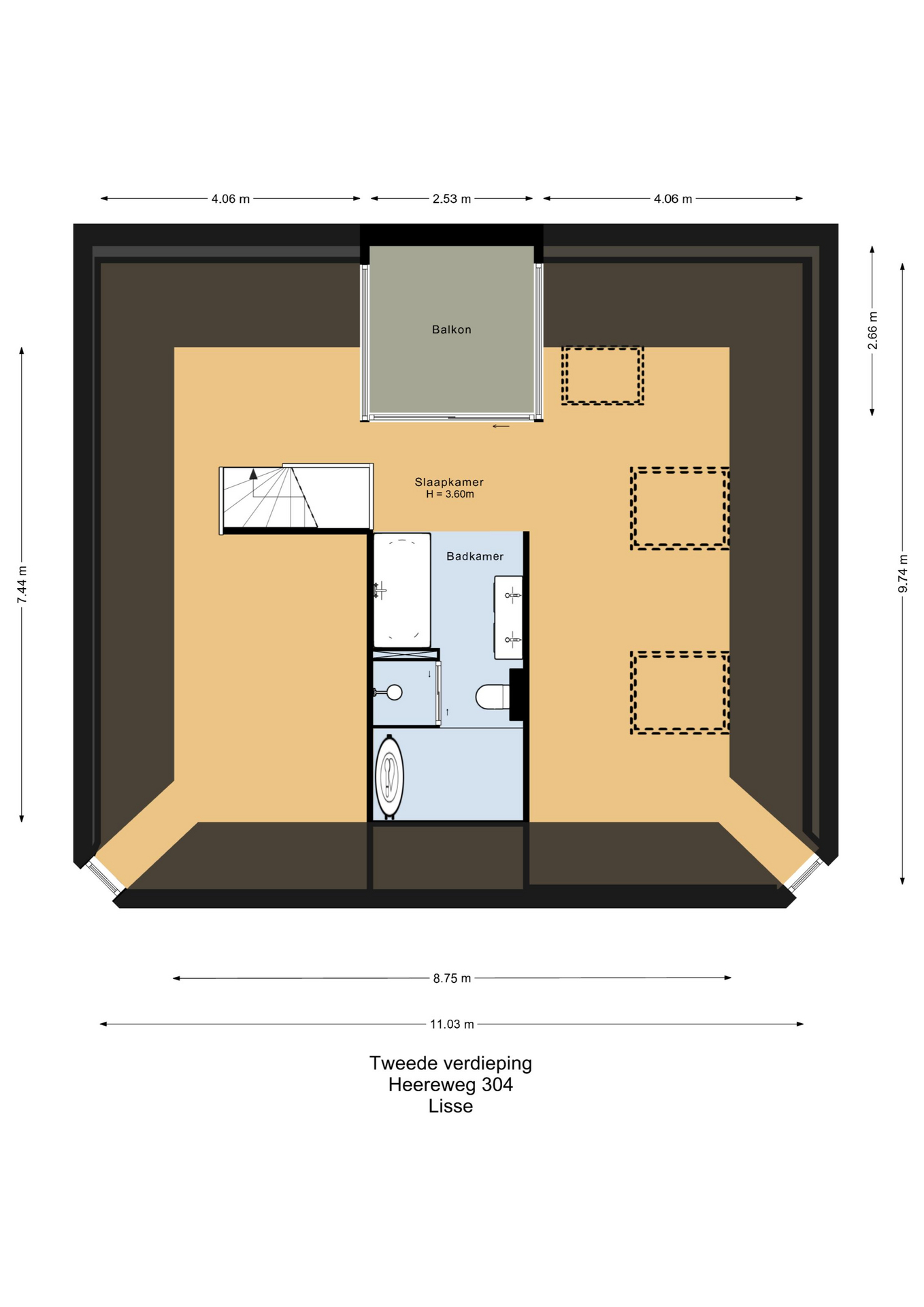
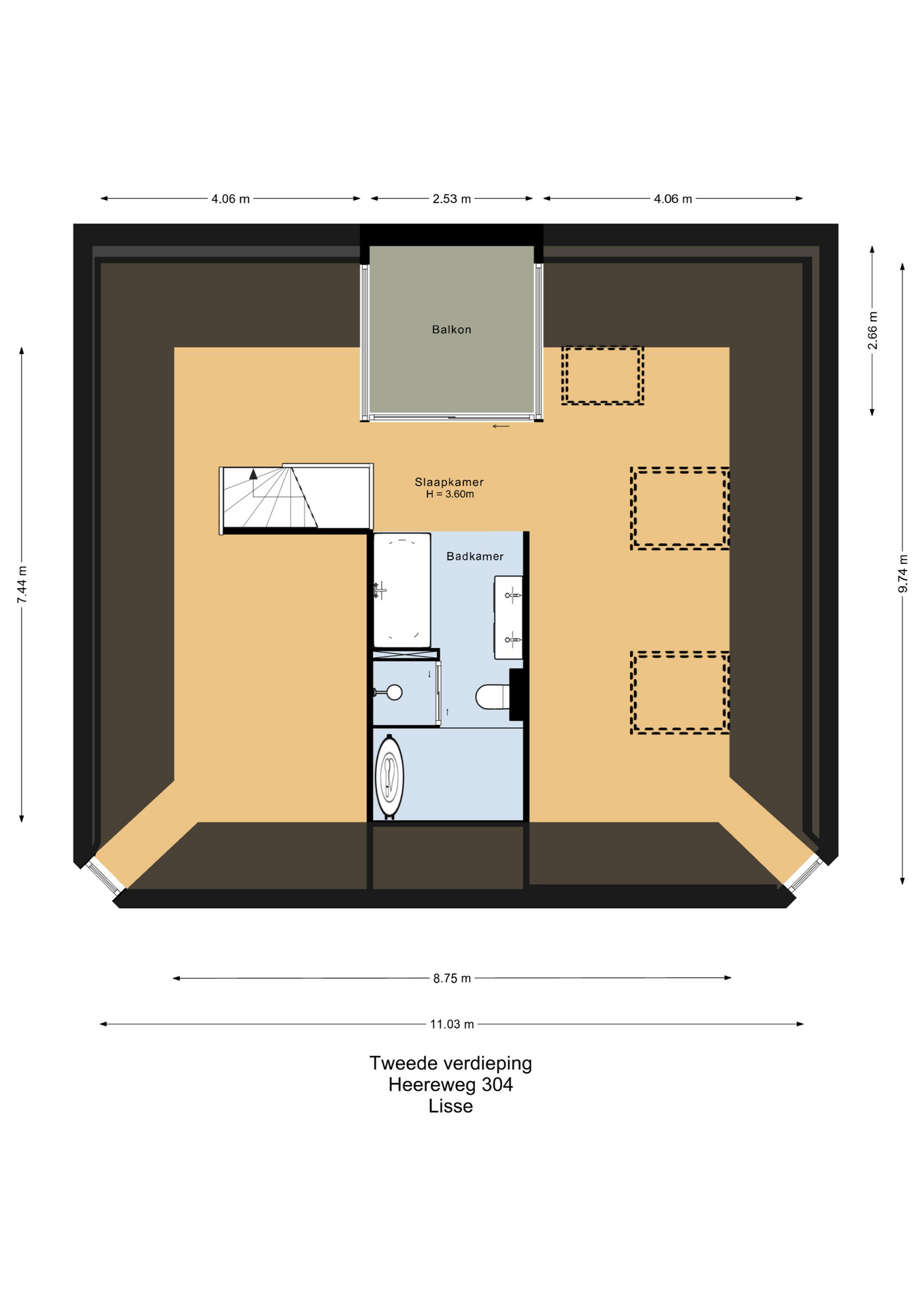
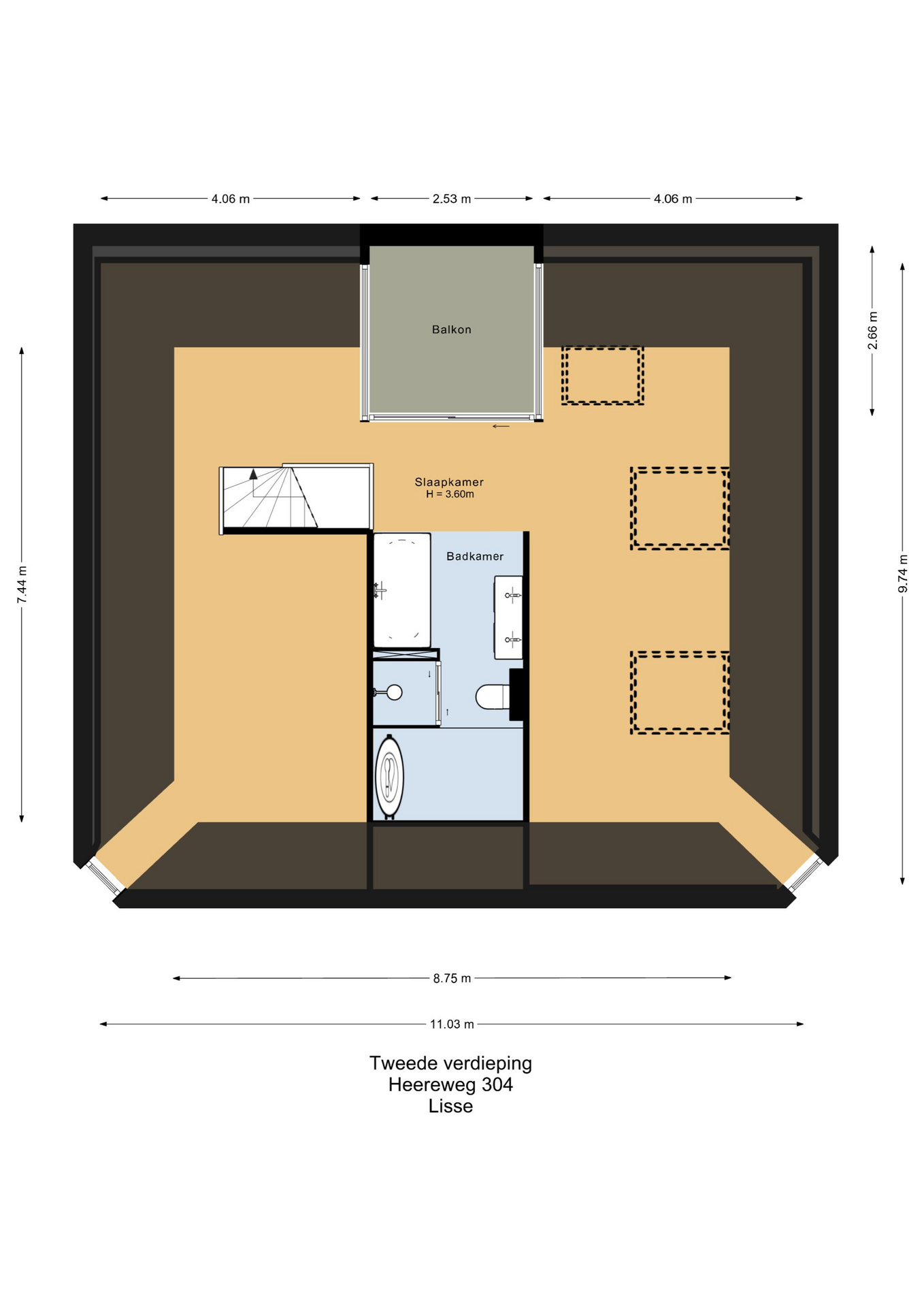
Ook hier een imposant lange hal met deur naar balkon, 3 fantastisch grote slaapkamers met mooie raampartijen, luxe badkamer met inloopdouche, ligbad en brede wastafel met 2 kranen op houten meubel, apart 2e luxe toiletruimte en 4e zeer royale was-/werkkamer.

2e Etage:
De hoofdslaapkamer bestrijkt de gehele etage en is voorzien van een inpandig balkon/loggia op het westen, inloopgarderobe en een luxe badkamer met ligbad, inloopdouche, 3e toilet en brede wastafel met twee kranen op houten meubel.

Tuin:
De prachtig aangelegde tuin ligt rondom de woning en heeft o.a. een nieuw in authentieke stijl smeedijzeren hek, verlichting en beregening. De zeer zonnige achtertuin van 13 meter diep en 7.5 meter breed biedt veel privacy en is o.a. voorzien van een grote veranda waarin het ook in de koudere maanden goed toeven is.

Duurzaamheid:
De woning is voorzien van muur-, en dakisolatie alsmede geïsoleerde beglazing. Verder zijn er 32 zonnepanelen en zijn er twee nieuwe HR ketels geplaatst.

Bijzonderheden:
· Oprit voor 2 auto’s en inpandige garage
· Zeer hoge plafonds met vele inbouwspots
· Wanden en plafonds fraai gestuukt
· Massief eikenhouten vloeren
· Luxe houten paneeldeuren
· In alle kamers op maat gemaakte kasten
· Alarminstallatie
· Kantoor of praktijk aan huis is een prima optie, er is zelfs een eigen adres (Vuursteeglaan 1)
. Gemeentelijk monument

Ook benieuwd, ik laat deze prachtige woning graag aan je zien. Tot snel, Miranda van der Wagt

Kenmerken

Zonnepanelen
Alarm system
Overdracht
Vraagprijs
€ 1.695.000 k.k.
Status
beschikbaar
Aanvaarding
in overleg
Bouw
Soort woonhuis
Herenhuis
Soort bouw
vrijstaande woning
Bouwjaar
1898
Energieklasse
C
Slaapkamers
4
Badkamers
2
Oppervlakten en inhoud
Woonoppervlakte
321 m2
Overige inpandige ruimte
62 m2
Gebouwgebonden buitenruimte
9 m2
Inhoud
1349 m3
Perceeloppervlakte
610 m2
faciliteiten
Mechanische ventilatie
Alarminstallatie
Zonnepanelen
In centrum
Baerz & Co Property Brochure

Brochure

Video’s

Plattegronden

Bijzonder Wonen Makelaardij

Heilige Geeststraat, 11
5301CP Zaltbommel

info@bijzonderwonen.com
+31 41 868 00 50

www.bijzonderwonen.com

Informatie / bezichtigingsaanvraag

Jeanette van Haaften profile image
Jeanette van Haaften
Real Estate Agent

Een luxe woning kopen in Lisse

Lisse biedt een harmonieuze leefstijl waar traditie en eigentijdse verfijning samenkomen. Exclusieve woningen, levendige cultuur en optimale bereikbaarheid maken Lisse aantrekkelijk voor internationale families, investeerders en kritische kopers.