Ons kantoor is lid van Baerz & Co Luxury Homes; een internationaal platform dat exclusieve woningmakelaars met elkaar verbindt. Neem contact op met ons secretariaat voor meer informatie over het landelijke aanbod, waarvan u hieronder een selectie kunt bekijken.

LEIDEN
Nieuwe Rijn 98 - 2312 JM
Nederland

Jeanette van Haaften profile image
Jeanette van Haaften
Real Estate Agent
€1.350.000 k.k.
Woonoppervlakte
181m2
Perceeloppervlakte
136m2
Slaapkamers
3

Omschrijving

Unieke en zeer sfeervolle monumentale bovenwoning met groot dakterras in het historische hart van Leiden.

Aan de Nieuwe Rijn, in het kloppend hart van Leiden, staat dit fraaie en verrassende grachtenpand. Een unieke woonplek met volop ruimte en karakter. En dat op een steenworp afstand van alles wat wonen in de stad zo aantrekkelijk maakt: gezellige winkels, de wekelijkse markt, terrassen, restaurants, musea en theaters.

Deze klassieke stadswoning (Rijksmonument) beschikt over een woonoppervlakte van maar liefst 181 m² plus een dakterras van ca. 75 m² en combineert monumentale allure met hedendaags comfort. De woning is goed onderhouden en grotendeels voorzien van dubbel glas en dakisolatie, wat zorgt voor een aangenaam leefklimaat het hele jaar door. Een bouwkundig rapport is beschikbaar.

Wat dit pand verder uniek maakt, is de bijzondere combinatie van een statige, klassieke gevel aan de grachtzijde (drie ramen breed op het zuiden) en een verrassend royale achterzijde van ruim negen meter breed. Op de eerste verdieping, in het hart van de woning, ligt een kleurrijke binnentuin en een tiental treden hoger een riant en zonnig dakterras met volop privacy en meerdere zitplekken.
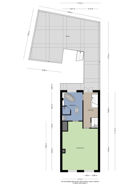
INDELING

Begane grond:
Entree, portaal, trapopgang naar eerste verdieping.

Eerste verdieping:
Sfeervolle en lichte woonkamer met sfeervolle open haard en prachtig uitzicht op de gracht. In open verbinding met de royale eetkeuken, voorzien van alle gebruikelijke apparatuur. Via een schuifpui toegang tot de groene, beschutte binnentuin; een oase van rust midden in de stad. Separaat toilet met fontein. Vanuit de overloop toegang tot een tweede, sfeervolle multifunctionele (woon-)kamer.

Tweede verdieping:
Zeer ruime ouderslaapkamer met badkamer en suite voorzien van ligbad met jacuzzi, dubbele douche, toilet en dubbele wastafel. Openslaande deuren naar het grote dakterras dat verdeeld is over meerdere niveaus: een zonnige en besloten plek met diverse zitmogelijkheden.

Derde verdieping:
Overloop met toegang tot een sfeervolle slaapkamer onder de kap aan de voorzijde, inclusief slaapvide. Aan de achterzijde nog een ruime slaapkamer met dakkapel. De overloop is ruim genoeg om, indien gewenst, een tweede badkamer te realiseren.
Al met al een uitzonderlijke kans voor wie op zoek is naar ruimte, stijl én stedelijke levendigheid op één van de mooiste plekken van Leiden.

Wil je deze woning bezichtigen of meer informatie ontvangen? Neem contact op voor een persoonlijke rondleiding.

Kenmerken

Overdracht
Vraagprijs
€ 1.350.000 k.k.
Status
beschikbaar
Aanvaarding
in overleg
Bouw
Soort woonhuis
Bovenwoning
Soort bouw
dubbel bovenhuis
Bouwjaar
1750
Soort dak
samengesteld dak
Slaapkamers
3
Badkamers
1
Oppervlakten en inhoud
Woonoppervlakte
181 m2
Overige inpandige ruimte
0 m2
Gebouwgebonden buitenruimte
75 m2
Inhoud
650 m3
Perceeloppervlakte
136 m2
faciliteiten
Mechanische ventilatie
Schuifpui
Aan water
In centrum
Vrij uitzicht
Aan vaarwater
Baerz & Co Property Brochure

Brochure

Video’s

Plattegronden

Bijzonder Wonen Makelaardij

Heilige Geeststraat, 11
5301CP Zaltbommel

info@bijzonderwonen.com
+31 41 868 00 50

www.bijzonderwonen.com

Informatie / bezichtigingsaanvraag

Jeanette van Haaften profile image
Jeanette van Haaften
Real Estate Agent

Een luxe woning kopen in Leiden

Leiden biedt uitzonderlijk erfgoed, dynamische cultuur en een gericht dienstverleningsniveau, waardoor het een aantrekkelijke omgeving wordt voor internationale bewoners. Met verfijnde woningen, een vitale academische traditie en discrete luxe biedt deze grachtenstad een geraffineerde levensstijl voor een internationale gemeenschap.