Baerz & Co is een landelijk samenwerkingsverband van zorgvuldig geselecteerde boutique luxury makelaars. Samen vormen wij één netwerk, met één gedeeld aanbod. De woningen die u op onze website ziet, zijn afkomstig van alle aangesloten kantoren binnen Baerz & Co. Daardoor is niet ieder object rechtstreeks door ons kantoor in verkoop, maar door een gespecialiseerde collega binnen ons netwerk. Heeft u een woning gevonden die u aanspreekt en wilt u meer informatie? Dan brengen wij u graag persoonlijk in contact met de betreffende verkoopmakelaar, zodat u direct en zorgvuldig wordt begeleid.

JOPPE
Deventerdijk 2 - 7215 SG
Nederland

Jeanette van Haaften profile image
Jeanette van Haaften
Real Estate Agent
€3.200.000 v.o.n.
Woonoppervlakte
480m2
Perceeloppervlakte
97915m2
Slaapkamers
4

Omschrijving

Landgoed Het Zwaneveld – Een modern sprookje in de rust en de natuur tussen Deventer en Zutphen met een A++++-energielabel!

Er was eens … een prachtig landgoed in Joppe. Deze plek, Landgoed Het Zwaneveld, is een NSW-landgoed, met schitterende vergezichten over de Gorsselse Heide en een modern landhuis vol luxe en de laatste technische snufjes op het gebied van duurzaam leven. Maar het mooiste plekje? Op de veranda, vanuit de natuurlijke zwemvijver of vanaf één van de fraaie terrassen? Nee, de titel van Mooiste Plek gaat naar het bankje midden op het landgoed, waar u kunt genieten van al het natuurschoon, gewoon in uw eigen tuin. Waar het ’s avonds helemaal stil is en de reeën in kleine clubjes komen grazen, de hazen voorbij hippen en de uil zijn kenmerkende ‘oehoe’ laat klinken.

Het Zwaneveld is een schitterende mix van modern design en tijdloze charme, die moeiteloos in haar omgeving. Het forse landhuis heeft een royaal woonoppervlak van bijna 500m² en bestrijkt 10ha. Het landhuis stamt uit 2012 en is destijds als NSW-gerangschikt landgoed de boeken ingegaan.

Familiehuis
Door het gebruik van natuurlijke materialen zoals steen, hout en riet gaat deze strakke gestalte gemakkelijk hand in hand met haar natuurlijke omgeving. Vanbinnen een perfecte balans tussen design, materiaal en comfort.
De vaste kasten zijn, evenals de haardpartijen en de keuken, ambachtelijk handwerk en zijn door de binnenhuisarchitect Marcel Wolterinck gecombineerd tot een indrukwekkend geheel.
Door het neutrale palet en het materiaalgebruik, ontstaat er een consistente ambiance en is er een heerlijk warm familiehuis gecreëerd.

Ligging – Joppe en omgeving
De ligging is tussen Zutphen en Deventer; beide gezellige en bruisende Hanzesteden liggen op een kwartiertje rijden. De Deventerdijk hoort bij het innemende plaatsje Joppe, dat zich inmiddels ingelijfd vindt door Gorssel. Hier heeft u alles bij de hand; van een gerenommeerde basisschool, sportverenigingen, supermarkten en de gezellige Hoofdstraat met horeca, speciaalzaken als de bakker, slager, groenteman en de kaaswinkel met prachtige wijncollectie. Eén en al verwennerij hier, ook voor het oog, want Museum MORE is gevestigd in het voormalige gemeentehuis.
Dit alles ligt op drie kwartier van de randstad, en dat is ook één van de aspecten die deze omgeving zo aantrekkelijk maakt: wonen in het groen en de rust, maar toch centraal.

Begane grond
Entree aan de voorzijde van de woning, in de centrale hal. Direct rechts de trapopgang naar de bovenverdieping. Rechts toegang tot de werkkamer of extra slaapkamer, met schitterende badkamer, compleet met inloopdouche, toilet, bidet en wastafel. Rechtdoor de hal naar de woonkeuken, met toilet met aparte wastafel en grote spiegel. Links in de hal een schitterende inbouwkast met paneeldeuren. Het houtwerk is zwart geschilderd, wat het landhuis een klassiek-modern karakter geeft. Links toegang tot de werkelijk fantastische living; met aan de achterwand een schitterend maatwerk kastenwand met diepe bloemvensters en een prachtige openhaard. Aan de tuinzijde een glazen wand met openslaande deuren naar het zonneterras.

De eetkeuken is een geweldige plek; niet alleen voor kookliefhebbers, maar ook om te zitten en de krant door te nemen, huiswerk te maken of de dag af te sluiten met een drankje. De openhaard geeft extra sfeer aan de prachtige uitgevoerde keuken, die met het contrast van licht en donker hout, in combinatie met het friswitte stucwerk, een schitterend ‘clean’ geheel vormt.
Uiteraard is deze keuken van werkelijk alle denkbare gemakken voorzien; een natuurstenen werkblad, zespits-gasstel met plancha (Wolf), een wasbak met Quooker en spoelkraan, ijskast, heteluchtoven en combimagnetron, een dubbele wijnklimaatkasten (alle Gaggenau).

Ook hier weer openslaande deuren in de glazen wand naar het achtergelegen zonneterras. De deur naar de bijkeuken is mooi terugliggend in de wand ingebouwd. De bijkeuken is ruim, uitgerust met een wasbak en biedt veel bergruimte.

Bovenverdieping
De overloop is in mezzaninevorm uitgevoerd. Er zijn drie royale slaapkamers, twee badkamers en veel inbouwkasten. Uiteraard is dat heerlijk om veel bergruimte te hebben, en doordat ze ingebouwd zijn, zijn er ook geen losse, storende elementen die de balans van het interieur verstoren.

De master bedroom heeft de opkomende zon en biedt een prachtig uitzicht op de tuin en een vergezicht over het landgoed aan de achterkant van het huis. Deze slaapkamer is verdeeld in twee gedeelten; het slaapgedeelte en de kledingkamer met pantry, zitje, diverse kasten en veel licht door de verschillende raampartijen.

Vanuit het slaapgedeelte, toegang tot de badkamer uitgevoerd in natuursteen. Alsof u in uw eigen spa binnenstapt, zo voelt deze prachtige badkamer. Een heerlijk vrijstaand bad, een riante inloopdouche, toilet, een schitterende dubbele wastafel met bergruimte en de dakkapel, die zorgt voor veel licht.

De twee kinderslaapkamers bevinden zich aan de andere kant van het huis en beschikken over een eigen badkamer, met douche, toilet en wastafel.

Kelder
De gehele woning is onderkelderd. Dit is wel de droom van alle opgroeiende kinderen; een kelder om te sporten, te chillen en te werken. In de kelder vindt u de wijnkelder, de multimediakamer (hang er een groot scherm bij en u waant zich zo in de bioscoop, in eigen huis), de gym en een werkkamer.

Buitenruimte
De omliggende tuinen zijn onder architectuur aangeplant, en zijn geheel in lijn met de woning: simpele lijnen, niet te veel poespas, maar alles klopt precies. Borders met bloemen en wilde grassen, strakke hagen en prachtige terrassen geven een mooie balans tussen gebruik en schoonheid.

Is er iets heerlijker dan ongestoord rondpoedelen in uw eigen zwembad? Ook daar bestaat een overtreffende trap in: de zwemvijver. Deze fraaie, langgerekte zwemvijver is een natuurlijk en gezond zwembad waarbij het water gefilterd wordt door waterplanten die in een afzonderlijke bak staan. Het uitzicht over het landgoed draagt uiteraard mooi bij aan het algehele gevoel van welzijn.

Naast het zwembad treft u de wellness-cabin. Deze is uitgevoerd in vurenhout, waardoor het ongelofelijk knus is en uitnodigend oogt. De vloer is belegd met donkere natuurstenen tegels. De houtkachel maakt ook in de herfst hier een geliefde plek van. In de wellness-cabin treft u een sauna en een badkamer met toilet, wastafel en douche.

Ook is er pad dat zich tussen de wilde bloemen door kronkelt naar een mooie, victoriaanse kweekkas in de voortuin. Uitstekend voor het kweken van de tomaten, paprika’s en het voorkiemen van de komkommers en pompoenen, maar ook een prima decor voor een elegante afternoon high tea.

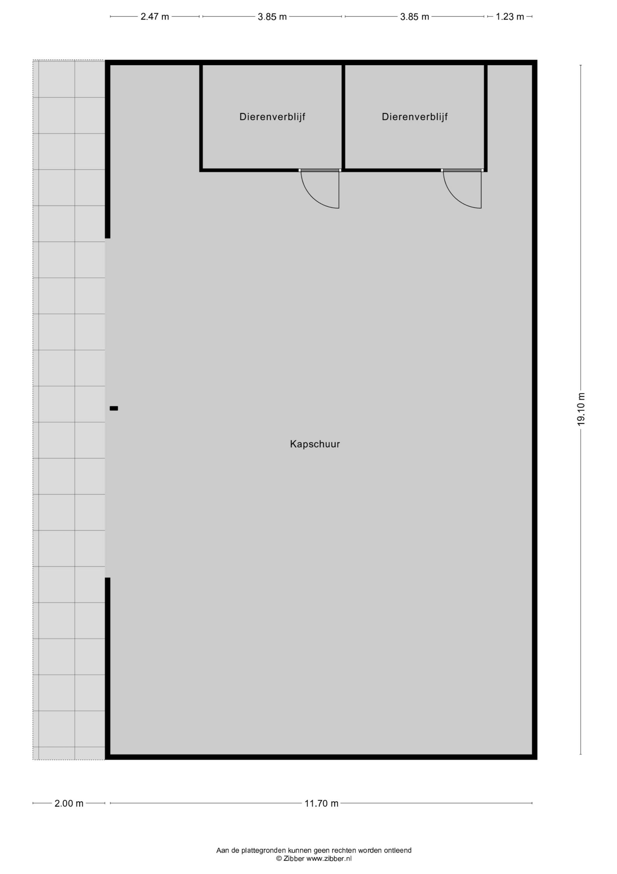
De grote kapschuur doet dienst als carport voor diverse auto’s en biedt daarnaast ruimte om te klussen, fietsen droog te stallen, de grasmaaier te parkeren, etc., etc. Ondanks de robotmaaier die zorg draagt voor een strak gazonnetje, hoort bij een landgoed toch minstens speelgoed in de vorm van een schattig trekkertje.

Duurzaamheid
Het huis is gebouwd met hoogwaardige materialen en is dan ook uitstekend geïsoleerd. Het huis wordt verwarmd door een Alpha Innotec brine/water warmtepomp en op het dak van de schuur liggen maar liefst 88 zonnepanelen. Hierdoor eindigt u maandelijks met nul op de teller.

NSW-landgoed
Het huis en de grond zijn gerangschikt onder de Natuurschoonwet van 1928, Dat betekent dat het voldoet aan een aantal eisen, zoals dat:
- het minstens 5 hectare groot is;
- het voor minstens 50% uit houtopstanden (bos) of natuurterreinen bestaat.
Midden op de Gorsselse heide; rondom Het Zwaneveld is het één en al natuur.
Maar, er is meer, want waarom zou men nu een NSW-landgoed willen bezitten? In een notendop is het antwoord daarop dat er grote voordelen aan zitten voor de eigenaar: die geniet namelijk fiscale voordelen van het bezit voor wat betreft inkomstenbelasting, vennootschapsbelasting, overdrachtsbelasting, schenk- en erfbelasting en onroerendzaakbelasting.

Landgoed Zwaneveld is momenteel niet opengesteld voor publiek, want er valt al heel erg veel te wandelen, hardlopen en fietsen rondom het landgoed. Mocht u er echter toch voor kiezen het landgoed voor publiek open te stellen voor het nut van het algemeen, dan gelden deze voordelen voor 100%, in plaats van gedeeltelijk.

Kortom, bent u op zoek naar een eigen landgoed, met een schitterend landhuis? Dit sprookje is een mooie buitenkans; een NSW-landgoed met alle ruimte voor een lang en gelukkig leven. Benieuwd geworden? We laten u deze parel met alle plezier zien.

Algemeen:
- Bouwjaar: 2012 en gerestyled in 2016;
- Ligging: Nabij Gorssel, tussen Deventer en Zutphen;
- Isolatie: Volledig geïsoleerd;
- Verwarming: Middels Alpha Innotech grondwarmtepomp;
- Buitenzwembad: Een ‘Venhuis’ natuurbad van ruim 100 m², exclusief overloop;
- Bijgebouw: Vrijstaande kapschuur/wagenloods ruim 220 m²;
- Welness: Vrijstaand rietgedekt wellness-bijgebouw voorzien van opgiet-sauna, badkamer voorzien van douche,
wastafelmeubel en toilet. alsmede een buitendouche ten behoeve het natuurbad;
- Overig: Afsluitbare hondenren, klassieke tuinkas met kruidentuin.
- Duurzaam: 88 zonnepanelen en daardoor geen energielasten, energieklasse A++++
- Extra: Dit NSW-landgoed biedt vele fiscale voordelen.

Inhoud: 1.736 m³
Woonoppervlakte: 480 m²
Externe bergruimte: 256 m²
Overig inpandige ruimte: 32 m²
Gebouw gebonden buitenruimte: 59m²
Perceeloppervlakte: 97.915 m²
Energielabel: Energieklasse A+
Aanvaarding: in overleg

Kenmerken

Zwembad
Zonnepanelen
Alarm system
Overdracht
Vraagprijs
€ 3.200.000 v.o.n.
Status
beschikbaar
Aanvaarding
in overleg
Bouw
Soort woonhuis
Landgoed
Soort bouw
vrijstaande woning
Bouwjaar
2012
Energieklasse
A++++
Soort dak
zadeldak
Slaapkamers
4
Badkamers
3
Oppervlakten en inhoud
Woonoppervlakte
480 m2
Overige inpandige ruimte
32 m2
Gebouwgebonden buitenruimte
59 m2
Externe bergruimte
256 m2
Inhoud
1736 m3
Perceeloppervlakte
97915 m2
faciliteiten
Mechanische ventilatie
Alarminstallatie
Tv kabel
Buitenzonwering
Zwembad
Rookkanaal
Glasvezel kabel
Zonnepanelen
Natuurlijke ventilatie
Aan bosrand
Aan rustige weg
Vrij uitzicht
Open ligging
Buiten bebouwde kom
In bosrijke omgeving
Landelijk gelegen
Baerz & Co Property Brochure

Brochure

Video’s

Plattegronden

Bijzonder Wonen Makelaardij

Heilige Geeststraat, 11
5301CP Zaltbommel

info@bijzonderwonen.com
+31 41 868 00 50

www.bijzonderwonen.com

Informatie / bezichtigingsaanvraag

Jeanette van Haaften profile image
Jeanette van Haaften
Real Estate Agent

Een luxe woning kopen in Joppe

Joppe onderscheidt zich door exclusief vastgoed, een bescheiden gemeenschap en stijlvolle, landelijke levensstijl. Privacy, persoonlijke services en goede verbindingen verlenen het dorp een stille, internationale aantrekkingskracht bij de meest veeleisende kopers.