Baerz & Co is een landelijk samenwerkingsverband van zorgvuldig geselecteerde boutique luxury makelaars. Samen vormen wij één netwerk, met één gedeeld aanbod. De woningen die u op onze website ziet, zijn afkomstig van alle aangesloten kantoren binnen Baerz & Co. Daardoor is niet ieder object rechtstreeks door ons kantoor in verkoop, maar door een gespecialiseerde collega binnen ons netwerk. Heeft u een woning gevonden die u aanspreekt en wilt u meer informatie? Dan brengen wij u graag persoonlijk in contact met de betreffende verkoopmakelaar, zodat u direct en zorgvuldig wordt begeleid.

HURWENEN
Dorpsstraat 20 - 5327 AS
Nederland

€899.000 k.k.
Woonoppervlakte
148m2
Perceeloppervlakte
580m2
Slaapkamers
2

Omschrijving

Op gewilde locatie in het pittoreske dorp Hurwenen, nabij natuurreservaat De Hurnse Kil, staat deze luxe, volledig gerenoveerde karakteristieke woning, omgeven door een onder architectuur aangelegde tuin op het zuidwesten met geïsoleerd bijgebouw en veranda.

Hal met trapopgang, zonnige woonkamer met erkers, tuingerichte luxe woonkeuken, bijkeuken, kelder en toilet op de begane grond.
Twee slaapkamers, waarvan één met walk-in closet, een luxe badkamer en een separaat toilet op de eerste verdieping.

Bruto-inhoud: 575 m³
Gebruiksoppervlakte wonen: 148 m²
Perceeloppervlak: 580 m²
Bouwjaar: 1941
Energielabel: A+++
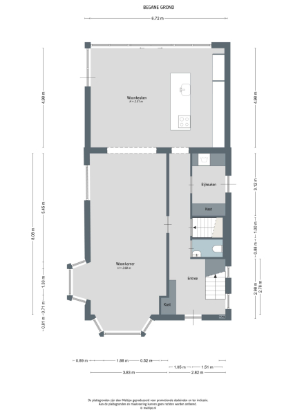
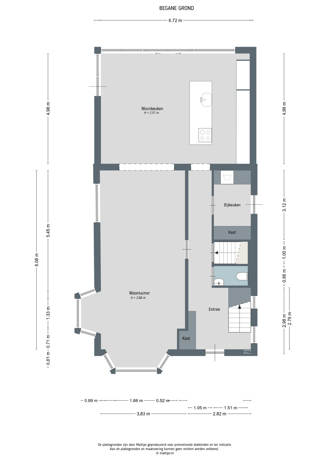
Indeling begane grond:
Bij binnenkomst wordt direct duidelijk hoe zorgvuldig deze woning is vernieuwd, met behoud van sfeer en karakter. De hal vormt een rustige entree met trapopgang, toiletruimte en kelder. Vanuit hier is ook de bijkeuken bereikbaar, praktisch ingericht met vaste kasten, aansluitingen voor witgoed en een deur naar de oprit.
Een stalen taatsdeur leidt naar de woonkamer aan de voorzijde. Hier komen karakter en comfort op een natuurlijke manier samen. De erkers, het glas-in-lood en de visgraat parketvloer geven de ruimte een warme uitstraling die naadloos aansluit bij de uitstraling van de woning.
Aan de achterzijde is over de volle breedte een moderne aanbouw gerealiseerd, waardoor een royale woonkeuken is ontstaan waarin de binnen-buitenbeleving centraal staat. De grote schuifpui zorgt voor een directe verbinding met de onder architectuur aangelegde tuin.
De keuken is uitgevoerd met een centraal kookeiland met een werkblad van composiet en een wandopstelling in een warme eikenhouten kleur.
Het kastmeubel valt deels weg in de wand en is voorzien van hoogwaardige inbouwapparatuur, waardoor rust en eenheid in het geheel ontstaan. De aanwezige koffiecorner vormt een prettig en doordacht detail. Er is volop werk- en bergruimte, met daarnaast alle ruimte voor een royale eettafel.
De begane grond voelt als één geheel, waarin de verschillende leefruimtes op een vanzelfsprekende manier in elkaar overlopen — een plek waar het dagelijks leven zich moeiteloos afspeelt, met aandacht voor detail en gevoel voor verhoudingen.
Indeling eerste verdieping:
De originele trap leidt naar de eerste verdieping, waar direct de ruimtelijkheid opvalt.
De overloop is aangenaam licht door de dakvensters in de geïsoleerde kap en biedt ruimte voor een werkplek. De open vide versterkt het gevoel van hoogte en verbinding binnen de woning.
Op de overloop bevindt zich tevens een separaat toilet, uitgevoerd als een luxe toilet met geïntegreerde bidet- en droogfunctie.
Aan de achterzijde ligt de hoofdslaapkamer, een rustige en lichte ruimte met vrij uitzicht over de achterliggende landerijen en de dijk. Aangrenzend bevindt zich de walk-in closet, uitgevoerd met maatwerkkasten. Vanuit hier geeft een zwarte stalen deur toegang tot de badkamer. Bovendien is er vanuit de slaapkamer toegang tot het met sedum belegde platte dak van de woonkeuken, waar een terras is gerealiseerd: een beschutte plek met vrij uitzicht over het groen.
De badkamer is eveneens bereikbaar vanaf de overloop en ingericht in een tijdloze stijl met grote wand- en vloertegels en verfijnd sanitair. Hier bevinden zich een vrijstaand ligbad, een inloopdouche met regendouche en een dubbel wastafelmeubel.
Aan de voorzijde van de woning ligt een tweede slaapkamer, eveneens prettig van formaat en met zicht op de Dorpsstraat.
Deze verdieping is eveneens voorzien van vloerverwarming.
Bijzonderheden:
In 2022 is de woning op hoogwaardig niveau uitgebouwd, volledig gerenoveerd en verduurzaamd. Daarbij zijn geen concessies gedaan aan kwaliteit en comfort, terwijl karakteristieke elementen zorgvuldig behouden zijn gebleven. Het resultaat is een woning waarin hedendaags wooncomfort en de sfeer van de oorspronkelijke bouwperiode op een vanzelfsprekende manier samenkomen, met een energieprestatie die dicht bij nul-op-de-meter ligt.
De woning is voorzien van een hoogwaardige isolatieschil (vloer, gevels, dak en glas) en een toekomstbestendig installatieniveau met onder meer een bodemwarmtepompsysteem, vloerverwarming en gebalanceerde ventilatie met warmteterugwinning. Dit zorgt voor een aangenaam en energiezuinig woonklimaat.
De onder architectuur aangelegde tuin ligt op het zuidwesten, met zon van de vroege ochtend tot in de avonduren. De tuin is met zorg vormgegeven, met meerdere terrassen, groenborders en een prettige afwisseling tussen openheid en beschutting. Direct aan de woning bevindt zich een zonnig terras, terwijl verderop in de tuin verschillende plekken zijn gecreëerd om op elk moment van de dag van zon of schaduw te genieten.
Naast de woning bevindt zich het bijgebouw, dat zich in de lengterichting uitstrekt langs de tuin en daarmee op natuurlijke wijze onderdeel vormt van het geheel. Aan de tuinzijde grenst een veranda, waar momenteel een comfortabele loungehoek is gecreëerd.
Deze opzet zorgt voor een prettige indeling van het perceel, met beschutte plekken bij de woning en open zichtlijnen naar de achterliggende landerijen.
Het bijgebouw is volledig geïsoleerd en voorzien van vloerverwarming en een aansluiting voor warm water. Momenteel in gebruik als garage, maar door de afwerking en indeling ook geschikt als werkruimte, atelier of hobbyruimte.
Deze karakteristieke woning uit 1941 staat op een fijne locatie aan de Dorpsstraat in Hurwenen, op korte afstand van de Waaldijk en natuurgebied De Hurnse Kil. Een omgeving die zich bij uitstek leent voor wandelen, fietsen en buiten zijn. Voor dagelijkse voorzieningen ligt het dorp Rossum op korte afstand, terwijl ook Zaltbommel met zijn brede aanbod aan winkels, horeca en het NS-station snel en goed bereikbaar is. Dankzij de gunstige ligging ben je binnen tien minuten op de A2 en sta je in korte tijd in Den Bosch, Eindhoven of Utrecht.
Het geheel vormt een uitgebalanceerde combinatie van luxe, comfort, duurzaamheid en karakter, op een locatie waar rust, ruimte en bereikbaarheid op natuurlijke wijze samenkomen.

Kenmerken

Zonnepanelen
Overdracht
Vraagprijs
€ 899.000 k.k.
Status
beschikbaar
Aanvaarding
in overleg
Bouw
Soort woonhuis
Eengezinswoning
Soort bouw
vrijstaande woning
Energieklasse
A+++
Soort dak
zadeldak
Slaapkamers
2
Badkamers
1
Oppervlakten en inhoud
Woonoppervlakte
148 m2
Overige inpandige ruimte
10 m2
Externe bergruimte
22 m2
Inhoud
575 m3
Perceeloppervlakte
580 m2
faciliteiten
Buitenzonwering
Schuifpui
Dakraam
Glasvezel kabel
Domotica
Zonnepanelen
Balansventilatie
Aan rustige weg
Vrij uitzicht
Landelijk gelegen
Baerz & Co Property Brochure

Brochure

Video’s

Plattegronden

Bijzonder Wonen Makelaardij

Heilige Geeststraat, 11
5301CP Zaltbommel

info@bijzonderwonen.com
+31 41 868 00 50

www.bijzonderwonen.com

Informatie / bezichtigingsaanvraag

Jeanette van Haaften profile image
Jeanette van Haaften
Real Estate Agent

Een luxe woning kopen in Hurwenen

Hurwenen verenigt een verfijnd buitenleven met moderne gemakken. Privacy, cultuur en lokale verbondenheid staan centraal, met exclusieve diensten voor een internationaal, veeleisend publiek.