Ons kantoor is lid van Baerz & Co Luxury Homes; een internationaal platform dat exclusieve woningmakelaars met elkaar verbindt. Neem contact op met ons secretariaat voor meer informatie over het landelijke aanbod, waarvan u hieronder een selectie kunt bekijken.

HERBAIJUM
Kiesterzijl 56 - 8807 PG
Nederland

Ellen Schoneveld profile image
Ellen Schoneveld
Real Estate Agent
€1.200.000 k.k.
Woonoppervlakte
218m2
Perceeloppervlakte
21211m2
Slaapkamers
2

Omschrijving

Nul op de meter, wellness, bijgebouw met mogelijkheden, weide aan Van Harinxmakanaal!

De rust en privacy middenin het groen en de natuurbeleving rondom deze woning is niet te beschrijven maar des te meer te voelen. Een letterlijk verborgen plek, naast het Van Harinxmakanaal, waar je vanuit de woning als stille getuige de masten van de boten in de verte voorbij ziet komen. Waar de rust hooguit wordt onderbroken door het gebalk van een ezel, het gehinnik van een paard en een hond die achter een opvliegende fazant aan gaat. De zonsopgang door de mistige nevel, waar je paard je vrolijk verwelkomt bij de eerste voerbeurt vroeg in de ochtend, je nog in je pyjama onopgemerkt met de hond de ronde doet over je eigen domein. De kinderen de boot het water in lieren voor een korte trip naar het centrum van Harlingen voor een gezellige lunch. Genieten van de sauna en jaccuzi als je de rode zon weg ziet zakken in het water. In de zomer met de glazen pui open, in de winter gezellig cocoonen met vrienden bij de houthaard in de jachthut; deze oase biedt alles voor thuis zijn en niet meer weg willen in optima forma.
De serene rust, de steeds veranderende Friese luchten, het wild dat af- en aan komt lopen in je eigen weiland (ca 1,8ha), de paarden aan huis met eigen 20x40 rijbak en dat alles met het bruisende en gezellige Harlingen om de hoek en dankzij de afsluitdijk een verbinding met het westen binnen een uur.
De sfeervolle, volledig geïsoleerde nagenoeg energie neutrale woning is gebouwd in 2019. Er is gebruik gemaakt van duurzame onderhoudsvriendelijke materialen als IPE-hardhouten gevelbekleding, luxe brede overstekken, 40 zonnepanelen, warmtepomp, vlakke pannen, zink en kunststof. Bij het ontwerp stonden privacy, ontspanning en natuurbeleving voorop. De stijlvolle zwart gebeitste bijgebouwen nu in gebruik als sauna, wellness, jachthut, houtopslag, riante geïsoleerde berging/werkplaats, stallen en werktuig- en botenopslag bieden alle mogelijkheden voor een maximaal woongenot.
Het is overigens ook mogelijk wanneer er geen wens tot paarden aan huis is, iets op recreatief gebied te ontplooien. De stallen zijn bijvoorbeeld om te bouwen naar een fijn gastenverblijf. Tevens is het niet noodzakelijk het weiland bij de woning af te nemen.
Kortom, dit is volledig privé, aan een verborgen laantje, in stilte buitenaf wonen, met toch alle voorzieningen in Franeker of Harlingen (met de veerboot naar de Waddeneilanden) op fietsafstand!

INDELING

BEGANE GROND
De entree van de woning is gelegen aan de oostkant, in de hal is ruimte voor de garderobe en deze biedt toegang naar het gastentoilet.
De woonkamer is gelegen aan de zonnige Zuidwest kant van de woning. Wanneer je deze lichte ruimte binnen komt voel je je direct thuis. Dat komt door de sfeervolle hoge houten plafonds met prachtige zware balken, de gezellige loungehoek bij de houtkachel en de kamerhoge raampartijen die vanuit elke hoek eindeloos zicht bieden op de natuur; de stijlvolle tuin, de fruitbomen, de dieren in de weide, het wild rond de woning en de immer veranderende Friese luchten. Verkeer is hier niet!
De open leefkeuken is een feest an-sich.. een plek waar tijdens het koken veel wordt geborreld. De open glazen harmonica schuifdeuren aan het inpandig terras staan nagenoeg altijd open dankzij de luwe ligging door de in carré opgestelde bijgebouwen. Zo wordt de tuin volledig bij de binnen leefruimte betrokken. De keuken heeft een met stoer RVS kook-/spoeleiland en is voorzien van alle luxe; een grote inductie kookplaat met geïntegreerde afzuiging, een extra grote spoelbak met kokend waterkraan, en de strakke zwarte kamerhoge kastenwand heeft een geïntegreerde koffiemachine en combi-oven. De bijkeuken, voorzien van de witgoedaansluiting, is smaakvol verborgen in de uitbouw achter een kastenwand in dezelfde stijl als de keuken.
Vanuit de eetkamerhoek direct gelegen aan de keuken is ook prachtig uitzicht op de tuin, de landerijen en de paardenbak. Ook hier is nog een terrasdeur naar buiten.
De gehele begane grond is voorzien van “houten” pvc vloer met hoge plinten en vloerverwarming.

VERDIEPING
De overloop geeft toegang naar twee ruime slaapkamers, een badkamer, en veel bergruimte onder de knieschotten op de overloop.
De sfeervolle royale master bedroom met twee inloopkasten onder het schuine dak is gelegen aan de Zuidkant en heeft een kamerhoge raampartij met frans balkon, uitkijkend over de groene weides met aansluitend het Van Harinxmakanaal. Hier word je blij wakker en krijg je energie en zin om de dag te beginnen.
De chique badkamer met stijlvol Italiaans tegelwerk heeft een wat hoger gelegen raampartij in de brede dakkapel. De badkamer is voorzien van een inloopdouche, toilet en wastafelmeubel.
De tweede ruime slaapkamer is gelegen aan de Noordoostkant en heeft een prachtig zicht over het groene weidelandschap.

ZOLDER
De bergzolder is te bereiken middels de tweede slaapkamer per losse trap.

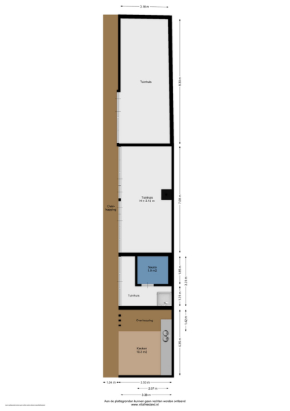
TUINHUIS
De met de woning in carré opgestelde bijgebouwen geven de tuin een besloten intieme sfeer. In het stijlvol houten geïsoleerde tuinhuis met 3 glazen schuifpuien en brede overkapping zijn een ware jachthut en wellnessruimte gesitueerd. De buitenkeuken verbindt het geheel met het woonhuis. Indien gewenst is dit op eenvoudige wijze inpandig te maken.
De wellness en jachthut zijn aan de binnenkant rustiek betimmerd en voorzien van houtkachel, lichtspots, jaccuzi, sauna, stoomdouche, stroom en water. Een fantastische ruimte die de woonbeleving maximaliseert en uitnodigt om met vrienden bijeen te komen.

GARAGE
De ruimte voor houtopslag is enorm en grenst aan de nog grotere garage. Ook dit deel van de carré opstelling is in gelijke stijl als het tuinhuis gebouwd. De garage/berging is een geïsoleerde ruimte voorzien van stroom.

STALLEN
Halverweg de oprijlaan is het stallencomplex gelegen. Er zijn achtereenvolgens twee riante paardenboxen met inpandige poetsplaats voorzien van warm en koud stromend water in het midden, daarnaast een fourage-/zadelkamer met vervolgens nog een kleinere stal waar Jil de stokoude ezel huist. Vanuit de stal is de achtergelegen paardenwei (ruim 1.7ha) bereikbaar en tevens de tegenover gelegen paardenbak (20x40m) met soepele bodem en buitenverlichting. Mocht er geen interesse zijn in het houden van paarden dan is dit complex bijvoorbeeld ook te verbouwen tot gastenverblijf.

WERKTUIG/BOTENSTALLING
Op gefundeerde grond is een kunststof schuifoverkapping geplaatst welke momenteel in gebruik is als tractor- en botenstalling

TUIN/ERF/WEILAND
De oprit naar het woonhuis, de garages en stal is voorzien van split met bloemenborders afgezet met Cortensstaal voorzien van tuinverlichting. Er is voldoende parkeergelegenheid op eigen terrein zowel bij de stallen als bij de woning voor meerdere auto’s.
De tuin direct om de woning heeft meerdere terrassen in zon- en schaduw, en biedt vanuit alle hoeken mooie vergezichten over afwisselend natuurgebied en de voorbijvarende zeilschepen, plezierjachtjes en beroepsvaart. De luwe carré-tuin met de 4 lindes, prachtige verlichting en buitenkeuken biedt het summum van privacy.
Er zijn vele soorten fruitbomen, bessenstruiken, heesters en bloemenborders in de tuin.
Het ruim 1.7ha weiland omzoomd door een sloot heeft twee toegangen en ligt direct achter de stallen aan het Van Harinxmakanaal. In de huidige situatie lopen de paarden op het perceel achter de woning, dit zal in de nieuwe situatie door ruilverkaveling dus veranderen naar de voorkant (kanaal- en zichtkant) van de woning. De paardenbak 20x40 is voorzien van soepele bodem en verlichting. Het is tevens mogelijk de woning zonder het weiland aan te kopen.

BIJZONDERHEDEN
-bouwjaar 2019;
-energielabel A, nagenoeg energieneutraal door warmtepomp en 40 zonnepanelen;
-onvoorspelbaar mooie, stille, vrije natuur locatie aan Van Harinxmakanaal;
-riante woonkamer, keuken en master-bedroom, allen met panoramisch uitzicht;
-extra leefruimte door carré opgestelde bijgebouwen als sauna, wellness, jachthut;
-riante houtopslag, geïsoleerde werkplaats/garage;
-riant perceel tuin (3740m2) om de woning;
-ruim 1.7 ha weiland bij de stal, woningkoop zonder weiland bespreekbaar;
-3 stallen met poetsplaats en opslag, hier zou ook een gastenverblijf passen;
-gedraineerde paardenbak 20x40 met verlichting, hier zou ook een boomgaard passen;
-gefundeerde werktuig/bootoverkapping;
-botenhelling direct buiten de elektrische toegangspoort;

HERBAIJUM
Herbaijum is een terpdorp, gelegen tussen Harlingen en Franeker. Alle voorzieningen als winkels, scholen, theater, musea, restaurants en natuurlijk de Waddenzee of veerboot vanuit Harlingen naar de eilanden zijn op fietsafstand bereikbaar. Het is een sfeervol plattelandsdorp met een goede gemeenschapszin waar nog veel activiteiten worden georganiseerd voor jong en oud. En hoe gezellig is het om over het Van Harinxmakanaal met de RIB een hapje te gaan eten of een drankje te doen bij een van de vele terrasjes aan de Noorder- of Zuiderhaven?!

DISCLAIMER
Deze informatie is met zorg samengesteld en deels gebaseerd op gegevens van de verkoper en/of derden. Hoewel gestreefd is naar een zo accuraat mogelijke weergave, kunnen aan de inhoud, waaronder teksten, bijlagen, plattegronden en maatvoering, geen rechten worden ontleend.
De vermelde oppervlakten zijn gemeten conform de NEN 2580-meetinstructie, waarbij afwijkingen niet zijn uit te sluiten. Deze aanbieding is geheel vrijblijvend en bedoeld als uitnodiging tot het uitbrengen van een bod. Voor objecten ouder dan 25 jaar worden standaard een ouderdoms- en indien van toepassing asbestclausule opgenomen in de koopakte.

Speciale Kenmerken

Zonnepanelen

Kenmerken

Overdracht
Vraagprijs
€ 1.200.000 k.k.
Status
beschikbaar
Aanvaarding
in overleg
Bouw
Soort woonhuis
Landhuis
Soort bouw
vrijstaande woning
Bouwjaar
2019
Energieklasse
A
Soort dak
zadeldak
Slaapkamers
2
Badkamers
2
Oppervlakten en inhoud
Woonoppervlakte
218 m2
Overige inpandige ruimte
0 m2
Gebouwgebonden buitenruimte
5 m2
Externe bergruimte
91 m2
Inhoud
825 m3
Perceeloppervlakte
21211 m2
faciliteiten
Jacuzzi
Stoomcabine
Rookkanaal
Schuifpui
Frans balkon
Sauna
Zonnepanelen
Natuurlijke ventilatie
Aan water
Aan rustige weg
Vrij uitzicht
Buiten bebouwde kom
Aan vaarwater
Landelijk gelegen
Baerz & Co Property Brochure

Brochure

Video’s

Plattegronden

Villa Friesland Makelaardij

Lange Marktstraat 1
8911 AD Leeuwarden

info@villafriesland.nl
+31 (0)58 - 23 006 23

www.villafriesland.nl

Informatie / bezichtigingsaanvraag

Ellen Schoneveld profile image
Ellen Schoneveld
Real Estate Agent