 
	        		 
								Privédomein aan de Maas
Dit uitstekend onderhouden en volledig onderkelderde landhuis staat op een magnifieke locatie aan de rivier. Naast de vijf slaapkamers en drie badkamers is er een buitenkeuken en een volledig geoutilleerd poolhouse met 4e badkamer, jacuzzi, sauna en verwarmd buitenzwembad. Vanaf het onder architectuur aangelegde perceel is rechtstreeks toegang tot de eigen aanlegsteiger.
Bruto inhoud: 2.042 m³
Gebruiksoppervlakte wonen: 504 m²
Perceeloppervlak: 5.987 m²
Bouwjaar: 2003
Heerewaarden ligt midden in het rivierenlandschap op zo’n 10 kilometer ten oosten van Zaltbommel op de plek waar de Maas en de Waal elkaar bijna raken. Een uitgelezen locatie voor levensgenieters, watersporters en rustzoekers met de voorzieningen op korte afstand.
De autosnelwegen A2 en A15 zijn uitstekend te bereiken, waardoor u in no time in Utrecht, Den Bosch, Eindhoven of Nijmegen bent. Rondom Heerewaarden zijn vele wandel- en struinroutes door de landerijen en uiterwaarden. De dijk langs de Waal is een ideaal vertrekpunt voor eindeloze fietstochten. In het dorp is een openbare basisschool, een jachthaven en een camping (met voornamelijk vaste plaatsen). Verder zijn er vele verenigingen voor jong en oud. Men kan o.a. voetballen, tennissen, muziekspelen, toneelspelen en volksdansen. De dichtstbijzijnde winkels, waaronder twee grote supermarkten bevinden zich op slechts enkele autominuten in de nabijgelegen dorpen Rossum en Dreumel. Aan de overkant van de Maas bevindt zich recreatiegebied ‘De Lithse Ham’ met een prachtige recreatieplassen en vele strandjes.
Als u door de op afstand bedienbare poort het privédomein op rijdt, is het écht thuiskomen. Rust, privacy, comfort en luxe zijn de sleutelwoorden bij dit luxe buiten. Een lange oprit omgeven door witbloeiende Japanse sierkersen leidt door de schitterend aangelegde tuin naar de dubbele garage. Als u uitstapt, loopt u zo het verhoogde terras op, naar de voordeur.
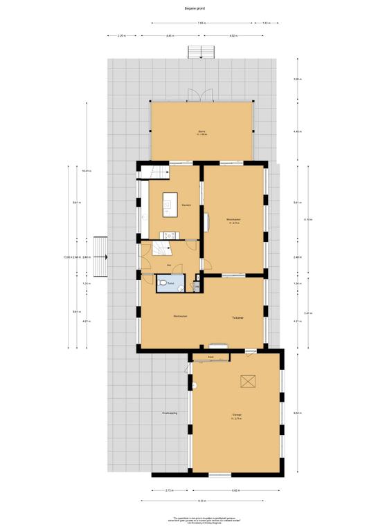
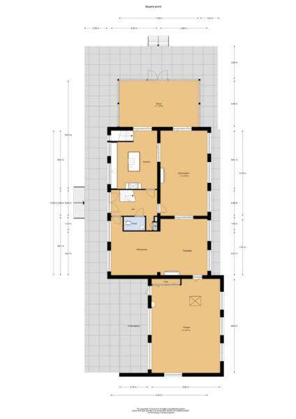
Indeling begane grond:
Achter de dubbele voordeur bevindt zich de hal met een fraaie klassieke trap naar de verdieping. Paneeldeuren geven toegang tot de woonkamer, de tv-kamer en de keuken. De woonkamer en tv-kamer zijn beide voorzien van een luxe gashaard onder een klassieke schouw. De ruimtes zijn met elkaar verbonden middels suitedeuren met glas in lood. Vanuit de woonkamer en keuken geven dezelfde glas in looddeuren toegang tot de riviergerichte serre. Vanuit de serre is door de vele roederamen een fenomenaal 180 graden zicht op de rivier. Rondom zijn radiatorombouwen gerealiseerd die als zitvensterbank fungeren, onderbroken door dubbele glasdeuren naar het zonovergoten en verhoogd gelegen terras. De aangrenzende keuken is ingericht met een luxe Tinello keuken voorzien van een spoeleiland met eetbar en terrazzo werkblad en spoelbak.
De keuken is voorzien van luxe apparatuur en onder de hoge schouw staat een klassieke 4-oven Aga Cooker. De gehele begane grondvloer is belegd met natuurstenen plavuizen zonder drempels en doorlopend op het zonneterras. Uiteraard is de vloer voorzien van vloerverwarming.
Indeling eerste verdieping:
Op deze verdieping zijn drie lichte slaapkamers en een bergkamer. De slaapkamers bieden door de 4-ruits roederamen schitterend zicht op de rivier. De vloeren zijn belegd met hetzelfde natuursteen als op de begane grond en eveneens voorzien van vloerverwarming. De grootste slaapkamer biedt toegang tot de privébadkamer in klassieke stijl. Er is een vrijstaand bad op pootjes, een inloopregendouche, een dubbel wastafelmeubel en een toilet. Aan de overloop grenst de 2e badkamer. Ook hier is een vrijstaand bad, een inloopregendouche en een dubbel wastafelmeubel. De bergkamer biedt alle ruimte voor een vierde slaapkamer op deze woonlaag.
Indeling tweede verdieping:
Via het ronde trappenhuis is toegang tot de overloop waar paneeldeuren toegang geven tot 4e en 5e slaapkamer, de 3e badkamer en een zolderkamer. Alle kamers beschikken over met zink afgewerkte dakkapellen, vanwaar zicht is op de Maas. De riante badkamer is ingericht met een ronde douchecabine, wastafelmeubel en toilet. Zelfs douchend is zicht op de rivier.
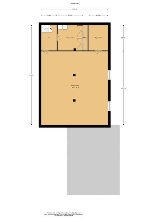
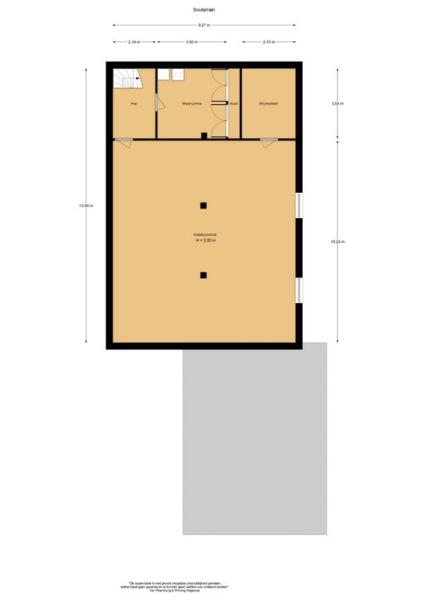
Indeling souterrain:
Het souterrain is bereikbaar via een vaste trap vanuit de keuken. Aan de benedenhal grenst de wasruimte met witgoedaansluitingen en vaste kasten. Als u ruimte zoekt voor bijvoorbeeld een ruimtevragende hobby, studio of speelruimte voor de jeugd, dan biedt de ruimte van maar liefst
95 m2 alle mogelijkheden. Verder is er in het souterrain een wijnkelder.
Indeling poolhouse:
Via een brede trapafgang in hardsteen leidt een klinkerpad naar het luxe poolhouse. Buiten is er een overkapping waaronder de jacuzzi staat met zicht op de Maas. Binnen is het een heuse wellness met stoomcabine, 4-persoons sauna en een stortdouche. Zowel vanuit de sauna als vanuit de aangrenzende ontspanningsruimte met moderne gashaard is schitterend zicht op de rivier. Aan de achterzijde van het poolhouse zijn een drietal bergingen voor techniek, watersportuitrusting en fietsen. Bij het poolhouse ligt een recent gerenoveerd zwembad met solardeck, verlichting en jetstreamer. Uiteraard is bij het zwembad een luxe buitendouche. Bij het zwembad is ook een buitenkeuken met overdekt terras met middag- en avondzon.
Bijzonderheden:
Dit onder architectuur gebouwde landhuis verrees in 2003 op een magnifieke locatie waar in het verleden een boerderij stond. Bij de bouw zijn er geen enkele concessies gedaan aan kwaliteit.
Het pand is uitstekend onderhouden, volledig geïsoleerd en optimaal beveiligd. De fraai aangelegde tuin is ingericht met gazon omgeven door grote heesters en volwassen bomen en gaat op harmonieuze wijze over in het omliggende rivierenlandschap. Het gazon wordt gesepareerd door een A-watergang die ervoor zorgt dat het kwelwater tussen de Waal en Maas wordt afgevoerd naar de rivier. Over deze watergang is een brug aangelegd, waardoor ook de robotmaaier beide delen kan bereiken. Aan de Maaszijde bevindt zich een privé aanlegsteiger waar een 25ft bootlift is en plaats voor een 40ft jacht.
Als u op een ultieme locatie buiten wilt wonen in rust en privacy met bovenal maximaal comfort, maak dan een afspraak voor een bezichtiging. We leiden u er met genoegen rond.
