Baerz & Co is een landelijk samenwerkingsverband van zorgvuldig geselecteerde boutique luxury makelaars. Samen vormen wij één netwerk, met één gedeeld aanbod. De woningen die u op onze website ziet, zijn afkomstig van alle aangesloten kantoren binnen Baerz & Co. Daardoor is niet ieder object rechtstreeks door ons kantoor in verkoop, maar door een gespecialiseerde collega binnen ons netwerk. Heeft u een woning gevonden die u aanspreekt en wilt u meer informatie? Dan brengen wij u graag persoonlijk in contact met de betreffende verkoopmakelaar, zodat u direct en zorgvuldig wordt begeleid.

ENSCHEDE
Kleine Linderesweg 50 - 7531 HH
Nederland

Jeanette van Haaften profile image
Jeanette van Haaften
Real Estate Agent
€2.950.000 v.o.n.
Woonoppervlakte
195m2
Perceeloppervlakte
72410m2
Slaapkamers
3

Omschrijving

Op een absolute toplocatie aan de stadsrand van Enschede, tussen de groene villawijk Het Stokhorst en het fraaie buitengebied van 't Hooge Boekel, ligt landgoed “Wienenbleek”. Dit landgoed omvat een volumineuze woonboerderij, royale bijgebouwen en maar liefst 7,24 hectare grond. Het erf op dit landgoed wordt gemarkeerd door monumentale bomen die een krachtig ensemble vormen met de karakteristieke boerderij uit de dertiger jaren van de vorige eeuw. Vanaf het erf valt dagelijks te genieten van het fenomenale uitzicht over de door bos en houtwallen geflankeerde landerijen die tot het landgoed behoren.

Laat u verrassen door de vrijheid en de mogelijkheden die dit landgoed aan de groene stadsrand van Enschede te bieden heeft.

De woonboerderij, wonen met historie
Het hart van het landgoed wordt gevormd door de robuuste woonboerderij, die gebouwd is in 1930. Toen het eind jaren zeventig in bezit kwam van familie van de huidige eigenaren werd de boerderij met zorg en vakmanschap uitgebreid en verbouwd tot woonboerderij waar luxueus kon worden gewoond maar waar ook ruimte was voor het boeren op kleine schaal.

Tijden, leef- en woonwensen veranderen. Dit prachtige pand is toe aan een nieuw hoofdstuk, waarvan u de regisseur kunt zijn. Denk daarbij aan uitbreiding van het woongedeelte en wooncomfort, modernisering, verduurzaming, extra wooneenheid met het oog op bijvoorbeeld toekomstige mantelzorg.

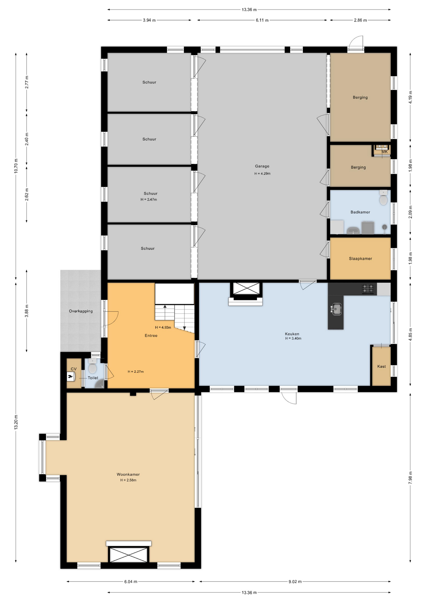
De indeling is thans als volgt:
Een overdekte entree, uitgevoerd in bentheimersteen, leidt naar een lichte hal met tegelvloer. Vanuit de hal, trapopgang, gastentoilet, woonkeuken en royale living in de zogenaamde endskamer. Zowel vanuit de keuken als de endskamer zijn de landerijen in een Twents coulisselandschap het dagelijkse decor, terwijl de open haarden een warme en intieme sfeer creëren.

Op de verdieping zijn meerdere slaapkamers gesitueerd alsmede een ruime badkamer.

Het achterhuis is constructief nog in de oorspronkelijke staat met fraai gebintwerk en niendeur. Op de plaats waar vroeger de koeien stonden zijn thans vijf paardenstallen, een zadelkamer en aanvullende voorzieningen zoals een kantoorruimte, een douche en aansluitingen voor witgoed.

Zomerhuisje en bijgebouwen
Een eindje vanaf de boerderij aan de rand van het bos staat een eenvoudig zomerhuisje. Het is een houten gebouw met bitumen dak dat bijvoorbeeld als gastenverblijf kan dienen.

Bijgebouwen
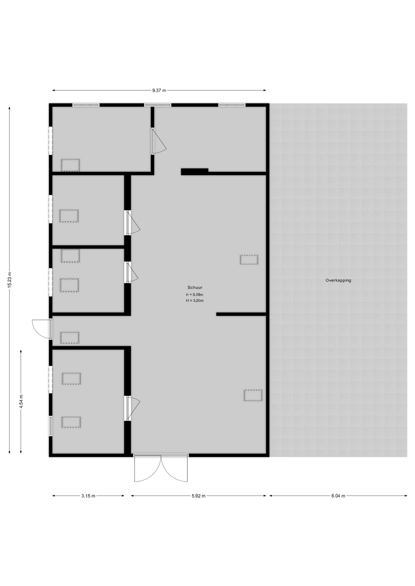
Naast de boerderij staat een grote schuur van maar liefst 225 m², gebouwd in Saksische stijl en voorzien van gemetselde muren met houten topgevels en deuren. Dit bouwwerk is ingericht ten behoeve van de paardenhouderij met meerdere stallen.

Op het achtererf staat een grote kapschuur. Een uitstekende stallingsruimte voor meerdere auto’s, een camper, machines, gereedschappen, etcetera.

Naast het zomerhuisje bevindt zich een oude schaapskooi, die inmiddels door de begroeiing gedeeltelijk is overwoekerd. Karakteristiek voor een klassiek Twents boerenerf zijn het kleine kippenhok en een spieker. Het geeft u de mogelijkheid voor het houden van kippen of andere kleindieren, en drogen en opslaan van bijvoorbeeld haardhout uit eigen bos.

Landerijen en bossen en beek
Landgoed Wienenbleek beslaat een oppervlakte van circa 7,24 ha en omvat naast het erf circa 4,5 hectare aan weilanden welke geflankeerd worden door circa 2,4 ha aan bos en houtwallen. De weilanden met daarin een rijbak zijn ideaal wanneer u paarden of ander vee wilt houden. Maar uiteraard kunnen deze gronden ook extensief worden gebruikt zodat ze een mooie natuurlijke overgang vormen naar het bos.

Het aanwezige bos vormt een mooie afscheiding met de naastgelegen wijk Stokhorst. Er staan veel monumentale bomen met her en der een prachtige ondergroei van diverse planten en struiken. Door het bos loopt een meanderende beek waardoor het gebied een waar eldorado is voor de flora en fauna. Wellicht kunt u hier straks als eigenaar dagelijks van genieten!

Centraal gelegen met stad en natuur binnen handbereik
Aan de rand van de rustige en groene villawijk Het Stokhorst ligt dit unieke landgoed op een centrale en toch beschutte locatie. Vanuit de woonboerderij wandel je meteen in het buitengebied de Hoge Boekel met een bosrijk landschap. De omgeving biedt volop mogelijkheden voor wandel- en fietstochten, waardoor je optimaal kunt genieten van de natuur.

Nabijgelegen steden zoals Enschede, Hengelo en Oldenzaal zijn eenvoudig te bereiken waardoor je zowel de rust van het platteland als de voorzieningen van de stad binnen handbereik hebt. Het bruisende centrum van Enschede bevindt zich op slechts een steenworp afstand, zodat je optimaal kunt genieten van de levendige stadsomgeving. Voor culinaire liefhebbers zijn er diverse eetgelegenheden, variërend van gezellige cafés tot restaurants met Michelinster. Daarnaast biedt de stad een rijk cultureel aanbod, waaronder musea zoals het Rijksmuseum Twenthe en het Wilminktheater.

Meerdere onderwijsinstellingen zoals de universiteit van Twente, de hogescholen Saxion en ArtEZ bieden volop mogelijkheden aan studenten (verschillende niveaus en uiteenlopende studierichtingen). Daarnaast vind je diverse voorzieningen op korte afstand van het landgoed zoals basis- en middelbare scholen, sportverenigingen en winkelcentra.

Dit maakt het landgoed niet alleen een plek van rust en natuur, maar ook een ideale locatie voor gezinnen en iedereen die het gemak van stedelijke voorzieningen wil combineren met de charme van het platteland.

Omgevingsplan/ Bestemming
Binnen het omgevingsplan is het bestemmingsplan Buitengebied Zuid Oost van de gemeente
Enschede van kracht. Daarin heeft het erf de bestemming wonen met de functieaanduiding 'specifieke vorm van wonen-agrarische woning'. De weilanden, rijbak en houtwallen vallen onder de bestemming agrarisch. Het bos heeft als bestemming bos. Het gehele landgoed valt onder de stadsrandzone van de gemeente Enschede. Voor nadere uitleg over de bestemming kunt u het omgevingsloket (regels op de kaart) raadplegen of contact opnemen met de gemeente Enschede.

NSW / Buitenkans / Subsidie
Het landgoed is gerangschikt als (gedeeltelijk) opengesteld NSW-landgoed. Aan een opvolgend eigenaar wordt de verplichting gesteld het landgoed als zodanig in stand te houden en opnieuw te herrangschikken. Hierdoor geniet u diverse fiscale voordelen waaronder een levering vrij van overdrachtsbelasting, een jaarlijks lage onroerend goed belasting en voordelen in het kader van schenken en nalaten.

De gids ”Buitenkans” biedt mogelijkheden voor herbestemmingen op een erf met bijgebouwen. Bijvoorbeeld de VAB-regeling (Vrijgekomen Agrarische Bedrijfsgebouwen). Daarnaast zijn er subsidieregelingen beschikbaar voor (agrarisch) natuurbeheer e.d.

Wij informeren u graag tijdens een bezichtiging over de vele mogelijkheden van dit unieke landgoed.
De vraagprijs is vrij op naam, met uitzondering van de notariskosten.

Deze presentatie is informatief en geheel vrijblijvend. Tekeningen, maten, oppervlakte en inhoud zijn indicatief, hieraan kunnen geen rechten worden ontleend.

Kenmerken

Overdracht
Vraagprijs
€ 2.950.000 v.o.n.
Status
beschikbaar
Aanvaarding
in overleg
Bouw
Soort woonhuis
Woonboerderij
Soort bouw
vrijstaande woning
Bouwjaar
1923
Energieklasse
G
Soort dak
zadeldak
Slaapkamers
3
Badkamers
1
Oppervlakten en inhoud
Woonoppervlakte
195 m2
Overige inpandige ruimte
267 m2
Gebouwgebonden buitenruimte
7 m2
Externe bergruimte
208 m2
Inhoud
2000 m3
Perceeloppervlakte
72410 m2
faciliteiten
Natuurlijke ventilatie
Aan bosrand
Aan rustige weg
Vrij uitzicht
Beschutte ligging
Open ligging
In bosrijke omgeving
Landelijk gelegen
Baerz & Co Property Brochure

Brochure

Video’s

Plattegronden

Bijzonder Wonen Makelaardij

Heilige Geeststraat, 11
5301CP Zaltbommel

info@bijzonderwonen.com
+31 41 868 00 50

www.bijzonderwonen.com

Informatie / bezichtigingsaanvraag

Jeanette van Haaften profile image
Jeanette van Haaften
Real Estate Agent

Een luxe woning kopen in Enschede

Enschede verwelkomt internationale bewoners in een dynamische, cultureel rijke gemeenschap. Excellente woonmogelijkheden combineren privacy, design en hoogwaardige voorzieningen, aangevuld met internationale bereikbaarheid en een creatieve sfeer.