Ons kantoor is lid van Baerz & Co Luxury Homes; een internationaal platform dat exclusieve woningmakelaars met elkaar verbindt. Neem contact op met ons secretariaat voor meer informatie over het landelijke aanbod, waarvan u hieronder een selectie kunt bekijken.

BREDA
Kapelstraat 117 - 4817 NX
Nederland

Lennart van Oosterhout profile image
Lennart van Oosterhout
Real Estate Agent
€1.235.000 k.k.
Woonoppervlakte
221m2
Perceeloppervlakte
2236m2
Slaapkamers
5

Omschrijving

Deze prachtige en uitstekende onderhouden vrijstaande woning is gelegen aan een zeer rustige weg in de gewilde woonwijk 'Heusdenhout'.

De gebruiks mogelijkheden zijn groot, de woning biedt o.a. een woon- en aparte eetkamer, 5 (!) slaapkamers en 3 badkamers.

De riante tuin biedt optimale privacy, heeft een heel goede zonligging en is fraai aangelegd met o.a. ruime terrassen, een groot gazon en een heerlijk zwembad. De gehele woning is goed geïsoleerd en voorzien van 18 zonnepanelen. De nieuwe kozijnen en ramen zijn voorzien van HR+++ glas. De woning is gedeeltelijk voorzien van plafondisolatie.

De ligging is zeer goed, op loopafstand van een winkelcentrum, nabij scholen en uitvalswegen en op ca. 10 fietsminuten afstand van het centrum van Breda.

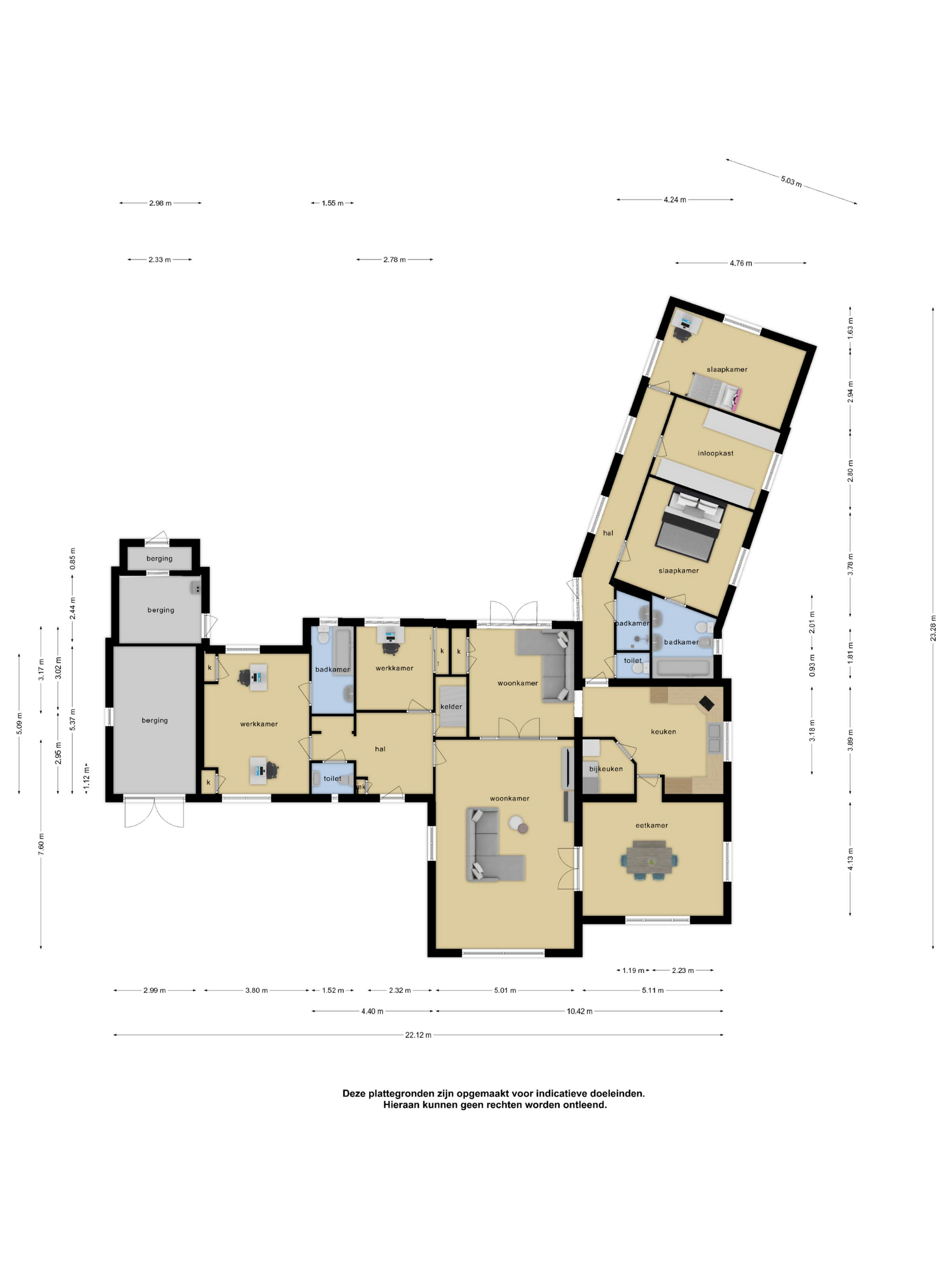
INDELING
BEGANE GROND
HAL/ENTREE
U betreedt de woning via de ruime entree, welke is voorzien van een leistenen tegelvloer. In de hal treft u de meterkast (16 groepen + 2 aardlekschakelaars en voorziening tbv een elektrische auto) en de garderobe.

Vanuit de hal toegang tot de ruime kelder en de toiletruimte.

KELDER
Ruime kelder op stahoogte.

TOILET
Toiletruimte, voorzien van wandcloset met inbouwreservoir en een fonteintje.

Vanuit de eerdergenoemde hal toegang tot

SLAAPKAMER I
Slaapkamer met twee inbouwkasten en toegang tot aangrenzende badkamer. Deze slaapkamer is aan de zijkant van de woning gesitueerd.

BADKAMER I
Badkamer met toilet, ligbad, wastafelmeubel en designradiator. De badkamer is betegeld met antraciet vloertegels en lichte wandtegels.

SLAAP-/WERKKAMER II
Slaap-/werkkamer met inbouwkast.

WOONKAMER/ZITKAMER
Woonkamer met mooie daglichttoetreding en zicht op de voortuin. De woonkamer is voorzien van een open haard, inbouwkasten en een (massieve) houten vloer.

De stalen deuren geven toegang tot de aparte zitkamer, grenzend aan de achtertuin. Twee openslaande deuren geven toegang tot de achtertuin.

Vanuit de zitkamer heeft u via glazen deuren eveneens toegang tot de eetkamer. Vanuit de eetkamer heeft u toegang tot de keuken.

Zowel de woonkamer, zitkamer en de eetkamer zijn voorzien van een parketvloer.

KEUKEN
Deze ruimte is voorzien van een inrichting in U-opstelling met een groot werkblad met dubbele spoelbak, een koelkast, wandkasten, een apothekerskast en diverse laden. De apparatuur omvat verder onder andere een oven, inductiekookplaat, afzuigkap en vaatwasmachine.
Vanuit de keuken toegang tot de bijkeuken.

BIJKEUKEN
Bijkeuken met (antraciet) plavuizen vloer. Hier treft u onder andere de aansluitpunten voor de wasapparatuur, wandkasten en extra ruimte voor een koelkast of vriezer.

Vanuit de keuken bereikt u een aparte gang met toegang tot diverse vertrekken. Voor extra daglichttoetreding is er in deze gang een solatube geplaatst.

TOILET
Wandcloset met inbouwreservoir en fonteintje.

BADKAMER II
Badkamer met douche, wastafelmeubel en handdoekradiator.

SLAAPKAMER III
Slaapkamer met aangrenzende badkamer.

BADKAMER III
Badkamer met ligbad, toilet, bidet, wastafelmeubel met dubbele wastafel en een design radiator.

SLAAPKAMER IV
Slaapkamer, thans in gebruik als garderobe.

SLAAPKAMER V
Slaapkamer aan het einde van de gang gesitueerd.

GANG
Voor extra daglichttoetreding is er een Solatube geplaatst.

De gehele woning is geheel voorzien van een fraaie laminaatvloer.

TUIN
De prachtig aangelegd tuin biedt optimale privacy en op alle momenten van de dag zon- en schaduwplekken. De tuinaanleg bestaat oa uit een groot gazon, diverse terrassen (in grote tegels en steigerplanken uitgevoerd), prachtige bomen, heesters en borders met zeer variërende beplanting.

Vanuit de tuin bereikbaar;

BERGING/TECHNISCHE RUIMTE
Berging/technische ruimte waarin de cv-combiketel (combi-ketel uit 2024) geplaatst is.

ZWEMBAD
Modern, verwarmd zwembad (ca. 6,0 x 9,5 m met een diepte van ca. 1,3 tot 1,75 m) met filterinstallatie, elektrisch roldek.

GARAGE
Ruime garage, aan de zijkant van de woning gelegen. De garage is voorzien van elektra.

WAT U VERDER NOG MOET WETEN;
• De woning is deels voorzien van een sfeervol balkenplafond (waartussen glad stucwerk) met inbouwverlichting.
• De garage is voorzien van elektra
• De woning is voorzien van plafondisolatie en vloerisolatie
• De tuin is voorzien van elektra/verlichting en een beregeningsinstallatie.
• Het dak is voorzien van 18 zonnepanelen (geplaatst in 2023) en warmtecollectoren voor de verwarming van het zwembad.
• Er is een grondwaterpomp aanwezig.
• Het zwembad is voorzien van een filterinstallatie/zuiveringsinstallatie met een automatisch doseringssysteem.

Speciale Kenmerken

Zwembad
Zonnepanelen
Alarm system

Kenmerken

Overdracht
Vraagprijs
€ 1.235.000 k.k.
Status
beschikbaar
Aanvaarding
in overleg
Bouw
Soort woonhuis
Eengezinswoning
Soort bouw
vrijstaande woning
Bouwjaar
1959
Energieklasse
C
Soort dak
samengesteld dak
Slaapkamers
5
Badkamers
3
Oppervlakten en inhoud
Woonoppervlakte
221 m2
Overige inpandige ruimte
36 m2
Externe bergruimte
8 m2
Inhoud
954 m3
Perceeloppervlakte
2236 m2
faciliteiten
Alarminstallatie
Rolluiken
Buitenzonwering
Zwembad
Zonnecollectoren
Zonnepanelen
Aan rustige weg
In woonwijk
Beschutte ligging
Baerz & Co Property Brochure

Brochure

Video’s

Plattegronden

Storimans en Partners

Ginnekenweg 161
4818 JD Breda

lvanoosterhout@storimansenpartners.nl
+31 76 522 60 90

www.storimansenpartners.nl

Informatie / bezichtigingsaanvraag

Lennart van Oosterhout profile image
Lennart van Oosterhout
Real Estate Agent