Ons kantoor is lid van Baerz & Co Luxury Homes; een internationaal platform dat exclusieve woningmakelaars met elkaar verbindt. Neem contact op met ons secretariaat voor meer informatie over het landelijke aanbod, waarvan u hieronder een selectie kunt bekijken.

Villa te koop in BERKEL-ENSCHOT

BERKEL-ENSCHOT Laurier 5 - 5056 RJ Nederland


Shirley Kneepkens profile image
Shirley Kneepkens
Real Estate Agent
+31 (0)6 51 6789 53
shirley@shirleykneepkens.nl

Shirley Kneepkens Makelaardij
Raadhuisstraat 44
5056HD Berkel-Enschot
NETHERLANDS
+31 (0)13 533 56 55
www.shirleykneepkens.nl
info@shirleykneepkens.nl

Woonoppervlakte
275m2
Perceeloppervlakte
1240m2
Slaapkamers
4

Omschrijving

Een droomwoning waar luxe, comfort en design samenkomen
Wonen alsof je iedere dag op vakantie bent? Dat kan in deze unieke villa aan de Laurier 5 in Berkel-Enschot. Gelegen aan een rustige, doodlopende straat en direct grenzend aan een prachtig park, biedt deze woning niet alleen ultieme privacy maar ook schitterende vrije zichtlijnen. Hier woon je in het groen, met de sfeer van het buitengebied, en toch centraal tussen Tilburg, Den Bosch en Eindhoven.
De villa is in 2022 volledig nieuw gebouwd met een gebruiksoppervlakte van 305 m² en straalt kwaliteit, luxe en toekomstbestendigheid uit. Met energielabel A++++, een volledig Philips Hue lichtplan, een alarmsysteem met camera’s en 72 zonnepanelen is dit huis helemaal klaar voor de toekomst. Extra hoge plafonds, verdiepingshoge stalen deuren en vloerverwarming én -koeling door het hele huis zorgen voor een modern en comfortabel woonklimaat.
Binnen vormt de royale woonkeuken met kook- en spoeleiland het kloppend hart van de woning. Zowel keuken, badkamers, garderobes als toilettafels zijn volledig maatwerk en ontworpen met oog voor detail en stijl. De lichte woonkamer en de corridor met indrukwekkende glaspartij leggen een prachtige verbinding met de onder architectuur aangelegde tuin en het adembenemende uitzicht. Met vier ruime slaapkamers en twee luxe badkamers is er volop ruimte voor het hele gezin.
Buiten is het genieten in optima forma: een verwarmd zwembad, meerdere overdekte terrassen, een luxe veranda maken het buitenleven hier een ware beleving. Alles ademt rust, comfort en exclusiviteit. Daarbij geniet u van optimale privacy, met vrije zichtlijnen over de uitgestrekte agrarische velden aan de zijkant en het groen van de hobbyweides aan de achterzijde. Die unieke combinatie van ruimte en natuur versterkt het gevoel van vrijheid.
Droom je van het bouwen van je eigen villa? Dat hele proces is hier al voor je doorlopen – zonder de zorgen en stress. Deze woning is instapklaar, hypermodern en tot in de kleinste details afgewerkt.
Laurier 5 is meer dan een huis: het is een levensstijl. Luxe, comfort en zorgeloos wonen komen hier op unieke wijze samen.

Begane grond geheel voorzien van vloerverwarming en koeling en professionele wifi schotels (binnen en buiten)

Hal
ca. 19,5 m² met tegelvloer, stucwerk wanden, stucwerk plafond met inbouwspots en voorzien van een garderobe, een zweeftrap met toegang tot de slaapkamer, eerste verdieping en een verdiepingshoge stalen deur met toegang tot de Corridor.
toiletruimte met stucwerk wanden, stucwerk plafond met inbouwspots, zwevend toilet en fontein
toiletruimte met stucwerk wanden, stucwerk plafond met inbouwspots, urinoir en fontein.

Corridor
ca. 15 m² met tegelvloer, stucwerk wanden, extra hoog stucwerk plafond met inbouwspots en voorzien van een volledige glaspartij met uitzicht over de tuin en voorzien van een elektrische screen.

Woonkamer
ca. 39,5 m² met visgraat pvc-vloer, stucwerk wanden en een extra hoog stucwerk plafond met inbouwspots.

Woonkeuken
ca. 47 m² met tegelvloer, stucwerk wanden, stucwerk plafond, twee schuifpuien, twee hordeuren, elektrische screens, ingebouwde audio-installatie in het plafond en rechte keukenopstelling voorzien van composiet aanrechtblad met verhoogd bargedeelte, kook- en spoeleiland, 4-pits inductiekookplaat, afzuigsysteem in de kookplaat, dubbele spoelbak, Quooker flex, Amerikaans koel- vriescombinatie, combi-oven, combi-stoom, vaatwasser en twee wijnklimaatkasten.

Bijkeuken / wasruimte
ca. 6,5 m² met tegelvloer, stucwerk wanden, stucwerk plafond en voorzien van een inbouwkast, inbouw koel-vriescombinatie, aansluiting witgoed en een deur met toegang tot de tuin en de inpandige garage.

Slaapkamer 1
ca. 22,5 m² met tegelvloer, stucwerk wanden, stucwerk plafond en voorzien van een walk-in closet, tv- en internetaansluiting en toegang tot de badkamer en-suite.

Badkamer en-suite.
ca. 8,5 m² met tegelvloer, stucwerk wanden (beton ciré), stucwerk plafond en voorzien van een inloopdouche en een badkamermeubel met 2 wastafels.

Garage
ca. 28 m² voorzien van elektriciteit, verwarming, inpandig bereikbaar, waterontharder, warmtepomp Stiebel Eltron, bouwjaar 2022 automatisch bedienbare sectionaaldeur.
1e Verdieping geheel voorzien van vloerverwarming en koeling

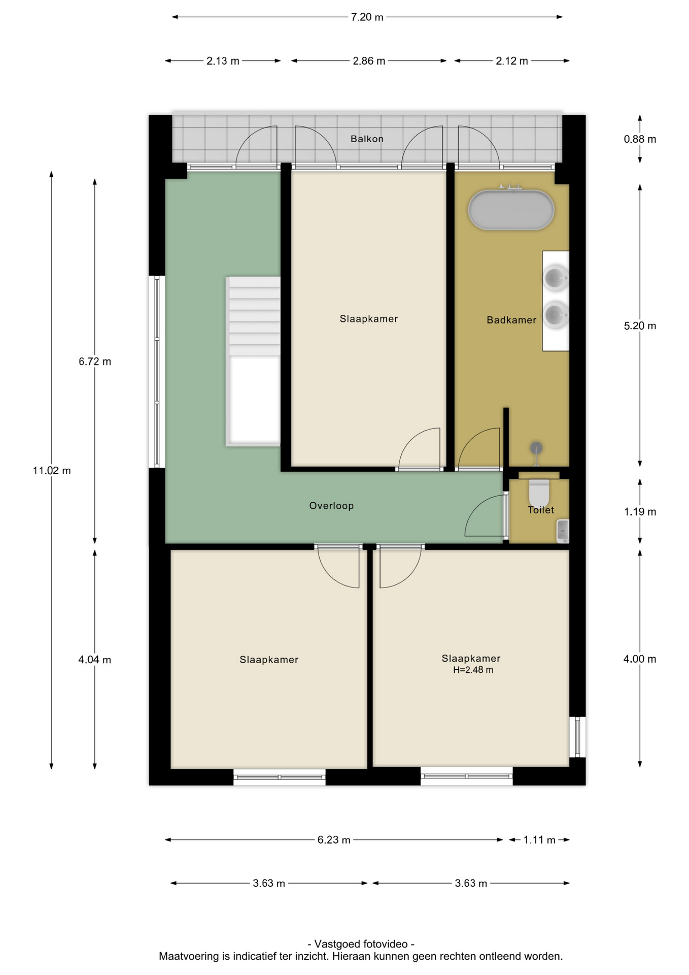
Overloop
ca. 19,5 m² met pvc-vloer, stucwerk wanden, stucwerk plafond met inbouwspots, balkondeur en toegang tot 3 slaapkamers, badkamer en toilet.

Slaapkamer 2
ca. 15 m² met pvc-vloer, stucwerk wanden, stucwerk plafond en voorzien van een tv- en internetaansluiting.

Slaapkamer 3
ca. 14,5 m² met pvc-vloer, stucwerk wanden, stucwerk plafond en voorzien van een tv- en internetaansluiting en raamhorren.

Slaapkamer 4
ca. 14,5 m² met pvc-vloer, stucwerk wanden, stucwerk plafond en voorzien van een tv- en internetaansluiting en raamhorren.

Badkamer 2
ca. 11 m² met tegelvloer, geheel betegelde wanden, stucwerk plafond met inbouwspots en voorzien van een inloopdouche met thermostatische kraan, vrijstaand bad met thermostatische kraan, badkamermeubel met 2 wastafels.

Aparte toiletruimte met een zwevend toilet en toiletmeubel met fontein.
Buiten

Tuin
Onder architectuur aangelegde achtertuin gelegen op het zuidwesten met vrije zichtlijnen zowel aan de achterzijde over de hobbyweides als aan de zijkant over de agrarische velden. De tuin is voorzien van een irrigatiesysteem, tuinverlichting, twee buitenkranen, RVS buitendouche, maatwerk hardhouten tuinmeubels met ligbedden, mobiele buitenkeuken en diverse voorzieningen zoals elektra punten.

Zwembad
Verwarmd zwembad met verlichting met een diepte van ca. 1.50 m, solardek, trap, jets en verwarmd middels een warmtepomp. Ook is er een aparte toiletruimte buiten aanwezig.

Veranda
ca. 27 m² voorzien van verlichting, temperatuur instelbare heater, tv- en internetaansluiting, ingebouwde audio-installatie in het plafond, bar met warm en koud water boiler, koelkast en is geheel af te sluiten met een glazen schuifpui.

Pergola
ca. 26 m² voorzien van verlichting en een automatisch lamellen dak met maatwerk hardhouten lounge bank.

Berging
ca. 10,5 m² houten berging voorzien van elektriciteit.

Oprit
Afsluitbaar met een elektrische dubbele designpoort. De lijnen uit de poort komen terug in de gehele woning. De oprit biedt plaats voor 6 auto’s en is voorzien van een laadpaal.
Algemeen

Bouwjaar
ca. 2022.

Inhoud
woonhuis ca. 1.133 m³.

Woonoppervlakte
ca. 275 m².

Overige inpandige ruimte (inpandige garage + buitentoilet ruimte)
ca. 30,5 m².

Gebouwgebonden buitenruimte (balkon 1e verdieping)
ca. 6,5 m².

Externe bergruimte (berging in de tuin)
ca. 10,5 m².

Perceeloppervlakte
ca. 1.240 m².

Isolatie
- de woning is geheel voorzien van driedubbele beglazing
- de woning is voorzien van gevel-, dak- en vloerisolatie.

Overig
- de woning is voorzien van 72 zonnepanelen
- de woning is geheel voorzien van vloerverwarming en -koeling.

Energielabel
A++++

Aanvaarding
in overleg.

Vraagprijs
€ 1.897.500 k.k.

Kenmerken

Overdracht
Vraagprijs
€ 1.897.500 k.k.
Status
beschikbaar
Aanvaarding
in overleg
Bouw
Soort woonhuis
Villa
Soort bouw
vrijstaande woning
Bouwjaar
2022
Energieklasse
A_PPPP
Soort dak
plat dak
Slaapkamers
4
Badkamers
2
Oppervlakten en inhoud
Woonoppervlakte
275 m2
Overige inpandige ruimte
31 m2
Gebouwgebonden buitenruimte
6 m2
Externe bergruimte
11 m2
Inhoud
1133 m3
Perceeloppervlakte
1240 m2
faciliteiten
Buitenzonwering
Zwembad
Schuifpui
Zonnepanelen
Aan rustige weg
In woonwijk
Vrij uitzicht
Landelijk gelegen
Baerz & Co Property Brochure

Brochure

Informatie / bezichtigingsaanvraag

Video's

Foto's

Plattegronden