Ons kantoor is lid van Baerz & Co Luxury Homes; een internationaal platform dat exclusieve woningmakelaars met elkaar verbindt. Neem contact op met ons secretariaat voor meer informatie over het landelijke aanbod, waarvan u hieronder een selectie kunt bekijken.

Villa te koop in BERKEL EN RODENRIJS

BERKEL EN RODENRIJS Ellen Vogelstraat 23 - 2652 LK Nederland


Dominique Blom profile image
Dominique Blom
Real Estate Agent
+31 107850833
dominique@dbmakelaars.nl

DB Makelaars
Dorpsstraat 79
2661 CE Bergschenhoek
NETHERLANDS
+31 107850833
www.dbmakelaars.nl
info@dbmakelaars.nl

Woonoppervlakte
152m2
Perceeloppervlakte
204m2
Slaapkamers
4

Omschrijving

Ruime 2 onder 1 kap woning in kindvriendelijke wijk ‘Het Gouden Podium’

In de rustige en kindvriendelijke wijk Het Gouden Podium staat deze ruime instapklare 5-kamer 2 onder 1 kap woning met een verzorgde uitstraling. De woning ligt aan een groenstrook en beschikt over een diepe achtertuin met een vrijstaande houten berging en een overkapping.
Een fijne plek om het hele jaar door van te genieten.

De tuingerichte woonkamer heeft een prettige indeling en sluit mooi aan op de moderne open keuken met een groot kook- en spoeleiland. Hier is alle ruimte om samen te koken, te eten en te genieten. Op de verdiepingen bevinden zich vier goed ingedeelde slaapkamers, een luxe badkamer en twee aparte toiletruimten.

De ligging is ideaal: dichtbij het gezellige centrum van Berkel en Rodenrijs, scholen, speelgelegenheden, sportverenigingen, openbaar vervoer (RandstadRail), het gezondheidscentrum en diverse recreatiegebieden. Ook de uitvalswegen richting Rotterdam, Delft, Den Haag en Zoetermeer zijn snel te bereiken.

Kortom: een verzorgde en comfortabele gezinswoning met veel leefruimte, een diepe tuin en een rustige ligging in een groene, kindvriendelijke omgeving.

Indeling:

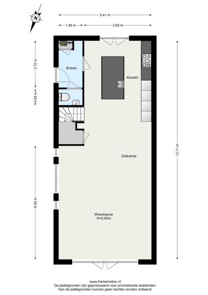
Begane grond
De woning ligt aan een rustige, kindvriendelijke groenstrook en heeft een verzorgde voortuin. Binnenkomst via de hal met garderobe, meterkast en een betegelde toiletruimte met zwevend toilet en fontein.

De tuingerichte woonkamer is ruim en licht, afgewerkt met een fraaie Bourgondisch dallen natuurstenen vloer met vloerverwarming. De trap naar de eerste verdieping bevindt zich in de woonkamer en de trapkast is praktisch ingericht als extra garderobe. Openslaande deuren bieden toegang tot de diepe achtertuin, compleet met overkapping en vrijstaande houten berging.

Aan de voorzijde van de woning bevindt zich de moderne keuken met groot kook- en spoeleiland, uitgerust met hoogwaardige inbouwapparatuur zoals een apothekerskast, spoelbak, gasfornuis, afzuigkap, heteluchtoven, koelkast en vaatwasser.

Eerste verdieping
De overloop is voorzien van een houten vloer en geeft toegang tot een de toiletruimte. Aan de achterzijde van de woning bevinden zich twee slaapkamers, aan de voorzijde één slaapkamer. De volledig betegelde badkamer is luxe uitgevoerd met een inloopdouche, ligbad, badkamermeubel met dubbele wastafel, grote spiegel en handdoekradiator.

Tweede verdieping / zolder
De ruime open zolderverdieping is voorzien van een houten vloer en beschikt over een dakkapel en knieschotten voor extra bergruimte. Op de zolder bevindt zich een aparte wasruimte met de opstelplaats voor de CV-combiketel (Intergas 2019), de mechanische ventilatieunit, wasmachine, droger en de inverter voor de PV-zonnepanelen.

De open indeling biedt veel mogelijkheden en kan naar eigen wens worden ingericht. Zo is het eenvoudig om hier twee aparte slaapkamers te creëren, waardoor deze verdieping ideaal is voor uitbreiding of een multifunctionele bestemming.

Tuin:

In deze zonnige tuin bevindt zich een sfeervolle overkapping met glazen pui, voorzien van stroom en internet. De ruimte is volledig geïsoleerd en uitgerust met plintverwarming, waardoor deze het hele jaar door comfortabel te gebruiken is. Bovendien zijn er vier zonnepanelen aanwezig, wat bijdraagt aan een energiezuinige en duurzame inrichting.

Bijzonderheden:
- Ruime 5-kamer hoekwoning in een rustige en kindvriendelijke wijk;
- De woning is uitgevoerd met 14 PV zonnepanelen;
- Moderne open keuken met groot kook- en spoeleiland;
- De voorzijde is autovrij en is voorzien van groenstrook;
- Voldoende parkeerplekken aan de achterzijde en voorzijde van de woning;
- Voorzieningen zoals kinderdagverblijf en basisscholen zijn in de directe omgeving;
- Oplevering in overleg, conform Lijst van Zaken.

Wij nodigen jullie van harte uit om deze woning met eigen ogen te bewonderen.

Alle verstrekte informatie moet beschouwd worden als een uitnodiging tot het doen van een bod of om in onderhandeling te treden. De teksten en impressies zijn bedoeld om een goede indruk te geven van het object. Aan de inhoud ervan is de grootst mogelijke zorg besteed. Desondanks is alle informatie nadrukkelijk onder voorbehoud. Er kunnen geen rechten worden ontleend aan deze woninginformatie.

Koopovereenkomst pas rechtsgeldig na ondertekening:
Een mondelinge overeenstemming tussen de particuliere verkoper en de particuliere koper is niet rechtsgeldig. Met andere woorden: er is geen koop. Er is pas sprake van een rechtsgeldige koop als de particuliere verkoper en de particuliere koper de koopovereenkomst hebben ondertekend. Dit vloeit voort uit artikel 7:2 Burgerlijk Wetboek. Een bevestiging van de mondelinge overeenstemming per e-mail of een toegestuurd concept van de koopovereenkomst wordt overigens niet gezien als een 'ondertekende koopovereenkomst'.

Toelichtingsclausule Meetinstructie:
De woning is conform de Branchebrede Meetinstructie (BBMI) opgemeten. De Meetinstructie is bedoeld om een meer eenduidige manier van meten toe te passen voor het geven van een indicatie van de gebruiksoppervlakte. De Meetinstructie sluit verschillen in meetuitkomsten niet volledig uit, door bijvoorbeeld interpretatieverschillen, afrondingen of beperkingen bij het uitvoeren van de meting.
Wij zijn de makelaar van verkoper. Wij adviseren je jouw eigen makelaar mee te nemen voor jouw belangenbehartiging bij de aankoop van jouw toekomstige huis!

Kenmerken

Overdracht
Vraagprijs
€ 850.000 k.k.
Status
beschikbaar
Aanvaarding
in overleg
Bouw
Soort woonhuis
Eengezinswoning
Soort bouw
twee onder een kapwoning
Bouwjaar
2019
Energieklasse
A
Soort dak
zadeldak
Slaapkamers
4
Badkamers
1
Oppervlakten en inhoud
Woonoppervlakte
152 m2
Overige inpandige ruimte
0 m2
Externe bergruimte
29 m2
Inhoud
566 m3
Perceeloppervlakte
204 m2
faciliteiten
Mechanische ventilatie
Alarminstallatie
Rolluiken
Dakraam
Zonnepanelen
In woonwijk
Vrij uitzicht
Baerz & Co Property Brochure

Brochure

Informatie / bezichtigingsaanvraag

Video's

Foto's

Plattegronden