Ons kantoor is lid van Baerz & Co Luxury Homes; een internationaal platform dat exclusieve woningmakelaars met elkaar verbindt. Neem contact op met ons secretariaat voor meer informatie over het landelijke aanbod, waarvan u hieronder een selectie kunt bekijken.

BERGSCHENHOEK
Oltmansstraat 17 - 2662 AA
Nederland

Dominique Blom profile image
Dominique Blom
Register Makelaar Taxateur
€998.000 k.k.
Woonoppervlakte
174m2
Perceeloppervlakte
635m2
Slaapkamers
4

Omschrijving

Wonen aan de Oltmansstraat 17 betekent elke dag genieten van licht, ruimte en rust.
Bij binnenkomst valt direct de royale, uitgebouwde woonkamer op: een lichte en uitnodigende leefruimte met grote raampartijen, vloerverwarming en een schuifpui naar de zonnige tuin. Hier lopen binnen en buiten op een natuurlijke manier in elkaar over.

De aparte keuken met gezellig zitgedeelte is recent vernieuwd en voorzien van moderne inbouwapparatuur. Een fijne plek om uitgebreid te koken of samen te borrelen terwijl je uitkijkt over de voortuin.
Met vier slaapkamers, een praktische zolderverdieping en een royale achtertuin op het westen is dit een heerlijke woning voor wie ruimte zoekt, maar ook sfeer en privacy waardeert.

Tuin & buitenruimte
De grote, verzorgde achtertuin ligt op het westen en biedt meerdere terrassen, een sfeervolle overkapping en een vlonder met prachtig uitzicht over de singel. Door de vrije ligging aan het water is er altijd wel een plek te vinden in de zon of juist in de schaduw, ideaal voor lange zomeravonden, spelen, tuinieren of ontspannen aan het water.
Aan de voorzijde kunnen drie auto’s op eigen terrein worden geparkeerd en is er directe toegang tot de garage.

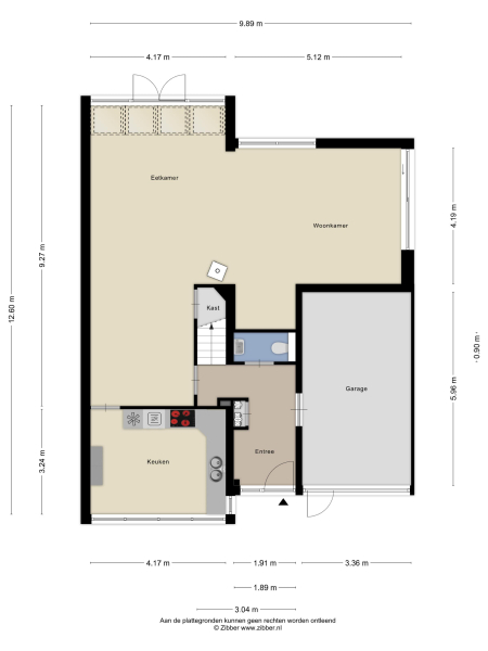
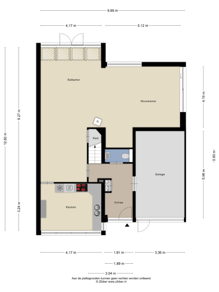
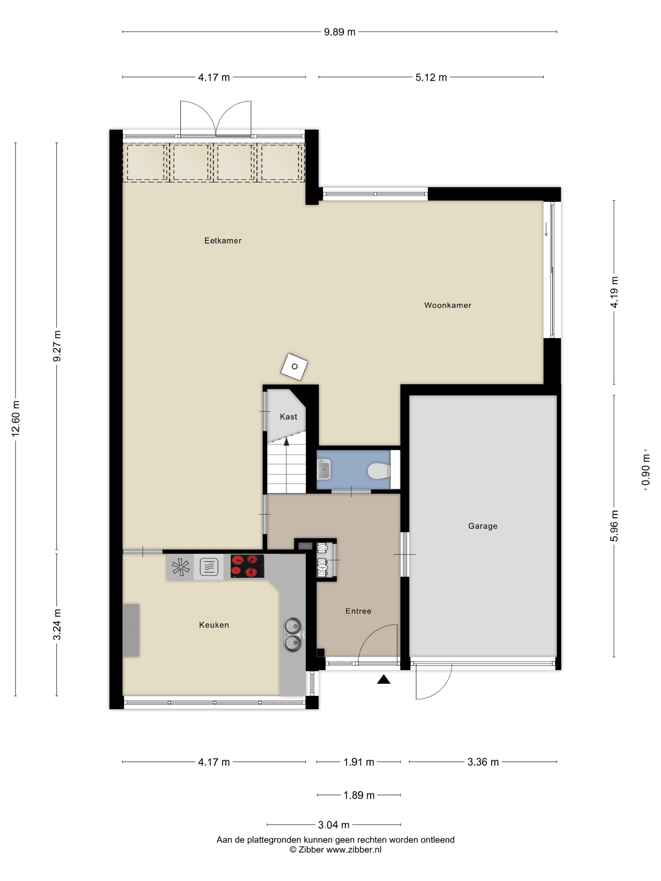
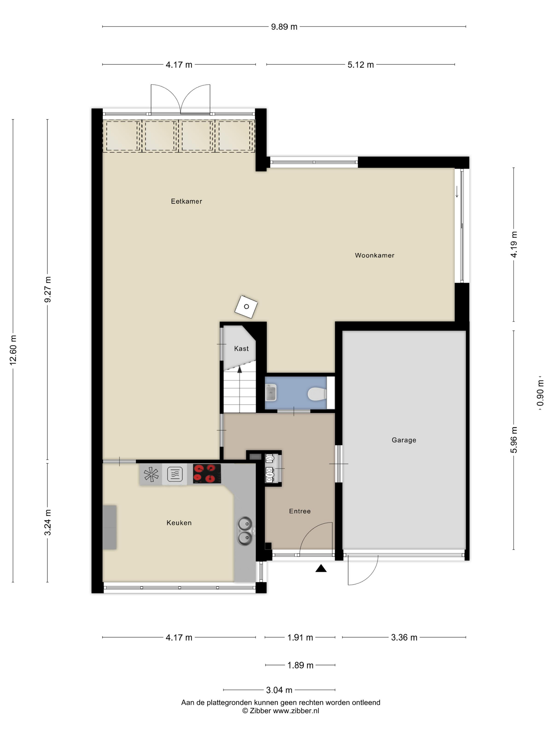
Indeling

Begane grond:
• Ruime hal/entree met toilet en meterkast
• Uitgebouwde, lichte woonkamer met vloerverwarming, plavuizenvloer, openslaande deuren én schuifpui naar de tuin
• Aparte keuken in L-opstelling met o.a. inductiekookplaat, vaatwasser, dubbele spoelbak, afzuigkap, oven en koel-/vriescombinatie

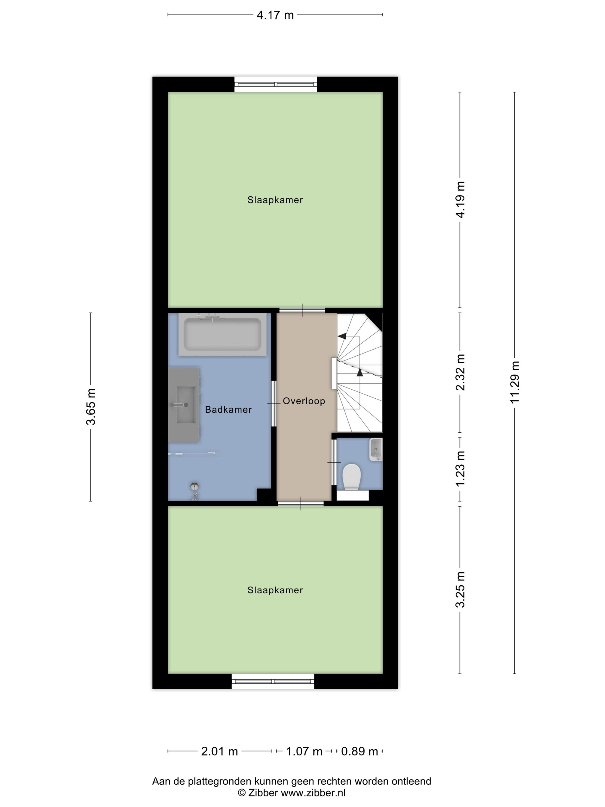
1e verdieping:
• Overloop met separaat toilet
• Twee ruime slaapkamers met Frans balkon
• Moderne badkamer met ligbad, douche, wastafelmeubel, vloerverwarming en designradiator

2e verdieping:
• Twee lichte slaapkamers, beide met Frans balkon
• Fonteintje en aansluitingen voor wasmachine en droger
• Extra afsluitbare berging: ideaal voor opslag, koffers, kerstspullen of hobby

Locatie:
De woning ligt in een rustig, autoluw hofje zonder doorgaand verkeer, ideaal voor rustzoekers en gezinnen.
Scholen, winkels, kinderopvang, sportverenigingen, horeca en het centrum van Bergschenhoek liggen op loopafstand.
Daarnaast fiets je zo naar recreatiegebied Rottemeren, natuurgebieden en diverse sport- en speelvoorzieningen.
De nieuwe verbinding met de A16 en omliggende uitvalswegen (N209, A13, A12, A20) zorgt ervoor dat je binnen korte tijd in Rotterdam, Den Haag, Delft of Zoetermeer bent.
Hier woon je rustig, maar toch midden in het gemak van de Randstad.

Bijzonderheden:
• Bouwjaar 2001
• Woonoppervlakte ca. 174 m²
• Perceel van ca. 635 m²
• Royale woonkamer met vloerverwarming
• Zonnige tuin op het westen, direct aan het water
• Vier slaapkamers + extra zoldergedeelte met bergruimte en deur
• Moderne badkamer + extra toilet op de 1e verdieping
• Fonteintje en witgoedaansluitingen op zolder
• Eigen oprit voor drie auto’s + garage
• Rustig, autoluw hofje
• Scholen, winkels en OV op loopafstand
• Oplevering in overleg

Dit is een woning die je niet alleen moet zien, maar vooral moet vóelen.
We laten je graag ervaren hoe licht, ruimte en uitzicht hier samenkomen, welkom aan de Oltmansstraat 17.

Wij nodigen je van harte uit om deze ruime woning met eigen ogen te bewonderen.

Alle verstrekte informatie moet beschouwd worden als een uitnodiging tot het doen van een bod of om in onderhandeling te treden. De teksten en impressies zijn bedoeld om een goede indruk te geven van het object. Aan de inhoud ervan is de grootst mogelijke zorg besteed. Desondanks is alle informatie nadrukkelijk onder voorbehoud. Er kunnen geen rechten worden ontleend aan deze woninginformatie.

Koopovereenkomst pas rechtsgeldig na ondertekening:
Een mondelinge overeenstemming tussen de particuliere verkoper en de particuliere koper is niet rechtsgeldig. Met andere woorden: er is geen koop. Er is pas sprake van een rechtsgeldige koop als de particuliere verkoper en de particuliere koper de koopovereenkomst hebben ondertekend. Dit vloeit voort uit artikel 7:2 Burgerlijk Wetboek. Een bevestiging van de mondelinge overeenstemming per e-mail of een toegestuurd concept van de koopovereenkomst wordt overigens niet gezien als een 'ondertekende koopovereenkomst'.

Toelichtingsclausule Meetinstructie:
De woning is conform de Branchebrede Meetinstructie (BBMI) opgemeten. De Meetinstructie is bedoeld om een meer eenduidige manier van meten toe te passen voor het geven van een indicatie van de gebruiksoppervlakte. De Meetinstructie sluit verschillen in meetuitkomsten niet volledig uit, door bijvoorbeeld interpretatieverschillen, afrondingen of beperkingen bij het uitvoeren van de meting.

Kenmerken

Overdracht
Vraagprijs
€ 998.000 k.k.
Status
beschikbaar
Aanvaarding
in overleg
Bouw
Soort woonhuis
Eengezinswoning
Soort bouw
geschakelde woning
Bouwjaar
2001
Energieklasse
A
Soort dak
lessenaardak
Slaapkamers
4
Badkamers
1
Oppervlakten en inhoud
Woonoppervlakte
174 m2
Overige inpandige ruimte
20 m2
Externe bergruimte
2 m2
Inhoud
685 m3
Perceeloppervlakte
635 m2
faciliteiten
Mechanische ventilatie
Rolluiken
Buitenzonwering
Frans balkon
Glasvezel kabel
Aan water
In woonwijk
Beschutte ligging
Baerz & Co Property Brochure

Brochure

Video’s

Plattegronden

DB Makelaars

Dorpsstraat 79
2661 CE Bergschenhoek

dominique@dbmakelaars.nl
+31 107850833

www.dbmakelaars.nl

Informatie / bezichtigingsaanvraag

Dominique Blom profile image
Dominique Blom
Register Makelaar Taxateur