Ons kantoor is lid van Baerz & Co Luxury Homes; een internationaal platform dat exclusieve woningmakelaars met elkaar verbindt. Neem contact op met ons secretariaat voor meer informatie over het landelijke aanbod, waarvan u hieronder een selectie kunt bekijken.

BERGEN (NH)
Rondelaan 2 - 1861 ED
Nederland

Romy van de Leygraaf profile image
Romy van de Leygraaf
Real Estate Agent
€1.995.000 k.k.
Woonoppervlakte
267m2
Perceeloppervlakte
1310m2
Slaapkamers
5

Omschrijving

Wonen in het Rijksmonument villa ‘De Reigertoren’ met maar liefst 267 m² woonoppervlakte, vlakbij het bos, de duinen én het strand!

Op een royaal perceel van 1.310 m², direct aan de bosrand in Bergen, vindt u Villa de Reigertoren. Deze karakteristieke villa uit 1918 is een Rijksmonument, ontworpen door architect J.B. van Loghem in opdracht van het echtpaar Selleger-Elout. De combinatie van geometrische vormen, organische belijningen en zorgvuldige detaillering maakt dit een woning van uitzonderlijke klasse.

Het meest bijzondere element is de reigertoren, waarschijnlijk zo genoemd omdat vanaf de toren de reigernesten in het bos konden worden geteld. In de toren gaven de eerste bewoners, met een passie voor astronomie, sterrenlessen met behulp van een telescoop aan buurtkinderen. In de toren bevindt zich bovendien een glas-in-loodraam dat verwijst naar de theosofische achtergrond van de eerste eigenaren.

Architect J.B. (Han) van Loghem was een invloedrijk vertegenwoordiger van het Nieuwe Bouwen. Van Loghem was niet alleen architect, maar ook stedenbouwkundige en meubelontwerper. Hij werkte in de jaren ’20 en ’30 aan toonaangevende projecten in Noord-Holland, waaronder villa’s en woonwijken waarin licht, ruimte en een strakke vormentaal centraal staan.

Van Loghem wordt gekenmerkt door een combinatie van idealisme en vormgeving. Hij was sterk betrokken bij de tuinstadbeweging en sociale woningbouw, en streefde ernaar dat moderne architectuur niet alleen functioneel maar ook menselijk en gemeenschapsgericht zou zijn. In zijn latere werk groeide zijn stijl uit tot wat nu weleens wordt omschreven als het Nieuwe Bouwen of de Nieuwe Zakelijkheid: strak in vorm, helder in lijnen, met aandacht voor licht, ruimte en eerlijk gebruik van materialen

Begane grond:
U bereikt de villa via een royale oprit met ruimte voor meerdere auto’s. Aan de voorzijde valt de imposante rieten kap direct op. Vanuit de entree komt u in de hal, die toegang geeft tot zowel de woonkamer als de woonkeuken. De keuken is voorzien van Bosch combimagnetron, AEG-inductiekookplaat, vaatwasser, koel-vriescombinatie, recirculatiekap en heeft vloerverwarming. De keuken heeft openslaande deuren naar een groot terras en de achtertuin. Aangrenzend aan de keuken ligt de bijkeuken met vloerverwarming, wasmachine- en drogeraansluiting en een douche met toilet en fontein.

Vanuit de keuken bereikt u de TV-kamer met massief eiken vloer, ingebouwde kasten en grote raampartijen met monumentenglas. Aansluitend ligt de ruime woonkamer met erker, houtkachel en originele buffetkasten. Ook hier is de vloer van massief eikenhout. Het balkenplafond maakt de woonkamer tot een karakteristiek geheel! Zowel de woonkamer, de keuken als de TV-kamer hebben een originele schouw. Vanuit de hal bij de entree is de diepe en grote kelder bereikbaar, ideaal vooropslag van wijn e.d.

Eerste verdieping
Op de 1e verdieping vindt u vier ruime slaapkamers, waarvan twee toegang hebben tot een zonnig balkon aan de voorzijde. Aan de achterzijde is een sfeervol kantoor ook voorzien van een karakteristieke schouw. De kamer geeft toegang tot het balkon aan de achterzijde van de villa. De vierde slaapkamer beschikt over een handige zijkamer en heeft tevens toegang tot het balkon aan de achterzijde. Vanaf de ruime overloop zijn de badkamer en het separate toilet met fonteintje te bereiken. De badkamer is licht en verzorgd, met een ligbad, inloopdouche en wastafel met meubel. De badkamer en het toilet zijn ook voorzien van vloerverwarming.

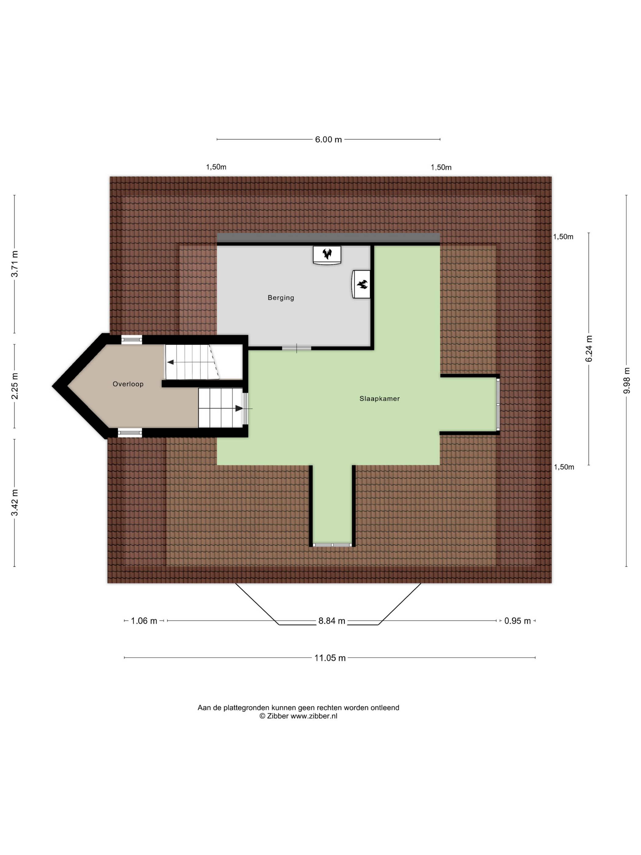
Tweede verdieping:
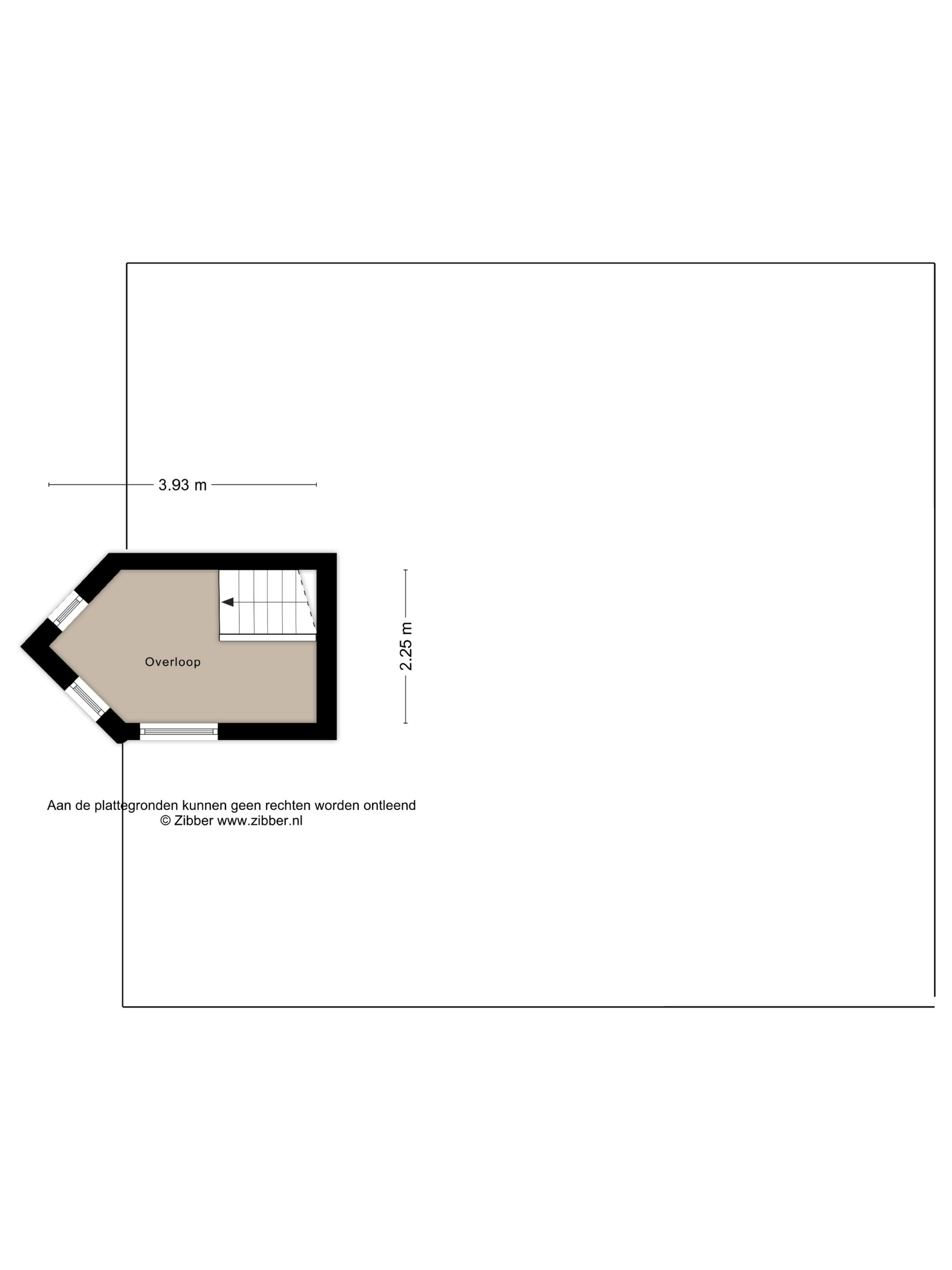
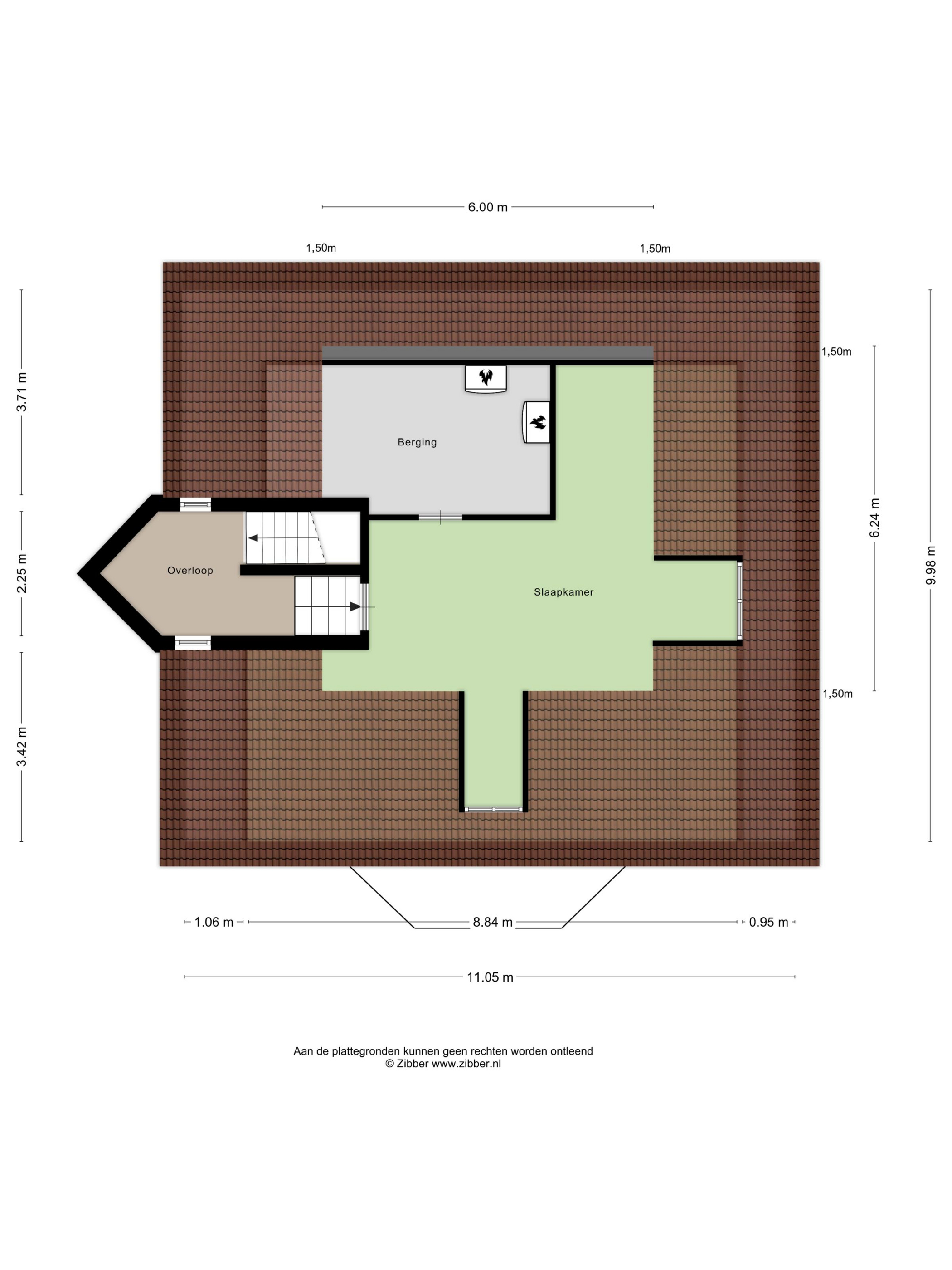
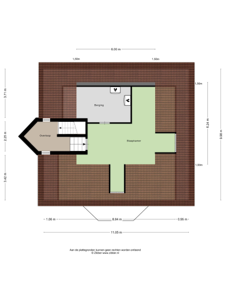
De 2e verdieping is royaal en biedt volop mogelijkheden. Of u nu een grote extra slaapkamer wilt of meerdere kamers, te verdelen in slaapkamers, hobbykamer of speelkamer! Op deze verdieping bevindt zich ook een bergkamer met de hybride Cv-installatie (2023).

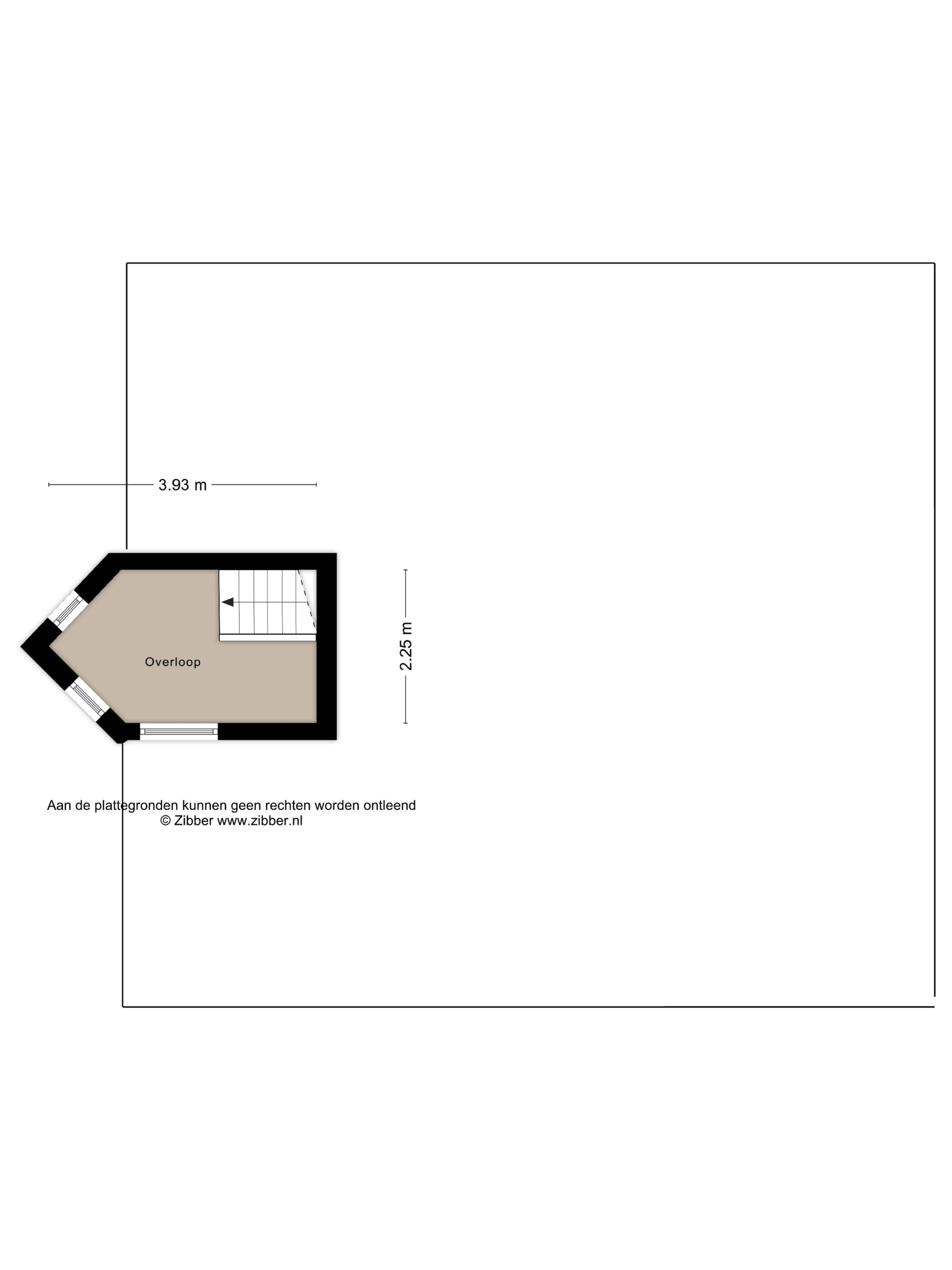
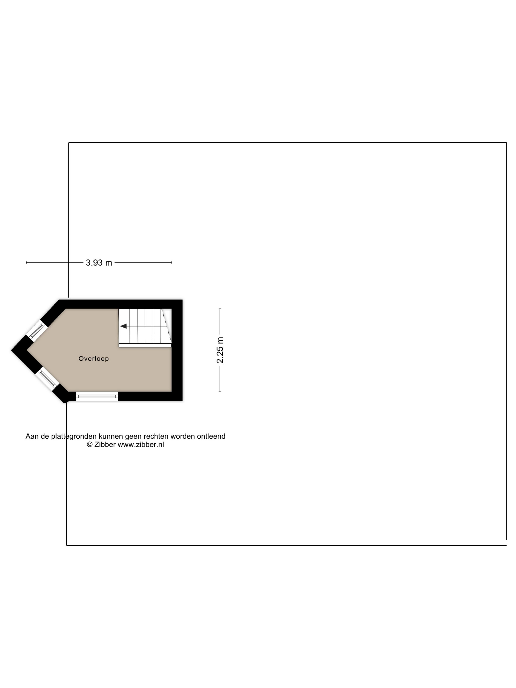
Derde verdieping / Torenkamer:
De iconische torenkamer is bereikbaar via een trap in de Reigertoren. Hier geniet u van een uniek uitzicht vanaf het plateau en voelt u de bijzondere historie van de sterrenlessen die hier ooit werden gegeven.

Zowel de kruipruimte als het dak zijn voorzien van isolatie. De meeste raampartijen bevatten isolerend monumentenglas. Een bijkomend voordeel van een rijksmonument is dat u subsidies tot 38 % kunt krijgen voor het onderhoud van de buitenzijde van de woning!

De tuin:
De tuin van de villa is een prachtig groen geheel. Op het ruime perceel van 1.310 m² vindt u prachtige borders, volwassen bomen en meerdere zonnige én beschutte terrassen waar u op elk moment van de dag een fijn plekje vindt. De royale oprit biedt plek voor meerdere auto’s en voor de elektrische rijder is er een laadpaal met eigen tussenmeter, handig voor privé én zakelijk gebruik. Een bronpomp zorgt ervoor dat u de tuin eenvoudig met grondwater kunt besproeien. Daarnaast beschikt de woning over een ruime garage/schuur met 8 zonnepanelen op het dak!

Ligging
De woning ligt op een van de mooiste plekjes van Bergen, direct aan de rand van het Bergerbos en nabij de Schoorlse Duinen. Het strand van Bergen aan Zee is op 4 km afstand.

Het charmante centrum van Bergen biedt een rijke mix van winkels, gezellige terrassen en restaurants. Hier kunt u heerlijk dineren, een glas wijn drinken of genieten van een kop koffie in de zon. Elk jaar vindt hier de beroemde Kunst 10-daagse plaats. Museum Kranenburgh is op loopafstand.

Diverse basisscholen en voortgezet onderwijs liggen op loop- of fietsafstand, binnen 10 minuten bent u in Alkmaar en in slechts 45 minuten in Amsterdam.

Financiering & subsidie voor rijksmonumenten:
Voor de aankoop, restauratie en verdere verduurzaming van dit rijksmonument bestaan aantrekkelijke mogelijkheden via het Nationaal Restauratiefonds en andere monumentenorganisaties. Zo kan gebruik worden gemaakt van een laagrentende Restauratiefonds-hypotheek tot circa € 300.000 voor instandhoudingswerkzaamheden zoals herstel van dak, gevel, fundering, kozijnen, glas-in-lood en stucwerk. Voor verduurzamingsmaatregelen die passen binnen de monumentale context, zoals HR-glas of een (hybride) warmtepomp, is daarnaast een Duurzame Monumenten-lening beschikbaar. Particuliere eigenaren van rijksmonumenten met een woonfunctie kunnen bovendien 38% subsidie ontvangen op subsidiabele onderhouds- en restauratiekosten. Voor aanvragen boven € 70.000 geldt daarbij de verplichting van een inspectierapport.

Unieke kenmerken
- Rijksmonument uit 1918, ontworpen door J.B. van Loghem met veel historie;
- Woonoppervlakte van maar liefst 267 m²;
- Geometrische en organische architectuur;
- Goede subsidies voor het onderhoud van de buitenzijde van de woning!;
- Groot onderhoud rieten kap (2023);
- Hybride CV-installatie (2023);
- Beschikt over diverse isolatie en 8 zonnepanelen;
- Originele bakstenen schouwen en originele buffetkasten;
- Zeer royaal perceel;
- Laadpaal met eigen tussenmeter;
- Bosrandlocatie, dichtbij strand en centrum;
- Centrale ligging met alle voorzieningen op korte afstand;
- Aanvaarding in overleg.

Speciale Kenmerken

Zonnepanelen
Alarm system

Kenmerken

Overdracht
Vraagprijs
€ 1.995.000 k.k.
Status
beschikbaar
Aanvaarding
in overleg
Bouw
Soort woonhuis
Villa
Soort bouw
vrijstaande woning
Bouwjaar
1918
Soort dak
mansarde dak
Slaapkamers
5
Badkamers
2
Oppervlakten en inhoud
Woonoppervlakte
267 m2
Overige inpandige ruimte
9 m2
Gebouwgebonden buitenruimte
27 m2
Externe bergruimte
21 m2
Inhoud
1024 m3
Perceeloppervlakte
1310 m2
faciliteiten
Mechanische ventilatie
Alarminstallatie
Tv kabel
Rookkanaal
Dakraam
Glasvezel kabel
Zonnepanelen
Aan bosrand
In centrum
Beschutte ligging
In bosrijke omgeving
Baerz & Co Property Brochure

Brochure

Video’s

Plattegronden

Leygraaf Makelaars

Kennemerstraatweg 67
1814 GC Alkmaar

romy@leygraafmakelaars.nl
+31 725114318

www.leygraafmakelaars.nl

Informatie / bezichtigingsaanvraag

Romy van de Leygraaf profile image
Romy van de Leygraaf
Real Estate Agent