Ons kantoor is lid van Baerz & Co Luxury Homes; een internationaal platform dat exclusieve woningmakelaars met elkaar verbindt. Neem contact op met ons secretariaat voor meer informatie over het landelijke aanbod, waarvan u hieronder een selectie kunt bekijken.

BERGAMBACHT
Zuidbroek 145 - 2861 LL
Nederland

Jeanette van Haaften profile image
Jeanette van Haaften
Real Estate Agent
€995.000 k.k.
Woonoppervlakte
156m2
Perceeloppervlakte
3233m2
Slaapkamers
5

Omschrijving

LANDELIJK WONEN OP EEN UNIEKE LOCATIE MET RUIMTE EN PRIVACY

Een huis met karakter, vrijheid en een ongekend gevoel van buiten wonen – welkom bij Zuidbroek 145 in Bergambacht. Deze charmante vrijstaande woning uit 1917 is in de afgelopen jaren van top tot teen gerenoveerd met behoud van sfeer en stijl. Hier woon je op een perceel van maar liefst 3.233 m² eigen grond, omgeven door water, met uitzicht over weilanden, een grote schuur, vijf slaapkamers en twee badkamers. Dit is wonen in alle rust, zonder in te leveren op comfort.

VOLLEDIG GERENOVEERD EN TOT IN DE PUNTJES VERZORGD

De huidige eigenaar heeft de afgelopen jaren werkelijk niets aan het toeval overgelaten. De woning is in zijn geheel gerenoveerd: er ligt een nieuwe betonvloer op de begane grond, de houten kozijnen zijn vervangen door hardhouten exemplaren met dubbel glas, er is een compleet nieuw dak geplaatst met dakkapellen, en zowel de meterkast als alle leidingen zijn vernieuwd. Ook de indeling is aangepakt, waardoor de ruimtes nu optimaal benut worden. Denk daarbij aan een luxe keuken (American Kitchen uit 2018) met alle inbouwapparatuur en groot fornuis, moderne badkamers, paneeldeuren en gestuukte wanden en plafonds. De aanbouw is in 2013 volledig verbouwd en geïsoleerd, en recent is ook het buitenschilderwerk (2024) gedaan. In 2025 zijn bovendien nieuwe houten luiken aan de voorzijde geplaatst – een mooie knipoog naar de landelijke oorsprong van het huis.

Wat ook opvalt: alles is tiptop onderhouden. Het schilderwerk is strak, de tuin ligt er verzorgd bij met net geharkt grind en strak gemaaid gazon. Zelfs de robotmaaier wordt regelmatig bijgestuurd om de hoekjes niet te missen. Dit is een huis waar je zó in kunt trekken.

VERKOPER AAN HET WOORD:

Met ons gezin hebben we hier 32 jaar met veel plezier gewoond. We hebben enorm genoten van de grote tuin en het vele buiten zijn; in de zomer varen en vissen in de sloten en hutten bouwen met de kinderen, in de winter schaatsen op het ijs.
Het huis voelt sfeervol, licht en comfortabel, elke dag weer.
Hier wonen geeft een bijzonder gevoel van vrijheid. Bovendien is het een prettige buurt met betrokken buren.

FIJNE INDELING MET MOGELIJKHEID VOOR GELIJKVLOERS WONEN

Via de landelijke oprijlaan met grindpad bereik je de voordeur van het huis. Binnen valt meteen de lichte woonkamer op, met grote ramen die uitkijken over de weilanden. De sfeer is warm en stijlvol, met mooie vloeren, strak afgewerkte wanden en voldoende ruimte voor een royale zithoek. De eetkamer en woonkeuken sluiten hier naadloos op aan.

Op de begane grond bevindt zich een ruime slaapkamer met veel privacy en eigen badkamer, ideaal voor wie gelijkvloers wil wonen. Daarnaast is er een 2e moderne badkamer met douche, ligbad, wastafel en toilet, wat deze woning geschikt maakt voor diverse woonwensen.

Op de verdieping zijn nog vier slaapkamers, waarvan de slaapkamer in de aanbouw zich uitstekend leent voor een thuiskantoor of tiener met behoefte aan eigen ruimte en privacy.

VRIJSTAAND, MET GARAGE, CARPORT EN GROTE SCHUUR

Buiten is het een oase van rust. De tuin rondom is strak, groen en verzorgd aangelegd, met verschillende zitplekken, grote gazons, bomen, borders, moestuin en sfeervolle hoekjes. Dankzij de ligging van het perceel heb je geen directe buren, veel privacy en prachtige uitzichten over water en weiland. Het weiland aan de oostzijde mag niet meer bebouwd worden, waardoor je ook in de toekomst verzekerd bent van vrij uitzicht.

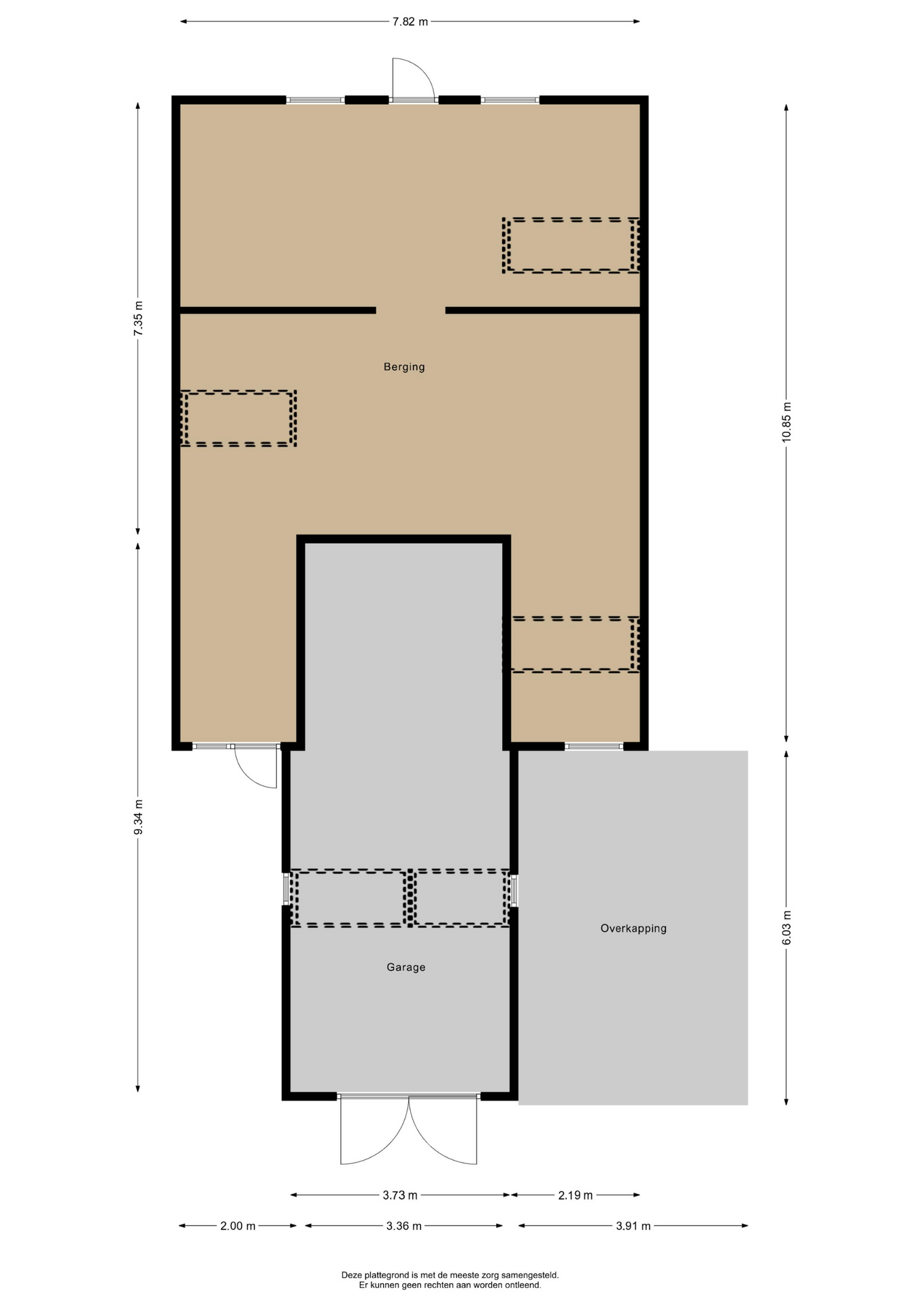
Op het erf vind je een vrijstaande garage en een royale schuur (totaal 127 m² bergruimte) en een carport. De schuur is momenteel in gebruik als opslag, maar ook zeer geschikt voor een werkplaats of hobbyruimte. Er is parkeergelegenheid voor meerdere auto’s op eigen terrein. Tot slot is de woning voorzien van een moderne HR-combiketel (2023), dak-, vloer- en muurisolatie, volledig dubbel glas én een glasvezelaansluiting.

WONEN IN HET GROENE HART MET ALLE VOORZIENINGEN NABIJ

Zuidbroek 145 ligt buiten de dorpskern van Bergambacht, een gezellig dorp in de Krimpenerwaard. Hier woon je midden in het Groene Hart, met rust, ruimte en natuur om je heen. Toch zijn voorzieningen nooit ver weg: het centrum van Bergambacht biedt verrassend veel winkels, supermarkten, scholen, sportclubs, gezondheidszorg en horecagelegenheden.

Voor natuurliefhebbers is dit een waar paradijs. Vanuit huis wandel of fiets je zo de polder in, langs slootjes, weilanden en historische boerderijen. De Lek ligt op korte afstand en biedt volop recreatiemogelijkheden. Wil je toch de stad in? Dan ben je binnen circa 30 minuten in Gouda of Rotterdam. Ideaal voor wie wil ontsnappen aan de drukte, maar verbonden wil blijven met de rest van het land.

BELANGRIJKSTE KENMERKEN:
- Vraagprijs: € 995.000,- k.k.
- Ligging: Vrijstaand, aan rustige weg, landelijk en omgeven door water
- Woonoppervlakte: 156 m²
- Perceeloppervlakte: 3.233 m²
- Externe bergruimte: 127 m² (garage en grote schuur)
- Carport aanwezig
- Bouwjaar: 1917 (volledig gerenoveerd)
- Aantal slaapkamers: 5
- Aantal badkamers: 2
- Energielabel: D (met dak-, vloer- en muurisolatie, dubbel glas, HR-combiketel 2023)
- Oplevering: In overleg

Kenmerken

Overdracht
Vraagprijs
€ 995.000 k.k.
Status
onder bod
Aanvaarding
in overleg
Bouw
Soort woonhuis
Eengezinswoning
Soort bouw
vrijstaande woning
Bouwjaar
1917
Energieklasse
D
Soort dak
samengesteld dak
Slaapkamers
5
Badkamers
2
Oppervlakten en inhoud
Woonoppervlakte
156 m2
Overige inpandige ruimte
0 m2
Externe bergruimte
127 m2
Inhoud
556 m3
Perceeloppervlakte
3233 m2
faciliteiten
Mechanische ventilatie
Rookkanaal
Dakraam
Glasvezel kabel
Aan rustige weg
Vrij uitzicht
Landelijk gelegen
Baerz & Co Property Brochure

Brochure

Video’s

Bijzonder Wonen Makelaardij

Heilige Geeststraat, 11
5301CP Zaltbommel

info@bijzonderwonen.com
+31 41 868 00 50

www.bijzonderwonen.com

Informatie / bezichtigingsaanvraag

Jeanette van Haaften profile image
Jeanette van Haaften
Real Estate Agent

Een luxe woning kopen in Bergambacht

Bergambacht biedt een discrete, verfijnde levensstijl, bijzondere historische woningen en uitstekende bereikbaarheid. Gastvrijheid, natuurlijke schoonheid en deskundig advies maken het bijzonder aantrekkelijk voor internationale kopers.