Exclusieve vrijstaande villa met garage, royale tuin en veel privacy in Quatrebras, Badhoevedorp.
Deze unieke, energiezuinige villa aan de Oleanderlaan biedt de perfecte balans tussen luxe, ruimte en rust, terwijl u toch dicht bij de stad bent. Hier geniet u van alle moderne gemakken, omringd door groen, en met de stad binnen handbereik.
Met een woonoppervlakte van maar liefst 181 m², 4 ruime slaapkamers, 2 luxe badkamers en een sfeervolle woonkeuken, is dit een droomhuis voor gezinnen die op zoek zijn naar comfort en stijl. De villa, gebouwd in 2020, straalt warmte en luxe uit en is tot in detail afgewerkt. De zonnige tuin op het zuidoosten biedt veel privacy en ruimte, zodat u in alle rust kunt genieten. Daarnaast is er een vrijstaande overkapping met loungehoek en een prachtig zwembad. De woning beschikt bovendien over een ruime garage en parkeergelegenheid voor meerdere auto’s op eigen terrein.
English summary:
Exclusive detached villa with garage, spacious garden and lots of privacy in Quatrebras, Badhoevedorp.
This unique, energy-efficient villa on Oleanderlaan offers the perfect balance between luxury, space and tranquility, while still being close to the city. Here you can enjoy all modern conveniences, surrounded by greenery and with the city within easy reach.
With a living area of no less than 183 m², 4 spacious bedrooms, 2 luxurious bathrooms and an attractive kitchen/diner, this is a dream home for families looking for comfort and style. The villa, built in 2020, radiates warmth and luxury and is finished in detail. The sunny southeast-facing garden offers a lot of privacy and space, so you can enjoy yourself in peace. There is also a detached canopy with lounge area and a beautiful swimming pool. The house also has a spacious garage and parking for several cars on site.
Begane grond
Bij binnenkomst wordt u verwelkomd in een royale hal met garderoberuimte, een stijlvol trappenhuis met leren trapbekleding en een modern toilet. De begane grond is voorzien van een stijlvolle PVC-vloer met vloerverwarming én vloerkoeling. Vanuit de hal kijkt u direct uit op de ruime achtertuin, wat meteen een gevoel van openheid geeft.
De ruime woon- en eetkamer biedt plek voor het hele gezin, met een op maat gemaakte cinewall en sfeervolle HR-gashaard voor extra warmte en gezelligheid.
Daarnaast is het mogelijk om het eetkamer-gedeelte uit te bouwen, zoals te zien is op de artist impressions. Met deze uitbouw creëert u niet alleen extra leefruimte, maar ook de mogelijkheid om grotere raampartijen toe te voegen, wat zorgt voor meer daglicht en een nog sterkere verbinding met de tuin.
De luxe keuken met kookeiland is uitgerust met hoogwaardige inbouwapparatuur, waaronder een Miele stoomoven, wijnklimaatkoeling, Siemens combi oven, inbouwkoffiemachine, Bora inductiekookplaat met geïntegreerde afzuiging, Siemens vaatwasmachine en een koel- vriescombinatie.
Via meerdere openslaande deuren vanuit de woonkamer heeft u toegang tot de tuin. De fraai aangelegde achtertuin is ingericht met meerder loungeplekjes, een overkapping met heater en toegang tot de garage.
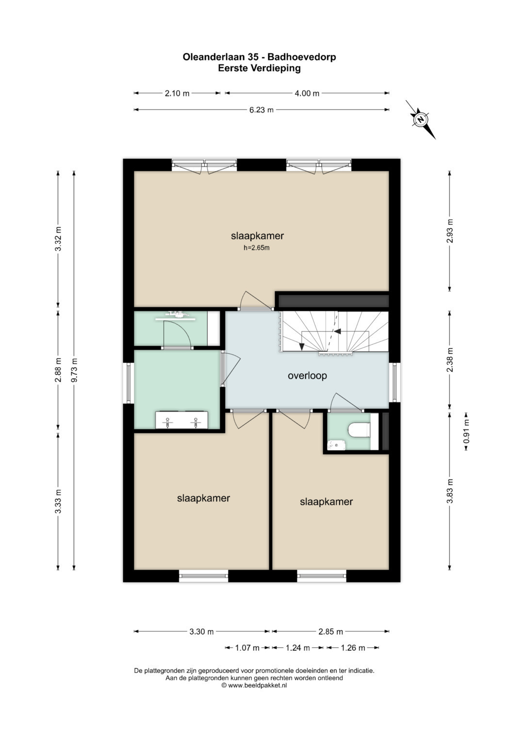
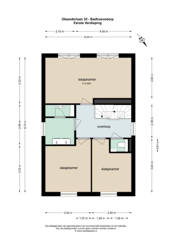
Eerste verdieping
Op de eerste verdieping bevinden zich drie royale slaapkamers, allemaal voorzien van grote ramen en/of Franse balkons, wat zorgt voor een mooie lichtinval. De luxe badkamer heeft een dubbele wastafel met meubel en een ruime dubbele douche. Op de overloop bevindt zich een separaat toilet.
Tweede verdieping
De tweede verdieping biedt een extra ruime slaapkamer en een tweede badkamer met wastafelmeubel, ligbad en inloopdouche, ideaal voor extra comfort en privacy. Daarnaast is er volop bergruimte op de vliering en is de verdieping voorzien van een aparte stookruimte met geavanceerde installaties zoals een bodemwarmtepomp en WTW-unit voor een optimaal binnenklimaat.
De omgeving
Wonen in Quatrebras Park is wonen in een groene, parkachtige omgeving met brede lanen en ruime tuinen. U woont aan de rand van het Quatrebras Park, waar natuur en stad samenkomen. Voorzieningen zoals een kinderboerderij, scholen, winkels en sportfaciliteiten zoals het zwembad, meerdere sportscholen, atletiek en de tennis- en padelbanen zijn op loopafstand. Kinderen spelen hier veilig buiten en u geniet van de rust van het dorpse karakter, met Amsterdam, Amstelveen, Schiphol en Haarlem binnen handbereik. Via de nabijgelegen uitvalswegen A4, A5, A9 en A10 bent u snel onderweg.
Highlights:
• Prachtige locatie in Badhoevedorp, nabij openbaar vervoer en uitvalswegen.
• Gelegen op 590 m² eigen grond.
• Royale tuin met overkapping van 22 m² en heater.
• Woonoppervlakte van 181 m².
• Energielabel A, uitstekend geïsoleerd en gasloos. Uitgerust met een WTW-unit en bodemwarmtepomp.
• Voorzien van 23 zonnepanelen, duurzaam en energie-efficiënt.
• Ruime garage en parkeergelegenheid voor meerdere auto’s op eigen terrein.
• Eigen website voor meer informatie: oleanderlaan35.nl.
• Oplevering in overleg.
• Notariskeuze aan koper met dien verstande dat het een notaris uit de regio Amsterdam/ Amstelveen dient te zijn en er een koopovereenkomst door de notaris conform het model Ring Amsterdam wordt opgesteld.
Deze informatie is door ons met de nodige zorgvuldigheid samengesteld. Onzerzijds wordt echter geen enkele aansprakelijkheid aanvaard voor enige onvolledigheid, onjuistheid of anderszins, dan wel de gevolgen daarvan. Alle opgegeven maten en oppervlakten zijn indicatief. Van toepassing zijn de NVM voorwaarden.
Highlights:
• Beautiful location in Badhoevedorp, near public transport and highways.
• Located on 590 m² of private land.
• Spacious garden with 22 m² canopy and heater.
• Living area of 183 m².
• Energy label A, excellently insulated and gas-free. Equipped with a heat recovery unit and ground source heat pump.
• Equipped with 23 solar panels, sustainable and energy efficient.
• Spacious garage and parking for several cars on site.
• Own website for more information: oleanderlaan35.nl.
• Delivery in consultation.
• Choice of notary by the buyer, on the understanding that it must be a notary from the Amsterdam/Amstelveen region and a purchase agreement is drawn up by the notary in accordance with the Ring Amsterdam model.
This information has been compiled by us with due care. However, no liability is accepted on our part for any incompleteness, inaccuracy or otherwise, or the consequences thereof. All specified sizes and surfaces are indicative. The NVM conditions apply.