Ons kantoor is lid van Baerz & Co Luxury Homes; een internationaal platform dat exclusieve woningmakelaars met elkaar verbindt. Neem contact op met ons secretariaat voor meer informatie over het landelijke aanbod, waarvan u hieronder een selectie kunt bekijken.

Tussenverdieping te koop in AMSTERDAM

AMSTERDAM Sausalitolaan 106 - 1031 KE Nederland


Floor Neomagus profile image
Floor Neomagus
Real Estate Agent
+312 4702255
info@heerenmakelaars.nl

Heeren Makelaars
Stadionweg 75
1077 SE Amsterdam
NETHERLANDS
+31 0204702255
www.heerenmakelaars.nl
info@heerenmakelaars.nl

Woonoppervlakte
132m2
Perceeloppervlakte
N/A
Slaapkamers
3

Omschrijving

Sausalitolaan 106, 1031 KE Amsterdam

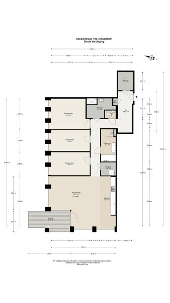
Aan de Sausalitolaan in het moderne wooncomplex The Cube ligt dit lichte en hoogwaardig afgewerkte vierkamerappartement van ca. 132m² met een royaal balkon. Het energiezuinige hoekappartement bevindt zich op de derde verdieping en is voorzien van een visgraatvloer en grote raampartijen. Het appartement beschikt over drie ruime slaapkamers, een moderne badkamer, meerdere praktische bergruimtes en een sfeervolle woonkamer met open keuken.

Locatie & Bereikbaarheid:
Aan het IJ, op het voormalige Shell terrein in Amsterdam-Noord, is een nieuwe stadswijk ontstaan met een eigen karakter. Waar vroeger industrie heerste, ligt nu een levendig en groen woongebied met eigentijdse architectuur, brede wandelpaden en veel water. Hier komen wonen, werken en ontspanning op natuurlijke wijze samen.

De wijk is ontworpen met een doordachte stedenbouwkundige visie, waarin moderne gebouwen en royale groene ruimtes elkaar versterken. Autoluwe straten, binnentuinen en pleinen zorgen voor rust en openheid, terwijl het centrum van Amsterdam slechts een pontvaart verderop ligt. In de directe omgeving vindt u diverse supermarkten, de markt in de Van der Pekstraat en talloze restaurants en cafés. Denk aan The Coffee Virus, The Butcher Social Club, het EYE Filmmuseum en de Tolhuistuin. Hier is altijd iets te doen, maar u kunt zich ook eenvoudig terugtrekken in de rust van de groene omgeving. Woonwijk aan het IJ is bovendien uitermate geschikt voor stellen en gezinnen met kinderen. In de nabije omgeving bevinden zich meerdere kinderdagverblijven, een ruime keuze aan basisscholen en verschillende speelplekken op loopafstand.

Aan het IJ is daarmee uitgegroeid tot het moderne gezicht van Amsterdam-Noord: ruim, groen en vol leven — een plek waar stedelijke energie en rust moeiteloos samensmelten. Wonen aan het IJ betekent genieten van rust, ruimte én een directe verbinding met de stad. Binnen enkele minuten bereikt u veerpont 907, die u dag en nacht gratis naar Amsterdam Centraal brengt. Ook de Noord-/Zuidlijn ligt dichtbij, waarmee u binnen no-time in het centrum, op de Zuidas of bij Station Zuid bent. Met de auto rijdt u via het Noorderpark en Buikslotermeer eenvoudig de A10 op, terwijl de IJtunnel u binnen enkele minuten rechtstreeks naar het centrum van Amsterdam brengt.

Indeling:
Bij binnenkomst in de ruime hal valt direct de verzorgde afwerking op: een lichte visgraatvloer, zachte tinten en subtiele wandverlichting geven het geheel een rustige, moderne uitstraling. De hal biedt toegang tot alle vertrekken en beschikt over een ruime berging, een aparte wasruimte met aansluitingen voor wasmachine en droger en een separaat toilet met fontein. De drie naast elkaar gelegen slaapkamers zijn licht en sfeervol dankzij de hoge ramen en warme kleurtonen. De kamers zijn goed bemeten en voorzien van imposante raampartijen.

De badkamer is modern en comfortabel ingericht met een inloopdouche, ligbad, dubbel wastafelmeubel en een grote spiegel met geïntegreerde verlichting en verwarming. Aan het einde van de hal bevindt zich de lichte woonkamer met grote raampartijen rondom – een fijne leefruimte met uitzicht op de omliggende omgeving en het groen. De woonkamer en open keuken lopen vloeiend in elkaar over en bieden samen een prettige, open indeling.

De keuken is uitgevoerd in matzwart design en voorzien van alle denkbare inbouwapparatuur, waaronder een inductiekookplaat, combi-oven, vaatwasser en een Quooker. Er is meer dan genoeg opbergruimte. Vanuit de woonkamer is er toegang tot het ruime balkon op het zuidwesten, waar u geniet van de middag/avond zon en een prachtig uitzicht op het groene plein.

Kortom: energiezuinig wonen op een fantastische locatie in Amsterdam met alle voorzieningen binnen handbereik!

Het appartementencomplex – The Cube
The Cube is een hoogwaardig en duurzaam wooncomplex aan de rustige Sausalitolaan, ontworpen door het gerenommeerde architectenbureau De Zwarte Hond (genomineerd voor Architect van het Jaar 2024). Het gebouw combineert moderne architectuur met comfortabel wonen en ligt direct aan het groene buurtplein in het hart van de wijk.

Uniek aan The Cube is het hotelsuiteconcept: de entree en het indrukwekkende atrium zijn ontworpen als een warme, lichte ontmoetingsplek met veel groen, natuurlijke materialen en zitgelegenheden. Hier loopt buiten en binnen naadloos in elkaar over. De gevels zijn bekleed met Portugees travertin, en de daken zijn voorzien van zonnepanelen en groene beplanting.
Duurzaamheid staat centraal. De appartementen zijn uitstekend geïsoleerd, aangesloten op een WKO-installatie voor verwarming én koeling, en beschikken over balansventilatie. Het resultaat: een energiezuinige woning met label A++ en een aangenaam binnenklimaat, het hele jaar door.

Bijzonderheden:
- Appartementsrecht van ca. 132m² (gemeten conform NEN2580 meetinstructie);
- Comfortabel en energiezuinig hoekappartement;
- Eigen parkeerplaats in de parkeergarage vraagprijs €50.000,- k.k.;
- Externe berging van ca. 5m² in de onderbouw;
- Geheel appartement voorzien van vloerverwarming
- Drie ruime slaapkamers;
- Ruim balkon aangrenzend aan de woonkamer;
- WKO-installatie en WTW unit;
- Hoogwaardig nieuwbouwcomplex uit 2019 (opgeleverd in maart 2022), met luxe architectuur en een stijlvolle hotel lobby look;
- Energielabel A++;
- Actieve en professioneel Vereniging van Eigenaren beheerd door Sturm en de Neeve B.V. Amsterdam;
- Periodieke bijdrage is €286.87,- voor de woning en €62.95,- voor de parkeergarage;
- Eigendom belast met erfpacht: het huidige tijdvak is afgekocht tot en met 2069 (AB2000)
- Aanvraag overstap eeuwigdurende erfpacht onder gunstige voorwaarden is tijdig gedaan;
- Oplevering in overleg.

Deze informatie is door ons met de nodige zorgvuldigheid samengesteld. Onzerzijds wordt echter geen enkele aansprakelijkheid aanvaard voor enige onvolledigheid, onjuistheid of anderszins, dan wel de gevolgen daarvan. Alle opgegeven maten en oppervlakten zijn indicatief. Koper heeft zijn eigen onderzoeksplicht naar alle zaken die voor hem of haar van belang zijn. Met betrekking tot deze woning is de makelaar adviseur van verkoper. Wij adviseren u een deskundige (NVM-)makelaar in te schakelen die u begeleidt bij het aankoopproces. Indien u specifieke wensen heeft omtrent de woning, adviseren wij u deze tijdig kenbaar te maken aan uw aankopend makelaar en hiernaar zelfstandig onderzoek te (laten) doen. Indien u geen deskundige vertegenwoordiger in-schakelt, acht u zich volgens de wet deskundige genoeg om alle zaken die van belang zijn te kun-nen overzien. Van toepassing zijn de NVM voorwaarden.

Kenmerken

Overdracht
Vraagprijs
€ 1.100.000 k.k.
Status
beschikbaar
Aanvaarding
in overleg
Bouw
Soort woonhuis
Tussenverdieping
Soort bouw
appartement
Bouwjaar
2019
Energieklasse
A_PP
Soort dak
plat dak
Slaapkamers
3
Badkamers
1
Oppervlakten en inhoud
Woonoppervlakte
132 m2
Overige inpandige ruimte
0 m2
Gebouwgebonden buitenruimte
12 m2
Externe bergruimte
2 m2
Inhoud
421 m3
faciliteiten
Tv kabel
Lift
Balansventilatie
Natuurlijke ventilatie
In woonwijk
Vrij uitzicht
Baerz & Co Property Brochure

Brochure

Informatie / bezichtigingsaanvraag

Video's

Video Sausalitolaan 106

Foto's

Plattegronden