Ons kantoor is lid van Baerz & Co Luxury Homes; een internationaal platform dat exclusieve woningmakelaars met elkaar verbindt. Neem contact op met ons secretariaat voor meer informatie over het landelijke aanbod, waarvan u hieronder een selectie kunt bekijken.

AMSTERDAM
Keizersgracht 699 D - 1017 DW
Nederland

Jeanette van Haaften profile image
Jeanette van Haaften
Real Estate Agent
€1.000.000 k.k.
Woonoppervlakte
81m2
Perceeloppervlakte
N/A
Slaapkamers
3

Omschrijving

De perfecte combinatie van luxe en locatie: Keizersgracht 699.

Wederom een indrukwekkende ontwikkeling van ROCK Vastgoed! Drie hoogwaardig afgewerkte appartementen met uitzicht op de Keizersgracht. Kosten noch moeite zijn gespaard bij die renovatieproject in een prachtig Rijksmonument. Grijp deze unieke kans om aan één van de mooiste grachten van Amsterdam te wonen.
Keizersgracht 699-D, 1017 DW Amsterdam

Locatie & Bereikbaarheid:

Dit prachtige monumentale grachtenpand is gelegen aan de Keizersgracht, tussen de Utrechtsestraat en de Reguliersgracht. Omringd door galerieën, musea van wereldklasse, sfeervolle restaurants, koffiehotspots en de stijlvolle Utrechtsestraat bevindt alles wat Amsterdam zo geliefd maakt zich op loopafstand. Voorbeelden zijn onder andere de Stopera, Koninklijk Theater Carré en Museum de Hermitage. Ook qua bereikbaarheid zit u hier perfect: tram- en bushaltes en de Noord/Zuidlijn zijn op korte loopafstand. Parkeren kan in nabijgelegen garages of – met vergunning – gewoon op de gracht. Zowel het Centraal Station als het Amstelstation liggen in de buurt.

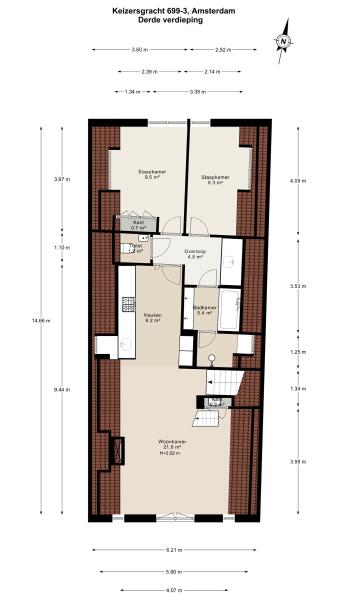
Indeling:

Tweede verdieping:
Eigen entree op de tweede verdieping met een handige trapkast.

Derde verdieping:
Binnenkomst in de ruime living met grachtzicht. Een gashaard en de zichtbare plafondbalken geven het vertrek bijzonder veel sfeer. Openslaande ramen bieden een fantastisch uitzicht op de gracht. De luxe open keuken is voorzien van alle denkbare inbouwapparatuur waaronder een Quooker, vaatwasser, Bora inductieplaat met geïntegreerde afzuiging, twee Siemens Studioline (combi)ovens en meer dan genoeg opbergruimte. Via een stijlvolle stalen deur bereikt u de overloop met separaat toilet en een fijne bijkeuken. Aangrenzend een royale badkamer met dubbele wastafel, ligbad en een inloopregendouche, afgewerkt met marmer. De twee zeer goed bemeten slaapkamers bevinden zich aan de achterzijde van het appartement en kijken uit op de groene binnentuinen.

Vierde verdieping:
Op de vierde verdieping bevindt zich nog een ruime slaapkamer. Deze is te bereiken middels een vaste trap. De vide geeft de woning bijzonder veel allure.

Kortom: een smaakvol gerenoveerd grachtenappartement dat niets te wensen overlaat – wonen op topniveau in hartje Amsterdam.
Bijzonderheden:
- Appartementsrecht 81m² (gemeten conform NEN2580 meetinstructie)
- Hoogwaardige ontwikkeling van ROCK vastgoed!
- Prachtig Rijksmonument
- Eikenhouten vloer in Hongaarse punt gelegd, voorzien van vloerverwarming
- Gelegen op eigen grond (géén erfpacht)
- VvE beheer door Velzel VvE diensten
- Niet-zelfbewoningsclausule van toepassing
- Oplevering in overleg
- Projectnotaris: Buma Algera Notariaat

Deze informatie is door ons met de nodige zorgvuldigheid samengesteld. Onzerzijds wordt echter geen enkele aansprakelijkheid aanvaard voor enige onvolledigheid, onjuistheid of anderszins, dan wel de gevolgen daarvan. Alle opgegeven maten en oppervlakten zijn indicatief. Koper heeft zijn eigen onderzoek plicht naar alle zaken die voor hem of haar van belang zijn. Met betrekking tot deze woning is de makelaar adviseur van verkoper. Wij adviseren u een deskundige (NVM-)makelaar in te schakelen die u begeleidt bij het aankoopproces. Indien u specifieke wensen heeft omtrent de woning, adviseren wij u deze tijdig kenbaar te maken aan uw aankopend makelaar en hiernaar zelfstandig onderzoek te (laten) doen. Indien u geen deskundige vertegenwoordiger inschakelt, acht u zich volgens de wet deskundige genoeg om alle zaken die van belang zijn te kunnen overzien.

Kenmerken

Overdracht
Vraagprijs
€ 1.000.000 k.k.
Status
verkocht onder voorbehoud
Aanvaarding
in overleg
Bouw
Soort woonhuis
Bovenwoning
Soort bouw
appartement
Bouwjaar
1690
Energieklasse
C
Slaapkamers
3
Badkamers
1
Oppervlakten en inhoud
Woonoppervlakte
81 m2
Overige inpandige ruimte
0 m2
Inhoud
242 m3
faciliteiten
Mechanische ventilatie
Tv kabel
Aan water
In centrum
Vrij uitzicht
Aan vaarwater
Baerz & Co Property Brochure

Brochure

Video’s

Plattegronden

Bijzonder Wonen Makelaardij

Heilige Geeststraat, 11
5301CP Zaltbommel

info@bijzonderwonen.com
+31 41 868 00 50

www.bijzonderwonen.com

Informatie / bezichtigingsaanvraag

Jeanette van Haaften profile image
Jeanette van Haaften
Real Estate Agent

Een luxe woning kopen in Amsterdam

Amsterdam biedt een kosmopolitische levensstijl, gekenmerkt door erfgoed, verbondenheid en discrete luxe. Bewoners profiteren van een sterke internationale gemeenschap, hoogwaardige dienstverlening en een bruisende cultuur. De blijvende aantrekkingskracht van de stad schuilt in de combinatie van geschiedenis, verfijning en een vooruitstrevende geest.