Baerz & Co is een landelijk samenwerkingsverband van zorgvuldig geselecteerde boutique luxury makelaars. Samen vormen wij één netwerk, met één gedeeld aanbod. De woningen die u op onze website ziet, zijn afkomstig van alle aangesloten kantoren binnen Baerz & Co. Daardoor is niet ieder object rechtstreeks door ons kantoor in verkoop, maar door een gespecialiseerde collega binnen ons netwerk. Heeft u een woning gevonden die u aanspreekt en wilt u meer informatie? Dan brengen wij u graag persoonlijk in contact met de betreffende verkoopmakelaar, zodat u direct en zorgvuldig wordt begeleid.

AMSTERDAM
Herengracht 423 - 1017 BR
Nederland

Jeanette van Haaften profile image
Jeanette van Haaften
Real Estate Agent
€3.400.000 k.k.
Woonoppervlakte
313m2
Perceeloppervlakte
354m2
Slaapkamers
6

Omschrijving

Aangeboden door Signature Listing

17e-eeuws grachtenhuis vol karakter, licht en tijdloze elegantie.
Aan één van de mooiste delen van de Herengracht — kalm, statig en vrij van woonboten — ligt dit bijzondere grachtenhuis uit de 17e eeuw. Een Rijksmonument dat niet alleen geschiedenis ademt, maar ook warmte, licht en een verfijnde sfeer die je meteen omarmt wanneer je binnenkomt. Dit is geen woning die je bekijkt. Dit is een woning die je voelt. Verdeeld over vier woonlagen (minus het souterrain), met zes slaapkamers, vier badkamers, een patio, een steeg en een verborgen dakterras tussen de historische daken van de binnenstad. Een thuis dat ruimte biedt aan leven, rust, creativiteit, gezin, werk en lange avonden aan de gracht.

Rondleiding:
Souterrain
Momenteel in gebruik als bed & breakfast, biedt het souterrain tal van mogelijkheden. De lichte woonkamer is perfect voor ontspanning, terwijl de open keuken uitnodigt tot gezellig samen koken. De slaapkamer, met aangrenzende walk-in closet, biedt volop privacy en comfort. Door de slimme indeling en de hoogte van 2,29 meter kan deze ruimte ook ideaal dienen als home office, praktijkruimte of als zelfstandige woonruimte voor een au pair.

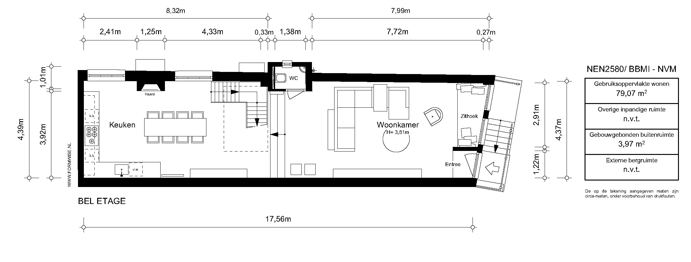
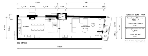
Beletage
Je stapt binnen op de bel etage, waar de hoge ramen aan de voorzijde de gracht inlijsten als een levend schilderij. Aan de achterzijde: een grote woonkeuken met moderne apparatuur, open haard en precies die sfeer die uitnodigt tot lang natafelen en goede gesprekken.

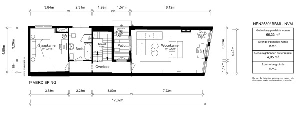
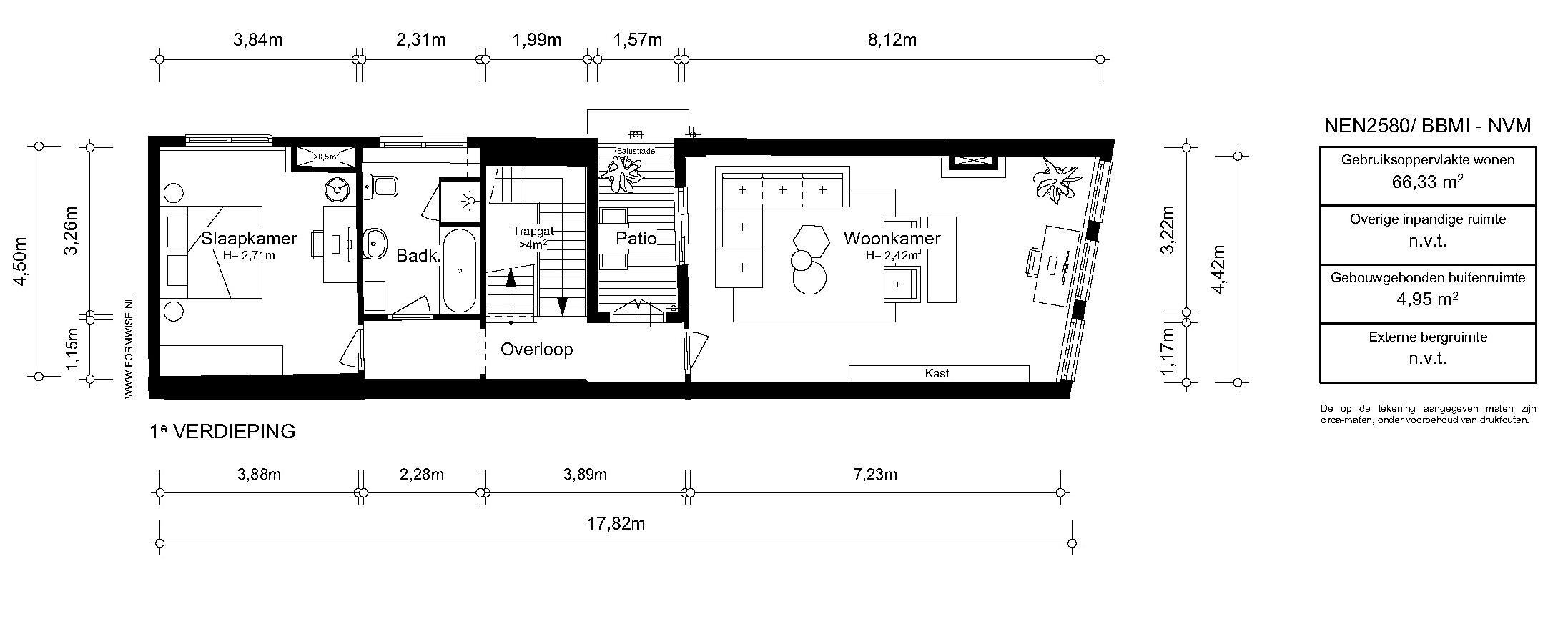
Eerste verdieping
Een architectonische trap brengt je naar de eerste etage. Hier: een royale slaapkamer met eigen badkamer (douche, bad, dubbele wastafels, toilet). Aan de voorzijde een sfeervolle tweede living met uitzicht op de gracht of een hele ruimte slaapkamer — een ruimte die ademt, die draagt, die inspireert. Vanuit deze verdieping stap je tevens de patio op: een verborgen rustige plek midden in de stad.

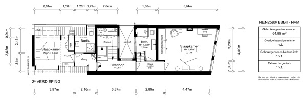
Tweede verdieping
Twee ruime slaapkamers, elk met een eigen badkamer. Privacy. Comfort. Harmonie. Ideaal voor gezin, gasten of werken aan huis.

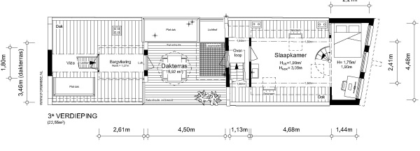
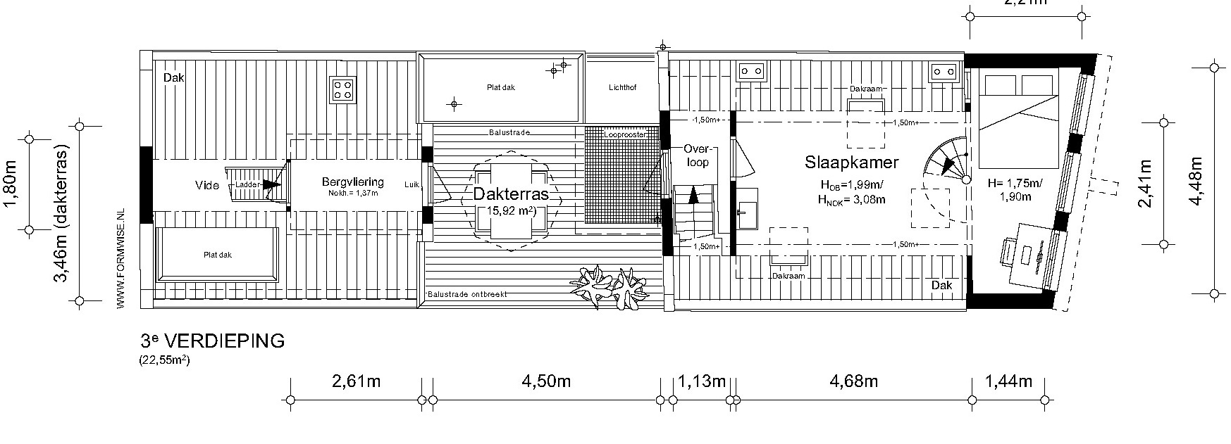
Derde verdieping
Een ruime slaapkamer aan de voorzijde, een karaktervolle vide als extra kamer, en dan het hoogtepunt: het dakterras. Intiem, beschut, en met uitzicht op de historische daken en de kerk — een zeldzame luxe in het centrum.

Buurtgids:
Tussen de Wijde Heijsteeg en het Koningsplein ligt een stukje gracht dat geliefd is onder Amsterdammers die rust zoeken zonder de stad te verlaten. Met de ‘9 Straatjes’ letterlijk om de hoek — boetieks, galeries, traiteurs, warme cafés — en de culturele hoogtepunten zoals de Stopera, het Concertgebouw, de P.C. Hooftstraat en zelfs het Vondelpark op loopafstand. Het is een locatie waar het leven voelt als een privilege.

Pluspunten van de woning:
+ Eigen grond;
+ Fundering geheel vernieuwd in 2005;
+ Zeer royaal woonoppervlak 313 m²;
+ Zéér interessant pand om te ontwikkelen en te splitsen in 2 of 3 high-end appartementen;
+ Mogelijkheid om Airbnb vergunning aan te vragen (inkomsten circa €6.000 per maand);
+ Dubbele bewoning of kantoor aan huis mogelijk;
+ Steeg (26 m2) met tweede entree. Ideaal voor fietsen;
+ Veel lichtinval dankzij hoge ramen:
+ De bel etage is helemaal open;
+ Fantastisch uitzicht op de gracht;
+ Plafondhoogte living van 3.81 m;
+ Dakterras (16 m²) naast de historische kerk;
+ 6 slaapkamer en 4 badkamers;
+ Design trap;
+ Open haard;
+ 2 CV-ketels.

Verkoopvoorwaarden:
+ De woning wordt "as is where is verkocht";
+ Notaris keuze koper, model ring Amsterdam;
+ Ouderdom clausule van toepassing;
+ Oplevering in overleg.

Mocht dit grachtenhuis u raken zoals het ons heeft gedaan, dan begeleiden wij u graag — met discretie, warmte en zorg — bij elke stap van het traject. Open huis woensdag 17 december van 14.00 -16.00 uur.

Voor inlichtingen of het maken van een afspraak voor een bezichtiging: Signature Listing: 020 260 0151.

Deze informatie is door ons met de nodige zorgvuldigheid samengesteld. Onzerzijds wordt echter geen enkele aansprakelijkheid aanvaard voor enige onvolledigheid, onjuistheid of anderszins, dan wel de gevolgen daarvan. Alle opgegeven maten en oppervlakten zijn indicatief. Koper heeft zijn eigen onderzoek plicht naar alle zaken die voor hem of haar van belang zijn. Met betrekking tot deze woning is de makelaar adviseur van verkoper. Wij adviseren u een deskundige (NVM-)makelaar in te schakelen die u begeleidt bij het aankoopproces. Indien u specifieke wensen heeft omtrent de woning, adviseren wij u deze tijdig kenbaar te maken aan uw aankopend makelaar en hiernaar zelfstandig onderzoek te (laten) doen. Indien u geen deskundige vertegenwoordiger inschakelt, acht u zich volgens de wet deskundige genoeg om alle zaken die van belang zijn te kunnen overzien. Van toepassing zijn de NVM-voorwaarden.

Warme groet,

Team Signature Listing

Kenmerken

Overdracht
Vraagprijs
€ 3.400.000 k.k.
Status
beschikbaar
Aanvaarding
in overleg
Bouw
Soort woonhuis
Grachtenpand
Soort bouw
tussenwoning
Slaapkamers
6
Badkamers
4
Oppervlakten en inhoud
Woonoppervlakte
313 m2
Overige inpandige ruimte
3 m2
Gebouwgebonden buitenruimte
9 m2
Inhoud
699 m3
Perceeloppervlakte
354 m2
faciliteiten
Aan water
In centrum
Vrij uitzicht
Aan vaarwater
Baerz & Co Property Brochure

Brochure

Video’s

Plattegronden

Bijzonder Wonen Makelaardij

Heilige Geeststraat, 11
5301CP Zaltbommel

info@bijzonderwonen.com
+31 41 868 00 50

www.bijzonderwonen.com

Informatie / bezichtigingsaanvraag

Jeanette van Haaften profile image
Jeanette van Haaften
Real Estate Agent

Een luxe woning kopen in Amsterdam

Amsterdam biedt een kosmopolitische levensstijl, gekenmerkt door erfgoed, verbondenheid en discrete luxe. Bewoners profiteren van een sterke internationale gemeenschap, hoogwaardige dienstverlening en een bruisende cultuur. De blijvende aantrekkingskracht van de stad schuilt in de combinatie van geschiedenis, verfijning en een vooruitstrevende geest.