Baerz & Co is een landelijk samenwerkingsverband van zorgvuldig geselecteerde boutique luxury makelaars. Samen vormen wij één netwerk, met één gedeeld aanbod. De woningen die u op onze website ziet, zijn afkomstig van alle aangesloten kantoren binnen Baerz & Co. Daardoor is niet ieder object rechtstreeks door ons kantoor in verkoop, maar door een gespecialiseerde collega binnen ons netwerk. Heeft u een woning gevonden die u aanspreekt en wilt u meer informatie? Dan brengen wij u graag persoonlijk in contact met de betreffende verkoopmakelaar, zodat u direct en zorgvuldig wordt begeleid.

AMSTERDAM
Balthasar Floriszstraat 12 3 - 1071 VC
Nederland

€875.000 k.k.
Woonoppervlakte
89m2
Perceeloppervlakte
50m2
Slaapkamers
2

Omschrijving

Balthasar Floriszstraat 12 3, 1071 VC AMSTERDAM

Midden in het populaire Amsterdam Oud-Zuid bieden wij dit sfeervolle en ideaal ingedeelde hoekappartement circa 89m² aan. Het appartement is gelegen op de derde en vierde verdieping en beschikt over een lichte, sfeerrijke woonkamer met moderne open keuken, een Frans balkon, twee ruime slaapkamer en een badkamer met ligbad op de tweede verdieping en een groot dakterras van circa 12m². Dit alles ligt op EIGEN GROND! Met talloze winkels, restaurants en cafés op loopafstand, bevindt u zich midden in één van de meest dynamische en geliefde buurten van Amsterdam!

Ligging & Bereikbaarheid:
De Balthasar Floriszstraat is een rustige en charmante straat in het hart van Oud-Zuid, in de buurt Duivelseiland, gelegen tussen de Cornelis Anthoniszstraat en de Roelof Hartstraat. De ligging is ideaal en biedt alle mogelijkheden: op loopafstand bevindt zich het Museumkwartier met onder andere het Rijksmuseum, Van Gogh Museum en het Museumplein. Ook de Beethovenstraat, P.C. Hooftstraat, en de Albert Cuypmarkt liggen op slechts enkele minuten wandelen en bieden een breed scala aan winkels, speciaalzaken en horecagelegenheden. De bruisende wijk De Pijp bevindt zich bovendien op slechts twee minuten loopafstand, en voor ontspanning en recreatie bent u binnen enkele minuten in zowel het Vondelpark, als het Sarphatipark.
De bereikbaarheid is uitstekend. Met de auto bent u binnen circa 10 minuten op de Ring A10. Parkeren kan via het vergunningensysteem. Het openbaar vervoer is ruim vertegenwoordigd met meerdere tramverbindingen (o.a. lijn 3, 5 en 12) en de Noord/Zuidlijn (metrostation De Pijp) op korte loopafstand, evenals busverbindingen richting Centraal Station, Station Zuid-WTC, Amstel, Sloterdijk en Muiderpoort.

Indeling:

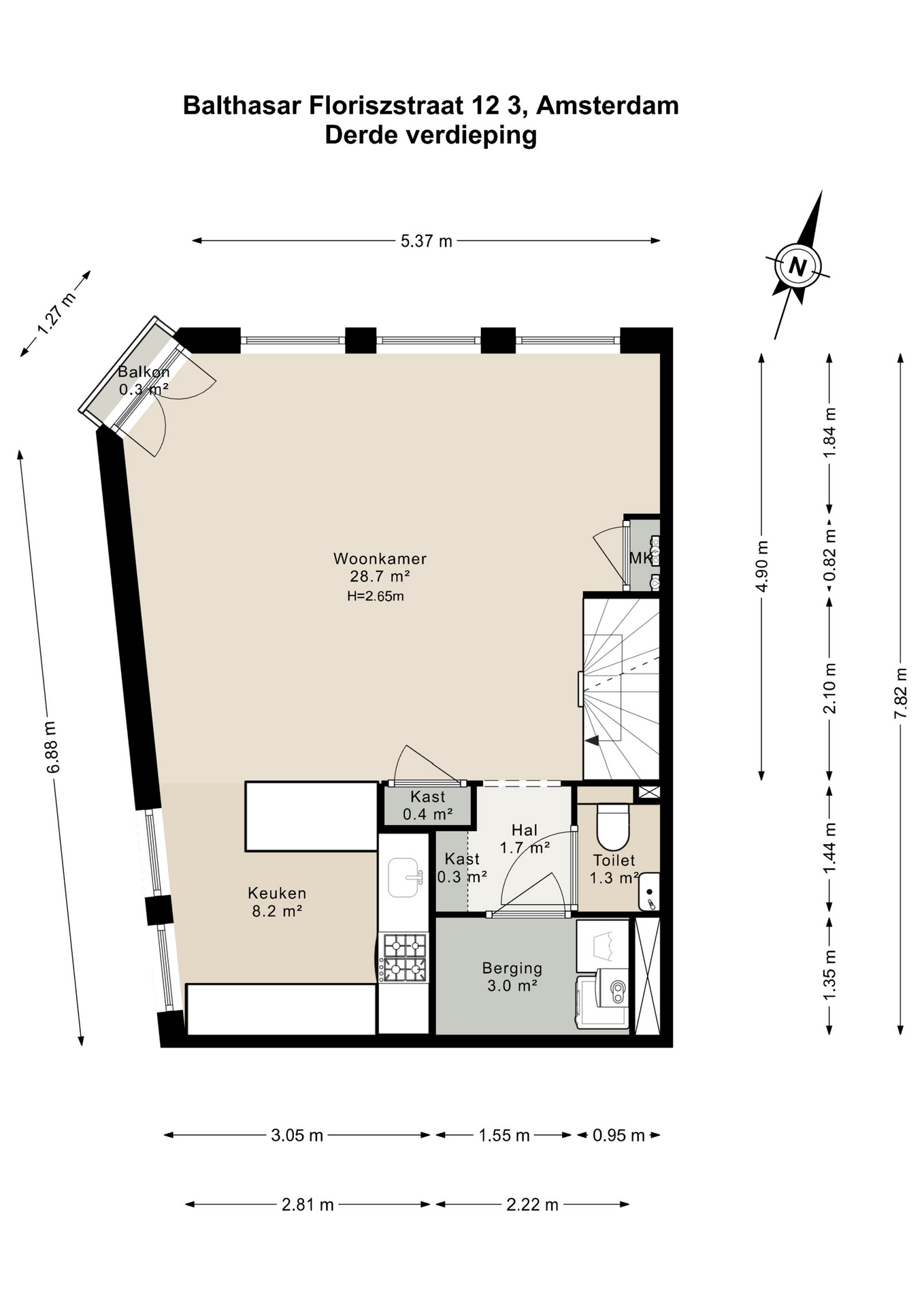
Derde verdieping:
Middels een eigen trapopgang vanaf de tweede verdieping bereikt u de derde verdieping, waar u bij binnenkomst direct de ruime woonkamer betreedt. Dankzij de hoekligging en de vele raampartijen met dubbel glas wordt deze ruimte gekenmerkt door een prachtige lichtinval en een aangename, open sfeer.
De woonkamer loopt naadloos over in de royale open keuken, die middels een gezellige bar in directe verbinding staat met de leefruimte. De keuken is volledig uitgerust met diverse inbouwapparatuur, waaronder een 4-pits gasfornuis, ingebouwde afzuigkap, vaatwasser en oven. Samen vormen de woonkamer en keuken een comfortabele en uitnodigende leefruimte.
Aan de zijde van de Balthasar Floriszstraat beschikt de woning over een charmant Frans balkon. Aan de andere zijde bevinden zich het gastentoilet en een praktische multifunctionele ruimte, ingericht als wasruimte en garderobe.

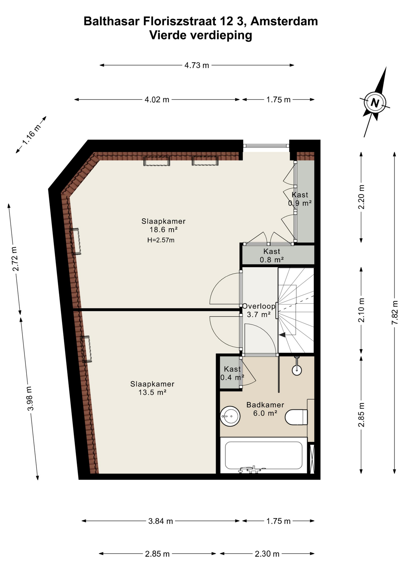
Vierde verdieping:
Middels de interne trap bereikt u de vierde verdieping. Hier bevinden zich twee goed bemeten slaapkamers, waaronder een die is voorzien van ingebouwde kasten. Tevens bevindt zich op deze verdieping de ruime badkamer, uitgevoerd met een ligbad, separate douche, toilet, wastafel en een praktische bergkast.
Via de trap bereikt u de eyecatcher van de woning: het dakterras. Hier geniet u van een mooi, vrij uitzicht en een heerlijke plek om in alle rust van de zon te genieten.
Kortom, een ruim en licht appartement, verdeeld over meerdere verdiepingen, met een praktische indeling, een dakterras en een uitstekende ligging op eigen grond in het geliefde Amsterdam Oud-Zuid.
Bijzonderheden:
- Appartementsrecht van 89,3m² (gemeten conform NEN2580 meetinstructie);
- Riant dakterras van 12,3m² (gemeten conform NEN2580 meetinstructie);
- (Frans) balkon;
- Twee slaapkamers;
- Efficiënt ingedeeld appartement;
- Gelegen op eigen grond, dus géén erfpacht;
- Actieve VvE, servicekosten bedragen € 225,83 per maand;
- Energielabel C;
- MJOP aanwezig;
- Oplevering in overleg.
Deze informatie is door ons met de nodige zorgvuldigheid samengesteld. Onzerzijds wordt echter geen enkele aansprakelijkheid aanvaard voor enige onvolledigheid, onjuistheid of anderszins, dan wel de gevolgen daarvan. Alle opgegeven maten en oppervlakten zijn indicatief. Koper heeft zijn eigen onderzoek plicht naar alle zaken die voor hem of haar van belang zijn. Met betrekking tot deze woning is de makelaar adviseur van verkoper. Wij adviseren u een deskundige (NVM-)makelaar in te schakelen die u begeleidt bij het aankoopproces. Indien u specifieke wensen heeft omtrent de woning, adviseren wij u deze tijdig kenbaar te maken aan uw aankopend makelaar en hiernaar zelfstandig onderzoek te (laten) doen. Indien u geen deskundige vertegenwoordiger inschakelt, acht u zich volgens de wet deskundige genoeg om alle zaken die van belang zijn te kunnen overzien. Van toepassing zijn de NVM voorwaarden.

Kenmerken

Overdracht
Vraagprijs
€ 875.000 k.k.
Status
beschikbaar
Aanvaarding
in overleg
Bouw
Soort woonhuis
Bovenwoning
Soort bouw
appartement
Bouwjaar
1906
Energieklasse
D
Soort dak
plat dak
Slaapkamers
2
Badkamers
1
Oppervlakten en inhoud
Woonoppervlakte
89 m2
Overige inpandige ruimte
0 m2
Inhoud
324 m3
Perceeloppervlakte
50 m2
faciliteiten
Tv kabel
Frans balkon
Natuurlijke ventilatie
Aan rustige weg
In woonwijk
Baerz & Co Property Brochure

Brochure

Video’s

Video Balthasar Floriszstraat 12 3

Plattegronden

Bijzonder Wonen Makelaardij

Heilige Geeststraat, 11
5301CP Zaltbommel

info@bijzonderwonen.com
+31 41 868 00 50

www.bijzonderwonen.com

Informatie / bezichtigingsaanvraag

Jeanette van Haaften profile image
Jeanette van Haaften
Real Estate Agent

Een luxe woning kopen in Amsterdam

Amsterdam biedt een kosmopolitische levensstijl, gekenmerkt door erfgoed, verbondenheid en discrete luxe. Bewoners profiteren van een sterke internationale gemeenschap, hoogwaardige dienstverlening en een bruisende cultuur. De blijvende aantrekkingskracht van de stad schuilt in de combinatie van geschiedenis, verfijning en een vooruitstrevende geest.