Ons kantoor is lid van Baerz & Co Luxury Homes; een internationaal platform dat exclusieve woningmakelaars met elkaar verbindt. Neem contact op met ons secretariaat voor meer informatie over het landelijke aanbod, waarvan u hieronder een selectie kunt bekijken.

ALKMAAR
Van De Veldelaan 966 - 1816 PZ
Nederland

Jeanette van Haaften profile image
Jeanette van Haaften
Real Estate Agent
€950.000 k.k.
Woonoppervlakte
167m2
Perceeloppervlakte
880m2
Slaapkamers
4

Omschrijving

ROYALE VRIJSTAANDE WONING MET EIGEN GARAGE EN PRACHTIG GROENE TUIN AAN HET WATER EN NATUURPARK EGMONDERHOUT!

Deze woning gebouwd in 1966 is opgetrokken uit handgevormde rode bakstenen, uitgevoerd in het ruitverband, en met zwart grijze dakpannen, wat zorgt voor een klassieke uitstraling.

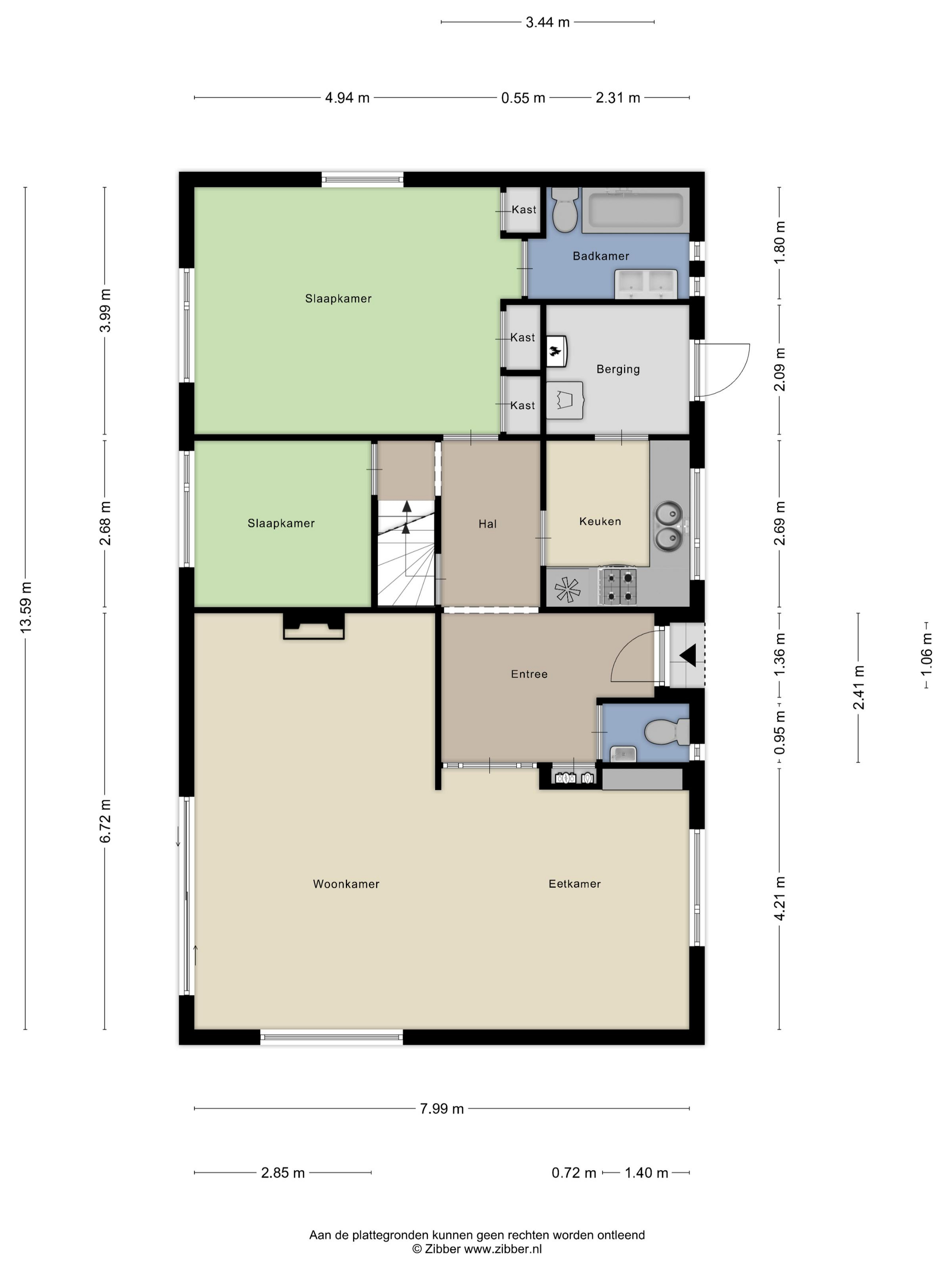
De woning beschikt over een ruime oprit, een vrijstaande garage en een heerlijke beschutte en zonnige tuin aan het water. De indeling is praktisch met onder andere een slaapkamer en badkamer op de begane grond. Daarbij maken de vier slaapkamers, de vele opbergmogelijkheden en de ruime woonkamer de woning tot een ideale gezinswoning, of een heerlijke plek voor wie ruimer wil wonen.

Bij aankomst parkeert u uw auto op eigen terrein. Via de ruime oprit bereikt u de entree van de woning, die leidt naar de hal die toegang biedt tot diverse vertrekken op de begane grond. Aan de rechterzijde van de hal vindt u twee slaapkamers. De grootste van de twee is zeer ruim en beschikt over een badkamer en suite, voorzien van een ligbad, toilet en dubbele wastafel. De tweede kamer is uitstekend geschikt als kinderkamer, kantoor of hobbyruimte. Deze indeling maakt het huis tevens zeer geschikt voor levensloopbestendig wonen of voor werken aan huis. Naast de tweede slaapkamer bevindt zich de toegang tot de kelderkast.

Via de hal loopt u door naar de keuken, die is voorzien van enkele inbouwapparatuur. Aansluitend bevindt zich de bijkeuken, met onder andere de cv-opstelling en de aansluiting voor uw wasmachine. Deze ruimte biedt eveneens direct toegang tot de oprit en de deur naar de achtertuin, ideaal wanneer u thuiskomt met boodschappen of even snel naar buiten wilt.

De linkerzijde van de hal geeft toegang tot een separaat toilet met fontein, de meterkast en tot de woonkamer. De woonkamer is ruim en licht, met grote raampartijen, een originele vaste kast, een open haard en een schuifpui naar de volgroeide voor-, zij- en achtertuin.

De achtertuin is werkelijk een plaatje. Door de groene beplanting, zonnige ligging én het uitzicht op het water met daarachter het Natuurpark Egmonderhout, biedt deze tuin een unieke combinatie van privacy en rust. Dankzij de directe ligging aan het water en het natuurgebied heeft u geen achterburen. Vanuit de tuin is ook de ruime garage bereikbaar. Deze garage, voorzien van een elektrische garagedeur, kunt u gebruiken voor het stallen van fietsen, gereedschap of het parkeren van uw auto.

Via de trap in de hal bereikt u de eerste verdieping. De grote overloop biedt veel bergruimte in de knieschotten, toegang tot een aparte doucheruimte en nog eens twee ruime slaapkamers met ingebouwde kastruimte. De huidige indeling is door de grootte van de overloop eenvoudig aan te passen en maakt het mogelijk om extra slaapkamers en of een badkamer op deze verdieping te realiseren. Dit maakt de woning niet alleen geschikt voor gezinnen, maar ook voor wie regelmatig logés ontvangt of werk- of hobbyruimten wenst.

De ligging:
Naast de woning zelf is ook de locatie zeer goed te noemen. U woont hier in een rustige en kindvriendelijke buurt, waar diverse scholen en sportvoorzieningen, zoals breedtesportvereniging ‘Alcmaria Victrix’, Sportcomplex ‘De Meent’ en ‘Victorie Plaza Sport & Welness’, en winkelcentrum ‘De Hoef’ op korte afstand bereikbaar zijn.

Het gezellige en historische centrum van Alkmaar bereikt u met de fiets in ongeveer 11 minuten. Indien u graag naar het strand gaat, ligt Egmond aan Zee op slechts een klein kwartier rijden met de auto. Ook de bereikbaarheid is uitstekend: de A9 richting Amsterdam, Haarlem en andere steden is binnen 10 minuten bereikbaar. Het NS-station van Alkmaar ligt op zo’n 10 minuten fietsen en bushaltes bevinden zich op loopafstand.

Bijzonderheden:
- De mogelijkheid om volledig naar eigen smaak te verbouwen;
- Zeer geschikt voor gezinnen en doorstromers met de mogelijkheid tot levensloopbestendig wonen;
- Ruime garage en voldoende parkeerruimte op de eigen oprit;
- De tuin beschikt over een ondergronds systeem met diverse waterpunten voor de beregening van de tuin;
- Heerlijk groene achtertuin gelegen aan water en het Natuurpark Egmonderhout;
- Gunstige ligging in een kindvriendelijke wijk met alle voorzieningen in de directe nabijheid;
- Energielabel D;
- Aanvaarding in overleg, kan snel.

Kenmerken

Alarm system
Overdracht
Vraagprijs
€ 950.000 k.k.
Status
verkocht onder voorbehoud
Aanvaarding
in overleg
Bouw
Soort woonhuis
Villa
Soort bouw
vrijstaande woning
Bouwjaar
1966
Energieklasse
D
Soort dak
zadeldak
Slaapkamers
4
Badkamers
1
Oppervlakten en inhoud
Woonoppervlakte
167 m2
Overige inpandige ruimte
0 m2
Gebouwgebonden buitenruimte
1 m2
Externe bergruimte
25 m2
Inhoud
619 m3
Perceeloppervlakte
880 m2
faciliteiten
Alarminstallatie
Buitenzonwering
Schuifpui
Dakraam
Aan water
Aan rustige weg
In woonwijk
In bosrijke omgeving
Baerz & Co Property Brochure

Brochure

Video’s

Plattegronden

Bijzonder Wonen Makelaardij

Heilige Geeststraat, 11
5301CP Zaltbommel

info@bijzonderwonen.com
+31 41 868 00 50

www.bijzonderwonen.com

Informatie / bezichtigingsaanvraag

Jeanette van Haaften profile image
Jeanette van Haaften
Real Estate Agent

Een luxe woning kopen in Alkmaar

Alkmaar combineert Nederlandse traditie, luxe leefstijl en een hoogwaardige huizenmarkt. Het trekt internationale kopers met een exclusieve gemeenschap, wereldwijde connectiviteit en voortreffelijke voorzieningen.