Baerz & Co is een landelijk samenwerkingsverband van zorgvuldig geselecteerde boutique luxury makelaars. Samen vormen wij één netwerk, met één gedeeld aanbod. De woningen die u op onze website ziet, zijn afkomstig van alle aangesloten kantoren binnen Baerz & Co. Daardoor is niet ieder object rechtstreeks door ons kantoor in verkoop, maar door een gespecialiseerde collega binnen ons netwerk. Heeft u een woning gevonden die u aanspreekt en wilt u meer informatie? Dan brengen wij u graag persoonlijk in contact met de betreffende verkoopmakelaar, zodat u direct en zorgvuldig wordt begeleid.

'S-GRAVENHAGE
Plaats 24 A - 2513 AE
Nederland

Jeanette van Haaften profile image
Jeanette van Haaften
Real Estate Agent
€1.495.000 k.k.
Woonoppervlakte
171m2
Perceeloppervlakte
N/A
Slaapkamers
2

Omschrijving

Op een van de meest prestigieuze locaties van Den Haag, direct aan het sfeervolle plein met een adembenemend panoramisch uitzicht over de Hofvijver en de parlementsgebouwen, bevindt zich dit uitzonderlijke appartement. Gelegen in het hart van het historische centrum, op een locatie van ongeëvenaarde allure.

Dit exclusieve 4-kamerappartement is gesitueerd op de eerste verdieping en bereikbaar per lift. Met een royale woonoppervlakte van circa 171 m² biedt het appartement een combinatie van ruimte, comfort en elegantie. De statige entree op de begane grond beschikt over zowel een trap als een lift en onderstreept direct het hoogwaardige karakter van het pand.

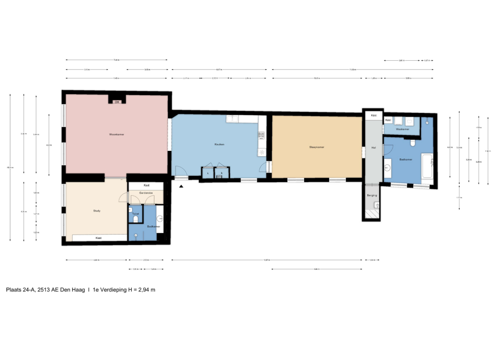
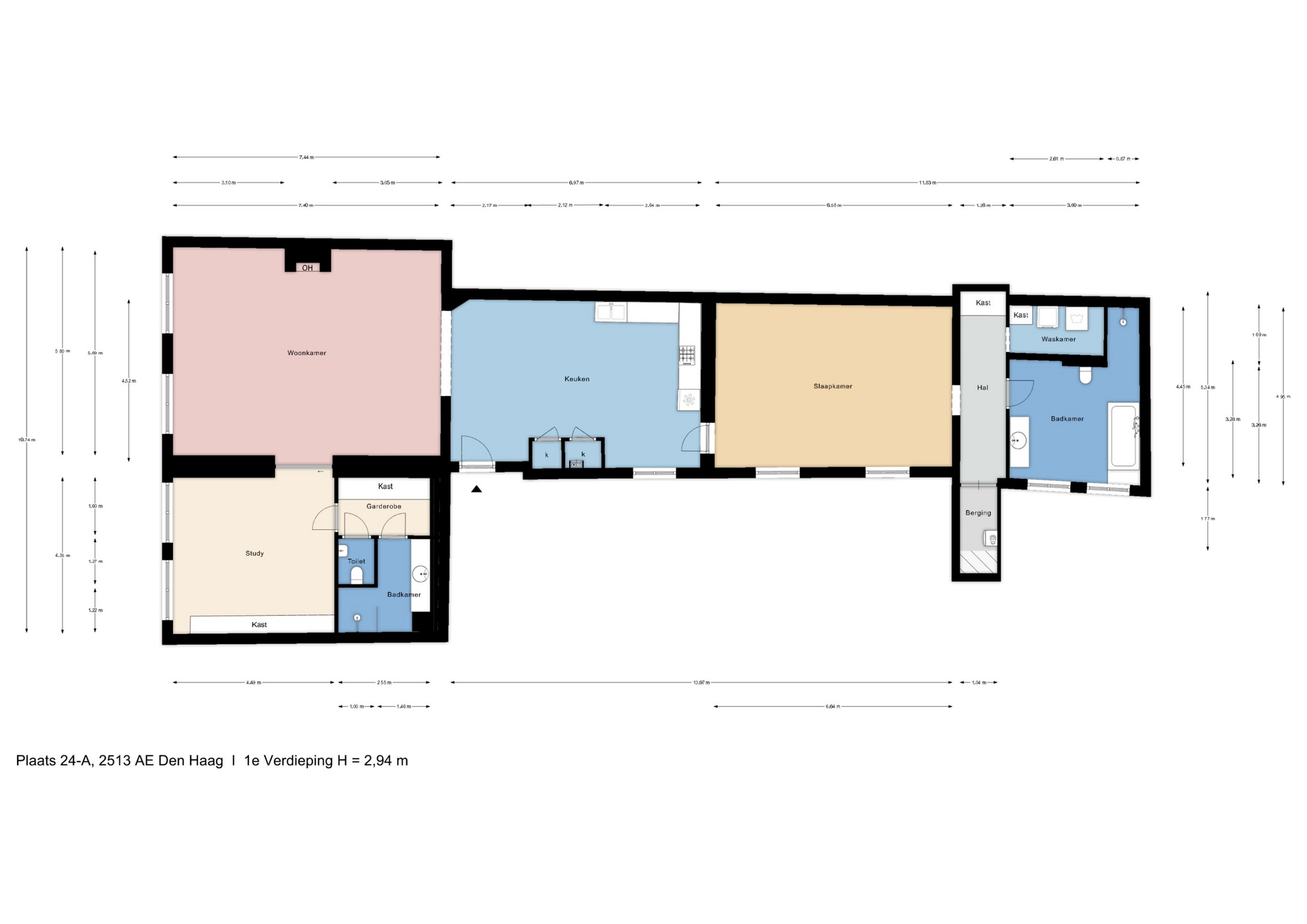
Indeling:
Aan de voorzijde bevindt zich de imposante woonkamer, gekenmerkt door hoge plafonds, een stijlvolle schouw met open haard en een fenomenaal uitzicht over de Hofvijver. Vanuit de woonkamer is er een elegante doorloop naar een royale bibliotheek en/of slaapkamer, voorzien van open kastenwanden. Aansluitend bevindt zich een tussenruimte met ingebouwde kastruimte en een afgewerkte marmeren badkamer, uitgerust met een wastafelmeubel, douche en toilet. De woon-/eetkeuken is voorzien van inbouwapparatuur en vaste kastruimte. Aan de achterzijde van het appartement ligt de zeer ruime hoofdslaapkamer, die rust en privacy biedt. Deze kamer grenst aan een tussenhal met een inloopkast en opstelplaats voor de cv-ketel. Daarnaast is er een separate wasruimte met aansluitingen voor wasmachine en droger en extra bergruimte. De tweede, luxueuze marmeren badkamer is voorzien van een ligbad, een royale inloopdouche, een stijlvol wastafelmeubel met ombouw en een toilet.

Bijzondere kernmerken:
- Uniek in zijn soort met een luxe entree met fraai trappenhuis en lift.
- Actieve VVE . De service kosten bedragen € 289,73 per maand. Hierbij inbegrepen zit het onderhoud lift en gemeenschappelijke ruimte.
- Eigen grond.
- Woonoppervlakte 172 m2
- Er zijn mogelijkheden voor het huren van een parkeerplek in een van parkeergarages om de hoek
- Berging op de parterre
-Energie Label C
- Ouderdom en materialen clausule zijn van toepassing
- Wonen op deze zeldzame locatie is een unieke ervaring.
- Oorspronkelijk bouwjaar 1675

This spacious apartment is situated in one of The Hague's most prestigious locations, directly on the charming square with breathtaking panoramic views of the Hofvijver and the parliament buildings. Located in the heart of the historic city center, it boasts infinite allure.

This exclusive 4-room apartment is situated on the first floor and is accessible by elevator. With a generous living area of??approximately 171 m², the apartment offers a combination of space, comfort, and elegance. The stately entrance on the ground floor, accessible via both stairs and an elevator, immediately conveys the building's high-quality character.

Layout:
At the front of the building is the imposing living room, high ceilings, a stylish fireplace, and a phenomenal view of the Hofvijver. From the living room, there is an elegant passageway to a spacious library or bedroom, complete with open bookcases. Adjacent is a hallway with ample closet space and a finished marble bathroom with a vanity, shower, and toilet. The kitchen is equipped with built-in appliances and ample closet space. At the rear of the apartment is the very spacious master bedroom, offering peace and privacy. This room opens onto a hallway with a walk-in closet and space for the gas central heating boiler. There is also a separate laundry room with connections for a washer and dryer and additional storage space. The second, luxurious marble bathroom features a bathtub, a spacious walk-in shower, a stylish vanity with a built-in vanity, and a toilet.

Kenmerken

Overdracht
Vraagprijs
€ 1.495.000 k.k.
Status
beschikbaar
Aanvaarding
in overleg
Bouw
Soort woonhuis
Bovenwoning
Soort bouw
appartement
Bouwjaar
1675
Energieklasse
C
Slaapkamers
2
Badkamers
2
Oppervlakten en inhoud
Woonoppervlakte
171 m2
Overige inpandige ruimte
0 m2
Inhoud
630 m3
faciliteiten
Lift
In centrum
Vrij uitzicht
Baerz & Co Property Brochure

Brochure

Video’s

Bijzonder Wonen Makelaardij

Heilige Geeststraat, 11
5301CP Zaltbommel

info@bijzonderwonen.com
+31 41 868 00 50

www.bijzonderwonen.com

Informatie / bezichtigingsaanvraag

Jeanette van Haaften profile image
Jeanette van Haaften
Real Estate Agent

Een luxe woning kopen in Den Haag

Den Haag biedt een stijlvolle gemeenschap, internationale verbindingen en gerenommeerde culturele instellingen. Bewoners genieten van premium dienstverlening, elegante omgevingen en directe toegang tot internationale voorzieningen, alles in een discrete en veilige stedelijke context.