Ons kantoor is lid van Baerz & Co Luxury Homes; een internationaal platform dat exclusieve woningmakelaars met elkaar verbindt. Neem contact op met ons secretariaat voor meer informatie over het landelijke aanbod, waarvan u hieronder een selectie kunt bekijken.

WILNIS
Waterpeil 52 - 3648 LH
Les Pays-Bas

John Korver profile image
John Korver
Real estate agent
€1,100,000 k.k.
Surface habitable
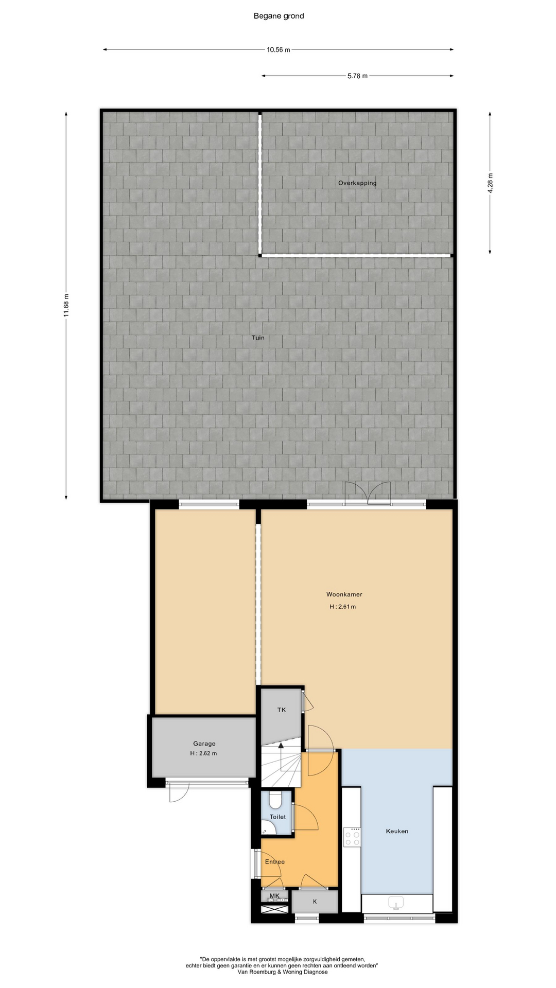
195m2
Superficie du terrain
290m2
Chambres
4

Description

Cette villa semi-indépendante à Wilnis incarne le raffinement de la vie contemporaine dans De Maricken, le quartier résidentiel le plus récent. Pensée pour les amateurs de luxe discret et d’intimité, elle offre 195 m² d’espaces de vie baignés de lumière et d’ouverture dès l’entrée. L’architecture met en avant clarté et fluidité, sublimées par des finitions haut de gamme, un chauffage au sol et la climatisation dans toutes les pièces. Quatre grandes chambres—facilement modulables en cinq—répondent aux exigences de la vie de famille ou de bureaux polyvalents, accompagnées de deux salles de bains élégantes à l’atmosphère proche d’un spa.

La cuisine est parfaitement équipée pour les passionnés de gastronomie, avec des appareils haut de gamme et de nombreux rangements, tandis que le salon arbore une bibliothèque sur mesure et une cheminée au bioéthanol dessinée par Eric Kuster, conférant une touche d’élégance cosmopolite. Des portes-fenêtres s’ouvrent sur un jardin orienté ouest, des terrasses et une véranda équipée d’un éclairage intégré, prolongeant ainsi le confort à l’extérieur. Ici, la confidentialité est absolue, sans vis-à-vis, agrémentée d’un aménagement paysager comprenant un trampoline intégré, plusieurs terrasses et une irrigation complète.

La durabilité est au cœur du projet avec 20 panneaux solaires, une pompe à chaleur, une ventilation double flux et une classe énergétique A. D’innombrables attentions ponctuent le lieu: parking privé pour deux véhicules avec borne de recharge pour véhicule électrique, solutions de rangement intégrées et équipements automatisés. Le cadre environnant s’harmonise à ce confort: allées verdoyantes, aires de jeux familiales, écoles, commerces et accès privilégié à Amsterdam, Utrecht et Schiphol. Pour ceux qui aspirent à une vie clés en main à Wilnis, cette villa de prestige à vendre concilie efficacité d’avenir, confort durable et sophistication apaisante.

Découvrez Wilnis avec Baerz, votre conseiller et chasseur immobilier personnel de confiance

L’accès à ce marché discret et nuancé requiert des compétences allant bien au-delà de l’intermédiation classique. Accès confidentiel aux biens privés, expertise des tendances locales et parfaite maîtrise juridique garantissent à la clientèle les meilleures conditions. Des conseillers de confiance favorisent la mise en relation avec les professionnels locaux, veillent à chaque étape et sécurisent des transactions à haute valeur ajoutée.

Évitez les pièges courants

Les acheteurs internationaux perdent souvent un temps précieux à naviguer entre des annonces en ligne dupliquées, obsolètes ou trompeuses, d’autant que près de 30% des propriétés de luxe ne sont jamais mises sur le marché.
Les agents du vendeur représentent les intérêts du vendeur, pas les vôtres, et une simple demande d’information peut entraîner votre inscription comme “client” auprès d’une agence sans votre consentement.
Avec Baerz Property Finders & Advisors, vous évitez totalement ces écueils.
Nous agissons exclusivement en votre nom, en vous offrant une représentation indépendante, des conseils transparents et un accès à toutes les propriétés disponibles, y compris les opportunités privées et off-market que les autres ne voient jamais.

Curieux de savoir comment obtenir votre propre Conseiller Immobilier Personnel ? Contactez-nous pour découvrir comment nous pouvons défendre vos intérêts et vous ouvrir l’accès à l’ensemble du marché.

Caractéristiques

Panneaux solaires
Alarm system
Climatisation
Transfert de propriété
Prix demandé
€ 1.100.000 k.k.
Statut
beschikbaar
Acceptation
in overleg
Construction
Type de maison
Herenhuis
Type de bâtiment
twee onder een kapwoning
Période de construction
2021
Classe énergétique
A
Type de toit
zadeldak
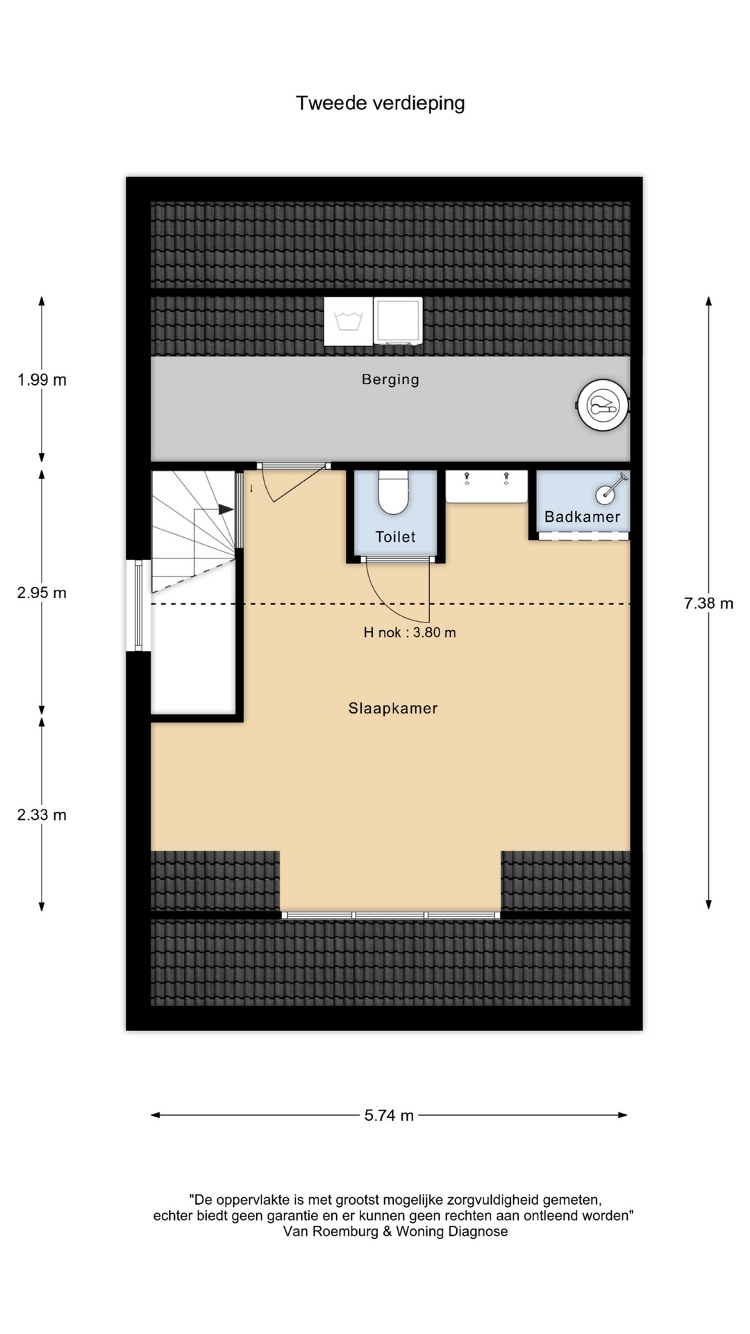
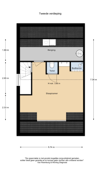
Chambres
4
Salles de bains
2
Surfaces et volumes
Surface habitable
195 m2
Autre espace intérieur
6 m2
Volume en mètres cubes
720 m3
Superficie du terrain
290 m2
Équipements
Mechanische ventilatie
Alarminstallatie
Tv kabel
Airconditioning
Dakraam
Glasvezel kabel
Zonnepanelen
Balansventilatie
Aan rustige weg
In woonwijk
Vrij uitzicht
Beschutte ligging
Baerz & Co Property Brochure

Brochure

Vidéos

Korver makelaars

Stationsweg 12
3641RG Mijdrecht

welkom@korvermakelaars.nl
+31 297 25 04 21

www.korvermakelaars.nl

Demande d'information / de visite

John Korver profile image
John Korver
Real estate agent