Ons kantoor is lid van Baerz & Co Luxury Homes; een internationaal platform dat exclusieve woningmakelaars met elkaar verbindt. Neem contact op met ons secretariaat voor meer informatie over het landelijke aanbod, waarvan u hieronder een selectie kunt bekijken.

ROTTERDAM
Plasoord 5 - 3054 LJ
Pays-Bas

Joris van Oosten profile image
Joris van Oosten
Real estate agent
€1,595,000 k.k.
Surface habitable
234m2
Superficie du terrain
197m2
Chambres
6

Description

Le Herenhuis Rotterdam se dresse là où l’eau rencontre la ville, offrant une expérience immersive au bord de l’eau, le monde à vos pieds. Cette résidence de 234 m², édifiée en 1927, occupe un terrain privé de 197 m² en première ligne sur le Bergse Voorplas, avec un amarrage pour votre sloop à seulement quelques pas de la terrasse. L’orientation nord-est de la propriété et un jardin de plus de 20 mètres de profondeur garantissent de longues heures d’ensoleillement et des vues paisibles, à quelques instants du centre du village de Hillegersberg et à seulement 20 minutes à vélo de la vie culturelle de Rotterdam.

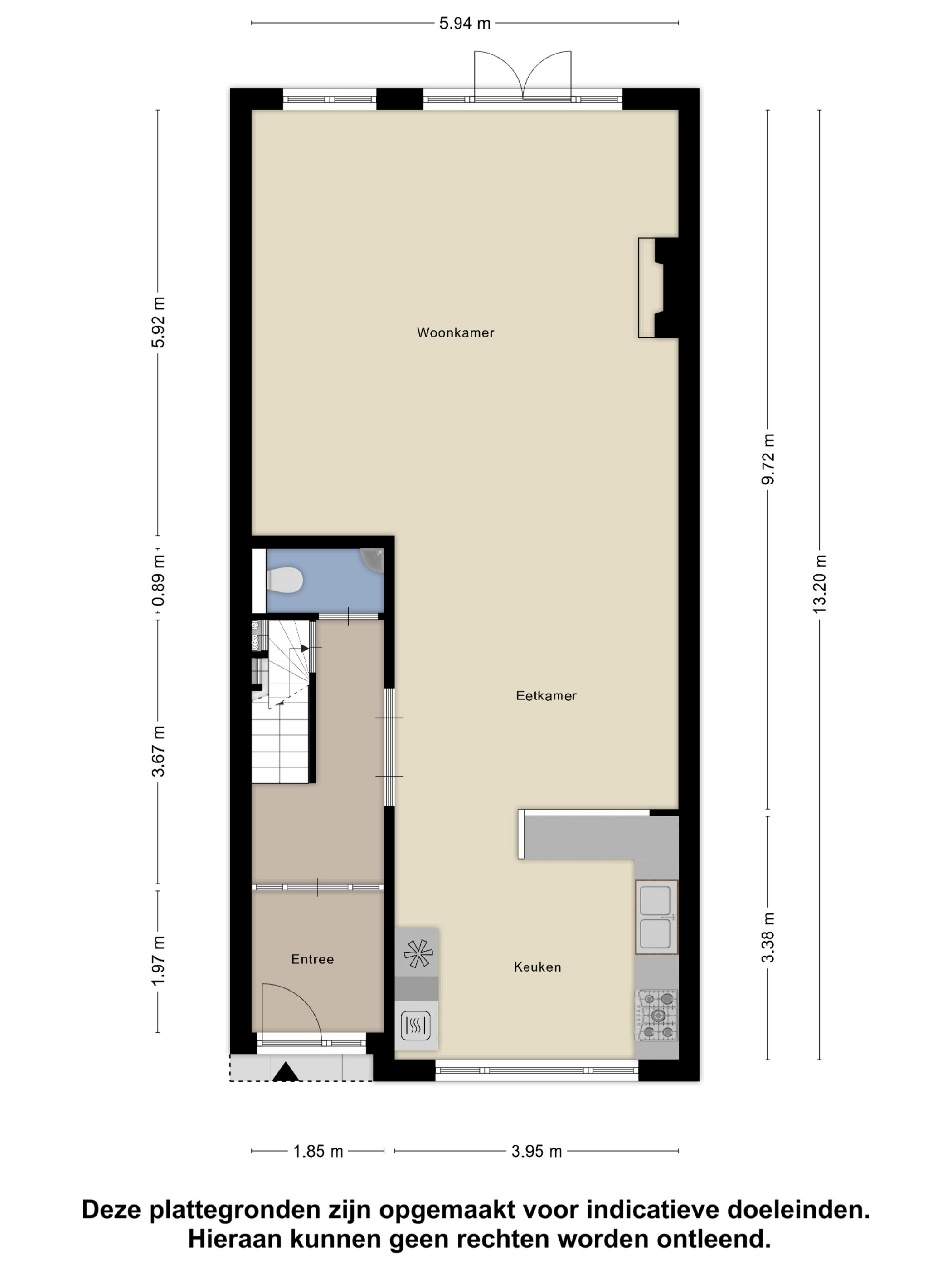
L'intérieur se déploie sur quatre niveaux. Le rez-de-chaussée accueille par des soubassements en marbre, des sols en granit, des vitraux et un séjour s’étendant sur près de 6 mètres de largeur. Deux conduits solaires baignent la pièce à vivre prolongée de lumière naturelle, menant jusqu’à la terrasse du jardin en bord d’eau. La cuisine ouverte à l’avant facilite les réceptions, tandis que la cheminée à gaz offre chaleur et convivialité. À l’étage, la suite parentale surplombe la terrasse et les eaux, accompagnée de deux chambres côté rue et d’une salle de bain exclusive. Le deuxième étage propose des chambres mansardées avec lucarnes et une seconde salle de bain, tandis que le sous-sol à plafond haut offre un espace polyvalent dédié à la vie, au travail ou aux loisirs, avec également une troisième salle de bain.

Les éléments de durabilité incluent 14 panneaux solaires, des menuiseries en bois dur à double vitrage et une certification énergétique de classe B. Un système moderne de chauffage et d’eau chaude, ainsi que le renforcement des fondations effectué entre 2013 et 2014, ajoutent à la sérénité du lieu. Cette villa de luxe à vendre à Rotterdam est une demeure discrète pour un art de vivre au bord de l’eau, reliée à la culture et ancrée dans une intimité intemporelle.

Explorez Rotterdam avec Baerz, votre conseiller et chercheur de biens immobiliers de confiance

Se repérer sur le marché dynamique de Rotterdam requiert des conseillers chevronnés alliant expertise locale et service international. Un accès discret aux biens confidentiels, des stratégies de négociation ciblées et une maîtrise réglementaire approfondie permettent aux acquéreurs et vendeurs exigeants de prendre des décisions avisées. Ce savoir-faire optimise le potentiel d’investissement et préserve vos intérêts à chaque étape.

Évitez les pièges courants

Les acheteurs internationaux perdent souvent un temps précieux sur des annonces en double, obsolètes ou trompeuses en ligne, d'autant plus que près de 30% des maisons de luxe n'apparaissent jamais sur le marché public. Les agents du vendeur représentent les intérêts du vendeur, pas ceux de l'acheteur. Même demander des informations sur une propriété peut entraîner l'enregistrement par un agent du vendeur comme leur « client » sans votre consentement.
Avec Baerz Property Finders & Advisors, vous évitez entièrement tous ces pièges. Nous travaillons uniquement en votre nom, offrant une représentation indépendante, des conseils clairs et un accès à toutes les propriétés disponibles, y compris les opportunités hors marché que d'autres ne voient jamais.

Intéressé par un conseiller personnel en immobilier ?

Nous vous montrons toutes les maisons disponibles en un seul endroit. N'hésitez pas à nous contacter pour savoir comment nous pouvons répondre à vos besoins et protéger vos intérêts exclusivement.

Caractéristiques

Transfert de propriété
Prix demandé
€ 1.595.000 k.k.
Statut
beschikbaar
Acceptation
in overleg
Construction
Type de maison
Herenhuis
Type de bâtiment
tussenwoning
Période de construction
1927
Classe énergétique
B
Type de toit
zadeldak
Chambres
6
Salles de bain
3
Surfaces et volume
Surface habitable
234 m2
Autre espace intérieur
0 m2
Espace extérieur attenant au bâtiment
18 m2
Volume en mètres cubes
829 m3
Superficie du terrain
197 m2
Installations
Mechanische ventilatie
Tv kabel
Buitenzonwering
Natuurlijke ventilatie
Aan water
Aan rustige weg
In woonwijk
Vrij uitzicht
Aan vaarwater
Baerz & Co Property Brochure

Brochure

Vidéos

J.J. Van Oosten Makelaardij BV

Straatweg 225
3054 AG Rotterdam

info@vanoostenmakelaardij.nl
+31 10 422 11 00

www.vanoostenmakelaardij.nl

Demande d'information / de visite

Joris van Oosten profile image
Joris van Oosten
Real estate agent