Welkom bij Bijzonder Wonen Makelaardij Internationaal. Ook ver buiten Nederland zijn wij zeer actief. Via ons internationale netwerk binnen Baerz & Co Luxury Homes begeleiden onze Nederlandse (!) partners u vakkundig bij de aankoop van exclusieve tweede huizen. U vindt ons in 20 landen rond de Middellandse zee, de Alpen, Mexico en Dubai. Neem voor meer informatie contact op met ons secretariaat.

BARCELONA
Espagne

Chantal Cunningham profile image
Chantal Cunningham
Chief Property Advisory
€1,800,000
Surface habitable
137m2
Superficie du terrain
N/A
Chambres
2

Description

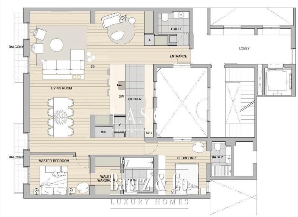
L’Appartement Barcelona Eixample fait partie d'une collection exclusive de dix-neuf résidences façonnées par une qualité irréprochable et une clarté architecturale remarquable. Situées sur la célèbre Rambla Catalunya, ces habitations vous plongent au cœur du tissu historique et vibrant de Barcelone, marqué par les blocs octogonaux et les larges boulevards emblématiques de l’Eixample.

Cette résidence spécifique offre 137 m² habitables, agencés avec soin comprenant deux chambres et trois salles de bains. Les balcons et une généreuse terrasse ouvrent les espaces intérieurs sur l’effervescence citadine, tandis que la façade et les parties communes du bâtiment reflètent l’élégance de la Barcelone classique. Les finitions intérieures, conçues par Estudio Vilablanch, allient modernité et raffinement intemporel avec des équipements de prestige, de vastes dressings, un chauffage performant et une atmosphère lumineuse et épurée.

Les prestations de l’immeuble incluent un ascenseur, un vidéophone et une buanderie dédiée, garantissant un mode de vie alliant confort et discrétion. Le quartier de l’Eixample, avec ses nombreux parcs tels que Joan Miró ou la Ciutadella, ses établissements scolaires renommés et sa connectivité urbaine optimale, vous place au cœur de la culture et du rythme quotidien barcelonais. Cette résidence marie ainsi le confort contemporain à l’une des adresses les plus prisées de la ville.

Explorez Barcelone avec Baerz, votre conseiller et chercheur de biens immobiliers de confiance

L’expertise d’un conseiller spécialisé dans l’immobilier haut de gamme à Barcelone est précieuse. La connaissance des subtilités du marché, l’accès à des biens confidentiels ou off-market et la faculté de négocier habilement sont essentiels. Un accompagnement sur mesure permet de profiter de la discrétion, d’un réseau établi et offre une protection à chaque étape, assurant la réalisation d’objectifs d’acquisition ou de vente en toute sérénité.

Évitez les pièges courants

Les acheteurs internationaux perdent souvent un temps précieux sur des annonces en double, obsolètes ou trompeuses en ligne, d'autant plus que près de 30% des maisons de luxe n'apparaissent jamais sur le marché public. Les agents du vendeur représentent les intérêts du vendeur, pas ceux de l'acheteur. Même demander des informations sur une propriété peut entraîner l'enregistrement par un agent du vendeur comme leur « client » sans votre consentement.
Avec Baerz Property Finders & Advisors, vous évitez entièrement tous ces pièges. Nous travaillons uniquement en votre nom, offrant une représentation indépendante, des conseils clairs et un accès à toutes les propriétés disponibles, y compris les opportunités hors marché que d'autres ne voient jamais.

Intéressé par un conseiller personnel en immobilier ?

Nous vous montrons toutes les maisons disponibles en un seul endroit. N'hésitez pas à nous contacter pour savoir comment nous pouvons répondre à vos besoins et protéger vos intérêts exclusivement.

Caractéristiques

Transfert de propriété
Prix demandé
€ 1.800.000
LAS
Construction
Pièces
N/A
Chambres
2
Salles de bain
3
Surfaces et volume
Surface habitable
137 m2
Superficie du terrain
0 m2
Installations
Balcon
Terrace
Elevator
Wardrobes cupboard
Appliances
Heating
Video Intercom
Light
Washing room
Baerz & Co Property Brochure

Brochure

Vidéos

Demande d'information / de visite

Chantal Cunningham profile image
Chantal Cunningham
Chief Property Advisory

Buying a Luxury Property in Barcelone

L’immobilier de luxe à Barcelone séduit les résidents internationaux en quête d’art de vivre, de culture et d’opportunités d’investissement sûres. Un mélange de patrimoine, de communauté et de services de qualité attend dans cette métropole méditerranéenne.