Ons kantoor is lid van Baerz & Co Luxury Homes; een internationaal platform dat exclusieve woningmakelaars met elkaar verbindt. Neem contact op met ons secretariaat voor meer informatie over het landelijke aanbod, waarvan u hieronder een selectie kunt bekijken.

ZOETERMEER
Bellefleurhof 12 0 ong - 2728 KH
Países Bajos

Xandra Bek profile image
Xandra Bek
Register makelaar - taxateur
€1,345,000 k.k.
Superficie habitable
382m2
Tamaño del terreno
N/A
Dormitorios
9

Descripción

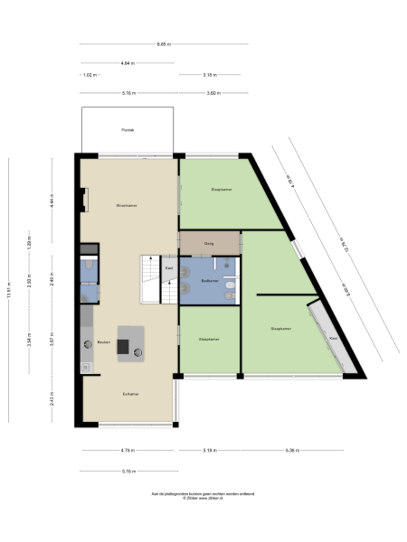
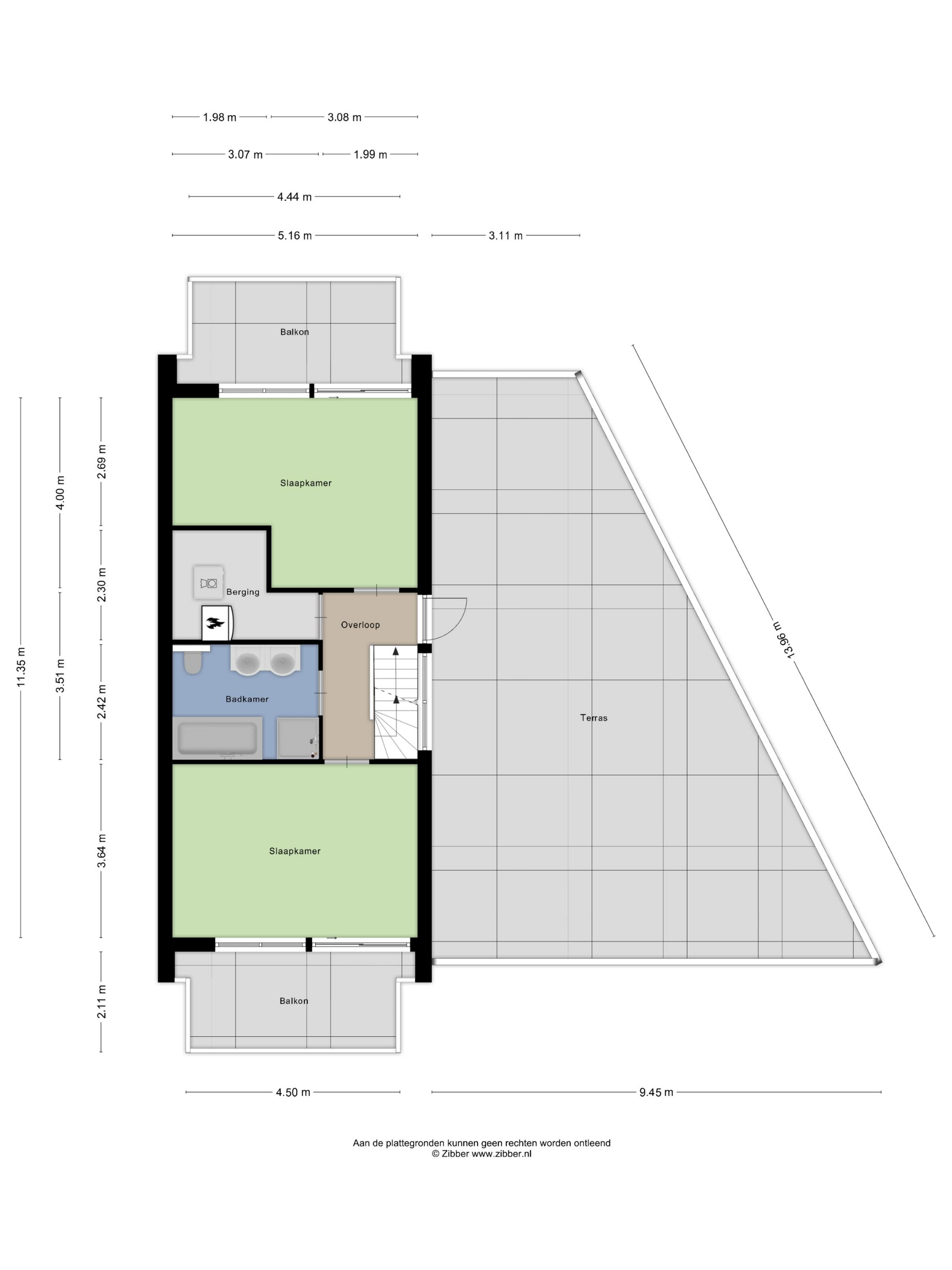
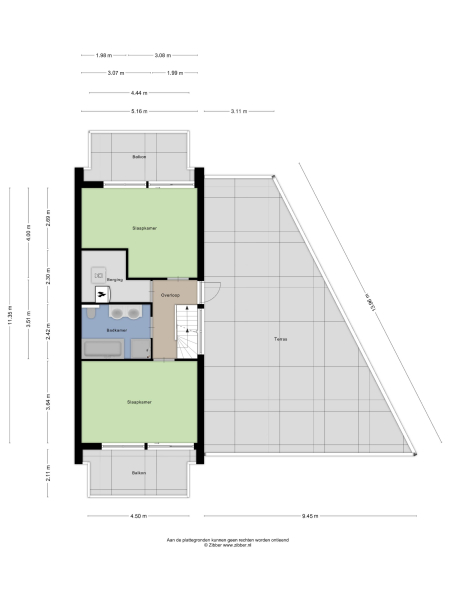
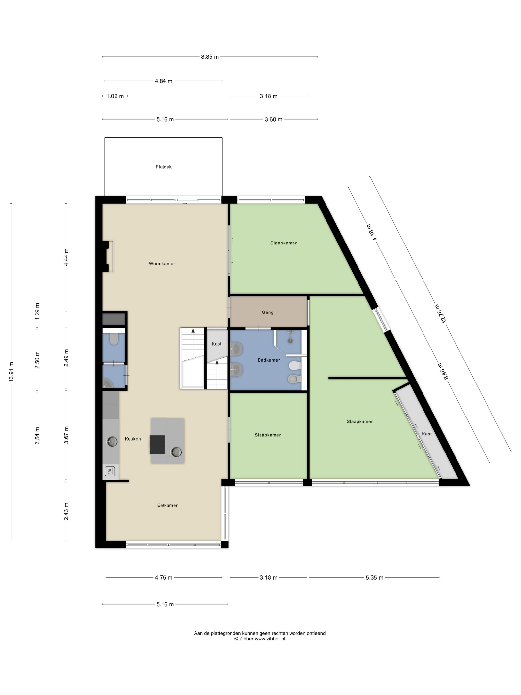
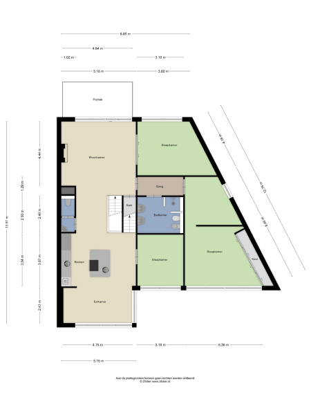
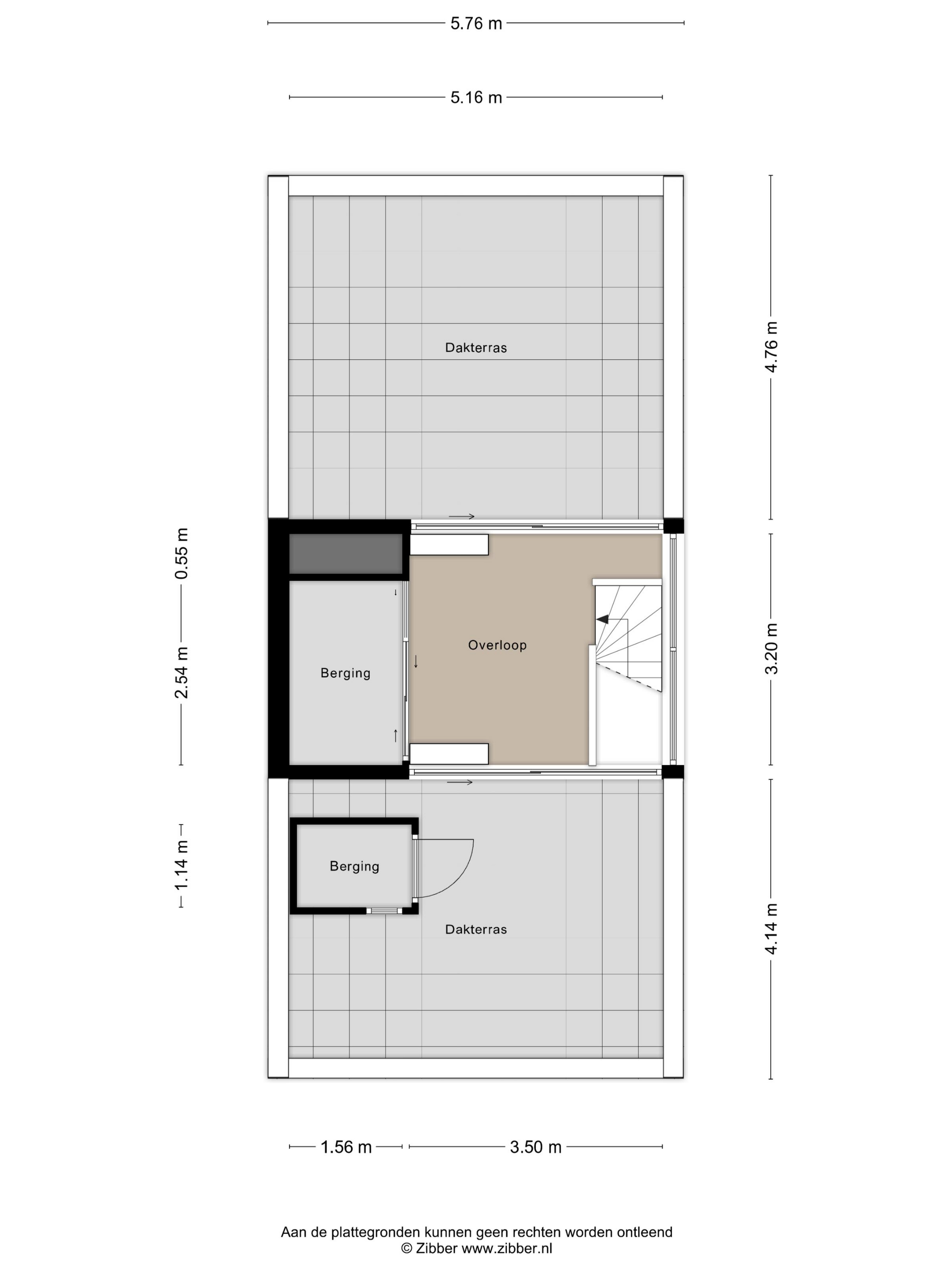
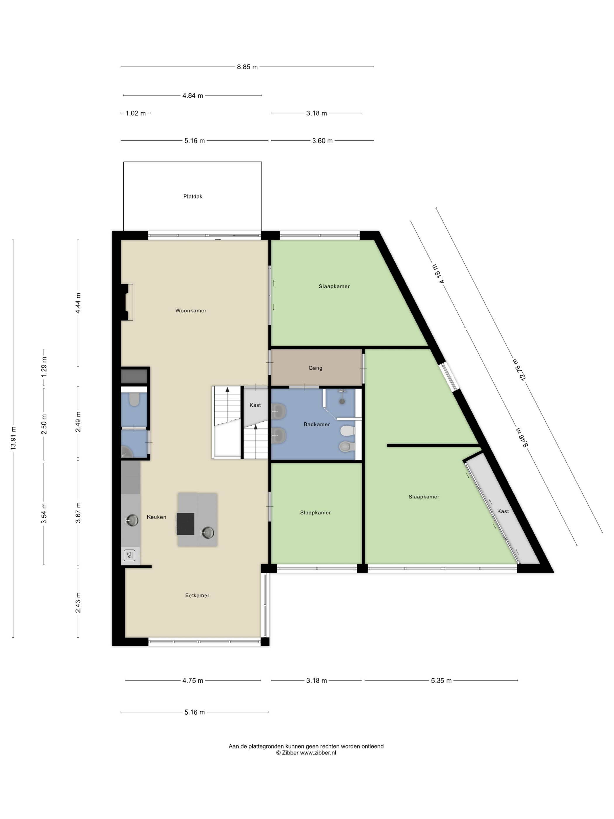
Esta casa adosada en Zoetermeer presenta una propuesta poco frecuente: dos viviendas completamente independientes bajo un mismo techo, diseñadas para responder a las demandas cambiantes de la vida multigeneracional o la convivencia sin esfuerzo. Con 382 m² de superficie interior distribuidos en cuatro plantas, la vivienda equilibra a la perfección la privacidad con la posibilidad de compartir momentos gracias a dos salones, dos cocinas y nueve dormitorios, complementados por tres baños de estilo contemporáneo.

La luz natural inunda las estancias a través de grandes ventanales, realzando interiores espaciosos de líneas modernas y carpintería de aluminio de bajo mantenimiento. Cada zona de estar se orienta hacia zonas verdes, aportando serenidad dentro de un entorno residencial definido por árboles centenarios y avenidas anchas y tranquilas. La distribución de los dormitorios en todos los niveles aporta flexibilidad, ideal para familias grandes, invitados u oficinas privadas.

Un total de 168 m² de espacio exterior le aguardan, con jardín delantero, jardín trasero, tres balcones y tres terrazas en cubierta, permitiéndole disfrutar tanto del sol como de la privacidad. La vivienda incorpora acristalamiento HR++, excelente aislamiento, doce paneles solares y cuenta con calificación energética A, reflejo de su compromiso con la calidad y la sostenibilidad. Entre las comodidades prácticas destacan el garaje cubierto, aparcamiento privado con estación de carga y potencial para futuras ampliaciones. El barrio Noordhove deel II ofrece tranquilidad junto con un acceso directo a colegios, instalaciones deportivas, zonas naturales y cómodos enlaces al centro de Zoetermeer y La Haya, haciendo de esta casa adosada en Zoetermeer un refugio familiar versátil y discreto.

Explora Zoetermeer con Baerz, Tu Buscador y Asesor Personal de Propiedades de Confianza

El segmento de lujo se beneficia de un asesoramiento discreto y profundo conocimiento local. Los asesores privados ofrecen acceso a viviendas fuera del mercado y negocian operaciones complejas con experiencia. Sus redes son valiosas en compras de alto valor o acuerdos privados, ayudando a identificar oportunidades exclusivas y lograr los mejores resultados.

Evita los errores comunes

Los compradores internacionales a menudo pierden tiempo valioso en listados en línea duplicados, desactualizados o engañosos, especialmente porque casi el 30% de las casas de lujo nunca aparecen en el mercado público. Los agentes del vendedor representan los intereses del vendedor, no los del comprador. Incluso solicitar información sobre una propiedad puede resultar en que un agente del vendedor te registre como su “cliente” sin tu consentimiento.
Con Baerz Property Finders & Advisors, evitas por completo todos estos errores. Trabajamos únicamente en tu nombre, ofreciendo representación independiente, orientación clara y acceso a todas las propiedades disponibles, incluidas oportunidades fuera del mercado que otros nunca llegan a ver.

¿Interesado en un Asesor Personal de Propiedades?

Te mostramos todas las casas disponibles en un solo lugar. No dudes en contactarnos para saber cómo podemos satisfacer tus necesidades y proteger tus intereses exclusivamente.

Características

Paneles solares
Aire acondicionado
Transferencia de propiedad
Precio de venta
€ 1.345.000 k.k.
Estado
beschikbaar
Aceptación
in overleg
Construcción
Tipo de casa
Herenhuis
Tipo de edificio
halfvrijstaande woning
Periodo de construcción
2002
Calificación energética
A
Tipo de tejado
plat dak
Dormitorios
9
Baños
3
Superficies y Volumen
Superficie habitable
382 m2
Otro espacio interior
0 m2
Espacio exterior adjunto al edificio
168 m2
Espacio de almacenamiento externo
9 m2
Volumen en metros cúbicos
1262 m3
Instalaciones
Airconditioning
Rookkanaal
Schuifpui
Frans balkon
Glasvezel kabel
Zonnepanelen
Aan park
In woonwijk
Vrij uitzicht
Baerz & Co Property Brochure

Folleto

Vídeos

Van Herk Makelaars Excellent

Oudehoofdplein 4
3011 TM Rotterdam

xbek@vanherk.nl
+31 102581855

www.vanherk.nl/excellent/

Solicitud de información / Visita

Xandra Bek profile image
Xandra Bek
Register makelaar - taxateur

Comprar una propiedad de lujo en Zoetermeer

Zoetermeer es una comunidad contemporánea y acogedora para quienes valoran la sofisticación, servicios culturales vibrantes y conexiones eficientes. Sus residentes disfrutan de servicios discretos, propiedades de lujo y una visión internacional dentro de un ambiente distinguido y apacible.