Baerz & Co is een landelijk samenwerkingsverband van zorgvuldig geselecteerde boutique luxury makelaars. Samen vormen wij één netwerk, met één gedeeld aanbod. De woningen die u op onze website ziet, zijn afkomstig van alle aangesloten kantoren binnen Baerz & Co. Daardoor is niet ieder object rechtstreeks door ons kantoor in verkoop, maar door een gespecialiseerde collega binnen ons netwerk. Heeft u een woning gevonden die u aanspreekt en wilt u meer informatie? Dan brengen wij u graag persoonlijk in contact met de betreffende verkoopmakelaar, zodat u direct en zorgvuldig wordt begeleid.

WOUWSE PLANTAGE
Julianaweg 13 - 4725 SH
Netherlands

Jeanette van Haaften profile image
Jeanette van Haaften
Real Estate Agent
€1,095,000 k.k.
Living Area
403m2
Plot Size
8287m2
Bedrooms
3

Description

At Julianaweg 13 in Wouwse Plantage you will find this truly exceptional residential property, set on a generous freehold plot of no less than 8,287 m², designated for both residential and business use. It offers a rare combination of living in a rural setting with complete peace, space and privacy, while enjoying easy access to major roads and being just 30 minutes from, among others, the Randstad, Breda, Antwerp and Goes.

The current owners have always greatly enjoyed this property, for which living and working from home proved to be the perfect match. They have long operated an art studio on the premises. However, thanks to the expansive plot and the presence of two substantial outbuildings, many other possibilities can easily be envisaged. These include keeping horses or small livestock, creating a vegetable garden, operating a home-based business with workshop and storage, pursuing multiple hobbies on your own land, running a B&B, office use, and much more.

Zoning: home-based profession permitted.

The farmhouse offers an abundance of space, reflected in a total living area of no less than 403 m², including the internal studio. All rooms are generously proportioned and currently include three bedrooms. Should a larger family require additional space, the property can easily be expanded to include three or four more bedrooms (or even more). The internal studio can, if desired, be relatively easily converted into additional living space, making options such as multi-generational living or dual occupancy entirely feasible.

Outdoors, there are two spacious barns of approximately 302 m² and 49 m² respectively. The larger barn still showcases much of its original roof structure, with the full wooden framework visible—an impressively robust and characterful space, ideal for working but also perfect for hosting the occasional celebration.

As you can see, this farmhouse has inspired us greatly. Do you see the possibilities as well and would you like to experience the property in person for an even better impression? We would be delighted to hear from you to arrange a private viewing.

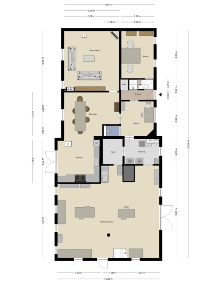
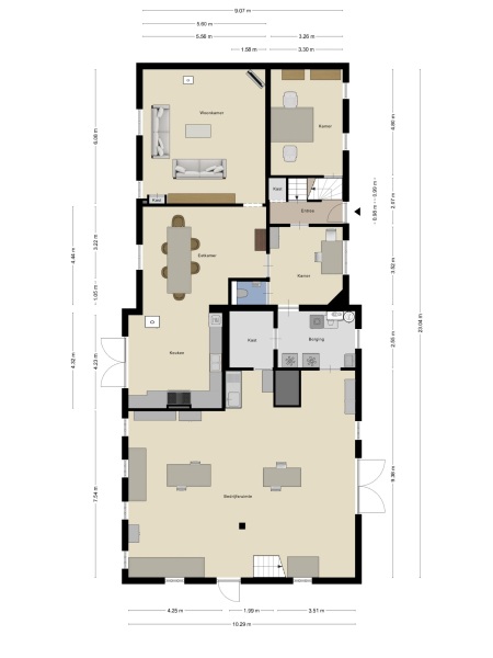
LAYOUT:
Ground floor:
Side entrance hall with cloakroom, staircase to the first floor and access to the cellar; plastered walls, tiled floor, ceiling finished with plasterboard;

Cellar with a two-component poured floor for added comfort;

Spacious kitchen-diner featuring a corner-installed fitted kitchen with natural stone worktop and double sink, built-in gas hob, refrigerator, microwave, dishwasher and extractor hood; also equipped with a wood-burning stove; tiled and plastered walls, oak herringbone floor partly combined with natural stone flooring; ceiling finished with wooden panelling and exposed beams; French doors to the garden/terrace;

Living room with wood-burning fireplace and double-walled flue; plastered walls, solid wooden floor laid over tiled flooring (monastery tiles), exposed beam ceiling;

Raised room / office / bedroom with plastered walls, carpeted floor, plasterboard ceiling;

Intermediate room currently used as an office; plastered walls, herringbone floor, ceiling finished with board panels;

Tiled toilet with wall-mounted WC and washbasin;

Tiled utility room with HR combi boiler installation, washing machine and dryer connections, built-in cupboard connections from the former bathroom, and internal access to the studio;

Internal studio located at the front of the farmhouse (approx. 87 m²), multifunctional and suitable for various purposes; equipped with a kitchenette, second staircase to the first floor, French doors to the garden/terrace, pedestrian door to the driveway; plastered walls, concrete floor partly finished with paving, exposed beam ceiling.

First floor:
Landing;

Rear right bedroom with textured paint on stud walls, wooden floor, plasterboard ceiling;

Rear left bedroom with textured paint, wooden floor, plasterboard ceiling;

Master bedroom with three roof windows, plastered walls, laminate flooring with oak top layer, beautiful view of the wooden beam structure, walk-in closet with inverter and roof window;

En-suite tiled bathroom with bathtub, shower cabin, second wall-mounted WC, bidet, double washbasin and underfloor heating controlled via the central heating system;

Multifunctional space above the studio (approx. 63 m²), suitable for storage, office or hobby use, and easily divisible into multiple bedrooms.

Outbuildings:
Barn I (approx. 49 m²), located at the rear right of the plot, featuring a brick base with timber cladding, double doors opening to the driveway/garden;

Barn II (approx. 302 m²), divided into two sections, featuring two sets of double wooden doors to the driveway/garden, three pedestrian doors, electricity, power supply, roof insulation and two storage mezzanines; partly tiled roofing and partly asbestos corrugated sheets.

Garden:
Landscaped grounds surrounding the property, including pasture, orchard, vegetable garden, wooden veranda, spacious driveway, terrace paved with traditional baked bricks, and a driveway laid with cobblestones.

Construction:
Residential house:
Traditionally built with brick masonry, later fitted with various internal stud walls; concrete ground floor, wooden upper floor, boarded roof structure with tiled roofing.

Barn:
Traditionally built in timber with brick base, concrete floor, mono-pitch roof covered with corrugated sheets.

Insulation
The property is fitted with roof insulation and insulating glazing. Additionally, it is equipped with no fewer than 16 solar panels.

Heating and hot water
The property is fitted with central heating. The HR combi boiler with buffer tank (Nefit, built in 2001) is located in the utility room and also provides hot water.

Features

Solar panels
Transfer of ownership
Asking Price
€ 1.095.000 k.k.
Status
verkocht onder voorbehoud
Acceptance
in overleg
Construction
Kind of house
Woonboerderij
Building type
vrijstaande woning
Construction period
1850
Energy rating
D
Roof type
zadeldak
Bedrooms
3
Bathrooms
1
Surface Areas And Volume
Living Area
403 m2
Other indoor space
11 m2
External storage space
337 m2
Volume in cubic meters
1536 m3
Plot Size
8287 m2
Facilities
Dakraam
Zonnepanelen
Natuurlijke ventilatie
Vrij uitzicht
Landelijk gelegen
Baerz & Co Property Brochure

Brochure

Videos

Floor Plans

Bijzonder Wonen Makelaardij

Heilige Geeststraat, 11
5301CP Zaltbommel

info@bijzonderwonen.com
+31 41 868 00 50

www.bijzonderwonen.com

Information / Viewing request

Jeanette van Haaften profile image
Jeanette van Haaften
Real Estate Agent

Buying a Luxury Property in Wouwse Plantage

Wouwse Plantage attracts a discerning international audience with its private estates, timeless elegance, and access to high-level services. Residents value the harmony of nature, exclusivity, and a supportive community, making it a premier address for sophisticated living.