Ons kantoor is lid van Baerz & Co Luxury Homes; een internationaal platform dat exclusieve woningmakelaars met elkaar verbindt. Neem contact op met ons secretariaat voor meer informatie over het landelijke aanbod, waarvan u hieronder een selectie kunt bekijken.

Villa for sale in Veenendaal

Veenendaal Gelders Benedeneind 6 - 3907 KW The Netherlands


Wistik Zonnenberg profile image
Wistik Zonnenberg
Real Estate Agent
+31 318 559600
info@zonnenbergmakelaardij.nl

Zonnenberg Makelaardij
Kerkewijk 108
3904 JG Veenendaal
NETHERLANDS
+31 318 559600
www.zonnenbergmakelaardij.nl
info@zonnenbergmakelaardij.nl

Living area
175m2
Plot size
1450m2
Bedrooms
2

Description

Move-in Ready Luxury, Calm and Privacy – Spacious Waterfront Villa

Wow. Some homes simply won’t let you go—and this fantastic, move-in ready waterfront villa is a perfect example. The moment you drive up the driveway you feel it: everything is right. The peace, the greenery, the space, the atmosphere—it’s a place where you’ll want to unpack your boxes and never leave. Inside is pure indulgence, with a generous living room, luxury kitchen, stylish bathroom, and a delightful bedroom floor.
If you’d like even more living space, consider adding an extra bedroom or study on the ground floor. Under Dutch rules you can add up to 150 m² of outbuildings without a permit; existing outbuildings (veranda, carport, sauna) are deducted from that allowance. For details, please refer to the government’s Omgevingswet website.
Outside, the party continues: a large garden with fire pit, an atmospheric veranda with outdoor fireplace, a modern sauna, a private jetty on the water—and greenery in every direction. Whether you want to unwind with a book in the sun, enjoy drinks with friends, or take a refreshing dip on a warm day—this is real living. Everything has been finished to perfection with high-quality materials, crisp detailing, and a beautiful balance between comfort and style. A home that feels like a holiday—every single day. Sound like your dream? Read on.

The Neighbourhood

You live here wonderfully free, yet not remote. The villa sits on a quiet country lane surrounded by greenery, on a lovely body of water with a direct boating connection—ideal for nature lovers, seekers of tranquillity, and water enthusiasts. The generous plots in the area offer great privacy and a rural feel, while you’re still a short hop from Veenendaal’s centre for shopping, schools, and cafés. Love cycling and walking? Beautiful routes await—through polders, along the water, and through charming villages. By car you’re quickly on the main roads to Utrecht and Arnhem. And when you return, the calm of your own waterfront oasis awaits. The best of both worlds: space all around you and every amenity within easy reach.

Ground Floor

What an entrance! The hall is spacious, bright, and sleekly finished, with a handsome steel staircase with natural stone treads leading up, space for a cloak area, and access to the modern WC and the luxurious bathroom. From here you enter the living room, where the view immediately captures your attention. Large windows and French doors to the garden flood the room with light and frame a lush panorama. The seating area is generously sized, with a cosy fireplace as a focal point. On the other side you’ll find the luxury kitchen with cooking island—clean, modern, and fully fitted with every built-in appliance you could wish for, including a coffee machine, oven/microwave, steam oven, teppanyaki plate, and a Quooker. Cooking here is a joy. The kitchen also has French doors to the garden. The adjoining dining room comfortably accommodates a large table—perfect for long meals with family and friends. There is also a spacious utility room with storage and laundry connections. Everything is finished in warm, neutral tones with an eye for detail.

The bathroom is a showpiece: stylishly tiled, modern, and generous, with a bathtub, large walk-in shower, and double vanity.

First Floor

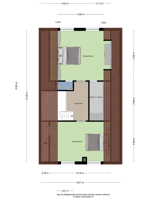
Upstairs is the sleeping level—absolute tranquillity. The primary bedroom is spacious, atmospheric, and cleverly set beneath the sloping roof. Light pours in through the large dormer with its characterful window layout. There’s ample room for a king-size bed, plus a private WC and a large walk-in closet. The second bedroom is also generous—ideal as a guest room, home office, or children’s room—again with sleek finishes and beautiful materials. Need even more space? The landing offers plentiful storage options. In short: a complete, comfortable floor with all the calm and luxury you’d expect.

Outdoor Space

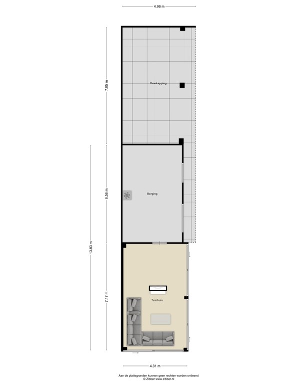
What a garden! Around the home lies a superbly landscaped outdoor realm with privacy and sun at every time of day. A long, stately gravel driveway provides parking for multiple cars. To the rear, a little paradise: colourful borders, manicured lawn, mature trees, and inviting corners. Here you’ll also find a modern black sauna, crisply designed with wood and glass—perfect for unwinding. At the heart: a veranda with glass walls, outdoor fireplace, BBQ area, seating, and a TV connection—year-round enjoyment. Adjacent is a large storage area with wood store. At the water’s edge there’s ample space for extra seating and—perhaps best of all—a private jetty with lounge benches. Take a dip, moor your boat, or simply soak up the view. This is living at its best.

Let your heart decide and come experience this gem in person. Fair warning: you might just fall in love. The feeling of coming home starts as you enter the driveway and continues to surprise you all the way to the waterside seating. This isn’t just a house—it’s a lifestyle to enjoy every day. Don’t wait too long; places like this are rare.

General Information
- Property type: Detached
- Year built: 2009
- Number of rooms: 3
- Number of bedrooms: 2
- Number of bathrooms: 1
- Parking: 2 under the carport plus ample on-site parking
- Features: Dormer / storage / garage / deck
- Garden orientation: Around the house
- Garden access: Front / rear / side and via the house

Technical Details
- Hot water: Nefit Topline Aquapower+ HRC 25CW6
- Heating: Nefit Topline Aquapower+ HRC 25CW6
- Gas fireplace
- Features: Veranda with wood stove / Jacuzzi / walk-in closet / sauna / Quooker
- Mechanical ventilation: Present
- Insulation: Full—roof / cavity walls / floor
- Double glazing: Throughout
- Connections: Fiber-optic cable, TV cable
- Window frames: Wood

Would You Like to Take a Look Inside?

For more information about this property, please contact our office in Veenendaal.

You are most welcome! The best impression of this home is, of course, gained during a viewing. We schedule viewings in consultation with both seller and buyer and take ample time so you can explore and experience the property at your leisure.

Note: Every effort has been made to compile this information with the utmost care. No rights can be derived from any inaccuracies or omissions in the data or drawings provided.

Features

Transfer of ownership
price
€ 1.600.000 k.k.
Status
Available
Acceptance
In Concert
Reference
07924
Construction
Kind of house
Villa
Building type
Detached House
Construction period
2009
Energy rating
A
Roof type
front gable
Bedrooms
2
Bathrooms
1
Surface Areas And Volume
Living area
175 m2
Exterior space attached to the building
1 m2
External storage space
65 m2
Volume in cubic meters
650 m3
Plot size
1450 m2
facilities
Fluetube
Fibreopticcable
Garden
Internetconnection
Storageroom
Ventilation
Baerz & Co Property Brochure

Brochure

Information / Viewing request

Videos

Video Gelders Benedeneind 6

Photos

Floor Plans