Ons kantoor is lid van Baerz & Co Luxury Homes; een internationaal platform dat exclusieve woningmakelaars met elkaar verbindt. Neem contact op met ons secretariaat voor meer informatie over het landelijke aanbod, waarvan u hieronder een selectie kunt bekijken.

VALKENSWAARD
Maastrichterweg 200 - 5556 VA
Netherlands

Jeanette van Haaften profile image
Jeanette van Haaften
Real Estate Agent
€1,325,000 k.k.
Living Area
215m2
Plot Size
17250m2
Bedrooms
4

Description

This detached house offers plenty of living space and possibilities. The ground floor features a living room, a kitchen and a bedroom with en-suite bathroom. There is also an indoor garage. Outside you will find a spacious, well-maintained garden with a large lawn, mature trees, natural hedges and two terraces. In addition, the outbuilding and greenhouse offer extra possibilities, while the adjacent meadow and barn are ideal for
hobby horse riding, for example.

Discover this charming detached house that offers you plenty of living space and possibilities! On the ground floor
you will find a spacious and bright living room, an attractive kitchen and a comfortable bedroom with
en-suite bathroom. There is also a practical utility room and an indoor garage. Outside, a spacious, well-maintained garden awaits you, featuring a large lawn, mature trees that add character, natural hedges, a terrace at the rear and a covered terrace. The detached barn and adjacent greenhouse offer plenty of opportunities for establishing an (agricultural) business. In addition, the adjacent plot of cultivated land can also be used for commercial purposes, but it is of course also ideal for keeping horses as a hobby.

RESIDENTIAL HOUSE
Ground floor:
The spacious entrance hall provides access to the living room, toilet, cloakroom and meter cupboard. A beautiful wooden
staircase provides access to the first floor. The spacious living room is a wonderful space. The large windows and sliding doors offer a beautiful unobstructed view of the garden. The wooden beamed ceiling and the fireplace with gas stove add extra atmosphere to the room. There is also air conditioning. The kitchen is corner-shaped and equipped with a dishwasher, sink, ceramic hob, oven, microwave and refrigerator. The windows from the kitchen also offer a view of the garden. The utility room is partially tiled and equipped with connections for washing appliances. A door provides access to the back garden. The bathroom is fully tiled and equipped with a bathtub, a double sink with cabinet and a designer radiator. The bedroom is adjacent to the bathroom.

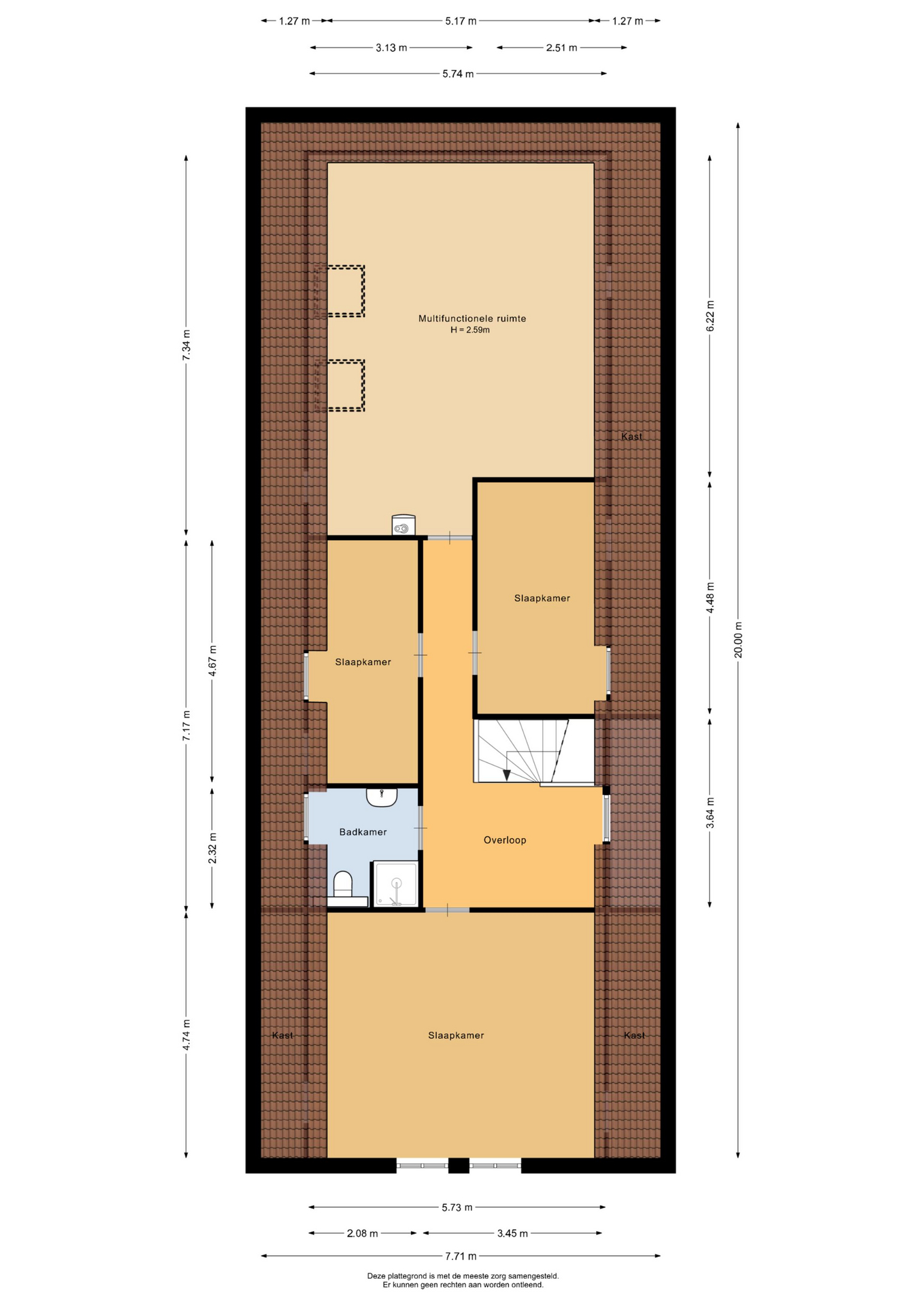
First floor:
The first floor has three bedrooms, a bathroom and an attic space. All bedrooms and the attic space are carpeted. Windows provide natural light and ventilation. Storage space has been created under the sloping roof. The attic space is equipped with the central heating boiler (Vaillant) and a vacuum system. A hatch provides access to the loft.

Garage
The attached garage is equipped with a sink and a fixed cupboard wall with sliding doors. This cupboard houses
the underfloor heating unit. A door provides access to the back garden. French doors
at the front provide access to the driveway.

GARDEN, YARD AND OUTBUILDINGS

Garden
The garden surrounding the house is attractively landscaped with plenty of greenery, a large lawn and various mature
trees and shrubs. The garden is enclosed by a beech hedge. The terrace adjacent to the rear façade and the
adjacent attractive covered terrace offer a nice place to relax or enjoy the
outdoors. Unique elements such as the authentic well and the charming covered haystack on the lawn
accentuate the rural charm.

Outbuilding
The spacious, detached barn is constructed of sheet pile walls with steel trusses and the insulated roof is
covered with asbestos-free corrugated sheets. There is a fuse box with three-phase power and a sink. A
roller door in the front façade and French doors in the rear façade provide access to the yard.
The barn is equipped with several storage rooms and a practical mezzanine above for extra storage space.
One storage room is equipped with a kitchen unit. There is also a toilet.
With its generous dimensions, the barn offers countless possibilities for establishing a business, (partly)
setting up a hobby room or workshop, efficient storage space or the perfect basis for
creating a number of horse stalls. The barn can be fully customised to your personal wishes and
needs.

Horticultural greenhouse
The spacious, detached horticultural greenhouse has electricity and three-phase power.

Meadow
The adjacent plot of cultivated land is laid out as grassland/meadow. The meadow is fenced with a hedge
and a fence at the front.

Special features:
• The property is connected to gas, water, electricity and sewerage.
• Fully insulated.
• The ground floor, with the exception of the bedroom, has underfloor heating.
• The living room has air conditioning.
• There is a vacuum cleaning system.
• The windows are fitted with roller shutters.
The property is zoned for agricultural use. A request in principle has been submitted to investigate the possibilities
of changing the zoning to ‘Residential’.

Features

Air conditioning
Transfer of ownership
Asking Price
€ 1.325.000 k.k.
Status
beschikbaar
Acceptance
in overleg
Construction
Kind of house
Eengezinswoning
Building type
vrijstaande woning
Construction period
1997
Energy rating
C
Roof type
schilddak
Bedrooms
4
Bathrooms
2
Surface Areas And Volume
Living Area
215 m2
Other indoor space
48 m2
External storage space
949 m2
Volume in cubic meters
970 m3
Plot Size
17250 m2
Facilities
Airconditioning
Schuifpui
Dakraam
Natuurlijke ventilatie
Baerz & Co Property Brochure

Brochure

Videos

Bijzonder Wonen Makelaardij

Heilige Geeststraat, 11
5301CP Zaltbommel

info@bijzonderwonen.com
+31 41 868 00 50

www.bijzonderwonen.com

Information / Viewing request

Jeanette van Haaften profile image
Jeanette van Haaften
Real Estate Agent

Buying a Luxury Property in Valkenswaard

Valkenswaard presents refined living, with exclusive real estate, a welcoming community, and strong international ties. Residents enjoy unrivaled tranquility, services, and access to culture—all within a discreet, connected environment.