Ons kantoor is lid van Baerz & Co Luxury Homes; een internationaal platform dat exclusieve woningmakelaars met elkaar verbindt. Neem contact op met ons secretariaat voor meer informatie over het landelijke aanbod, waarvan u hieronder een selectie kunt bekijken.

Villa for sale in SCHIEDAM

SCHIEDAM Burgemeester Knappertlaan 120 - 3117 BD The Netherlands


Joris van Oosten profile image
Joris van Oosten
Real Estate Agent
+31 6 42 19 84 37
info@vanoostenmakelaardij.nl

J.J. Van Oosten Makelaardij BV
Straatweg 225
3054 AG Rotterdam
NETHERLANDS
+31 10 422 11 00
www.vanoostenmakelaardij.nl
info@vanoostenmakelaardij.nl

Living area
193m2
Plot size
484m2
Bedrooms
5

Description

Once upon a time......and they lived happily ever after....

There are fairy tales that come true and this romantic monumental detached villa is one of them. The architecture is unparalleled in its charm, the authentic details are delicious and in top condition, both the living area and the plot with parking on site are particularly popular and then the location opposite the beautiful Julianapark is the icing on the cake. We, as real estate agents, are already madly in love and are running out of superlatives to fully describe the villa. Actually, the images say more than enough and the best advice is to come and see the house and location with your own eyes. But be warned, we do not guarantee that you will fall in love with this beautiful pearl.

The location is also special and very attractive. For example, the historic city center of Schiedam is within walking distance and exactly the other way the inner harbors of the Maas are also within walking distance. The Julianapark with playground Het Sterrebos is literally across the street, where it is wonderful to stay all year round. Do you want to go to the big city? The center of Rotterdam is within 20 minutes cycling distance. Wonderful contrasts for a varied living comfort.

Layout:
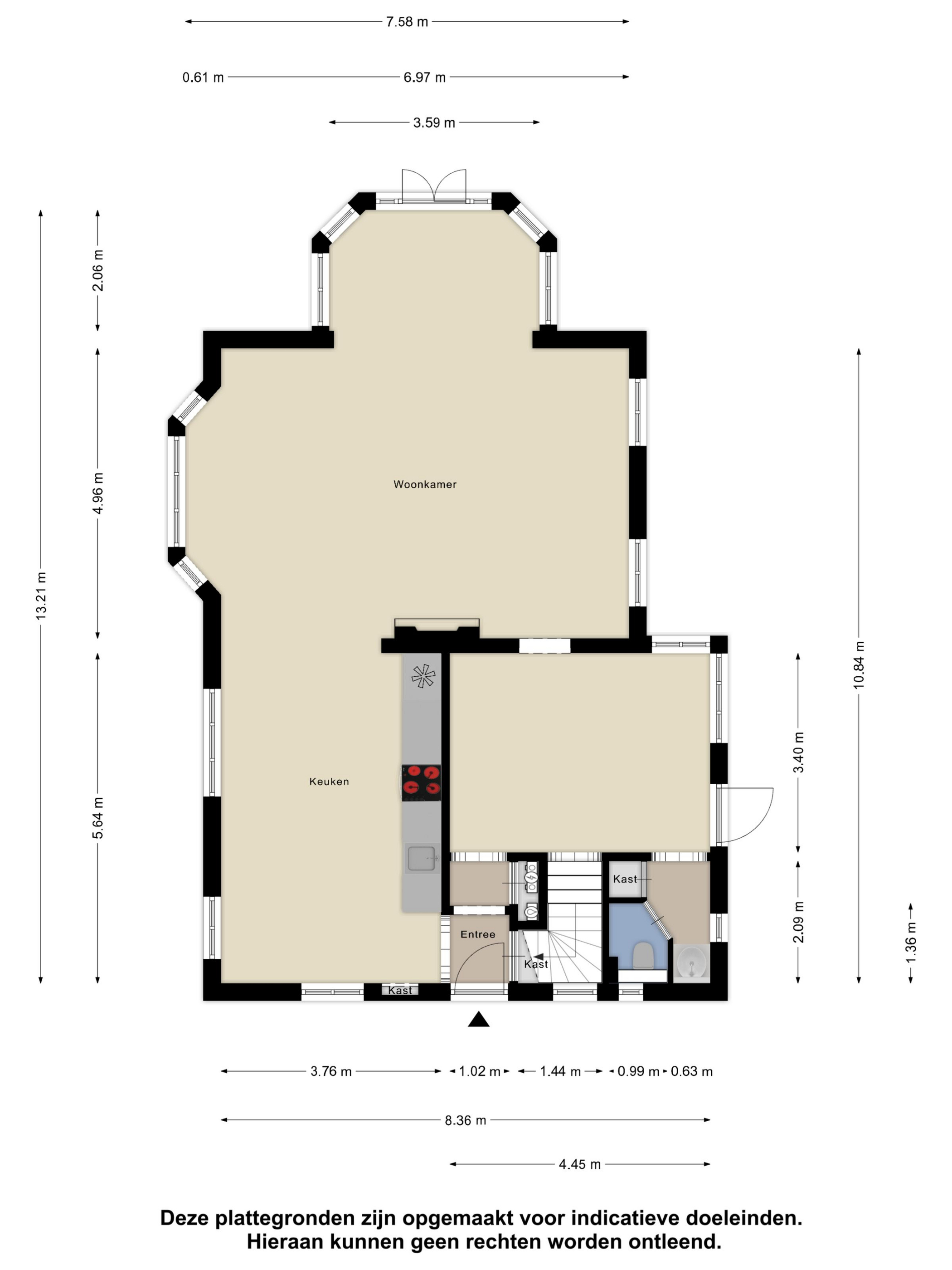
Ground floor: entrance through a semi-circular front door, very spacious hall where you could roller skate, so to speak, but will certainly do a little dance out of happiness. The charming living room with wood stove, characteristic bay window and daylight from 3 sides with beautiful stained glass windows, the open kitchen gives a modern twist. The nice thing about the layout on the ground floor is that you can walk around, through a door in the kitchen you enter the ballroom of a hall via a small hallway. The hall also borders the toilet and a fixed cupboard. The hall and staircase are equipped with authentic wall tiles in astonishingly good condition.

1st floor: beautiful and light landing with also original wall tiles. There are no fewer than 4 bedrooms on this floor, as well as a laundry room, a separate toilet and a surprisingly spacious and very tastefully decorated bathroom with a bath, walk-in shower and washbasin. The master bedroom is a dream, you feel like a king in terms of space, but also because of the charming balcony that can be reached through French doors. You imagine yourself in the annual royal balcony scene while you contemplate the sublime view over the Julianapark.

2nd floor: this floor is also very surprisingly and playfully laid out. With perhaps one of the nicest children's rooms you can think of, roof trusses in sight, nice hiding places and enough space to play. In reality, this floor is larger than the floor plan suggests. The surface is 'punished' on paper by the sloping roof surfaces, while there is a lot of usable space. There is also a bathroom with toilet, shower and washbasin.

Garden: due to its open location, the garden is located all around the house. The north side is located at the back of the house and is the most limited in terms of space. The side gardens (east and west) and the front garden (south) have the most space and always offer a spot in the sun during the day. Both side gardens have several fruit and nut trees that provide fresh fruit and nuts every year. The side garden with west and south location is furnished with various seating areas and for playing. Parking on private property with several cars is easily possible and the garden is closed off by an electronically operated gate that is made in the same style as the fence of the Julianapark.

Special features; - built in 1930
- situated on 484m2 of private land
- concerns a municipal monument
- usable living area approx. 193m2 (according to BBMI/NEN2580)
- usable building-related outdoor space approx. 7m2 (according to BBMI/NEN2580)
- usable external storage space approx. 8m2 (according to BBMI/NEN2580)
- fully equipped with double glazing
- equipped with roof insulation and floor insulation
- central heating and hot water by means of a central heating combi boiler from 2019
- energy label E
- the slate roof has been completely renewed with exclusive slate in original style
- dormers and zinc work renewed
- the 'eye window' in the roof was custom-made by a shipbuilder
- remarkably light house due to the many and large windows

Delivery in consultation.

For additional information about this property, please visit its own website (address + house number).

J.J. van Oosten Makelaardij is the NVM broker of the seller. We advise you to engage your own NVM broker to represent your interests when purchasing this property.

No rights can be derived from this offer text.

The usable surface area of ??the property has been measured in accordance with the industry-wide measurement instruction (BBMI). The BBMI is based on the NEN2580. The BBMI is intended to apply a more uniform method of measuring to provide an indication of the usable surface area. The measurement instruction does not completely exclude differences in measurement results, for example due to differences in interpretation, rounding off or limitations in carrying out the measurement.

Features

Transfer of ownership
price
€ 1.065.000 k.k.
Status
verkocht onder voorbehoud
Acceptance
in overleg
Construction
Kind of house
Villa
Building type
vrijstaande woning
Construction period
1930
Energy rating
E
Roof type
samengesteld dak
Bedrooms
5
Bathrooms
2
Surface Areas And Volume
Living area
193 m2
Other indoor space
0 m2
Exterior space attached to the building
7 m2
External storage space
8 m2
Volume in cubic meters
715 m3
Plot size
484 m2
facilities
Mechanische ventilatie
Alarminstallatie
Tv kabel
Rookkanaal
Natuurlijke ventilatie
Aan park
In woonwijk
Vrij uitzicht
Baerz & Co Property Brochure

Brochure

Information / Viewing request

Videos

Photos

Floor Plans