Baerz & Co is een landelijk samenwerkingsverband van zorgvuldig geselecteerde boutique luxury makelaars. Samen vormen wij één netwerk, met één gedeeld aanbod. De woningen die u op onze website ziet, zijn afkomstig van alle aangesloten kantoren binnen Baerz & Co. Daardoor is niet ieder object rechtstreeks door ons kantoor in verkoop, maar door een gespecialiseerde collega binnen ons netwerk. Heeft u een woning gevonden die u aanspreekt en wilt u meer informatie? Dan brengen wij u graag persoonlijk in contact met de betreffende verkoopmakelaar, zodat u direct en zorgvuldig wordt begeleid.

OUDERKERK AAN DE AMSTEL
Kerkstraat 51 - 1191 JD
Netherlands

Jeanette van Haaften profile image
Jeanette van Haaften
Real Estate Agent
€1,625,000 k.k.
Living Area
200m2
Plot Size
237m2
Bedrooms
5

Description

Kerkstraat 51, 1191 JD Ouderkerk aan de Amstel

Kerkstraat 51 is a stylish and generously proportioned residence, situated in an exceptional location in the historic village centre of Ouderkerk aan de Amstel. This property combines the comfort and luxury of modern living with a unique setting. With approximately 200 m² of living space, multiple bedrooms, two bathrooms and a sunny waterside terrace, this villa offers a high-quality and versatile living environment.

The house forms part of a small-scale and architecturally refined ensemble of three connected residences and is characterised by a well-considered layout, high-quality finishes and abundant natural light on all levels. Here you enjoy peace and privacy, while amenities, restaurants and the city of Amsterdam are all within reach.
Layout

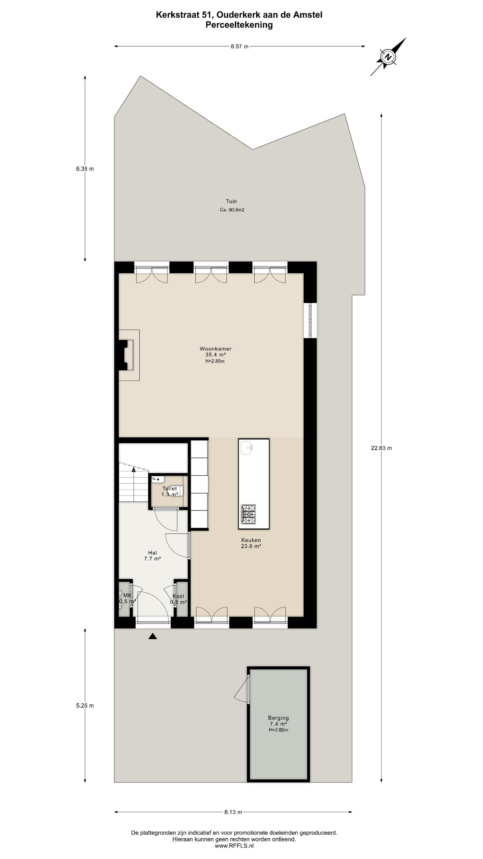
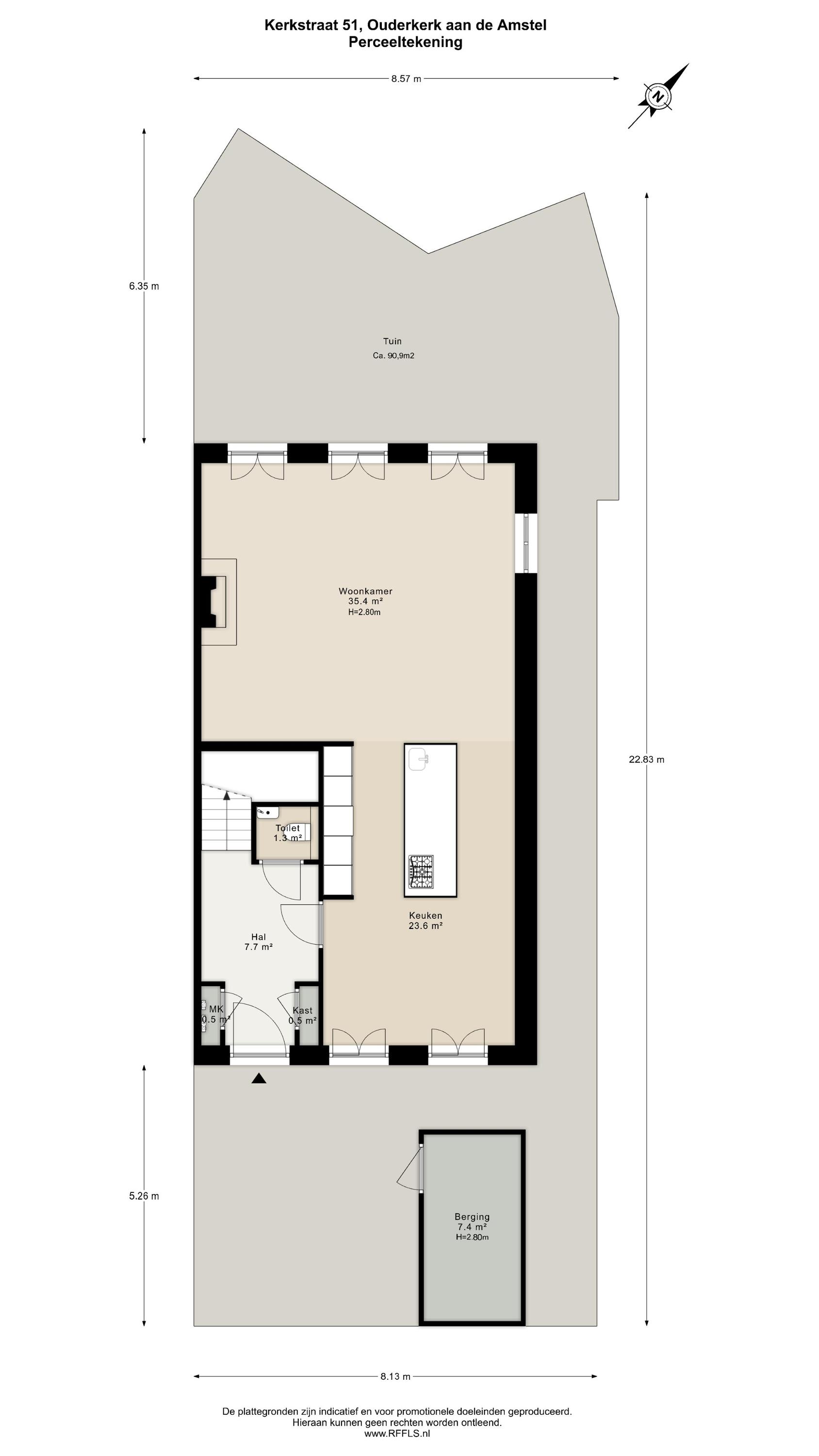
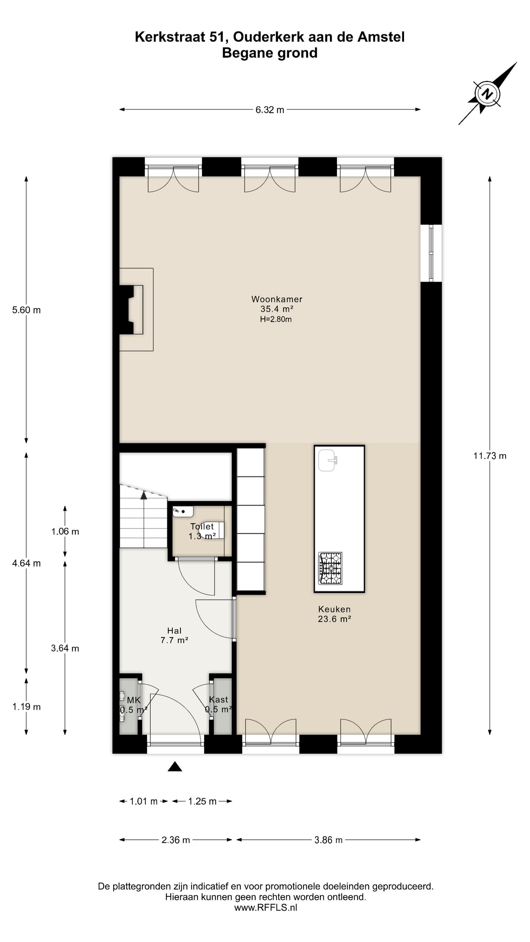
Ground floor
Upon entering, you arrive in a spacious hallway with a built-in wardrobe and a separate guest toilet. From the hall, you access the generous living level, where the open-plan kitchen with cooking island flows seamlessly into the bright and inviting living room. The fireplace forms a stylish focal point, adding warmth and atmosphere. The entire ground floor is fitted with underfloor heating.

The kitchen is fully equipped with high-quality built-in appliances, including a five-burner gas hob, dishwasher, oven, fridge-freezer combination and a Quooker boiling-water tap. Adjacent to the kitchen is a practical utility room offering additional storage space.

Thanks to the large windows, this floor feels exceptionally light and spacious. At the rear, three sets of French doors provide access to the sunny terrace.

The terrace is finished with anthracite coloured tiles and a fantastic view over the river Amstel. A wonderful place to enjoy drinks with friends on summer evenings while overlooking the water; in winter, skating here is even a possibility. In the front garden, there is a separate storage unit of approximately 7 m², fitted with electricity. A rear access path runs alongside the house.

First floor
The first floor is reached via the central staircase with overhead light. The spacious landing benefits from ample daylight thanks to the skylight on the second floor. This level accommodates two generously sized bedrooms and an additional room that is ideally suited as a home office or study.

The spacious principal bedroom at the rear features air conditioning, a walk-in wardrobe with sliding doors and direct access to the en-suite bathroom. The bathroom is fitted with underfloor heating, a bathtub with bubble system, a walk-in shower and a double washbasin unit, and is also accessible from the landing.

At the front of the house are the second bedroom (also with air conditioning) and the third room. This floor further includes a separate toilet.

Second floor
The second floor comprises two spacious bedrooms and a second bathroom, fitted with a toilet, washbasin and shower. Both bedrooms feature dormer windows on two sides, built-in wardrobes with sliding doors and air conditioning.

Centrally located on this floor is the technical room with connections for a washing machine and dryer, as well as the central heating system and mechanical ventilation. Additionally, there is a separate storage room.

Building

This stylish residential villa combines classical architecture with modern living comfort and forms part of a small-scale development of three connected residences. Due to its relatively recent construction year, the property is excellently insulated and equipped with, among other features, HR++ double glazing and cavity walls without wall ties, contributing to a high level of comfort and sound insulation. The carefully selected design, materials and colour palette create a calm and timeless appearance.

Location and surroundings

Kerkstraat 51 is located in an exceptional position in the historic village centre of Ouderkerk aan de Amstel. Situated directly by the old harbour and offering unobstructed views over the River Amstel, this is a place where history, water and vibrant village life come together. Ouderkerk aan de Amstel is charming, small-scale and rich in character.

Within walking distance you will find various restaurants, terraces and speciality shops, including renowned establishments such as Ron Gastrobar and SAAM Restaurant by Jasper Hermans, as well as all daily amenities such as supermarkets, schools and sports facilities. The direct waterside location invites walking and cycling along the Amstel, boating, or simply enjoying the view and passing boats.

The village centre of Ouderkerk aan de Amstel has been designated a protected conservation area and is rich in cultural heritage. Characteristic landmarks such as the Amstel Church, De Zwaan Windmill, the wooden Kerkbrug bridge and the Jewish cemetery highlight the unique and authentic character of this special residential environment.

Accessibility

Accessibility is excellent. By car, the A2, A9 and A10 motorways can be reached within minutes, providing quick access to Amsterdam, Schiphol Airport and Utrecht. The property is also easily accessible by public transport and bicycle; via the Amsteldijk, the centre of Amsterdam can be reached in approximately 30 minutes by bike.

Parking

Street parking is available in the immediate vicinity. This area is subject to a blue-zone parking system. Residents who do not have parking facilities on their own property, nor access to a reserved parking space elsewhere (such as in a parking garage), may apply for a parking exemption. The municipality charges a fee of €48.50 per exemption (rate 2026). A maximum of one exemption is available per residential address.

Details
- Living area of approximately 200 m² (measured in accordance with NEN 2580);
- External storage unit located in the front garden;
- Three luxury connected villas developed as a small-scale new-build project in 2007;
- Accessible via a right of way from ‘het Kampje’;
- Alarm system installed;
- Four spacious bedrooms and a separate home office;
- Air conditioning installed;
- Energy label A;
- Sunny and generously sized outdoor terrace;
- Transfer in consultation.

This information has been compiled with the utmost care. However, no liability is accepted for any incompleteness, inaccuracies, or otherwise, nor for the consequences thereof. All measurements and surfaces provided are indicative. The buyer has a duty to investigate all matters that are important to them. With regard to this property, the broker acts as the advisor to the seller. We recommend engaging a qualified (NVM) real estate agent to guide you through the purchasing process. Should you have specific requirements regarding the property, we advise you to make these known in good time to your purchasing agent and to (have them) carry out independent research. If you do not engage an expert representative, the law assumes you are sufficiently knowledgeable to oversee all matters of importance. The NVM conditions apply.

Features

Alarm system
Air conditioning
Transfer of ownership
Asking Price
€ 1.625.000 k.k.
Status
verkocht onder voorbehoud
Acceptance
in overleg
Construction
Kind of house
Herenhuis
Building type
hoekwoning
Construction period
2007
Energy rating
A
Roof type
samengesteld dak
Bedrooms
5
Bathrooms
2
Surface Areas And Volume
Living Area
200 m2
Other indoor space
0 m2
External storage space
7 m2
Volume in cubic meters
795 m3
Plot Size
237 m2
Facilities
Mechanische ventilatie
Alarminstallatie
Airconditioning
Rookkanaal
Frans balkon
Dakraam
Natuurlijke ventilatie
Aan water
Aan rustige weg
Vrij uitzicht
Beschutte ligging
Aan vaarwater
Baerz & Co Property Brochure

Brochure

Videos

Bijzonder Wonen Makelaardij

Heilige Geeststraat, 11
5301CP Zaltbommel

info@bijzonderwonen.com
+31 41 868 00 50

www.bijzonderwonen.com

Information / Viewing request

Jeanette van Haaften profile image
Jeanette van Haaften
Real Estate Agent

Buying a Luxury Property in Ouderkerk aan de Amstel

Ouderkerk aan de Amstel brings together refined living, rich heritage, and a welcoming international community. Residents enjoy privacy, exceptional amenities, and convenient access to Amsterdam, all supported by attentive local services and timeless river views.