Baerz & Co is een landelijk samenwerkingsverband van zorgvuldig geselecteerde boutique luxury makelaars. Samen vormen wij één netwerk, met één gedeeld aanbod. De woningen die u op onze website ziet, zijn afkomstig van alle aangesloten kantoren binnen Baerz & Co. Daardoor is niet ieder object rechtstreeks door ons kantoor in verkoop, maar door een gespecialiseerde collega binnen ons netwerk. Heeft u een woning gevonden die u aanspreekt en wilt u meer informatie? Dan brengen wij u graag persoonlijk in contact met de betreffende verkoopmakelaar, zodat u direct en zorgvuldig wordt begeleid.

OOIJ
Hezelstraat 17 - 6576 JL
Netherlands

Jeanette van Haaften profile image
Jeanette van Haaften
Real Estate Agent
€1,750,000 k.k.
Living Area
287m2
Plot Size
2445m2
Bedrooms
2

Description

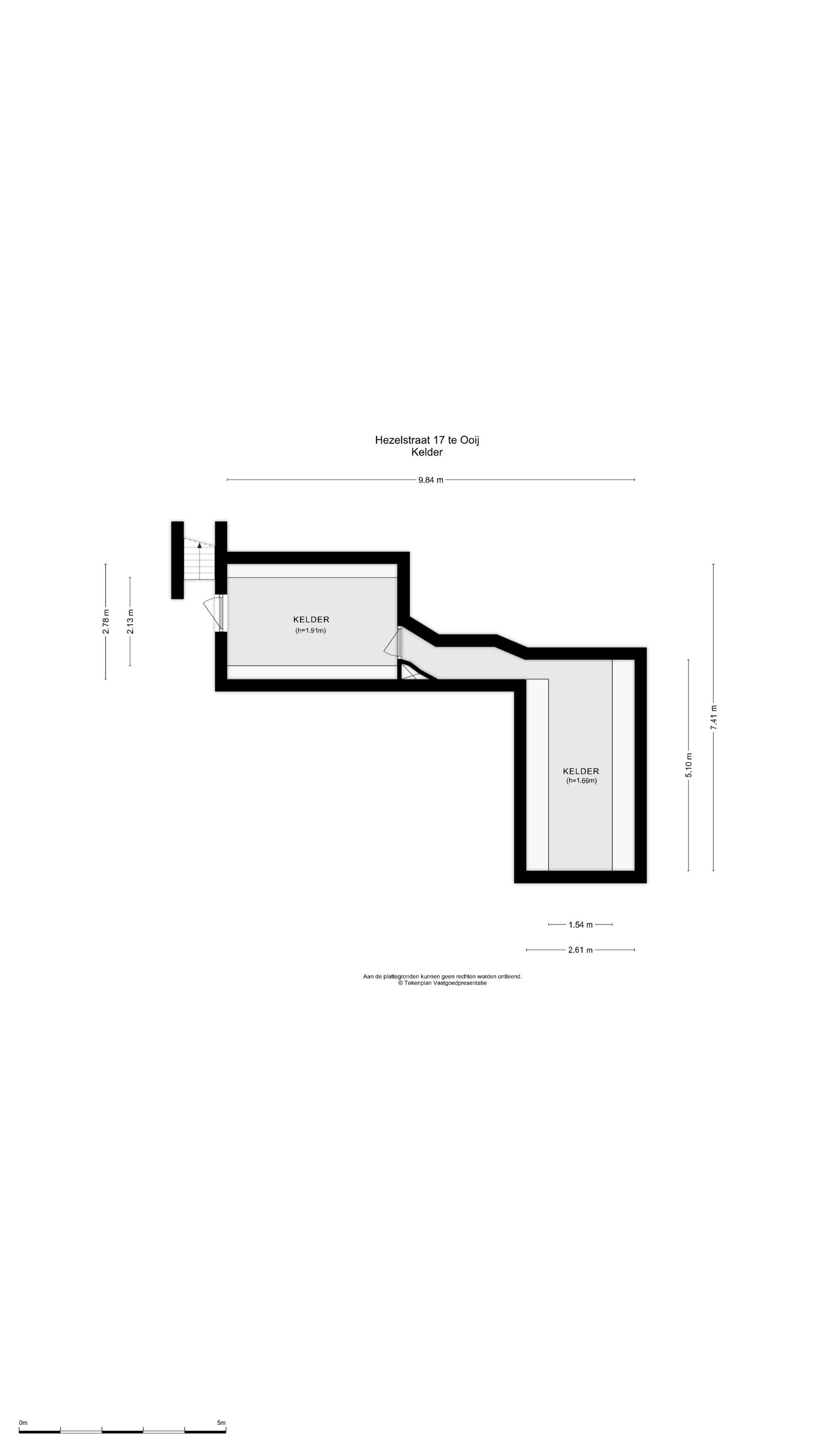
Historic house Ooij is positioned high on an old river mound beside a picturesque kolk in the rural outskirts of Ooij. Built in 1875 as a rectory and now recognized as a municipal monument, this residence has been sensitively renovated, seamlessly marrying original character with contemporary refinement. The home comprises two full floors and a spacious historical cellar, while a generous atelier extension welcomes light and sweeping views of the garden and surrounding meadows.

Entering the impressive hallway, elegant spatial connections unfold between the kitchen with dining area, the living room, and a private library. The gallery, accessible both from the kitchen and a separate exterior entrance, leads into the sunlit atelier, making it a tranquil workspace with panoramic rural vistas. Upstairs, a broad landing opens to the main bedroom, a comfortable bathroom, an additional smaller bedroom, and practical attic storage. In total, the house offers 287 m² of living area on a plot of 2,445 m².

The garden, encircled by mature fruit trees and rose arches, is fully enclosed for optimal privacy. A charming garden house with terrace and wood stove offers a peaceful retreat. The property includes three private parking spaces outside the secure gate. Energy class C is assured through roof, wall, and floor insulation, HR+ glazing, partial underfloor heating, HR central heating, air conditioning, and 13 solar panels. Historic house Ooij balances heritage with serenity and nature, all just minutes from the liveliness of Nijmegen.

Features

Transfer of ownership
Asking Price
€ 1.750.000 k.k.
Status
beschikbaar
Acceptance
in overleg
Construction
Kind of house
Eengezinswoning
Building type
halfvrijstaande woning
Construction period
1875
Energy rating
C
Roof type
samengesteld dak
Bedrooms
2
Bathrooms
1
Surface Areas And Volume
Living Area
287 m2
Other indoor space
19 m2
External storage space
16 m2
Volume in cubic meters
1289 m3
Plot Size
2445 m2
Facilities
Aan water
Aan rustige weg
Vrij uitzicht
Open ligging
Buiten bebouwde kom
Landelijk gelegen
Baerz & Co Property Brochure

Brochure

Floor Plans

Bijzonder Wonen Makelaardij

Heilige Geeststraat, 11
5301CP Zaltbommel

info@bijzonderwonen.com
+31 41 868 00 50

www.bijzonderwonen.com

Information / Viewing request

Jeanette van Haaften profile image
Jeanette van Haaften
Real Estate Agent