Baerz & Co is een landelijk samenwerkingsverband van zorgvuldig geselecteerde boutique luxury makelaars. Samen vormen wij één netwerk, met één gedeeld aanbod. De woningen die u op onze website ziet, zijn afkomstig van alle aangesloten kantoren binnen Baerz & Co. Daardoor is niet ieder object rechtstreeks door ons kantoor in verkoop, maar door een gespecialiseerde collega binnen ons netwerk. Heeft u een woning gevonden die u aanspreekt en wilt u meer informatie? Dan brengen wij u graag persoonlijk in contact met de betreffende verkoopmakelaar, zodat u direct en zorgvuldig wordt begeleid.

OISTERWIJK
Baerdijk 88 - 5062 HT
Netherlands

Jeanette van Haaften profile image
Jeanette van Haaften
Real Estate Agent
€1,269,000 k.k.
Living Area
246m2
Plot Size
459m2
Bedrooms
5

Description

This spacious, modern detached house with 5 bedrooms and 2 bathrooms is located in the highly sought-after De Bunders neighborhood in Oisterwijk. The location is fantastic, within walking distance of both the woods and fens, as well as the charming town center.

This 1970s house was completely renovated and modernized in 2015 and is beautifully situated on a corner of Bundersstraat and Baerdijk. It is very quiet, on a service road with a green park right outside. It is just a few minutes' walk from De Bunders comprehensive school and Durendael 2 College secondary school.

General:
Living area: approx. 250 m²
Volume: approx. 860 m³
Plot size: 459 m²
Year of construction: 1971, extensively renovated in 2017

Layout
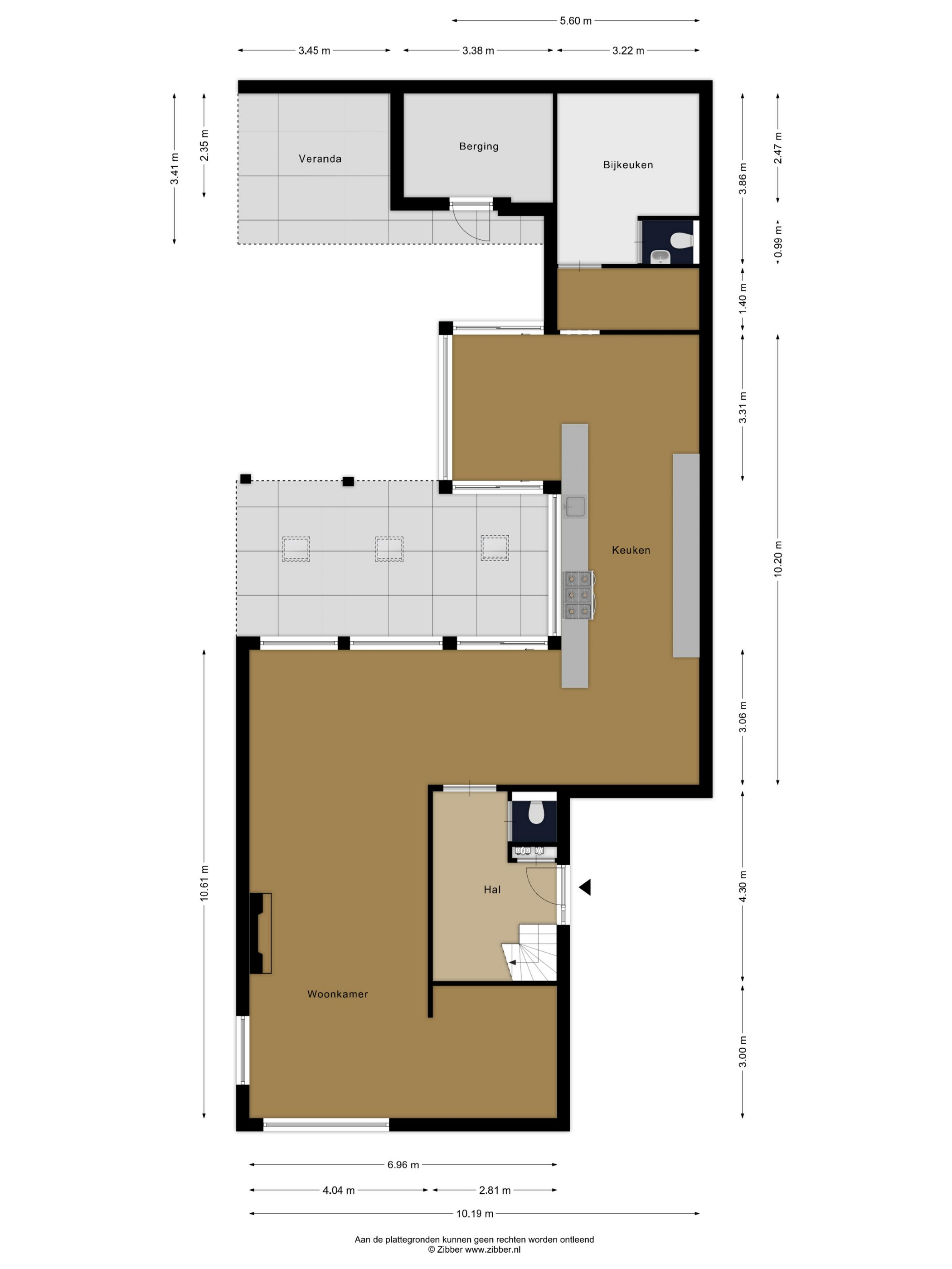
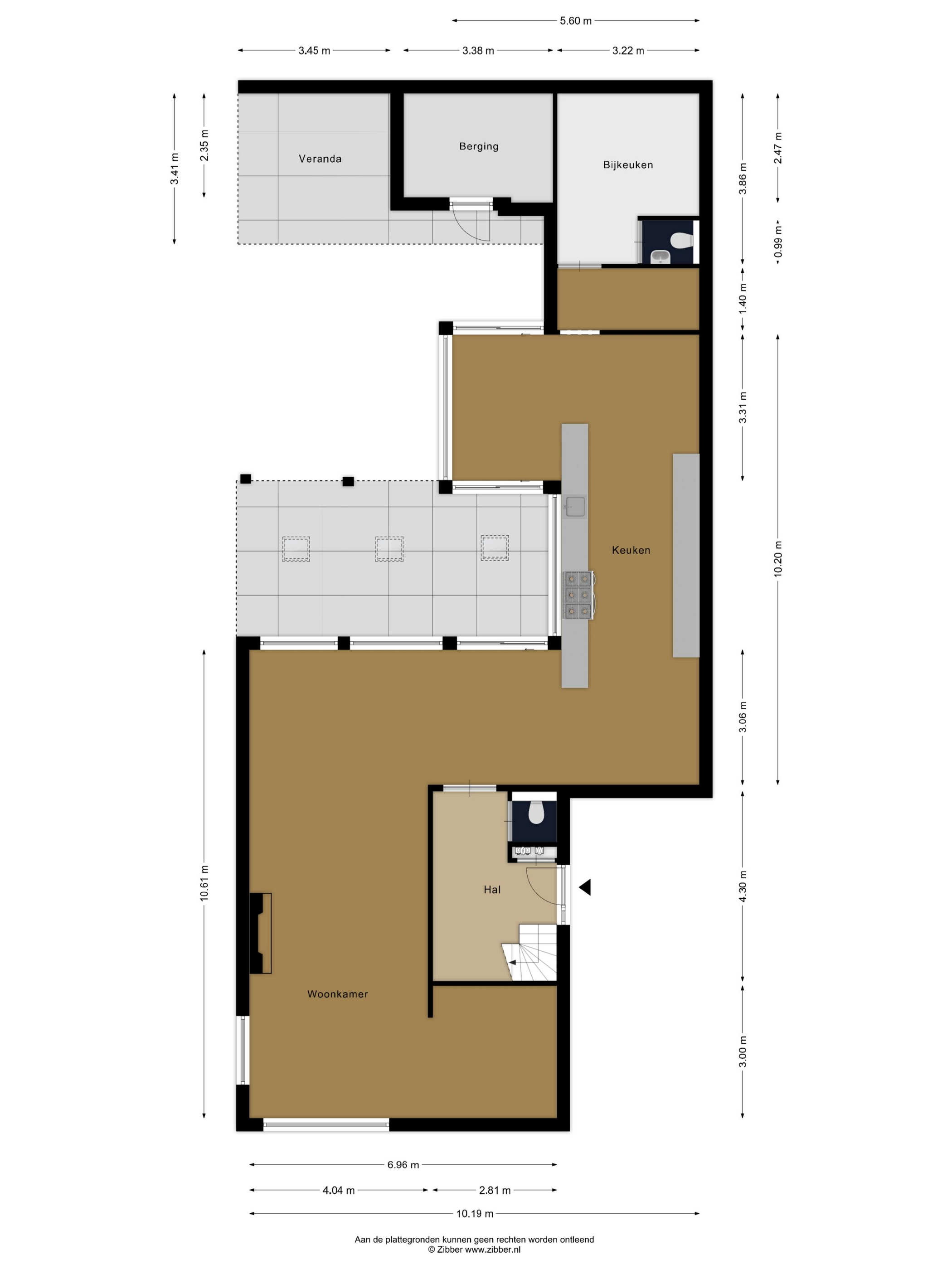
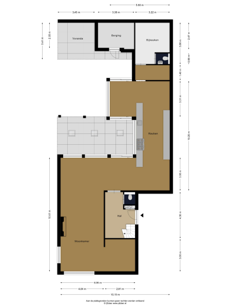
Ground floor
The front door is located on the side of the house, from which you enter the hallway. In this beautiful hall, where the meter cupboard, the toilet room, and the stairs to the first floor are located, you enter the living room through a beautiful glass pivot door.

Thanks to the large windows all around, it's a wonderfully bright and sunny home. The living room is open plan to the dining room and the elongated, modern kitchen. At the front of the house is a lovely spot for working in peace, or for the kids to play.

The inviting, wide gas fireplace takes center stage in the living room. The living room has beautiful wooden flooring, and like all the other rooms, it's neatly plastered.

Right next to the kitchen, where a high dining table currently stands, is a lovely space for relaxing. Completely enclosed by a glass wall, it boasts optimal light and a view of the garden.

The Kitchen
Cooking enthusiasts will be in their element here! What a space! Plenty of room to cook, meters of countertop space, ample cupboard space, various drawers—in short, there's no shortage of it.

The modern Bulthaup kitchen is equipped with a range of high-quality built-in appliances. There is a Quooker, a dishwasher, a 5-burner induction hob, an extractor hood, an oven, a combination microwave/convection oven and a built-in refrigerator with freezer drawers.

The Cold Room
Yes, this house doesn't just have a regular refrigerator, but a real, professional cold room. Like the kind you find at the greengrocer's. A space that can cool down to 30 degrees Celsius. Here you can easily cool your meat, chicken, vegetables, dairy, beer, and wine for an entire orphanage.

The Utility Room/Laundry Room/Storage Room
The rear of the house is primarily practical. Adjacent to the kitchen is an extra toilet with a small sink, a utility room with laundry facilities, and plenty of practical storage in the custom-made built-in wardrobes.

First Floor
Adjacent to the spacious landing are three good-sized bedrooms, including the master bedroom, which features a generous walk-in closet. This bedroom has an ensuite bathroom, so you can walk into it from your bedroom. This bathroom is also accessible from the landing. The other two bedrooms are located at the front of the house. Each floor is equipped with an air conditioning unit, so it stays nice and cool everywhere in the summer.

The Bathroom
The modern bathroom is fully equipped, neatly tiled, has natural daylight, and underfloor heating. It features a double sink, a comfortable bathtub, and a spacious walk-in shower. The separate toilet is accessible from the landing.

A staircase leads to the second floor.

Second Floor
What a spacious home! Here on the second floor, off the landing, are two bedrooms. The bedroom at the rear has a dormer window, and the bedroom at the front of the house has a large skylight. There is a second bathroom with a fourth toilet, a walk-in shower, and a sink. This modern bathroom also enjoys pleasant natural daylight and is neatly tiled.

In addition to two bedrooms and an additional bathroom, there is also a storage room on this floor.

The Garden
A lovely garden, facing the sunny southwest. You can enjoy the sun here year-round, both under the spacious covered terrace and in the lovely garden. The covered terrace is essentially an extra garden room, equipped with eight electrically operated Velux flat glass skylights, built-in speakers, and electrically operated screens, providing complete shelter from the wind. The covered area, adjacent to the house, is approximately 25 m².

The covered area at the back of the garden features a lovely outdoor fireplace with a TV connection. It's also a great place to relax. That's another great thing about this house: everyone can have their own little spot. If someone wants a quiet moment with the fireplace lit, that's possible, while someone else can have their own party with some nice background music—something for everyone.

The garden offers plenty of privacy. It's low-maintenance, has beautiful borders, lovely hedges, an easy-to-maintain front garden, a bicycle shed, and rear access.

Features:
- A wonderful family home
- Great location, very centrally located in Oisterwijk
- Neat and well-maintained
- Equipped with a home automation system for lighting
- Energy label B
- Move-in ready, move in, unpack, and enjoy!

The Location
We can be brief about the location: it's fantastic! The De Bunders neighborhood is a firm favorite with families. It's very child-friendly, with a large playground next to the De Bunders comprehensive school. From Baerdijk, you can easily walk into the charming town center, while also enjoying easy access to the woods and fens. Comprehensive schools are within walking distance, secondary schools are just a few minutes' bike ride away, the train station is also within walking distance, and all other conceivable amenities are located in the immediate vicinity. You won't find a more attractive neighborhood!

OISTERWIJK
Living in Oisterwijk, or rather, living in "The Pearl in the Green," is a favorite among many. The municipality of Oisterwijk has a population of approximately 33,000. Oisterwijk offers a level of amenities that rivals that of a city. Oisterwijk boasts a vibrant heart, with the famous Linden shopping mall featuring luxury shops and a wide range of restaurants and cafes. It also has its own train station, excellent bus connections, and a theater, so culture lovers will also find plenty to enjoy. And of course, there are the many forests and fens with numerous hiking, cycling, and horseback riding trails. Oisterwijk also has plenty to offer in terms of education, with several comprehensive schools and daycare centers, and both regular and bilingual secondary education, from pre-vocational secondary education (VMBO) to pre-university education (VWO).

Residents also have a wide choice of sports. Oisterwijk boasts a rich community scene, where you can practice every conceivable sport: tennis, football, hockey, rugby, fitness, yoga, pétanque, athletics, swimming, horseback riding—too many more to list. In short, Oisterwijk has so much to offer and is a wonderful community to live, work, enjoy, but above all, to simply relax. Welcome to Oisterwijk!

Curious about this lovely, spacious family home? Come experience the atmosphere and be inspired! To schedule a viewing, call Marleen de Bekker of Finesse Real Estate at 013 - 528 55 39 or 06 - 55 75 71 71. Or email to schedule a viewing. This property is available now, so don't wait too long, because once it's gone, it's gone.

Features

Solar panels
Alarm system
Air conditioning
Transfer of ownership
Asking Price
€ 1.269.000 k.k.
Status
beschikbaar
Acceptance
in overleg
Construction
Kind of house
Eengezinswoning
Building type
vrijstaande woning
Construction period
1971
Energy rating
B
Roof type
zadeldak
Bedrooms
5
Bathrooms
2
Surface Areas And Volume
Living Area
246 m2
Other indoor space
0 m2
Exterior space attached to the buildinge
80 m2
Volume in cubic meters
856 m3
Plot Size
459 m2
Facilities
Mechanische ventilatie
Alarminstallatie
Tv kabel
Buitenzonwering
Airconditioning
Rookkanaal
Schuifpui
Glasvezel kabel
Domotica
Zonnepanelen
Natuurlijke ventilatie
In woonwijk
Baerz & Co Property Brochure

Brochure

Videos

Floor Plans

Bijzonder Wonen Makelaardij

Heilige Geeststraat, 11
5301CP Zaltbommel

info@bijzonderwonen.com
+31 41 868 00 50

www.bijzonderwonen.com

Information / Viewing request

Jeanette van Haaften profile image
Jeanette van Haaften
Real Estate Agent

Buying a Luxury Property in Oisterwijk

Oisterwijk offers a uniquely serene environment, close-knit community, and best-in-class property advisory services. Its blend of natural beauty and elegant living appeals to an international set seeking privacy, investment opportunity, and refined leisure.