Baerz & Co is een landelijk samenwerkingsverband van zorgvuldig geselecteerde boutique luxury makelaars. Samen vormen wij één netwerk, met één gedeeld aanbod. De woningen die u op onze website ziet, zijn afkomstig van alle aangesloten kantoren binnen Baerz & Co. Daardoor is niet ieder object rechtstreeks door ons kantoor in verkoop, maar door een gespecialiseerde collega binnen ons netwerk. Heeft u een woning gevonden die u aanspreekt en wilt u meer informatie? Dan brengen wij u graag persoonlijk in contact met de betreffende verkoopmakelaar, zodat u direct en zorgvuldig wordt begeleid.

OEGSTGEEST
Zandbergenstraat 14 - 2341 GW
Netherlands

Jeanette van Haaften profile image
Jeanette van Haaften
Real Estate Agent
€1,585,000 k.k.
Living Area
210m2
Plot Size
279m2
Bedrooms
5

Description

Very spacious, characterful, and modern semi-detached villa in the heart of 'Old' Oegstgeest

In 2020, a small-scale new residential area called Park Duivenvoorde emerged on the former grounds of the ASC football club, right in the heart of the beloved Oud Oegstgeest. A green living environment with the charm of the 1930s: generous plots, beautiful architecture, and a great variety in styles, roof shapes, and color schemes. Today, it is one of the most sought-after locations in Oegstgeest – and right here you will find this stunning semi-detached villa.

This villa combines space, comfort, and sustainability with exceptional quality finishes. Some highlights:

- Sustainable & energy-efficient: excellently insulated, energy label A, and equipped with 16 solar panels.

- Practical & comfortable: private driveway and spacious garage, with the option to charge an electric car on your own property.

- High-end finishes: first occupied in 2021; the home still feels brand new.

A major advantage: you’ll be living in a modern, newly built home – yet right in the charming old center of Oegstgeest. Within walking distance are the lively shops of De Kempenaerstraat, GDT primary school, and several cafés and restaurants. Sports facilities, schools, the Leidse Hout park, Leiden Central Station, hospitals, and the center of Leiden are all just a short bike ride away. You’ll also have quick access to the A4/A44 highways, the Kagerplassen lakes, and the beaches of Katwijk, Noordwijk, and Wassenaar.

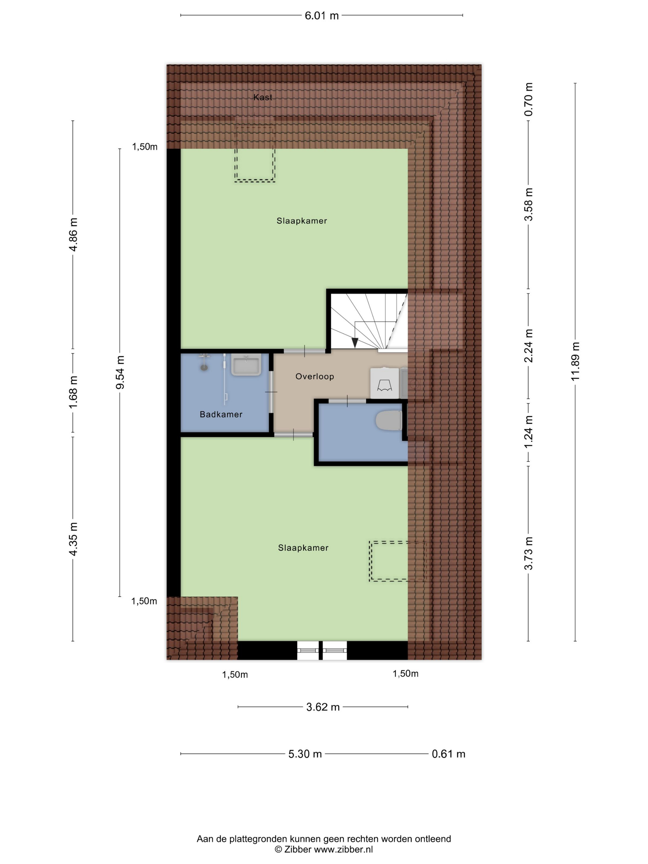
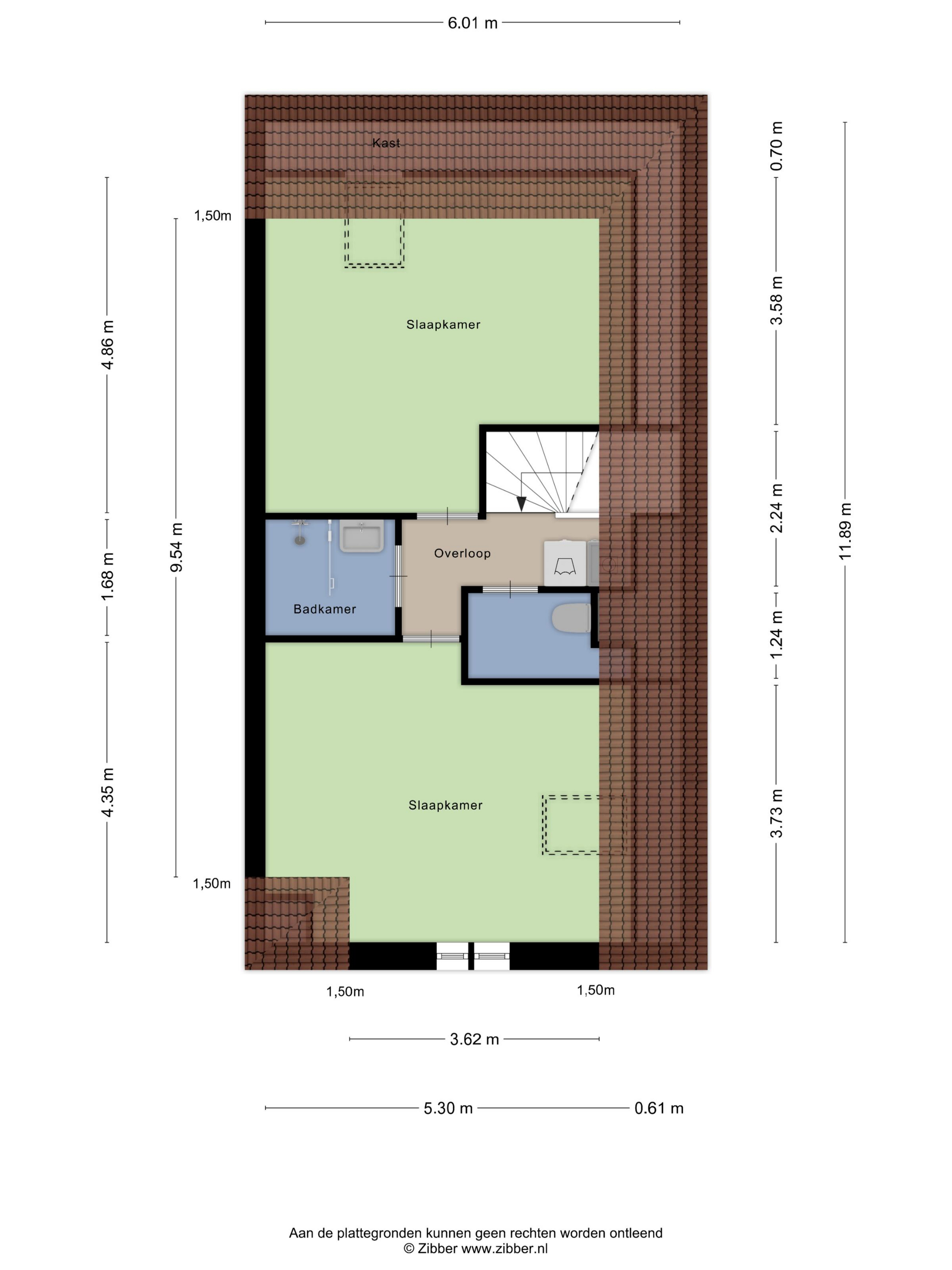
Layout

Ground floor: Entrance hall with modern toilet and cloakroom under the stairs. At the front, a bright and spacious L-shaped living room. At the rear, a generous kitchen-diner with cooking island and luxurious built-in appliances (double oven, wine fridge, stove with Bora extractor system, Quooker) and two sets of French doors leading to the garden.

First floor: Spacious landing with separate toilet. Luxurious bathroom with walk-in shower, bathtub, and double sink. At the rear, the very spacious master bedroom with walk-in closet. At the front, two more large bedrooms.

Second floor: Landing with laundry area, separate toilet, and central heating unit. Second modern bathroom with walk-in shower and sink. Two exceptionally spacious and charming bedrooms complete this floor.

The sunny back garden features a cozy garden house – perfect for long summer evenings.

Living area approx. 210 m²
Plot size approx. 279 m²

Delivery: January 2027 (due to new construction project)

In short: a spacious, sustainable family villa in a prime location in Oegstgeest – definitely worth a viewing!

Features

Solar panels
Alarm system
Transfer of ownership
Asking Price
€ 1.585.000 k.k.
Status
beschikbaar
Acceptance
in overleg
Construction
Kind of house
Eengezinswoning
Building type
twee onder een kapwoning
Construction period
2020
Energy rating
A
Roof type
samengesteld dak
Bedrooms
5
Bathrooms
2
Surface Areas And Volume
Living Area
210 m2
Other indoor space
23 m2
Volume in cubic meters
825 m3
Plot Size
279 m2
Facilities
Mechanische ventilatie
Alarminstallatie
Dakraam
Glasvezel kabel
Zonnepanelen
Aan rustige weg
In woonwijk
Baerz & Co Property Brochure

Brochure

Videos

Bijzonder Wonen Makelaardij

Heilige Geeststraat, 11
5301CP Zaltbommel

info@bijzonderwonen.com
+31 41 868 00 50

www.bijzonderwonen.com

Information / Viewing request

Jeanette van Haaften profile image
Jeanette van Haaften
Real Estate Agent

Buying a Luxury Property in Oegstgeest

Oegstgeest cultivates a refined lifestyle defined by privacy, culture, and quality services. Its international community, rich traditions, and sophisticated amenities attract those seeking calm, elegance, and enduring value close to Dutch metropolitan hubs.