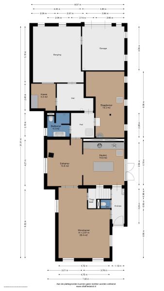
Farmhouse Nes Netherlands offers an understated retreat seamlessly integrated with the Frisian landscape. This nationally listed Old Frisian longhouse, dating to 1764, stands quietly amid meadows near Akkrum, presenting 159 m² of living space set within a private plot of 2,300 m². Thoughtfully adapted for contemporary living, the farmhouse includes three bedrooms and a bathroom, double glazing, insulation, and solar panels that honour tradition while ensuring daily comfort.
On the ground floor, you find an inviting hall, a modern kitchen installed in 2025, and French doors opening to a south-facing terrace that draws in garden light. A dining room ensuite flows into a living room with six-pane windows, framing views of a mature front garden tree. The ground-floor master suite features stable windows and its own sitting area, creating a space of quiet intimacy, while whitewashed timber floors run throughout.
The upper level reveals two sky-lit bedrooms, while the expansive rear section encompasses utility, garage, and flexible storage with wide stable doors welcoming larger vehicles. Several outbuildings, a garden house with workshop, and animal enclosures expand the sense of place, offering scope for living, working, or even hospitality.
Accessed via an electric gate, the woodland garden features terraces, a fenced area for children or pets, and an orchard, all fostering a secluded yet welcoming atmosphere. Panoramic views over Friesland’s pastures frame a life attuned to cycling, sailing, and the gentle pace of rural Netherlands. Nes itself is moments from Akkrum’s amenities and transport, allowing rural tranquillity without compromise on connection. Farmhouse Nes Netherlands stands as a rare convergence of provenance, privacy, and rural elegance.
Explore Nes with Baerz, Your Trusted Personal Property Finder & Advisor
Expert Negotiators and Confidential AccessNavigating the Nes property landscape requires nuanced local knowledge and established relationships. Personal property advisors offer exclusive access to off-market residences and provide strategic guidance throughout the acquisition process. Their expertise extends to sensitive negotiation and thorough due diligence, safeguarding both buyer and seller interests. For international investors, advisors manage complex regulatory matters while preserving privacy at every stage.