Ons kantoor is lid van Baerz & Co Luxury Homes; een internationaal platform dat exclusieve woningmakelaars met elkaar verbindt. Neem contact op met ons secretariaat voor meer informatie over het landelijke aanbod, waarvan u hieronder een selectie kunt bekijken.

Penthouse for sale in DELFT

DELFT Ezelsveldlaan 88 - 2611 RV The Netherlands


Jan Paul van Daal profile image
Jan Paul van Daal
Real Estate Agent
+31 (0)15 - 212 73 00
janpaul@vandaalmakelaardij.nl

Van Daal Makelaardij

Living area
265m2
Plot size
N/A
Bedrooms
5

Description

Looking for an exceptionally spacious penthouse (265 m²!) with the most stunning terrace in Delft?

This special penthouse is located on Ezelsveldlaan and offers breathtaking views over the historic city center of Delft. It features two spacious terraces, the main one measuring no less than 100 m² – a wonderful place to enjoy the afternoon and evening sun. The penthouse further offers an exceptionally large living area, a modern kitchen, two bathrooms, 4 to 5 bedrooms, a multifunctional space, an impressive mezzanine, two storage rooms, and two private parking spaces. The apartment has two house numbers (88 and 104) and two separate entrances, making it ideal for various purposes, such as a home office, a space for informal care, or a live/work combination.

In short: a unique residence in a prime location, well worth a visit.

The property is located in the charming city center of Delft, where you’ll find a lively mix of history, culture, and vibrancy. Think atmospheric canals, monumental buildings, the famous Markt square with the Nieuwe Kerk, and a wide variety of shops, specialty stores, restaurants, cafés, a theater, art-house cinema, and a multiplex. The city center offers everything for those seeking a combination of character and liveliness, along with the calm of a small-scale city. Due to its many characteristic canals and historic buildings, the center is designated as a protected cityscape. All buildings in this area fall under this heritage protection. Within walking distance, you’ll also find the recreational area ‘De Delftse Hout,’ and on the nearby ‘Delftse Schie’ there are plenty of opportunities for water recreation.

Delft is centrally located in the Randstad and very well connected, with the A4 and A13 nearby. By car, Rotterdam is 20 minutes away, The Hague 15 minutes, Utrecht 45 minutes, and Amsterdam 50 minutes. Schiphol Airport can be reached within 40 minutes, and Rotterdam The Hague Airport in just 15 minutes. The TU Delft and the business parks of Delft and Rijswijk are within cycling distance. By train, Rotterdam and The Hague can be reached within 15 minutes from Delft station. Tram line 1 runs via Rijswijk and The Hague city center to the beach at Scheveningen, and tram line 19 takes you via Ypenburg and Leidschenveen to Leidschendam/Leidschenhage.

A unique property website is available for this home. Download the brochure on Funda to access the link to the website with all the details and additional information.

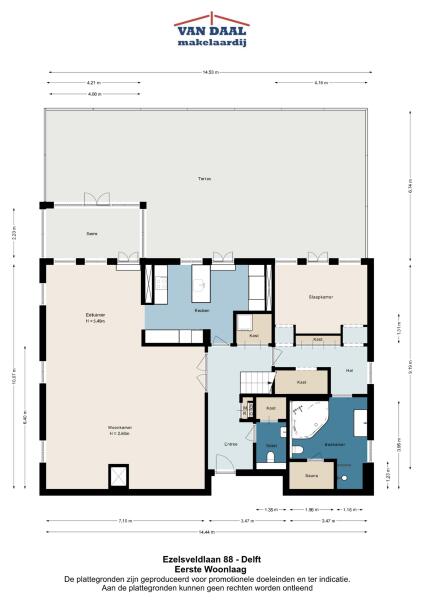
Layout:

Ground floor:
Central entrance with intercom/video system. The electric doors provide access to the elevator and stairwell.

Fourth floor:
Entrance to the apartment. Spacious hallway providing access to various rooms. Exceptionally large living room with a cozy seating area and a large fireplace/stove. The bright dining area immediately stands out due to the unique ceiling height of no less than 5.50 meters, thanks to the mezzanine! During construction, this height was deliberately created to allow for the installation of a striking chandelier. The dining area provides access to a lovely sunroom on the terrace and to the open kitchen. The kitchen is modern, offers ample cupboard space, and is equipped with luxurious built-in appliances, including a fridge, freezer, microwave, oven, induction cooktop, extractor hood, dishwasher, and Quooker. The master bedroom is located on the northeast side of the apartment and is beautifully furnished with ample built-in wardrobes. From this bedroom, you can access a luxurious and spacious bathroom equipped with a walk-in shower, (whirlpool) bath with star ceiling, sauna, toilet, and a vanity unit – a wonderful space to fully unwind.

From the bedroom, living room, and kitchen, there is access to the unique 100 m² terrace with breathtaking views over the historic city center of Delft. The terrace is beautifully landscaped with various seating areas, a pond, and plenty of greenery. It’s a true oasis of tranquility in the heart of the city. You can fully enjoy the afternoon and evening sun here. The sunsets are spectacular.

Fifth floor:
Spacious landing, a good-sized bedroom with an en-suite bathroom featuring a walk-in shower, toilet, and vanity unit. Additionally, there are two attractive bedrooms, both with access to the second terrace, which offers even more spectacular views over the city. There is also a very spacious multifunctional room that can be used as an office, second living room, or extra bedroom. On the landing, there is a practical kitchenette and an additional toilet.

The fifth floor has its own entrance and house number (104), making it accessible via the central elevator and allowing for flexible use of the apartment.

The entire apartment is equipped with underfloor heating and cooling.

Basement:
In the basement of the complex, there is a private garage with two designated parking spaces and two private storage rooms. The apartment is directly accessible from the garage via the elevator or stairwell.

Particulars/features:
- Built in 2007;
- Living area: 265 m²;
- Volume: 900 m³;
- Active homeowners' association (VvE), contribution: €1,179.26 per month for the apartments, €97.34 per month for the parking spaces;
- Energy label A;
- Exceptionally large 100 m² terrace with stunning views over Delft’s city center;
- Located in the heart of the city center;
- Two storage rooms in the basement;
- Two private parking spaces in the garage;
- Heating and cooling via heat pump with floorheating/cooling;
- The apartment consists of two units combined during construction: numbers 88 and 104;
- Non-owner-occupancy clause applies;

Delivery: to be agreed upon.

Interested in this penthouse? Be sure to bring your own NVM purchase agent.
Your NVM purchase agent represents your interests and saves you time, money, and stress.
Addresses of fellow NVM agents in the Haaglanden region can be found on Funda.

Features

Transfer of ownership
price
€ 1.395.000 k.k.
Status
beschikbaar
Acceptance
in overleg
Construction
Kind of house
Penthouse
Building type
appartement
Construction period
2007
Energy rating
A
Bedrooms
5
Bathrooms
2
Surface Areas And Volume
Living area
265 m2
Other indoor space
0 m2
Exterior space attached to the building
135 m2
External storage space
12 m2
Volume in cubic meters
900 m3
facilities
Tv kabel
Lift
Sauna
Balansventilatie
In centrum
Vrij uitzicht
Baerz & Co Property Brochure

Brochure

Information / Viewing request

Videos

Photos

Floor Plans