Ons kantoor is lid van Baerz & Co Luxury Homes; een internationaal platform dat exclusieve woningmakelaars met elkaar verbindt. Neem contact op met ons secretariaat voor meer informatie over het landelijke aanbod, waarvan u hieronder een selectie kunt bekijken.

BERGSCHENHOEK
Van Ruysdaellaan 60 - 2661 SE
Netherlands

Dominique Blom profile image
Dominique Blom
Register Makelaar Taxateur
€800,000 k.k.
Living Area
186m2
Plot Size
344m2
Bedrooms
4

Description

This generous and well-maintained semi-detached home offers everything you could wish for: plenty of living and outdoor space, abundant natural light, a private driveway, and a sunny, beautifully landscaped backyard.

With four spacious bedrooms, a large kitchen, a bright living room, and a practical garage, this is the ideal home for families, people who work from home, or anyone who needs extra space.

The property is located in the peaceful and family-friendly neighborhood Oosteindsche Ackers — perfect for those seeking a quiet environment with all amenities close by. Several schools, childcare centers, and the lively center of Bergschenhoek are within walking distance. Sports and recreational facilities are nearby, and public transport (bus and RandstadRail) as well as major roads (A12, A13, N209, and N472) are easily accessible.

In short: a fantastic home with many possibilities!

Layout

Front Garden:
At the front, you’ll find a neat garden and a spacious paved driveway with room for one or two cars on private property. There is also a charging point for an electric car.
The insulated garage is fitted with an overhead door and can be used for multiple purposes. It is accessible both from the garden side and internally from the house.

Ground Floor:
Spacious entrance hall with meter cupboard, coat area, storage under the stairs, toilet, staircase to the first floor, and access to both the garage and the living room.
The large kitchen at the front of the home offers plenty of cupboard space, a granite countertop, and various built-in appliances such as a gas stove with extractor hood, oven, microwave, fridge-freezer, and dishwasher.
The living room, located at the back, is bright and spacious, with access to an additional room on the ground floor—ideal as a home office, playroom, or hobby room.

The entire ground floor features a beautiful solid wood floor.

Back Garden:
The beautifully landscaped garden faces southwest, providing plenty of sunshine and privacy. The combination of lawn, plants, shrubs, and trees creates a green and peaceful atmosphere, a wonderful place to relax or enjoy outdoor living.

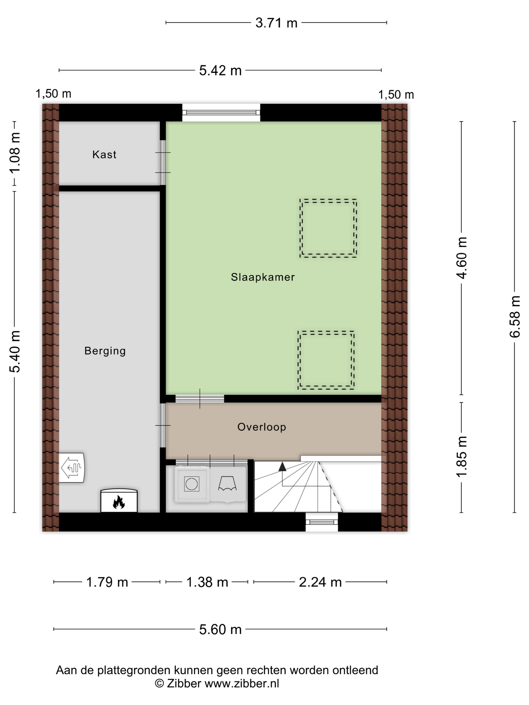
First Floor:
Landing with separate toilet, access to three bedrooms, and the bathroom.
At the front is the main bedroom with a walk-in closet and an extra side window for additional daylight. At the rear are two more spacious bedrooms, both with built-in wardrobes.
One of these bedrooms also provides access to a large storage area.
The bathroom includes a bathtub, shower, towel radiator, and washbasin.

The first and second floors are finished with a stylish laminate floor.

Second Floor:
Landing with access to the fourth, very spacious bedroom, which features two skylights.
This floor also houses the washing machine and dryer connections, central heating system (neatly concealed in a cupboard), mechanical ventilation, and additional storage space.
The bedroom, located at the rear, has a built-in wardrobe and air conditioning.

Key Features
- 4 spacious bedrooms
- Private driveway with garage
- Rear windows on the 1st and 2nd floors fitted with maintenance-free PVC frames
- 10 solar panels and a solar water heater
- Child-friendly and quiet neighborhood
- Transfer date negotiable, in accordance with the List of Items

We warmly invite you to come and see this generous semi-detached home for yourself.

Additional Information

All information provided must be regarded as an invitation to make an offer or to enter negotiations. The texts and impressions are intended to give a good impression of the property. The utmost care has been taken with the content; nevertheless, all information is expressly subject to change. No rights can be derived from this property information.

Purchase agreement legally binding only after signature:
An oral agreement between the private seller and the private buyer is not legally binding. In other words: there is no sale. A purchase is only legally valid once both the private seller and the private buyer have signed the purchase agreement. This follows from Article 7:2 of the Dutch Civil Code. A confirmation of the oral agreement by e-mail or a draft purchase agreement sent is not considered a "signed purchase agreement."

Measurement Instruction Disclaimer:
The property has been measured in accordance with the industry-wide Measurement Instruction (BBMI). The Measurement Instruction is intended to apply a more uniform method of measuring to provide an indication of the usable surface area. The Measurement Instruction does not completely exclude differences in measurement results, for example, due to interpretation differences, rounding, or limitations during the measurement process.

Special Features

Solar panels
Air conditioning

Features

Transfer of ownership
Asking Price
€ 800.000 k.k.
Status
verkocht onder voorbehoud
Acceptance
in overleg
Construction
Kind of house
Eengezinswoning
Building type
twee onder een kapwoning
Construction period
1997
Energy rating
A
Roof type
tentdak
Bedrooms
4
Bathrooms
1
Surface Areas And Volume
Living Area
186 m2
Other indoor space
19 m2
Exterior space attached to the buildinge
1 m2
Volume in cubic meters
726 m3
Plot Size
344 m2
Facilities
Mechanische ventilatie
Airconditioning
Dakraam
Glasvezel kabel
Zonnepanelen
In woonwijk
Baerz & Co Property Brochure

Brochure

Videos

Floor Plans

DB Makelaars

Dorpsstraat 79
2661 CE Bergschenhoek

dominique@dbmakelaars.nl
+31 107850833

www.dbmakelaars.nl

Information / Viewing request

Dominique Blom profile image
Dominique Blom
Register Makelaar Taxateur