Baerz & Co is a nationwide partnership of carefully selected boutique luxury real estate agents. Together, we form a single network with a shared portfolio. The properties you see on our website come from all affiliated offices within Baerz & Co. As a result, not every property is sold directly by our office, but by a specialized colleague within our network. Have you found a property that appeals to you and would you like more information? We will be happy to put you in touch with the relevant sales agent, so that you receive direct and careful guidance.

BARCELONA
Spain

Jeanette van Haaften profile image
Jeanette van Haaften
Real Estate Agent
€1,990,000
Living Area
201m2
Plot Size
N/A
Bedrooms
3

Description

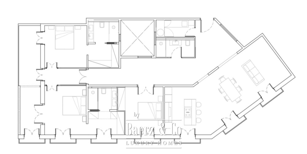
Penthouse Barcelona Quadrat d'Or stands at the coveted crossroads of Calle Girona and Gran Via de les Corts Catalanes, offering 201 m² of refined living space complemented by a 20 m² terrace. This residence blends history and contemporary design, just moments from Passeig de Gràcia and Plaça Catalunya. Surrounded by hotels, theatres, restaurants, schools, exclusive shops, and fully connected by public transport, it situates you in the heart of Barcelona’s iconic Quadrat d'Or.

The penthouse has undergone a comprehensive renovation using high-end materials, yet preserves select original features such as hydraulic tile floors and wooden carpentry. The interior includes three double bedrooms, two of which are en-suite, and three full bathrooms. The spacious living-dining area is anchored by an open-plan designer kitchen with a central island, Miele and Liebherr appliances, Neolith countertops, and lacquered cabinetry. Balconies, a storage room, and a dedicated laundry area enhance daily living. The building itself offers an elevator and concierge service, underscoring the commitment to comfort and security.

Modern amenities include an aerothermal system for climate efficiency, wardrobes, automatic doors, satellite connections, and town gas. Steeped in Barcelona’s modernist heritage, this penthouse positions you amid the architectural landmarks and vibrant city life of one of Europe’s most sought-after quarters. This property is ready for those who value design, quality craftsmanship, and a privileged setting.

Explore Barcelona with Baerz, Your Trusted Personal Property Finder & Advisor

Engaging an expert advisor in Barcelona’s prime property segment is invaluable. Efficiently navigating local market nuances, gaining access to confidential or off-market listings, and benefiting from skilled negotiation are paramount. Bespoke advisory services offer discretion, deep-rooted connections, and risk mitigation at every stage of the acquisition or divestment journey, ensuring buyers and sellers achieve results aligned with their objectives.

Avoid common pitfalls

International buyers often waste valuable time on duplicate, outdated or misleading online listings, especially since nearly 30% of luxury homes never appear on the public market. Seller’s agents represent the seller’s interests, not the buyer’s. Even requesting information about a property can result in a seller’s agent registering you as their “client” without your consent.
With Baerz Property Finders & Advisors, you avoid all these pitfalls entirely. We work solely on your behalf, offering independent representation, clear guidance and access to all available properties, including off-market opportunities that others never get to see.

Interested in a Personal Property Advisor?

We show you all available homes in one place. Feel free to contact us to learn how we can meet your needs and protect your interests exclusively.

Features

Transfer of ownership
Asking Price
€ 1.990.000
LAS
Construction
Rooms
N/A
Bedrooms
3
Bathrooms
3
Surface Areas And Volume
Living Area
201 m2
Plot Size
0 m2
Facilities
Balcon
A/A
Telephone
Terrace
Elevator
Wardrobes cupboard
Appliances
Light
Town Gas
Laundry
Automatic Doors
Satellite
T. V.
Clearly
Baerz & Co Property Brochure

Brochure

Information / Viewing request

Jeanette van Haaften profile image
Jeanette van Haaften
Real Estate Agent

Buying a Luxury Property in Barcelona

Barcelona’s luxury real estate scene welcomes international residents seeking refined living, vibrant culture, and secure investment opportunities. A blend of heritage, community, and world-class services awaits in this Mediterranean hub.