Ons kantoor is lid van Baerz & Co Luxury Homes; een internationaal platform dat exclusieve woningmakelaars met elkaar verbindt. Neem contact op met ons secretariaat voor meer informatie over het landelijke aanbod, waarvan u hieronder een selectie kunt bekijken.

Tussenverdieping for rent in AMSTERDAM

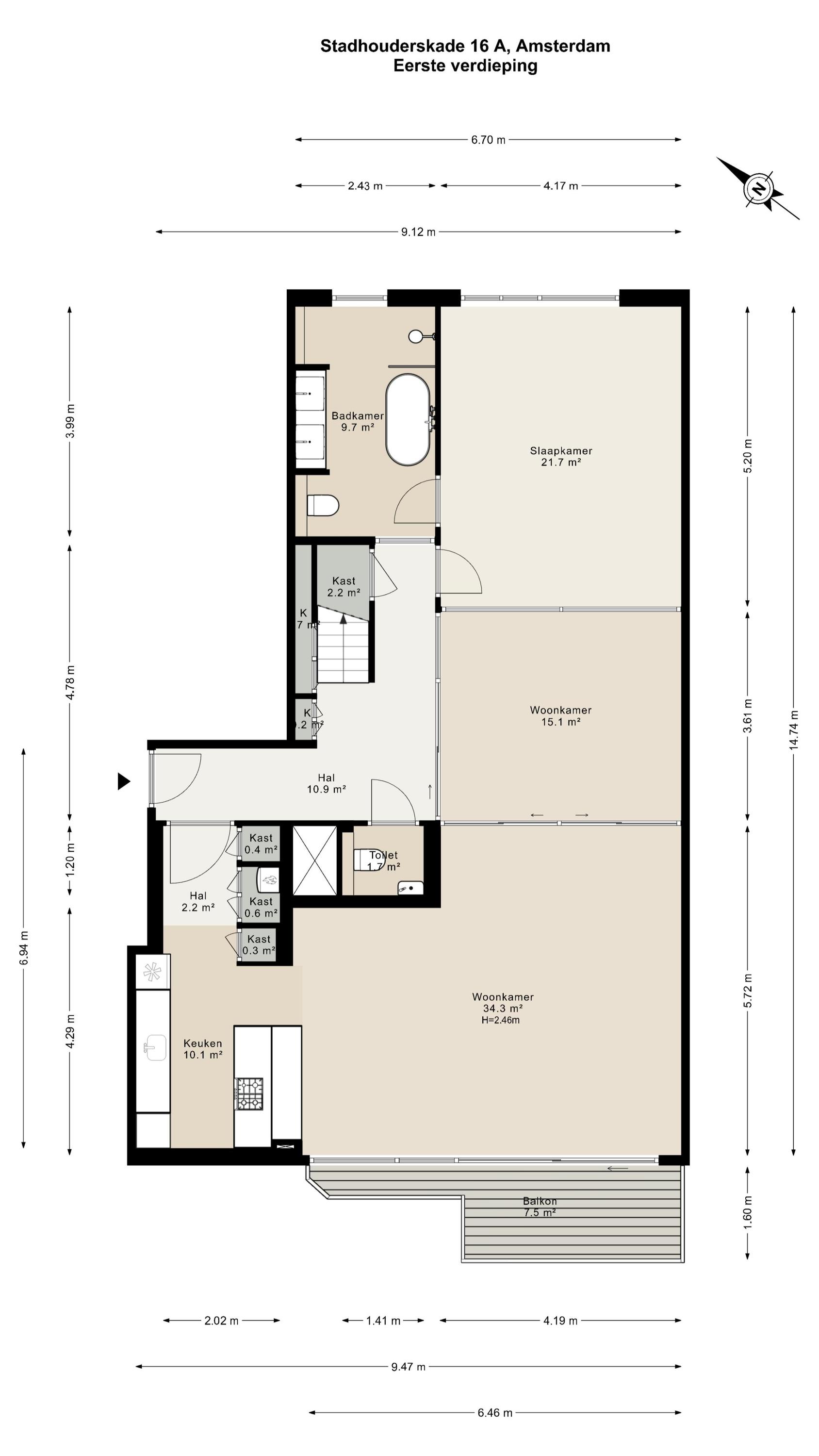
AMSTERDAM Stadhouderskade 16 A - 1054 ES The Netherlands


Steijn Schothorst profile image
Steijn Schothorst
Real Estate Agent
+316 53436695
info@heerenmakelaars.nl

Heeren Makelaars
Stadionweg 75
1077 SE Amsterdam
NETHERLANDS
+31 0204702255
www.heerenmakelaars.nl
info@heerenmakelaars.nl

Living area
157m2
Plot size
N/A
Bedrooms
3

Description

Stadhouderskade 16A, 1054 ES Amsterdam

A unique and fully renovated apartment (approx. 157 m²) spread over two floors, located in the prestigious Byzantium apartment complex adjacent to the Vondelpark. The apartment at Stadhouderskade 16A is available both for sale and for rent. The property features a spacious living area with an open kitchen and en-suite dining room, three bedrooms, two bathrooms, and a generous sun terrace (approx. 8 m²) facing southwest. Additionally the apartment has an energy label A!

Location & Accessibility

Byzantium is ideally located: on one side, the vibrant city center, and on the other, the tranquility of Vondelpark. Hotel Americain, the Stadsschouwburg, DeLaMar Theater, Leidseplein with its many international restaurants, Pathé Cinemas, the Rijksmuseum, Stedelijk Museum, Van Gogh Museum, and the Concertgebouw are all within walking distance. Renowned shopping streets such as P.C. Hooftstraat and Van Baerlestraat are just around the corner. The apartment is easily accessible by both car and public transport. Near Leidseplein, tram stops for lines 1, 2, 5, 7, 11, and 19 are available, while the bus station on Marnixstraat (near Elandsgracht) provides connections to various bus lines, including an express bus to Schiphol Airport. By car, major roads including the A10 ring road can be reached within 15 minutes. Parking is available in the garage on the ground floor of the complex or in nearby streets for a fee.

Complex Byzantium

The apartment is situated on the second floor of the modern "Byzantium" apartment building. Designed by world-renowned architect Rem Koolhaas, the building features a luxurious natural stone entrance. The elegant lobby includes an elevator and a well-maintained staircase. The complex is highly secure, equipped with 24-hour camera surveillance and a concierge. Both the main entrance and the parking garage are secured. The parking garage provides direct access to the stairwell, allowing for internal access to the apartment. Additionally, the garage features a bicycle storage area and a car wash facility. The homeowners’ association also offers a beautifully landscaped and furnished communal rooftop garden on the first floor.

Layout

First Floor

Upon entering, you are welcomed by a spacious hallway. On the right, built-in closets with washer and dryer connections lead directly to the open kitchen. The kitchen features an elegant cooking island with an induction cooktop, a dishwasher, a combination oven, a fridge-freezer, a climate cabinet, and a Quooker. The built-in lighting enhances the ambiance, making the kitchen a true centerpiece of the apartment. The open living area grants access to the generous southwest-facing sun terrace (approx. 8 m²). Floor-to-ceiling windows and sliding doors flood the living and dining areas with natural light, which extends through the steel-framed glass doors into the rear bedroom. This master bedroom, measuring nearly 22 m², accommodates a king-size bed and offers unobstructed views of the Singelgracht canal. The master bedroom includes a modern en-suite bathroom, featuring a freestanding bathtub, a walk-in shower with frosted glass, a custom double vanity unit, and a toilet. This bathroom is also accessible from the central hallway, which houses a tall built-in wardrobe and the staircase leading to the second floor.

Second Floor

On the second floor of this turn-key apartment, a spacious landing provides access to two well-proportioned bedrooms, both benefiting from elegant lighting and refined window placements. The second-floor bathroom includes a walk-in shower, a double vanity unit, and a toilet. Additionally, a built-in closet on the landing provides convenient storage space for washing & drying machines.

Ultimately, you also have access to a separate storage room of approximately 6 m², located on the first floor of the building.

Key Features:

- Apartment right of approx. 157 m² (measured in accordance with NEN2580 guidelines)
- Furnished
- Fully renovated with high end finishin
- Spacious southwest-facing sun terrace (approx. 8 m²)
- Part of the Byzantium complex, located adjacent to Vondelpark
- The complex is highly secure, equipped with 24-hour camera surveillance and a concierge
- Three well-proportioned bedrooms
- Two bathrooms
- Fully equipped with underfloor heating
- Energy label A
- Rental price excluding utilities
- Delivery in consultation

This information has been compiled with due care. However, no liability is accepted for any incompleteness, inaccuracy, or other issues, nor for any consequences thereof. All stated dimensions and surfaces are indicative. The buyer is responsible for conducting their own investigation into all matters that are important to them. Regarding this property, the selling agent acts as the seller’s advisor. We recommend engaging a professional (NVM) purchasing agent to assist with the acquisition process. If you have specific requirements regarding the property, we advise communicating them in a timely manner to your purchasing agent and conducting independent research. If you do not engage a professional representative, you are deemed competent under the law to assess all relevant matters independently. The NVM terms and conditions apply.

Features

Transfer of ownership
price
€ 7.750 p.m.
Status
beschikbaar
Acceptance
in overleg
Construction
Kind of house
Tussenverdieping
Building type
appartement
Construction period
1991
Energy rating
A
Roof type
samengesteld dak
Bedrooms
3
Bathrooms
2
Surface Areas And Volume
Living area
157 m2
Other indoor space
0 m2
Exterior space attached to the building
8 m2
External storage space
4 m2
Volume in cubic meters
485 m3
facilities
Mechanische ventilatie
Buitenzonwering
Lift
Aan park
In centrum
Baerz & Co Property Brochure

Brochure

Information / Viewing request

Videos

Photos

Floor Plans